2760-2770 Sheffield Rd.#
Last updated: 2025-10-23 · ID: D07-12-24-0156
Summary#
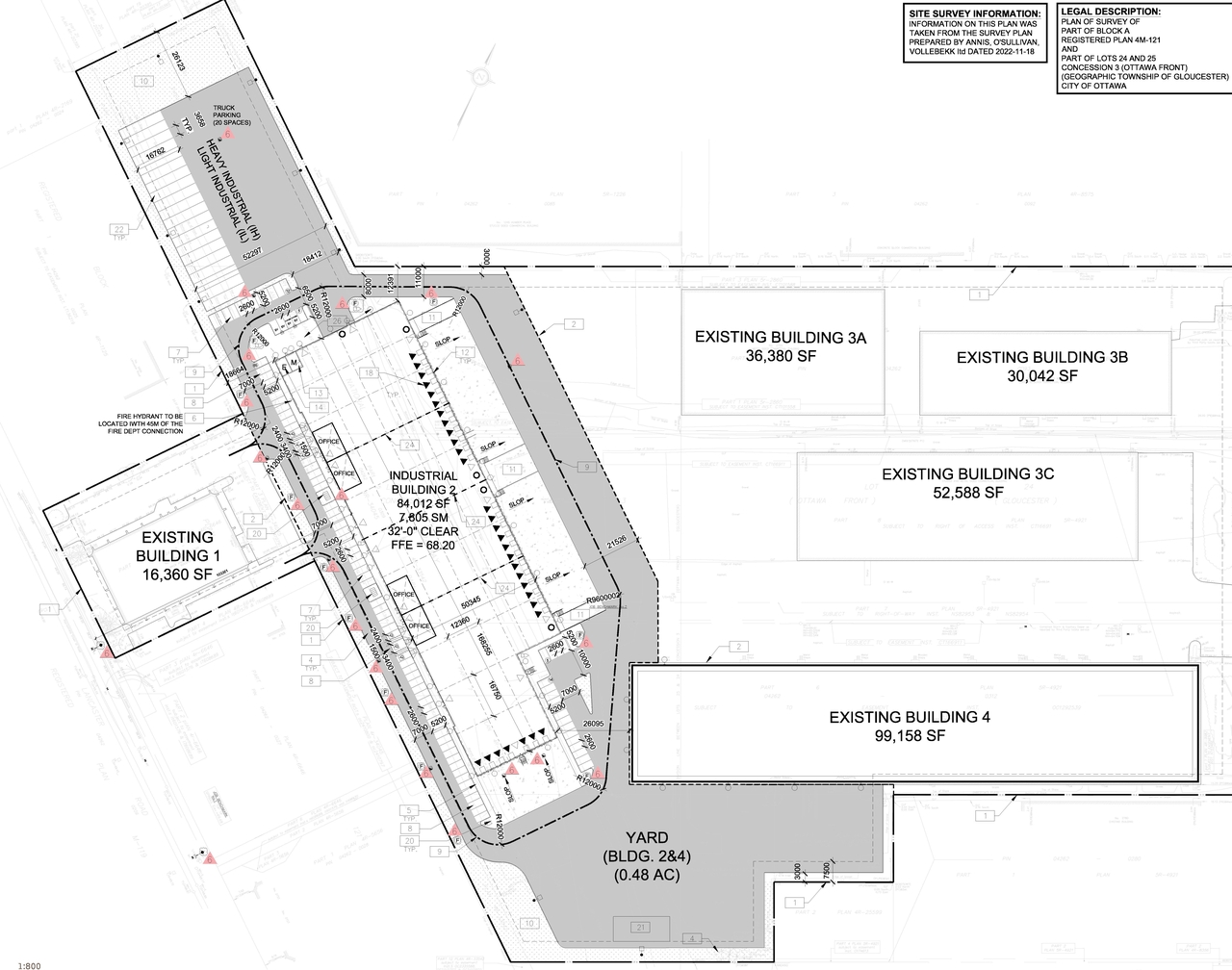
Revision application to the Site Plan Control application approved on December 15, 2023 (File No. D07-12-23-0065) to construct a new 7,805 square metre industrial building across 2760 Sheffield Road and 2865 Walkley F Road. The original approval contemplated the partial demolition of an existing warehouse (Building 4) to accommodate a 10, 564 square metre industrial building and associated parking. This revision application seeks to reduce the size of building to 7,805 square metres and proposes a new site servicing design.
Status
Inactive (Signed Letter of Undertaking Received)
Building Scale (Max.)
Based on elevation drawings. Values may be approximate. See sources for exact figures.
Low-rise · 1 storey
· 11.4 m
Location#
Select a marker to view the address.
Site Plans, Elevations and Floor Plans#
Additional Information#
| Date Initiated | 2024-11-28 |
| Ward | Ward 18 - Marty Carr |
| All Addresses | 2760 Sheffield Rd. 2766 Sheffield Rd. 2767 Sheffield Rd. 2768 Sheffield Rd. 2770 Sheffield Rd. |
Documents#
Related Projects#
| Project | Last Updated | Date Initiated |
|---|---|---|
2750-2760 Sheffield Rd.
D07-12-25-0088 | 2025-10-25 | 2025-06-25 |
2760-2770 Sheffield Rd.2713 Lancaster Rd.2865 Walkley Rd.
D07-12-23-0065 | 2025-08-07 | 2023-05-24 |




