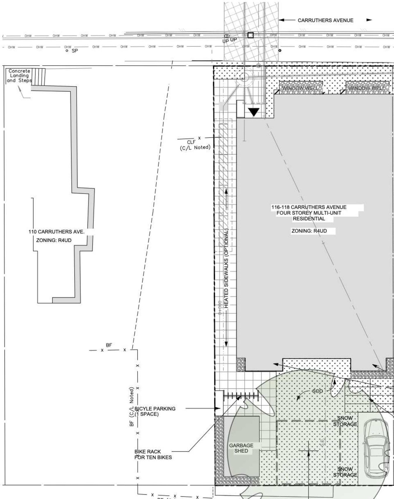
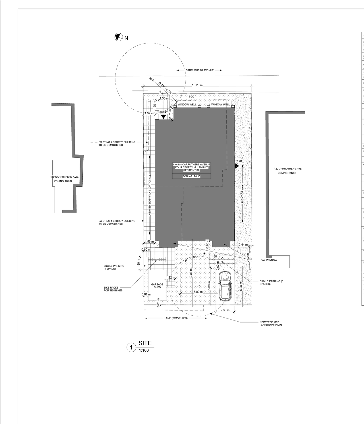
116-118 Carruthers Ave.#
Last updated: 2026-03-10 · ID: D07-12-24-0153
Summary#
The proposal is to permit a 4-storey, 17 unit low rise apartment on the subject property. 1 visitor parking will be provided which will be accessed via the rear laneway. 19 bicycle parking spaces will be provided.
Status
Inactive (Notice of Decision Sent)
Building Scale (Max.)
Based on elevation drawings. Values may be approximate. See sources for exact figures.
Mid-rise · 4 storeys
· 19 m
Data Quality Note
Height was partially estimated using visual scale. This may be approximate.
Data Quality Note
Text was extracted using optical character recognition. This may introduce artifacts or misreads.
Renders#
Location#
Select a marker to view the address.
Site Plans, Elevations and Floor Plans#
Additional Information#
| Date Initiated | 2024-11-21 |
| Ward | Ward 15 - Jeff Leiper |
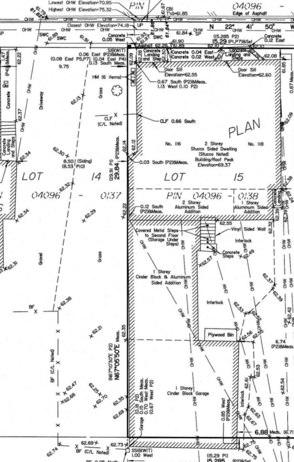
| All Addresses | 116 Carruthers Ave. 118 Carruthers Ave. |










