Ottawa Development Projects

570 March Rd.#

Last updated: 2025-10-28 · ID: D07-12-24-0149

Summary#

A Site Plan Control application to facilitate the development of a new 55,110 square metre mixed-use campus comprising a new office and research and development building for Nokia Canada Inc. and retail fronting onto a new ‘Lifestyle Street’ that will connect March Road and Legget Drive.

Status
Inactive (Notice of Decision Sent)

Building Scale (Max.) Based on elevation drawings. Values may be approximate. See sources for exact figures.
Mid-rise · 9 storeys · 43.5 m Data Quality Note Text was extracted using optical character recognition. This may introduce artifacts or misreads.

Renders#

Location#

Select a marker to view the address.

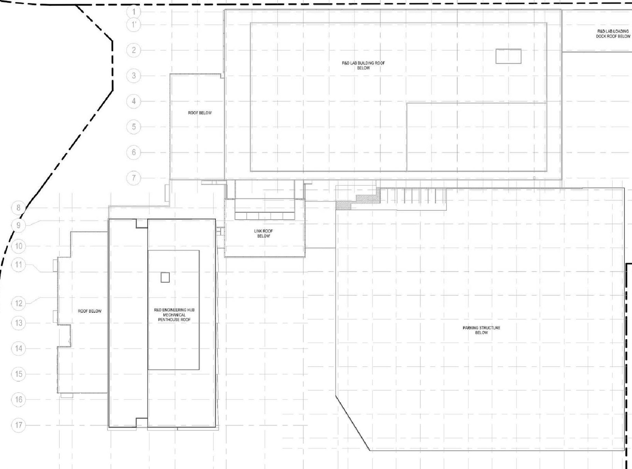
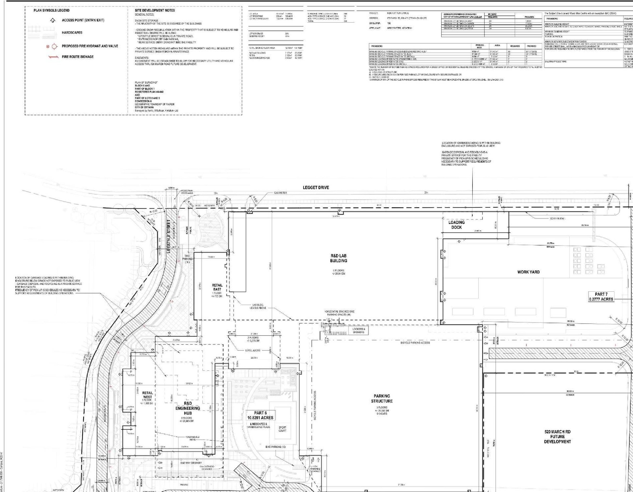
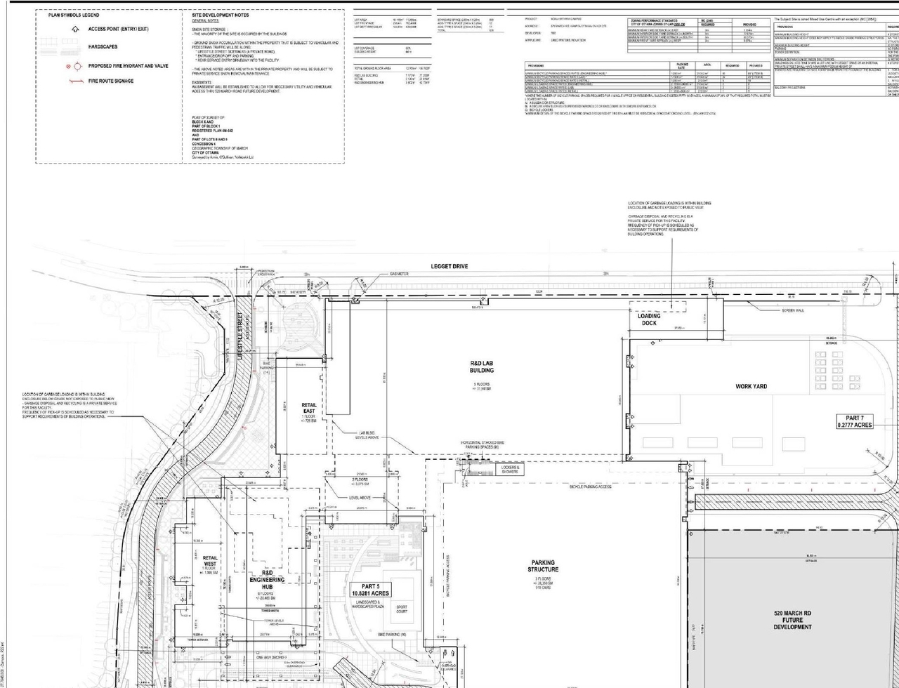
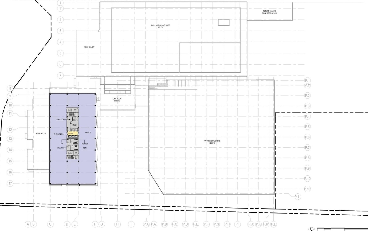
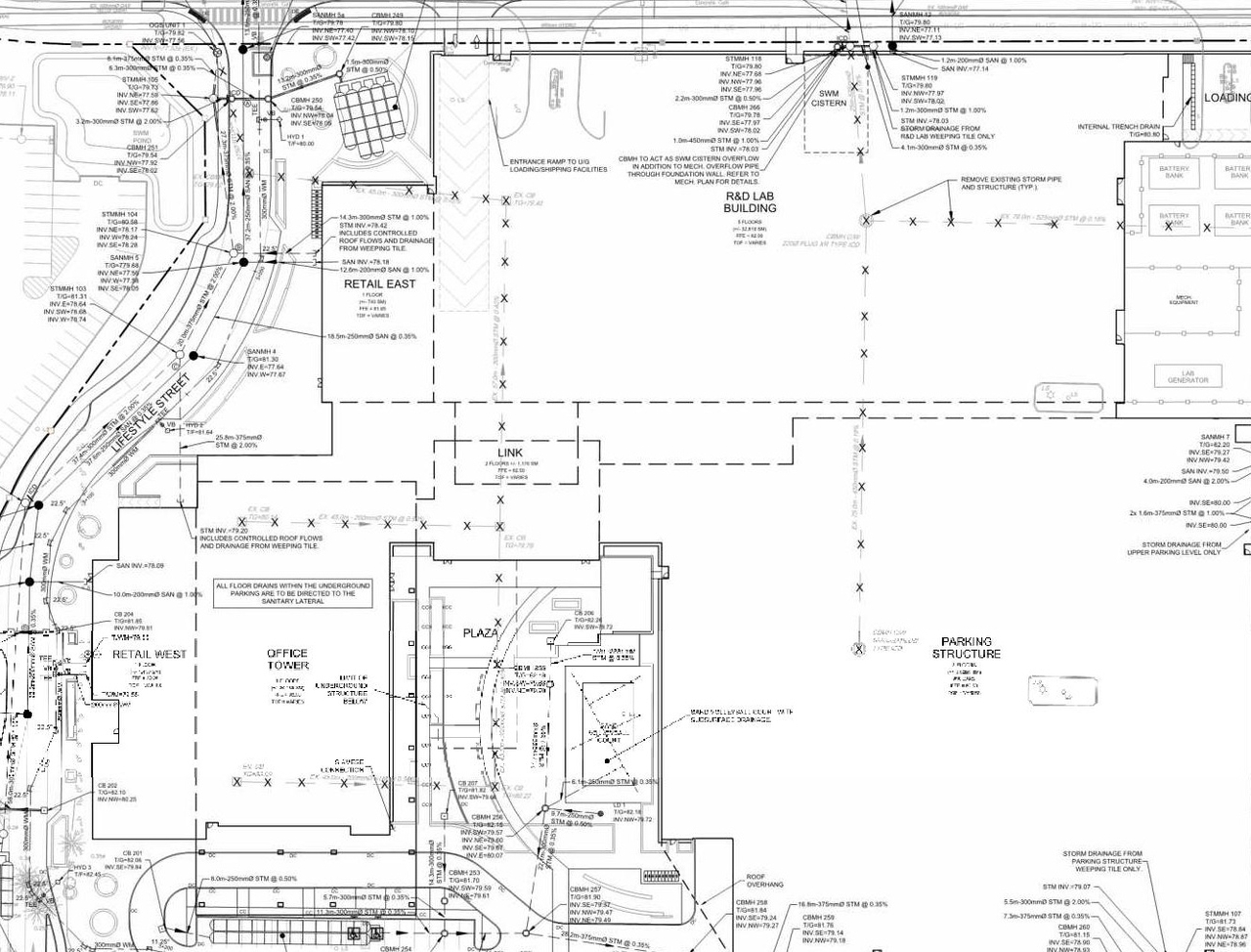
Site Plans, Elevations and Floor Plans#

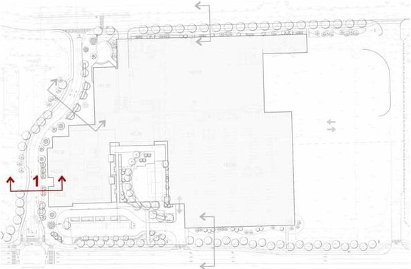
  • Image from page 64 of the file '2024-11-15 - Design Brief - D07-12-24-0149'
  • Construction site plan for project from page 65 of the file '2024-11-15 - Design Brief - D07-12-24-0149'
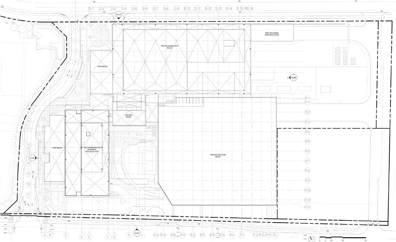
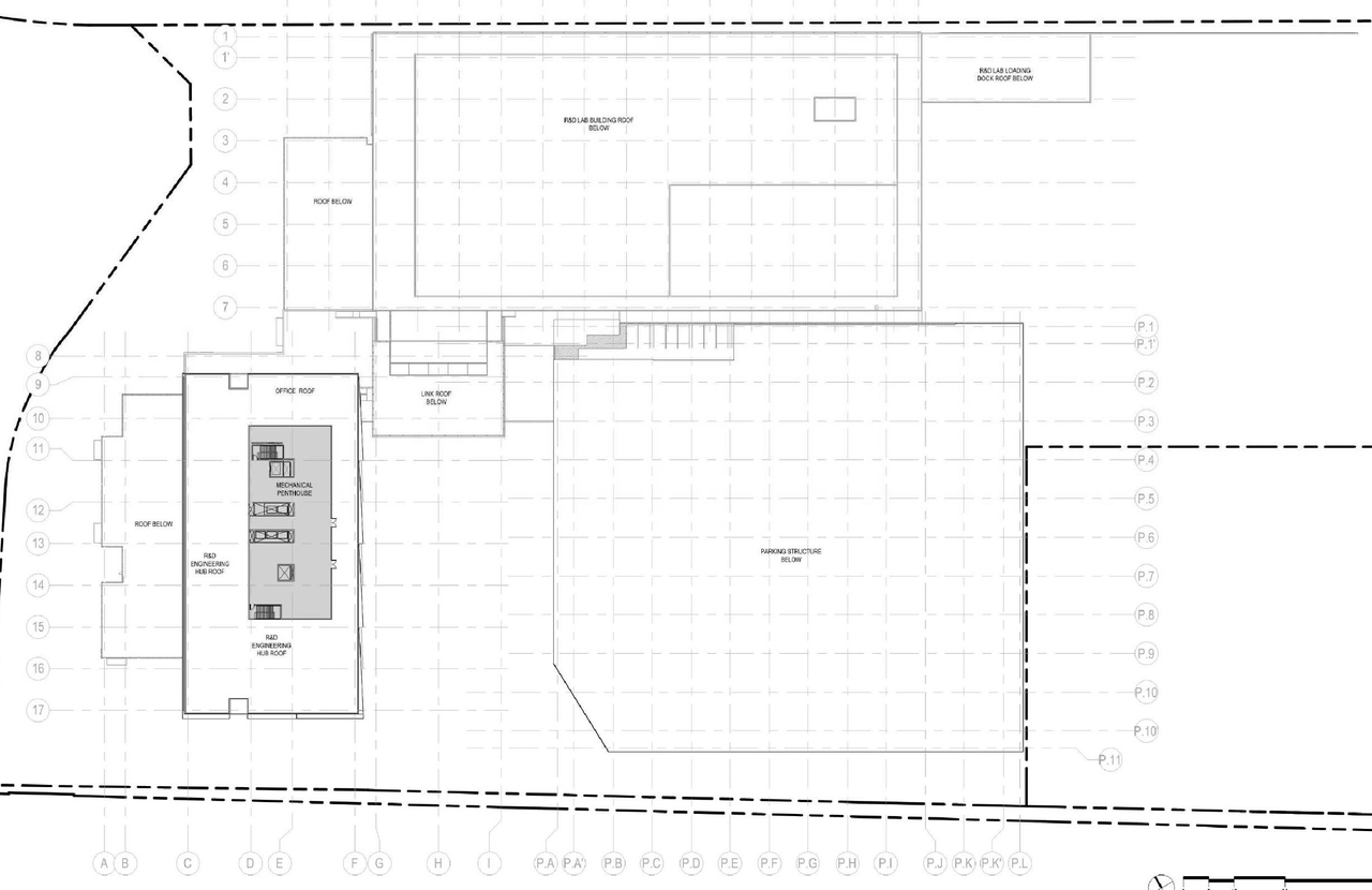
  • Construction site plan for project from page 68 of the file '2024-11-15 - Design Brief - D07-12-24-0149'
  • Construction site plan for project from page 78 of the file '2025-01-10 - Design Brief - D07-12-24-0149'
  • Construction site plan for project from page 8 of the file '2024-11-15 - Design Brief - D07-12-24-0149'
  • Construction site plan for project from page 80 of the file '2025-01-10 - Design Brief - D07-12-24-0149'
  • Construction site plan for project from page 81 of the file '2025-01-10 - Design Brief - D07-12-24-0149'
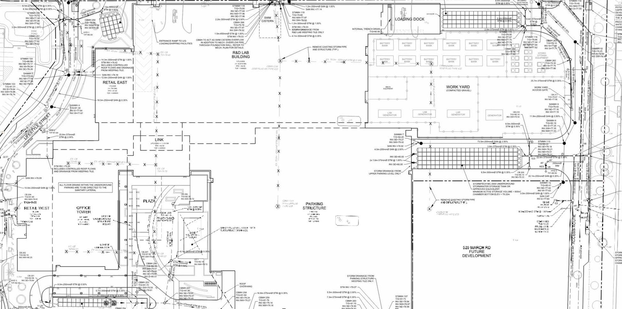
  • Construction site plan for project from page 58 of the file '2024-11-15 - Sanitary and Storm Trunk Sewer Design Brief - D07-12-24-0149'
  • Construction site plan for project from page 55 of the file '2024-11-15 - Sanitary and Storm Trunk Sewer Design Brief - D07-12-24-0149'
  • Construction site plan for project from page 67 of the file '2024-11-15 - Design Brief - D07-12-24-0149'
  • Construction site plan for project from page 54 of the file '2024-11-15 - Sanitary and Storm Trunk Sewer Design Brief - D07-12-24-0149'
  • Construction site plan for project from page 57 of the file '2024-11-15 - Sanitary and Storm Trunk Sewer Design Brief - D07-12-24-0149'
  • Construction site plan for project from page 54 of the file '2025-01-10 - Sanitary and Storm Trunk Sewer Design Brief - D07-12-24-0149'
  • Construction site plan for project from page 73 of the file '2025-01-10 - Design Brief - D07-12-24-0149'
  • Construction site plan for project from page 82 of the file '2025-01-10 - Design Brief - D07-12-24-0149'
  • Construction site plan for project from page 53 of the file '2024-11-15 - Design Brief - D07-12-24-0149'
  • Construction site plan for project from page 64 of the file '2025-01-10 - Design Brief - D07-12-24-0149'
  • Construction site plan for project from page 45 of the file '2025-01-10 - Design Brief - D07-12-24-0149'
  • Construction site plan for project from page 53 of the file '2025-01-10 - Sanitary and Storm Trunk Sewer Design Brief - D07-12-24-0149'
  • Construction site plan for project from page 32 of the file '2024-11-15 - Design Brief - D07-12-24-0149'
  • Construction site plan for project from page 32 of the file '2024-11-15 - Design Brief - D07-12-24-0149'
  • Construction site plan for project from page 58 of the file '2025-08-08 - Sanitary and Storm Trunk Sewer Design Brief - D07-12-24-0149'
  • Construction site plan for project from page 53 of the file '2024-11-15 - Sanitary and Storm Trunk Sewer Design Brief - D07-12-24-0149'
  • Construction site plan for project from page 61 of the file '2025-08-08 - Sanitary and Storm Trunk Sewer Design Brief - D07-12-24-0149'
  • Construction site plan for project from page 55 of the file '2025-08-08 - Sanitary and Storm Trunk Sewer Design Brief - D07-12-24-0149'
  • Construction site plan for project from page 98 of the file '2025-01-10 - Design Brief - D07-12-24-0149'
  • Construction site plan for project from page 90 of the file '2024-11-15 - Design Brief - D07-12-24-0149'
  • Construction site plan for project from page 101 of the file '2025-01-10 - Design Brief - D07-12-24-0149'
  • Construction site plan for project from page 24 of the file '2024-11-15 - Design Brief - D07-12-24-0149'
  • Construction site plan for project from page 87 of the file '2024-11-15 - Design Brief - D07-12-24-0149'
  • Construction site plan for project from page 102 of the file '2025-01-10 - Design Brief - D07-12-24-0149'
  • Construction site plan for project from page 24 of the file '2024-11-15 - Design Brief - D07-12-24-0149'
  • Construction site plan for project from page 103 of the file '2025-01-10 - Design Brief - D07-12-24-0149'
  • Construction site plan for project from page 90 of the file '2024-11-15 - Design Brief - D07-12-24-0149'
  • Construction site plan for project from page 56 of the file '2025-01-10 - Sanitary and Storm Trunk Sewer Design Brief - D07-12-24-0149'
  • Construction site plan for project from page 36 of the file '2024-11-15 - Design Brief - D07-12-24-0149'
  • Construction site plan for project from page 64 of the file '2024-11-15 - Design Brief - D07-12-24-0149'
  • Construction site plan for project from page 77 of the file '2025-01-10 - Design Brief - D07-12-24-0149'
  • Floor plan for project from page 99 of the file '2025-01-10 - Design Brief - D07-12-24-0149'
  • Floor plan for project from page 100 of the file '2025-01-10 - Design Brief - D07-12-24-0149'
  • Image from page 64 of the file '2024-11-15 - Design Brief - D07-12-24-0149'
  • Construction site plan for project from page 65 of the file '2024-11-15 - Design Brief - D07-12-24-0149'
  • Construction site plan for project from page 68 of the file '2024-11-15 - Design Brief - D07-12-24-0149'
  • Construction site plan for project from page 78 of the file '2025-01-10 - Design Brief - D07-12-24-0149'
  • Construction site plan for project from page 8 of the file '2024-11-15 - Design Brief - D07-12-24-0149'
  • Construction site plan for project from page 80 of the file '2025-01-10 - Design Brief - D07-12-24-0149'
  • Construction site plan for project from page 81 of the file '2025-01-10 - Design Brief - D07-12-24-0149'
  • Construction site plan for project from page 58 of the file '2024-11-15 - Sanitary and Storm Trunk Sewer Design Brief - D07-12-24-0149'
  • Construction site plan for project from page 55 of the file '2024-11-15 - Sanitary and Storm Trunk Sewer Design Brief - D07-12-24-0149'
  • Construction site plan for project from page 67 of the file '2024-11-15 - Design Brief - D07-12-24-0149'
  • Construction site plan for project from page 54 of the file '2024-11-15 - Sanitary and Storm Trunk Sewer Design Brief - D07-12-24-0149'
  • Construction site plan for project from page 57 of the file '2024-11-15 - Sanitary and Storm Trunk Sewer Design Brief - D07-12-24-0149'
  • Construction site plan for project from page 54 of the file '2025-01-10 - Sanitary and Storm Trunk Sewer Design Brief - D07-12-24-0149'
  • Construction site plan for project from page 73 of the file '2025-01-10 - Design Brief - D07-12-24-0149'
  • Construction site plan for project from page 82 of the file '2025-01-10 - Design Brief - D07-12-24-0149'
  • Construction site plan for project from page 53 of the file '2024-11-15 - Design Brief - D07-12-24-0149'
  • Construction site plan for project from page 64 of the file '2025-01-10 - Design Brief - D07-12-24-0149'
  • Construction site plan for project from page 45 of the file '2025-01-10 - Design Brief - D07-12-24-0149'
  • Construction site plan for project from page 53 of the file '2025-01-10 - Sanitary and Storm Trunk Sewer Design Brief - D07-12-24-0149'
  • Construction site plan for project from page 32 of the file '2024-11-15 - Design Brief - D07-12-24-0149'
  • Construction site plan for project from page 32 of the file '2024-11-15 - Design Brief - D07-12-24-0149'
  • Construction site plan for project from page 58 of the file '2025-08-08 - Sanitary and Storm Trunk Sewer Design Brief - D07-12-24-0149'
  • Construction site plan for project from page 53 of the file '2024-11-15 - Sanitary and Storm Trunk Sewer Design Brief - D07-12-24-0149'
  • Construction site plan for project from page 61 of the file '2025-08-08 - Sanitary and Storm Trunk Sewer Design Brief - D07-12-24-0149'
  • Construction site plan for project from page 55 of the file '2025-08-08 - Sanitary and Storm Trunk Sewer Design Brief - D07-12-24-0149'
  • Construction site plan for project from page 98 of the file '2025-01-10 - Design Brief - D07-12-24-0149'
  • Construction site plan for project from page 90 of the file '2024-11-15 - Design Brief - D07-12-24-0149'
  • Construction site plan for project from page 101 of the file '2025-01-10 - Design Brief - D07-12-24-0149'
  • Construction site plan for project from page 24 of the file '2024-11-15 - Design Brief - D07-12-24-0149'
  • Construction site plan for project from page 87 of the file '2024-11-15 - Design Brief - D07-12-24-0149'
  • Construction site plan for project from page 102 of the file '2025-01-10 - Design Brief - D07-12-24-0149'
  • Construction site plan for project from page 24 of the file '2024-11-15 - Design Brief - D07-12-24-0149'
  • Construction site plan for project from page 103 of the file '2025-01-10 - Design Brief - D07-12-24-0149'
  • Construction site plan for project from page 90 of the file '2024-11-15 - Design Brief - D07-12-24-0149'
  • Construction site plan for project from page 56 of the file '2025-01-10 - Sanitary and Storm Trunk Sewer Design Brief - D07-12-24-0149'
  • Construction site plan for project from page 36 of the file '2024-11-15 - Design Brief - D07-12-24-0149'
  • Construction site plan for project from page 64 of the file '2024-11-15 - Design Brief - D07-12-24-0149'
  • Construction site plan for project from page 77 of the file '2025-01-10 - Design Brief - D07-12-24-0149'
  • Floor plan for project from page 99 of the file '2025-01-10 - Design Brief - D07-12-24-0149'
  • Floor plan for project from page 100 of the file '2025-01-10 - Design Brief - D07-12-24-0149'

Additional Information#

Date Initiated2024-11-15
WardWard 4 - Cathy Curry

Documents#

TypeDocument
Application Summary2024-11-25 - Application Summary - D07-12-24-0149
Architectural Plans2024-11-15 - West Elevation - D07-12-24-0149
Architectural Plans2024-11-15 - South Elevation - D07-12-24-0149
Architectural Plans2024-11-15 - Site Plan - D07-12-24-0149
Architectural Plans2024-11-15 - North Elevation - D07-12-24-0149
Architectural Plans2024-11-15 - East Elevation - D07-12-24-0149
Architectural Plans2025-01-10 -Site Plan - D07-12-24-0149
Architectural Plans2025-02-14 - West Elevations - D07-12-24-0149
Architectural Plans2025-02-14 - South Elevations - D07-12-24-0149
Architectural Plans2025-02-14 - North Elevations - D07-12-24-0149
Architectural Plans2025-02-14 - East Elevations - D07-12-24-0149
Architectural Plans2025-02-10 - Site Plan - D07-12-24-0149
Architectural Plans2025-04-16 - Approved Site Plan Approval Report - D07-12-24-0149
Architectural Plans2025-08-08 - Overall Building Elevations B- D07-12-25-0149
Architectural Plans2025-08-08 - Overall Building Elevations A - D07-12-25-0149
Architectural Plans2025-08-08 - Construction Plan - Office Level - D07-12-25-0149
Architectural Plans2025-08-08 - Construction Plan - Below Grade - D07-12-25-0149
Architectural Plans2025-08-08 - Architectural Site Plan - D07-12-25-0149
Architectural Plans2025-10-06 - Architectural Site Plan - D07-12-25-0149
Civil Engineering Report2024-11-15 - Civil Package - D07-12-24-0149
Civil Engineering Report2025-01-10 - Civil Package - D07-12-24-0149
Civil Engineering Report2025-02-10 - Civil Package - D07-12-24-0149
Civil Engineering Report2025-08-08 - Civil Package - D07-12-25-0149
Civil Engineering Report2025-10-06 - Civil Package - D07-12-25-0149
Civil Engineering Report2025-10-27 - Civil Package - D07-12-25-0149
Design Brief2024-11-15 - Sanitary and Storm Trunk Sewer Design Brief - D07-12-24-0149
Design Brief2024-11-15 - Design Brief - D07-12-24-0149
Design Brief2025-01-10 - Sanitary and Storm Trunk Sewer Design Brief - D07-12-24-0149
Design Brief2025-01-10 - Design Brief - D07-12-24-0149
Design Brief2025-02-10 - Sanitary and Storm Trunk Sewer Design Brief - D07-12-24-0149
Design Brief2025-02-10 - Design Brief - D07-12-24-0149
Design Brief2025-08-08 - Sanitary and Storm Trunk Sewer Design Brief - D07-12-24-0149
Design Brief2025-10-06 - Sanitary and Storm Truck Sewer Design Brief - D07-12-25-0149.pdf
Design Brief2025-10-27 - Sanitary and Storm Truck Sewer Design Brief - D07-12-25-0149.pdf
Electrical Plan2024-11-15 - Lighting Simulation - D07-12-24-0149
Electrical Plan2024-11-15 - Lighting Compliance Letter - D07-12-24-0149
Electrical Plan2025-01-10 -Lighting Simulation Plan - D07-12-24-0149
Electrical Plan2025-02-10 - Lighting Simulation Plan - D07-12-24-0149
Electrical Plan2025-04-16 - Approved Lighting Simulation Plan - D07-12-24-0149
Electrical Plan2025-08-08 - Lighting Simulation Plan - D07-12-24-0149
Environmental2024-11-15 - Phase One ESA - D07-12-24-0149
Environmental2024-11-15 - Environmental Assessment - D07-12-24-0149
Environmental2024-11-25 - Phase One ESA - D07-12-24-0149
Environmental2025-01-10 - Environmental Assessment - D07-12-24-0149
Environmental2025-02-10 - Environmental Assessment - D07-12-24-0149
Environmental2025-04-16 - Approved Environmental Assessment - D07-12-24-0149
Environmental2025-10-06 - Phase One Environmental Site Assessment - D07-12-25-0149
Geotechnical Report2024-11-15 - Groundwater Sampling Activities - D07-12-24-0149
Geotechnical Report2024-11-15 - Geotechnical Investigation and Hydrogeological Assessment - D07-12-24-0149
Geotechnical Report2025-01-10 - Geotechnical Investigation and Hydrogeological Investigation - D07-12-24-0149
Geotechnical Report2025-02-14 - Geotechnical Investigation and Hydrogeological Investigation - D07-12-24-0149
Geotechnical Report2025-08-08 - Subsurface Investigation Report Proposed Watermain - D07-12-24-0149
Geotechnical Report2025-08-08 - Soil Quaity Report - D07-12-24-0149
Geotechnical Report2025-08-08 - Geotechnical Investigation Proposed Sanitary Sewer - D07-12-24-0149
Geotechnical Report2025-08-08 - Geotechnical Investigation and Hydrogeological Assessment - D07-12-25-0149
Geotechnical Report2025-08-08 - Geotechnical Design Report Proposed Watermain - D07-12-24-0149
Geotechnical Report2025-10-06 - Subsurface Investigation Report Proposed Watermain - D07-12-24-0149
Geotechnical Report2025-10-06 - Soil Quality Report (Proposed Sanitary Sewer) - D07-12-24-0149
Geotechnical Report2025-10-06 - Soil Quality Report (Municipal Watermain Investigation) - D07-12-24-0149
Geotechnical Report2025-10-06 - Geotechnical Investigation Proposed Sanitary Sewer - D07-12-24-0149
Geotechnical Report2025-10-06 - Geotechnical Investigation and Hydrogeological Assessment - D07-12-25-0149
Geotechnical Report2025-10-06 - Geotechnical Design Report Proposed Watermain - D07-12-24-0149
Landscape Plan2024-11-15 - Landscape Plan - D07-12-24-0149
Landscape Plan2025-01-10 - Landscape Package - D07-12-24-0149
Landscape Plan2025-02-10 - Landscape Package - D07-12-24-0149
Landscape Plan2025-08-08 - Landscape Package - D07-12-24-0149
Landscape Plan2025-10-06 - Landscape Package - D07-12-25-0149
Landscape Plan2025-10-27 - Landscape Package - D07-12-25-0149
Noise Study2024-11-15 - Transportation Noise Assessment - D07-12-24-0149
Planning2024-11-15 - Zoning Confirmation Report - D07-12-24-0149
Planning2024-11-15 - Planning Rationale - D07-12-24-0149
Site Servicing2024-11-18 - Servicing Study and Stormwater Management Report - D07-12-24-0149
Site Servicing2025-01-10 - Servicing Study and Stormwater Management Report - D07-12-24-0149
Site Servicing2025-02-10 - Servicing Study and Stormwater Management Report - D07-12-24-0149
Site Servicing2025-08-08 - Servicing Study and Stormwater Management Report - D07-12-24-0149
Site Servicing2025-10-06 - Servicing Study and Stormwater Management Report - D07-12-24-0149
Site Servicing2025-10-27 - Servicing Study and Stormwater Management Report - D07-12-24-0149
Surveying2024-11-15 - Topographic Survery - D07-12-24-0149
Surveying2024-11-15 - Plan of Survey - D07-12-24-0149
Transportation Analysis2024-11-15 - Transportation Impact Assessment - D07-12-24-0149
Transportation Analysis2025-01-10 - Transportation Impact Assessment - D07-12-24-0149
Transportation Analysis2025-02-10 - Transportation Impact Assessment - D07-12-24-0149
Transportation Analysis2025-08-08 - Transportation Impact Assessment - D07-12-24-0149
Tree Information and Conservation2024-11-15 - Tree Conservation Report - D07-12-24-0149
Tree Information and Conservation2025-01-10 - Tree Conservation Plan - D07-12-24-0149
Tree Information and Conservation2025-02-10 - Tree Conservation Plan - D07-12-24-0149
Tree Information and Conservation2025-08-08 - Tree Conservation Plan - D07-12-24-0149
Tree Information and Conservation2025-10-06 - Tree Conservation Plan - D07-12-25-0149
Tree Information and Conservation2025-10-27 - Tree Conservation Plan - D07-12-25-0149
2024-11-15 - Reliance Letter for Geotech and Hydrog - D07-12-24-0149
2025-01-10 - Structual Flow Control Memo - D07-12-24-0149
2025-02-10 - Structual Flow Control Memo - D07-12-24-0149
2025-04-16 - APPROVED Delegated Authority Report - D07-12-24-0149
2025-08-08 - Municipal Watermain Investigation - D07-12-24-0149