Ottawa Development Projects

640 Compass St.#

Last updated: 2026-01-28 · ID: D07-12-24-0146

Summary#

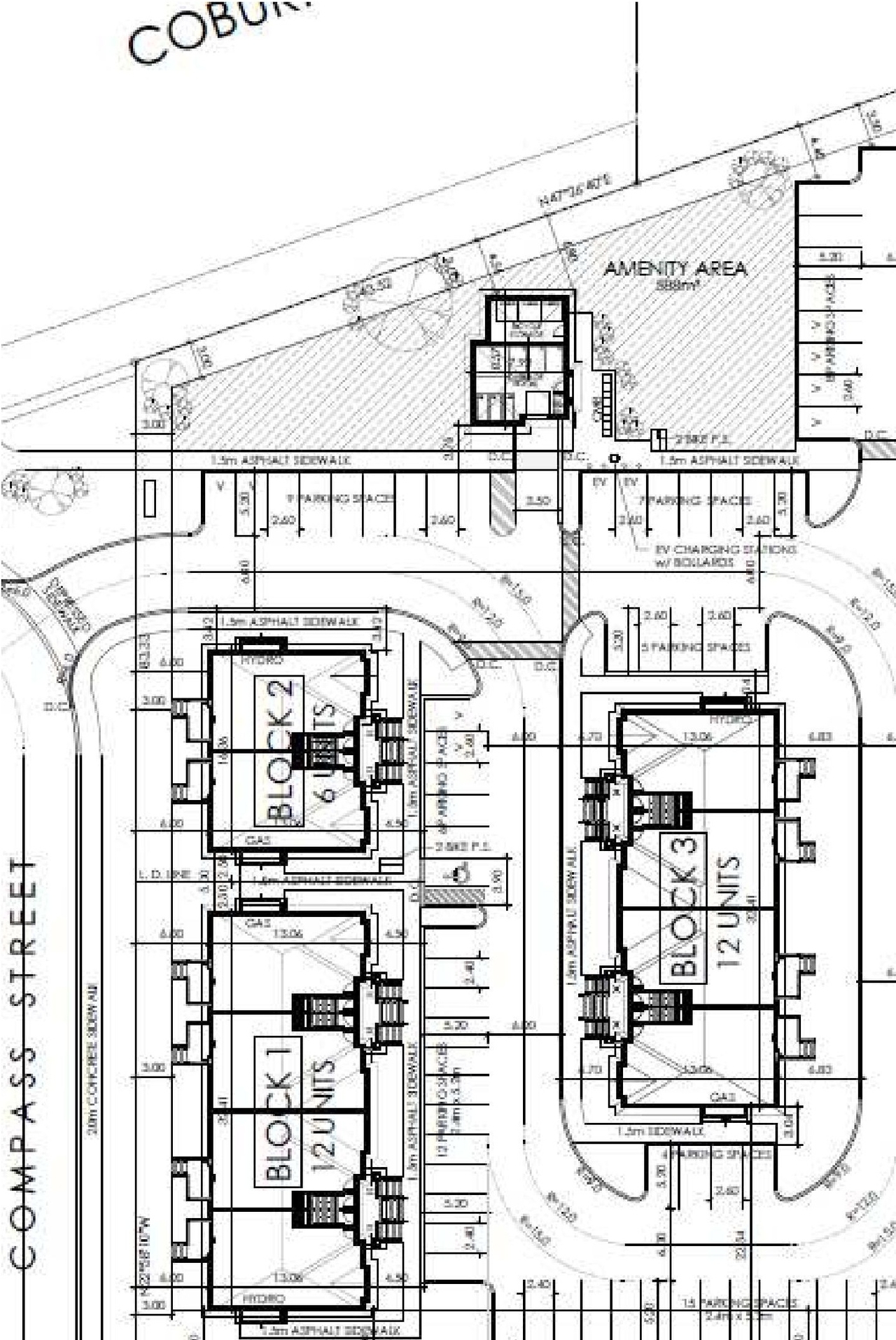
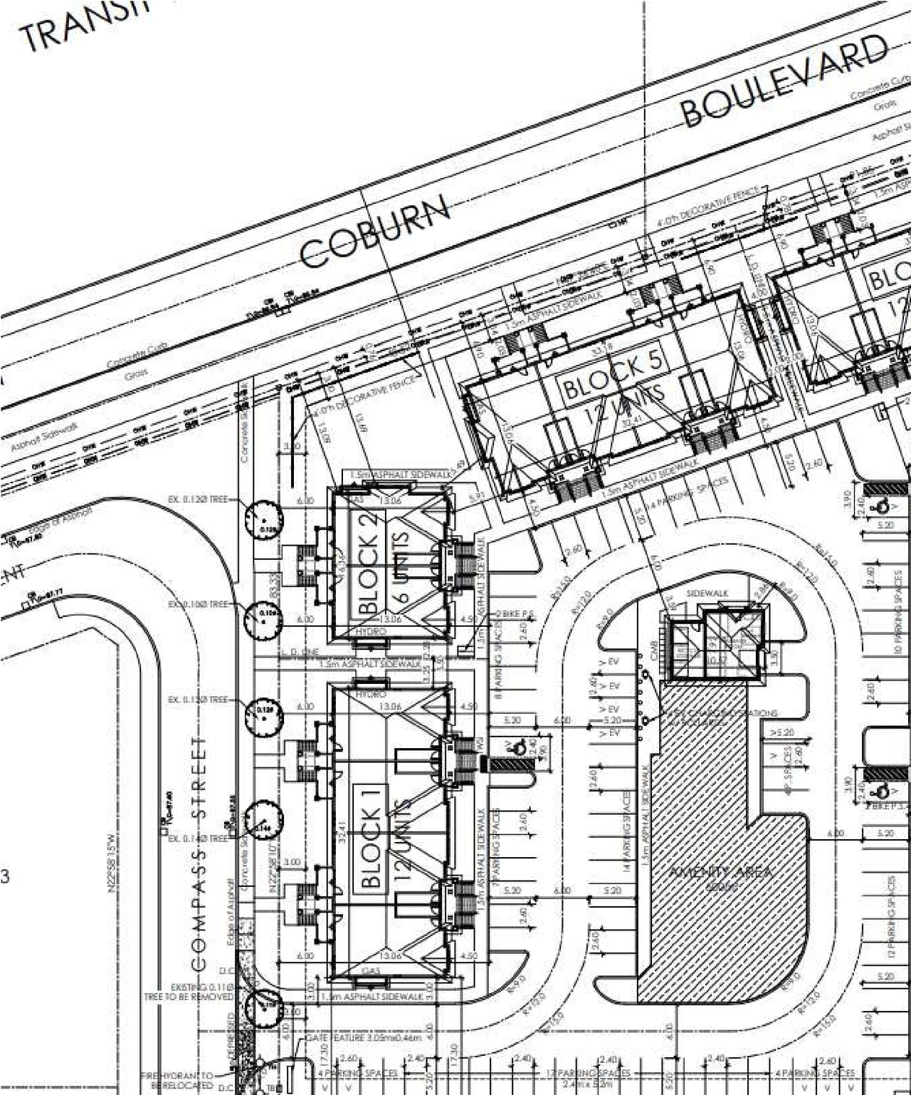
The City of Ottawa has received a Site Plan Control application to construct a planned unit development of six low-rise stacked dwelling buildings with a total of 66 units and a total gross floor area of 6,850 square metres, plus associated parking and amenity area.

Status
Post Approval (Receipt of Agreement from Owner Pending)

Building Scale (Max.) Based on elevation drawings. Values may be approximate. See sources for exact figures.
Low-rise · 1 storey · 1.35 m

Location#

Select a marker to view the address.

Site Plans, Elevations and Floor Plans#

Additional Information#

Date Initiated2024-11-12
WardWard 19 - Catherine Kitts

Documents#

TypeDocument
Application Summary2025-02-05 - Application Summary - D07-12-24-0146
Architectural Plans2025-01-13 -Sanitary Drainage Plan - D07-12-24-0146
Architectural Plans2025-01-13 - Site Plan - D07-12-24-0146
Architectural Plans2025-01-13 - Preliminary Construction Management Plan - D07-12-24-0146
Architectural Plans2025-01-13 - Notes and Legend Plan - D07-12-24-0146
Architectural Plans2025-01-13 - Elevations - D07-12-24-0146
Architectural Plans2025-05-28 - Site Plan - D07-12-24-0146
Architectural Plans2025-05-28 - Sanitary Drainage Plan - D07-12-24-0146
Architectural Plans2025-05-28 - Notes and Legends Plan - D07-12-24-0146
Architectural Plans2025-07-31 - Site Plan - D07-12-24-0146
Architectural Plans2025-09-09 - APPROVED Site Plan - D07-12-24-0146
Architectural Plans2025-09-09 - APPROVED Sanitary Drainage Plan D07-12-24-0146
Architectural Plans2025-09-09 - APPROVED Notes and Legends Plan - D07-12-24-0146
Architectural Plans2025-09-09 - APPROVED Elevations - D07-12-24-0146
Architectural Plans2025-09-04 - APPROVED Site Plan Approval Report - D07-12-24-0146
Design Brief2024-11-12 - Urban Design Brief - D07-12-24-0146
Environmental2025-01-13 - Phase 1 ESA Update - D07-12-24-0146
Environmental2025-09-09 - APPROVED Phase 1 ESA Update - D07-12-24-0146
Environmental2025-09-09 - APPROVED Phase 1 Environmental Site Assessment - D07-12-24-0146
Erosion And Sediment Control Plan2025-01-13 - Erosion and Control Plan and Detail Sheet - D07-12-24-0146
Erosion And Sediment Control Plan2025-05-28 - Erosion Control Plan and Detail Sheet - D07-12-24-0146
Erosion And Sediment Control Plan2025-09-09 - APPROVED Erosion Control Plan and Detail Sheet - D07-12-24-0146
Geotechnical Report2025-01-13 - Grading Plan - D07-12-24-0146
Geotechnical Report2024-11-12 - Geotechnical Report - D07-12-24-0146
Geotechnical Report2025-05-28 - Grading Plan - D07-12-24-0146
Geotechnical Report2025-09-09 - APPROVED Grading Plan - D07-12-24-0146
Geotechnical Report2025-09-09 - APPROVED Geotechnical Report - D07-12-24-0146
Landscape Plan2025-05-28 - Landscape Package - D07-12-24-0146
Landscape Plan2025-07-24 - Landscape Plan - D07-12-24-0146
Landscape Plan2025-09-09 - APPROVED Landscape Plan 9 - D07-12-24-0146
Landscape Plan2025-09-09 - APPROVED Landscape Plan 11 - D07-12-24-0146
Landscape Plan2025-09-09 - APPROVED Landscape Plan 10 - D07-12-24-0146
Noise Study2024-11-12 - Transportation Noise Assessment - D07-12-24-0146
Noise Study2025-09-09 - APPROVED Transportation Noise Assessment - D07-12-24-0146
Planning2025-01-13 - Planning Rationale incl Landfill Impact Assessment Study - D07-12-24-0146
Planning2025-05-28 - Zoning Confirmation Report - D07-12-24-0146
Site Servicing2025-01-13 - Site Servicing Plan - D07-12-24-0146
Site Servicing2025-01-13 - Servicing and SWM Report - D07-12-24-0146
Site Servicing2025-05-28 - Site Servicing Plan - D07-12-24-0146
Site Servicing2025-05-28 - Servicing and SWM Report - D07-12-24-0146
Site Servicing2025-09-09 - APPROVED Site Servicing Plan - D07-12-24-0146
Site Servicing2025-09-09 - APPROVED Servicing and SWM Report - D07-12-24-0146
Stormwater Management2025-01-13 - Storm Drainage Plan - D07-12-24-0146
Stormwater Management2025-05-28 - Storm Drainage Plan - D07-12-24-0146
Stormwater Management2025-09-09 - APPROVED Storm Drainage Plan - D07-12-24-0146
Surveying2025-01-13 - Plan of Survey with Topo - D07-12-24-0146
Tree Information and Conservation2025-01-13 - TCR and Landscape - D07-12-24-0146
Tree Information and Conservation2024-11-12 - Landscape Plan and Tree Conservation Report - D07-12-24-0146
Tree Information and Conservation2025-05-28 - MEMO 01 Grading Plan Review w Small Trees - D07-12-24-0146
Tree Information and Conservation2025-09-09 - APPROVED Grading Plan Review w Small Trees - D07-12-24-0146
2024-11-12 - Compass Servicing Report - D07-12-24-0146