1883 Stittsville Main St.#
Last updated: 2026-02-12 · ID: D07-12-24-0142
Summary#
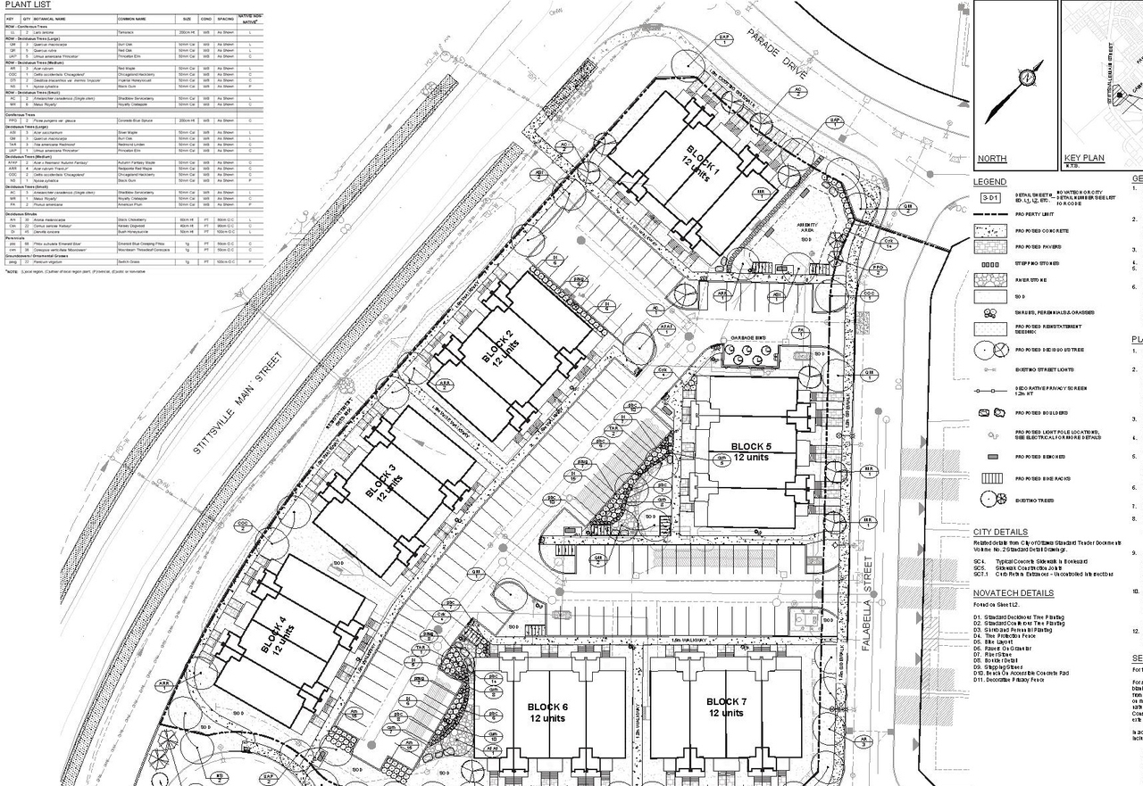
A Site Plan Control application has been submitted for a Planned Unit Development consisting of seven three-storey stacked townhouse dwellings. Each three-storey building will contain 12 dwelling units, for 84 total dwelling units. The proposed development includes 108 parking spaces and 42 bicycle parking spaces.
Status
Inactive (Agreement Registered - Securities Held)
Building Scale (Max.)
Based on elevation drawings. Values may be approximate. See sources for exact figures.
Low-rise · 3 storeys
Renders#
Location#
Select a marker to view the address.
Site Plans, Elevations and Floor Plans#
Additional Information#
| Date Initiated | 2024-11-04 |
| Ward | Ward 6 - Glen Gower |






