Ottawa Development Projects

425 Culdaff Rd.#

Last updated: 2026-01-28 · ID: D07-12-24-0140

Summary#

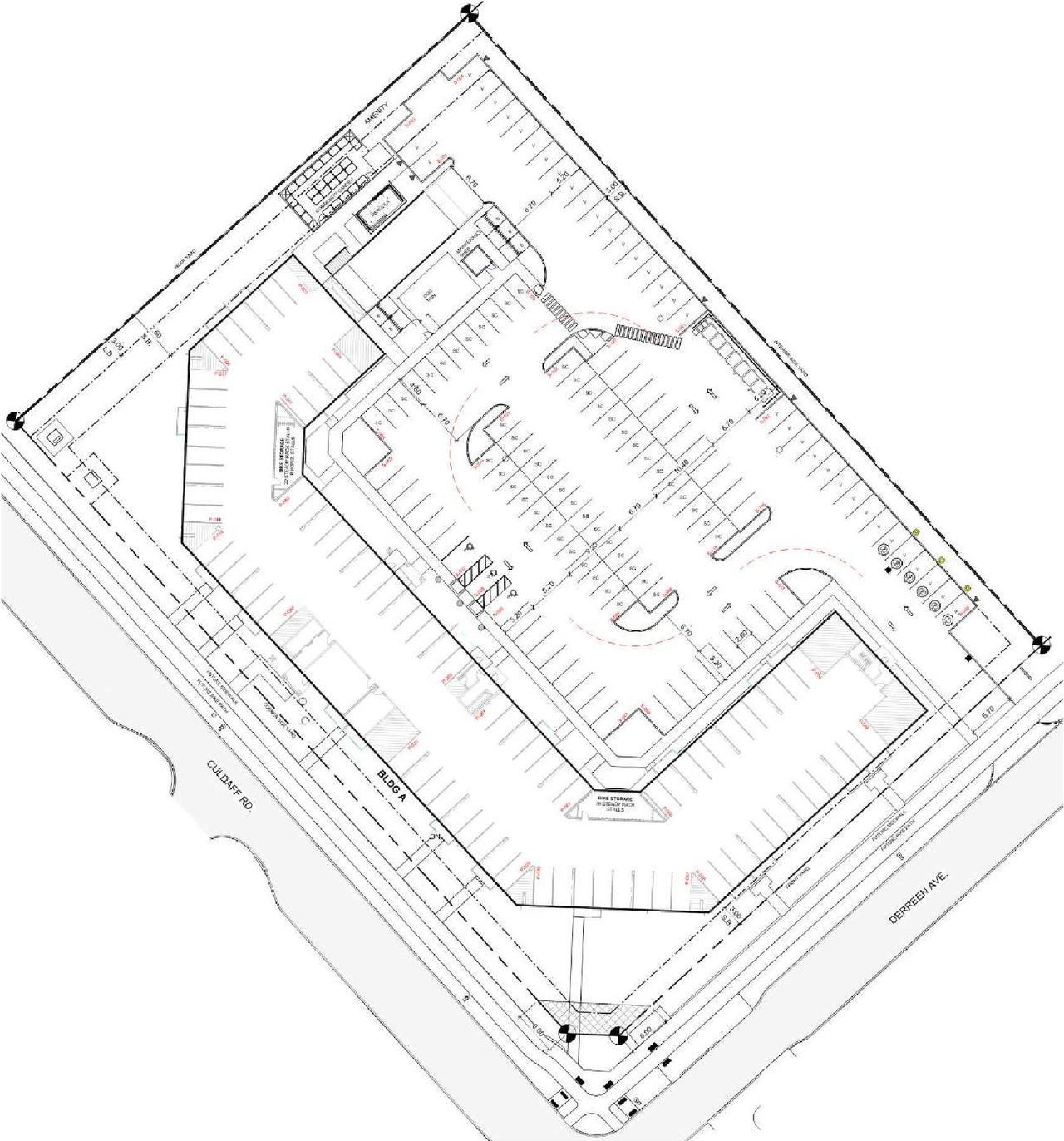
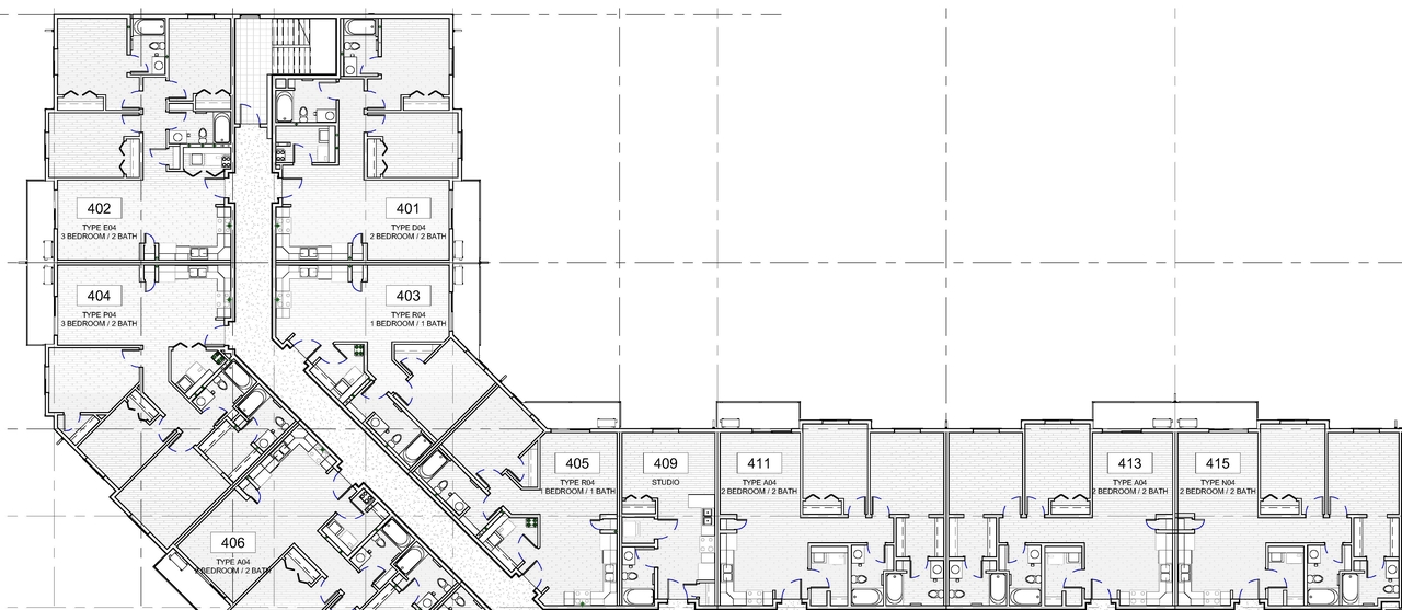
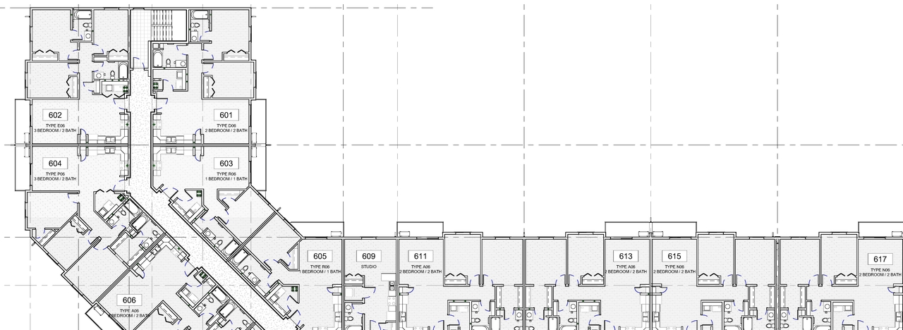
A Site Plan Control application to construct a 6-storey apartment building, containing 177 units, 212 parking spaces, and 108 bicycle parking spaces.

Status
Post Approval (Receipt of Letter of Undertaking from Owner Pending)

Building Scale (Max.) Based on elevation drawings. Values may be approximate. See sources for exact figures.
Low-rise · 1 storey · 3.38 m

Renders#

Location#

Select a marker to view the address.

Site Plans, Elevations and Floor Plans#

Additional Information#

Date Initiated2024-11-01
WardWard 6 - Glen Gower

Documents#

TypeDocument
Application Summary2025-03-26 - Application Summary - D07-12-24-0140
Application Summary2025-03-26 - Application Summary - D07-12-24-01401
Architectural Plans2025-03-03 - WASTE PLUS RECYCLING PLAN - D07-12-24-0140
Architectural Plans2025-03-03 - SURFACE AND UNDERGROUND PARKING PLAN - D07-12-24-0140
Architectural Plans2025-03-03 - SITE PLAN - D07-12-24-0140
Architectural Plans2025-03-03 - SITE ACCESSORIES PLAN - D07-12-24-0140 (2)
Architectural Plans2025-03-03 - SITE ACCESSORIES PLAN - D07-12-24-0140
Architectural Plans2025-03-03 - ROOF PLAN - D07-12-24-0140
Architectural Plans2025-03-03 - NOTES AND DETAILS - D07-12-24-0140
Architectural Plans2025-03-03 - GENERAL PLAN OF SERVICES - D07-12-24-0140
Architectural Plans2025-03-03 - ELEVATION - COLOUR - D07-12-24-0140 (2)
Architectural Plans2025-03-03 - ELEVATION - COLOUR - D07-12-24-0140
Architectural Plans2024-11-04 - Site Plan and Details - D07-12-24-0140
Architectural Plans2024-11-04 - Preliminary Construction Management Plan - D07-12-24-0140
Architectural Plans2024-11-04 - Notes and Details - D07-12-24-0140
Architectural Plans2024-11-04 - General Plan of Services - D07-12-24-0140
Architectural Plans2024-11-04 - Elevations - D07-12-24-0140
Architectural Plans2024-11-04 - Architectural Drawing Set - D07-12-24-0140
Architectural Plans2025-06-16 - General Plan of Service - D07-12-24-0140
Architectural Plans2025-10-07 - APPROVED Waste and Recyling Plan - D07-12-24-0140
Architectural Plans2025-10-07 - APPROVED Surface and Underground Parking Plan - D07-12-24-0140
Architectural Plans2025-10-07 - APPROVED Site Plan Approval Report - D07-12-24-0140
Architectural Plans2025-10-07 - APPROVED Site Plan - D07-12-24-0140
Architectural Plans2025-10-07 - APPROVED Building Elevations - D07-12-24-0140
Architectural Plans2026-01-21 - Landscape Plan & Details - D07-12-24-0140
Architectural Plans2026-01-21 - Civil Plans - D07-12-24-0140
Architectural Plans2026-01-26 - APPROVED Civil Plans - D07-12-24-0140
Civil Engineering Report2025-06-16 - Civil Drawings - D07-12-24-0140
Civil Engineering Report2025-08-22 - Civil Plans - D07-12-24-0140
Civil Engineering Report2025-10-07 - APPROVED Civil Plans - D07-12-24-0140
Cover Letter2025-03-03 - COVER SHEET - D07-12-24-0140
Design Brief2024-11-04 - Design Brief - D07-12-24-0140
Environmental2025-03-07 - PHASE 1 ENVIRONMENTAL SITE ASSESSMENT - D07-12-24-0140
Environmental2024-11-04 - Phase One Environmental Site Assessment - D07-12-24-0140
Erosion And Sediment Control Plan2025-03-03 - EROSION AND SEDIMENT CONTROL PLAN - D07-12-24-0140
Erosion And Sediment Control Plan2024-11-04 - Erosion and Sediment Control Plan - D07-12-24-0140
Floor Plan2025-03-03 - THIRD FLOOR PLAN - D07-12-24-0140
Floor Plan2025-03-03 - SIXTH FLOOR PLAN - D07-12-24-0140
Floor Plan2025-03-03 - SECOND FLOOR PLAN - D07-12-24-0140
Floor Plan2025-03-03 - PARKADE FLOOR PLAN - D07-12-24-0140
Floor Plan2025-03-03 - FOURTH FLOOR PLAN - D07-12-24-0140
Floor Plan2025-03-03 - FIRST FLOOR PLAN - D07-12-24-0140
Floor Plan2025-03-03 - FIFTH FLOOR PLAN - D07-12-24-0140
Floor Plan2024-11-04 - Floor Plans - D07-12-24-0140
Geotechnical Report2025-03-07 - LANDSCAPING PLAN - D07-12-24-0140
Geotechnical Report2025-03-07 - GEOTECHNICAL REPORT - D07-12-24-0140
Geotechnical Report2025-03-03 - GRADING PLAN - D07-12-24-0140
Geotechnical Report2024-11-04 - Grading Plan - D07-12-24-0140
Geotechnical Report2024-11-04 - Geotechnical Investigation - D07-12-24-0140
Landscape Plan2024-11-04 - Landscape Plans - D07-12-24-0140
Landscape Plan2025-06-16 - LANDSCAPE PLAN - D07-12-24-0140
Landscape Plan2025-08-22 - Landscape Plan - D07-12-24-0140
Landscape Plan2025-10-07 - APPROVED Landscape Plans - D07-12-24-0140
Noise Study2025-03-24 - Noise Impact Feasibility Report - D07-12-24-0140
Noise Study2025-03-07 - NOISE STUDY-D07-12-24-0140
Noise Study2024-11-04 - Noise Impact Feasibility Report - D07-12-24-0140
Planning2025-03-07 - ZONING CONFIRMATION REPORT - D07-12-24-0140
Planning2024-11-04 - Zoning Confirmation Report - D07-12-24-0140
Rendering2025-03-03 - SURROUNDING AREA PERSPECTIVE - D07-12-24-0140
Rendering2025-03-03 - SITE PERSPECTIVES - D07-12-24-0140
Shadow Study2025-03-07 - SHADOW IMPACT STUDY - D07-12-24-0140
Shadow Study2025-03-03 - FIRE PLUS EMERGENCY ACCESS PLAN - D07-12-24-0140
Shadow Study2024-11-04 - Shadow Study - D07-12-24-0140
Shadow Study2025-10-07 - APPROVED Fire Emergency Access Plan - D07-12-24-0140
Site Servicing2025-03-03 - SERVICING AND STORM WATER MANAGEMENT REPORT - D07-12-24-0140
Site Servicing2024-11-04 - Servicing and Stormwater Management Report - D07-12-24-0140
Surveying2025-03-07 - TOPOGRAPHIC SKETCH - D07-12-24-0140
Surveying2024-11-04 - Survey Plan - D07-12-24-0140
Surveying2025-06-16 - Plan of Survey - D07-12-24-0140
Transportation Analysis2024-11-04 - Transportation Impact Assessment - D07-12-24-0140
Wind Study2024-11-04 - Pedestrian Level Wind Study - D07-12-24-0140
2025-03-07 - ARCHITECT SET - D07-12-24-0140
2025-03-03 - BIKE PARKING AND STORAGE - D07-12-24-0140
2025-03-03 - CONTRUCTION AREA - PRELIMINARY - D07-12-24-0140
2025-10-07 - APPROVED Bike Parking and Storage - D07-12-24-0140
2026-01-21 - Architectural Drawings - D07-12-24-0140