Ottawa Development Projects

4270 Innes Rd.#

Last updated: 2026-01-10 · ID: D07-12-24-0131

Summary#

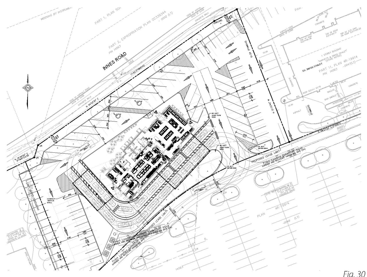
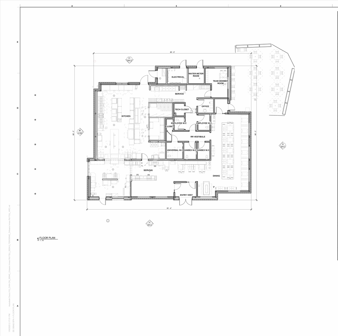
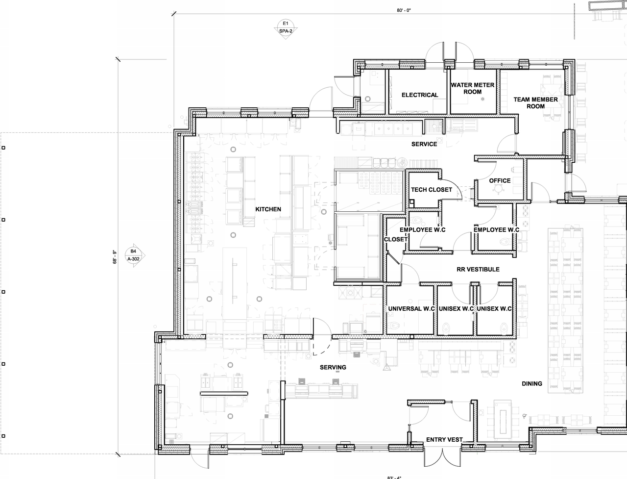
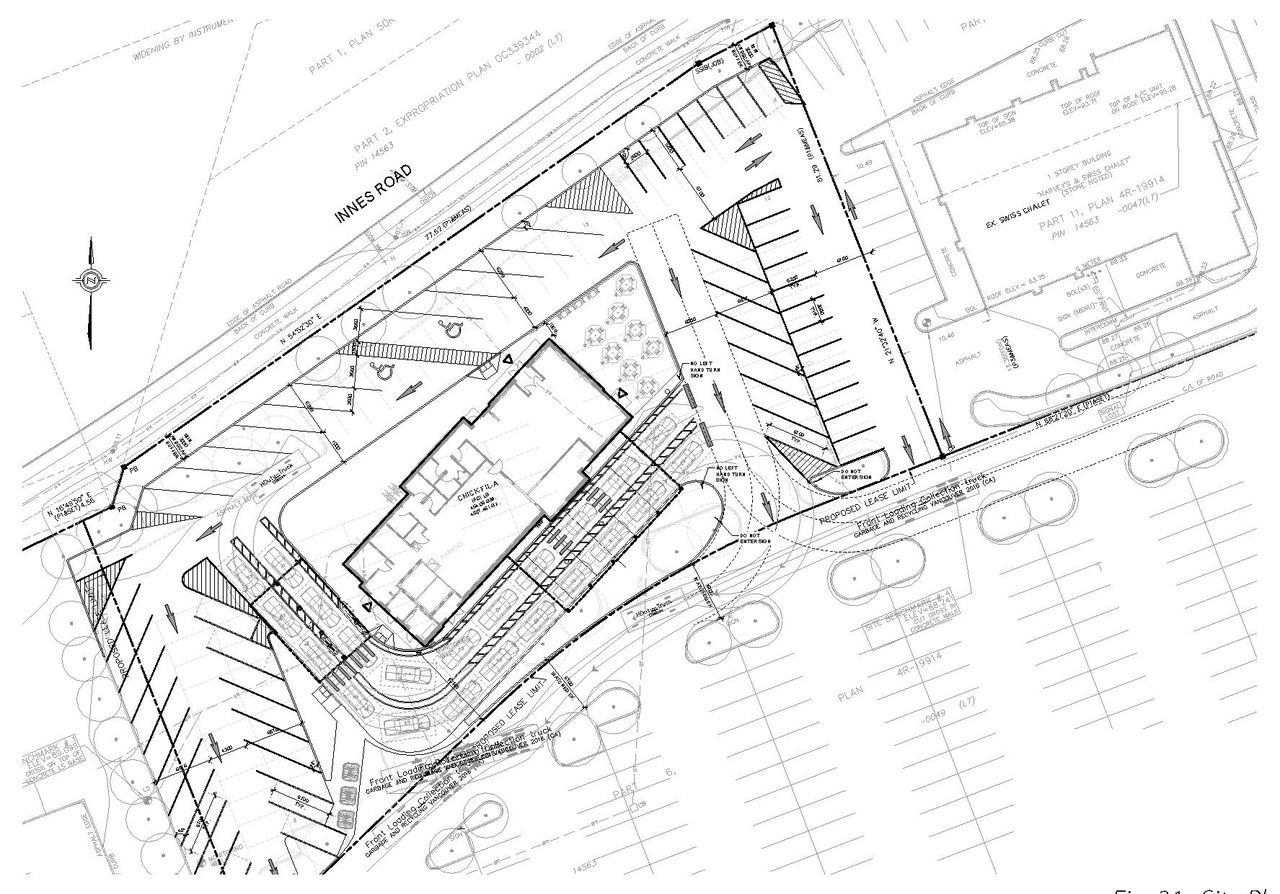
Proposal to remove existing surface parking from the north-west portion of the existing parking lot, east of the gas station, along Innes Road, and replace it with a single-storey restaurant comprising 461.94 sq.m. with 46 parking spaces and 35 queueing spaces for drive-through.

Status
Inactive (Agreement Registered - Final Legal Clearance Given)

Building Scale (Max.) Based on elevation drawings. Values may be approximate. See sources for exact figures.
Mid-rise · 4 storeys Data Quality Note Text was extracted using optical character recognition. This may introduce artifacts or misreads.

Renders#

Location#

Select a marker to view the address.

Site Plans, Elevations and Floor Plans#

Additional Information#

Date Initiated2024-10-21
WardWard 19 - Catherine Kitts

Documents#

TypeDocument
Application Summary2025-03-05 - Application Summary - D07-12-24-0131
Architectural Plans2024-10-21 - Site Plan - D07-12-24-0131
Architectural Plans2024-10-21 - Site Grading Plan - D07-12-24-0131
Architectural Plans2024-10-21 - Pre-Dev Drainage Plan - D07-12-24-0131
Architectural Plans2024-10-21 - Post-Dev Drainage Plan - D07-12-24-0131
Architectural Plans2024-10-21 - Overall Site Plan - D07-12-24-0131
Architectural Plans2024-10-21 - Notes and Details - D07-12-24-0131
Architectural Plans2024-10-21 - Exterior Elevations - D07-12-24-0131
Architectural Plans2024-10-21 - Construction Management Plan - D07-12-24-0131
Architectural Plans2025-02-25 - Site Plan - D07-12-24-0131
Architectural Plans2025-01-27 - Site Grading Plan - D07-12-24-0131
Architectural Plans2025-01-27 - Pre-Development Drainage Plan - D07-12-24-0131
Architectural Plans2025-01-27 - Overall Site Plan - D07-12-24-0131
Architectural Plans2025-01-27 - Exterior Elevations - D07-12-24-0131
Architectural Plans2025-01-27 - Elevations - D07-12-24-0131
Architectural Plans2025-01-27 - Construction Management Plan - D07-12-24-0131
Architectural Plans2025-04-17 - Site Plan A100 - D07-12-24-0131
Architectural Plans2025-04-17 - Site Grading Plan CS100 - D07-12-24-0131
Architectural Plans2025-04-17 - PRE DEVELOPMENT DRAINAGE PLAN SWM100 - D07-12-24-0131
Architectural Plans2025-04-17 - POST DEVELOPMENT DRAINAGE PLAN SWM200 - D07-12-24-0131
Architectural Plans2025-04-17 - Overall Site Plan A101 - D07-12-24-0131
Architectural Plans2025-05-23 - Siteplan Servicing Plan - D07-12-24-0131
Architectural Plans2025-05-23 - Site Grading Plan - D07-12-24-0131
Architectural Plans2025-05-23 - Post Development Drainage Plan - D07-12-24-0131
Architectural Plans2025-07-29 - APPROVED Site Plan Approval Report - D07-12-24-0131
Architectural Plans2025-07-29 - APPROVED Site Plan - D07-12-24-0131
Architectural Plans2025-07-29 - APPROVED Site Grading Plan - D07-12-24-0131
Architectural Plans2025-07-29 - APPROVED Pre Development Drainage Plan - D07-12-24-0131
Architectural Plans2025-07-29 - APPROVED Post Development Drainage Plan - D07-12-24-0131
Architectural Plans2025-07-29 - APPROVED Overrall Site Plan- D07-12-24-0131
Architectural Plans2025-07-29 - APPROVED Elevations - D07-12-24-0131
Architectural Plans2025-07-29 - APPROVED Construction Management Plan - D07-12-24-0131
Design Brief2024-10-21 - Urban Design Brief - D07-12-24-0131
Design Brief2024-01-27 - Urban Design Brief - D07-12-24-0131
Design Brief2025-01-27 - Urban Design Brief - D07-12-24-0131
Design Brief2025-07-29 - APPROVED Urban Design Brief - D07-12-24-0131
Drainage Plan2025-05-23 - Drainage Plan - D07-12-24-0131
Electrical Plan2024-10-21 - Electrical Site Plan - D07-12-24-0131
Electrical Plan2025-07-29 - APPROVED Electrical Site Plan - D07-12-24-0131
Environmental2024-10-21 - Phase II ESA - D07-12-24-0131
Environmental2024-10-21 - Phase I ESA - D07-12-24-0131
Environmental2025-01-27 - Phase I ESA - D07-12-24-0131
Environmental2025-07-29 - APPROVED Phase I ESA - D07-12-24-0131
Erosion And Sediment Control Plan2024-10-21 - Erosion and Sediment Control Plan - D07-12-24-0131
Erosion And Sediment Control Plan2025-01-27 - Erosion Sediment Control Plan - D07-12-24-0131
Erosion And Sediment Control Plan2025-04-17 - Erosion and Sediment Control Plan CS200 - D07-12-24-0131
Erosion And Sediment Control Plan2025-05-23 - Erosion and sediment Control Plan - D07-12-24-0131
Erosion And Sediment Control Plan2025-07-29 - APPROVED Erosion Sediment Control Plan - D07-12-24-0131
Floor Plan2024-10-21 - Floor Plan - D07-12-24-0131
Floor Plan2025-01-27 - Floor Plan - D07-12-24-0131
Floor Plan2025-04-17 - Floor Plans and Elevations - D07-12-24-0131
Floor Plan2025-07-29 - APPROVED Floor Plans - D07-12-24-0131
Geotechnical Report2024-10-21 - Geotechnical Investigation - D07-12-24-0131
Geotechnical Report2025-04-17 - Geotechnical Investigation - D07-12-24-0131
Geotechnical Report2025-07-29 - APPROVED Geotechnical Investigation - D07-12-24-0131
Landscape Plan2024-10-21 - Landscape Plan - D07-12-24-0131
Landscape Plan2024-10-21 - Landscape Detail LD102 - D07-12-24-0131
Landscape Plan2024-10-21 - Landscape Detail LD101 - D07-12-24-0131
Landscape Plan2024-10-21 - Landscape Detail LD100 - D07-12-24-0131
Landscape Plan2025-02-25 - Landscape Plan - D07-12-21-0131
Landscape Plan2025-01-27 - Landscape Details02 - D07-12-24-0131
Landscape Plan2025-01-27 - Landscape Details01 - D07-12-24-0131
Landscape Plan2025-01-27 - Landscape Details00 - D07-12-24-0131
Landscape Plan2025-04-17 - Landscape Plan LD100 - D07-12-24-0131
Landscape Plan2025-04-17 - Landscape Plan L100 - D07-12-24-0131
Landscape Plan2025-04-17 - Landscape Detail LD102 - D07-12-24-0131
Landscape Plan2025-04-17 - Landscape Detail LD101 - D07-12-24-0131
Landscape Plan2025-07-29 - APPROVED Landscape Plan - D07-12-24-0131
Landscape Plan2025-07-29 - APPROVED Landscape Details LD 102 - D07-12-24-0131
Landscape Plan2025-07-29 - APPROVED Landscape Details LD 101 - D07-12-24-0131
Landscape Plan2025-07-29 - APPROVED Landscape Details LD 100 - D07-12-24-0131
Planning2024-10-21 - Zoning Confirmation Report - D07-12-24-0131
Planning2025-01-27 - Zoning Confirmation Report - D07-12-24-0131
Site Servicing2024-10-21 - Site Servicing Plan Part 2 - D07-12-24-0131
Site Servicing2024-10-21 - Site Servicing Plan - D07-12-24-0131
Site Servicing2025-01-27 - Site Servicing Plan PS101 - D07-12-24-0131
Site Servicing2025-01-27 - Site Servicing Plan - PS100 - D07-12-24-0131
Site Servicing2025-04-17 - Site Servicing Plan PS101 - D07-12-24-0131
Site Servicing2025-04-17 - Site Servicing Plan PS100 - D07-12-24-0131
Site Servicing2025-05-23 - Site servicing Plan 2 - D07-12-24-0131
Site Servicing2025-07-29 - APPROVED Site Servicing Plan PS101 - D07-12-24-0131
Site Servicing2025-07-29 - APPROVED Site Servicing Plan PS100 - D07-12-24-0131
Surveying2024-10-21 - Plan of Survey - D07-12-24-0131
Surveying2025-07-29 - APPROVED Plan of Survey - D07-12-24-0131
Transportation Analysis2024-10-29 - Transportation Impact Assessment - D07-12-24-0131
Transportation Analysis2025-01-27 - Transportation Impact Assessment Strategy Report - D07-12-24-0131
Transportation Analysis2025-01-27 - Transportation Impact Assessment - D07-12-24-0131
Transportation Analysis2025-03-28 - Traffic Impact Assessment - D07-12-24-0131
Transportation Analysis2025-04-17 - TIA Strategy Report - D07-12-24-0131
Transportation Analysis2025-05-23 - TIA Strategy Report - D07-12-24-0131
Transportation Analysis2025-07-29 - APPROVED TIA Strategy Report - D07-12-24-0131
Tree Information and Conservation2024-10-21 - Tree Protection Plan - D07-12-24-0131
Tree Information and Conservation2024-10-21 - Tree Preservation Report - D07-12-24-0131
Tree Information and Conservation2025-02-25 - Tree Protection Plan - D07-12-21-0131
Tree Information and Conservation2025-02-25 - Tree Conservation Report - D07-12-24-0131
Tree Information and Conservation2025-04-17 - Tree Protection Plan - D07-12-24-0131
Tree Information and Conservation2025-04-17 - Arborist Report - D07-12-24-0131
Tree Information and Conservation2025-07-29 - APPROVED Tree Protection Plan - D07-12-24-0131
Tree Information and Conservation2025-07-29 - APPROVED Arborist Report - D07-12-24-0131
2024-10-21 - Generic Site Details - D07-12-24-0131
2024-10-21 - Functional Servicing Report - D07-12-24-0131
2024-10-21 - Details - D07-12-24-0131
2025-01-27 - Notes - D07-12-24-0131
2025-01-27 - Generic Site Details - D07-12-24-0131
2025-01-27 - Functional Servicing Report - D07-12-24-0131
2025-01-27 - Drive-Thru Operations - D07-12-24-0131
2025-01-27 - Details - D07-12-24-0131
2025-04-17 - Notes CS300 - D07-12-24-0131
2025-04-17 - Functional Servicing Report - D07-12-24-0131
2025-04-17 - Details CS301 - D07-12-24-0131
2025-05-23 - Siteplan - D07-12-24-0131
2025-05-23 - Overall siteplan - D07-12-24-0131
2025-05-23 - Notes - D07-12-24-0131
2025-05-23 - Functional Servicing Report - D07-12-24-0131
2025-05-23 - Details - D07-12-24-0131
2025-07-29 - APPROVED Notes - D07-12-24-0131
2025-07-29 - APPROVED Generic Site Details - D07-12-24-0131 - SIGNED
2025-07-29 - APPROVED Functional Servicing Report - D07-12-24-0131
2025-07-29 - APPROVED Details - D07-12-24-0131