Ottawa Development Projects

295-355 Deschatelets#

Last updated: 2025-11-14 · ID: D07-12-24-0130

Summary#

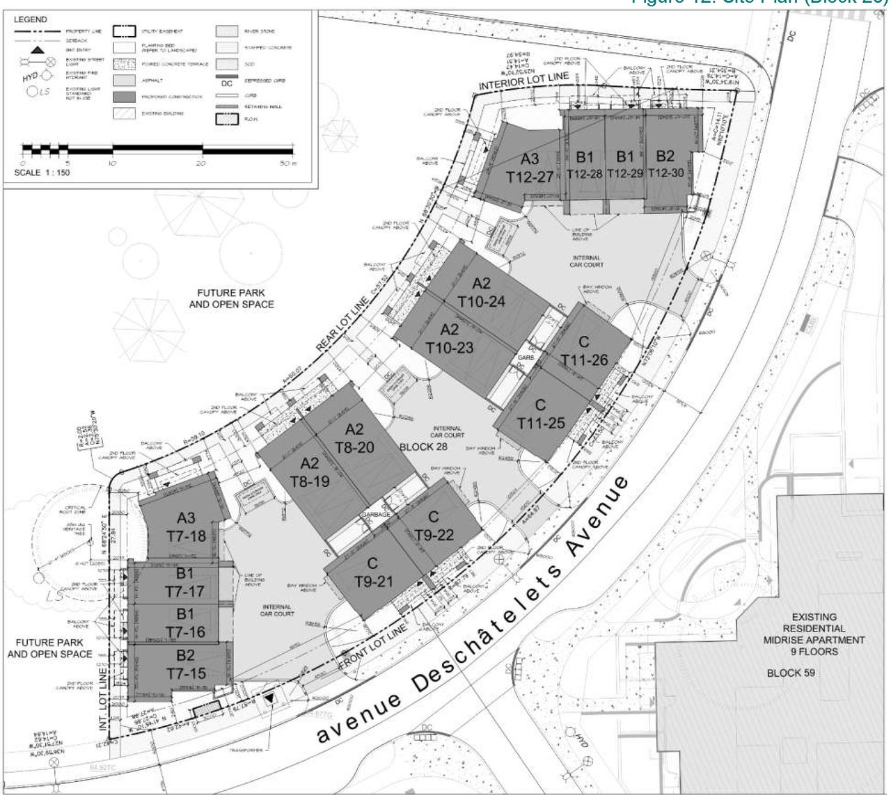
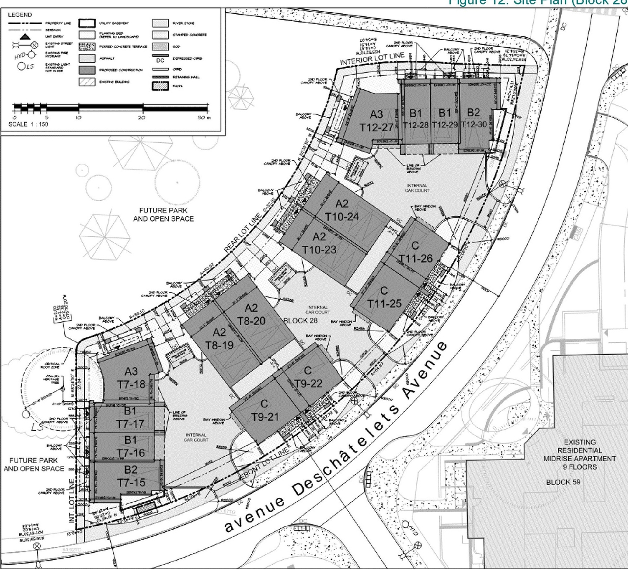
The proposed Planned Unit Development includes thirty (30) townhouse units with associated car court and landscaping. Please refer to the Planning Rationale, prepared by Novatech Engineers, for further details about the proposal.

Status
Inactive (Agreement Registered - Securities Held)

Building Scale (Max.) Based on elevation drawings. Values may be approximate. See sources for exact figures.
Low-rise · 3 storeys Data Quality Note Text was extracted using optical character recognition. This may introduce artifacts or misreads. · 12.3 m Data Quality Note Height was partially estimated using visual scale. This may be approximate. Data Quality Note Text was extracted using optical character recognition. This may introduce artifacts or misreads.

Renders#

  • Rendering of building from page 54 of the file '2024-12-23 - Urban Design Brief - D07-12-24-0130'
  • Rendering of building from page 45 of the file '2024-12-23 - Urban Design Brief - D07-12-24-0130'
  • Rendering of building from page 53 of the file '2024-12-23 - Urban Design Brief - D07-12-24-0130'
  • Rendering of building from page 40 of the file '2024-12-23 - Urban Design Brief - D07-12-24-0130'
  • Rendering of building from page 6 of the file '2024-12-23 - Architectural Renders - D07-12-24-0130'
  • Rendering of building from page 42 of the file '2024-12-23 - Urban Design Brief - D07-12-24-0130'
  • Rendering of building from page 14 of the file '2024-12-23 - Architectural Renders - D07-12-24-0130'
  • Rendering of building from page 46 of the file '2024-12-23 - Urban Design Brief - D07-12-24-0130'
  • Rendering of building from page 16 of the file '2024-12-23 - Urban Design Brief - D07-12-24-0130'
  • Rendering of building from page 44 of the file '2024-12-23 - Urban Design Brief - D07-12-24-0130'
  • Rendering of building from page 15 of the file '2024-12-23 - Urban Design Brief - D07-12-24-0130'
  • Rendering of building from page 48 of the file '2024-12-23 - Urban Design Brief - D07-12-24-0130'
  • Rendering of building from page 9 of the file '2024-12-23 - Architectural Renders - D07-12-24-0130'
  • Rendering of building from page 3 of the file '2024-12-23 - Architectural Renders - D07-12-24-0130'
  • Rendering of building from page 50 of the file '2024-12-23 - Urban Design Brief - D07-12-24-0130'
  • Rendering of building from page 7 of the file '2024-12-23 - Architectural Renders - D07-12-24-0130'
  • Rendering of building from page 49 of the file '2024-12-23 - Urban Design Brief - D07-12-24-0130'
  • Rendering of building from page 2 of the file '2024-12-23 - Architectural Renders - D07-12-24-0130'
  • Rendering of building from page 4 of the file '2024-12-23 - Architectural Renders - D07-12-24-0130'
  • Rendering of building from page 11 of the file '2024-12-23 - Architectural Renders - D07-12-24-0130'
  • Rendering of building from page 15 of the file '2024-12-23 - Urban Design Brief - D07-12-24-0130'
  • Rendering of building from page 52 of the file '2024-12-23 - Urban Design Brief - D07-12-24-0130'
  • Rendering of building from page 20 of the file '2024-12-23 - Urban Design Brief - D07-12-24-0130'
  • Rendering of building from page 19 of the file '2024-12-23 - Urban Design Brief - D07-12-24-0130'
  • Rendering of building from page 43 of the file '2024-12-23 - Urban Design Brief - D07-12-24-0130'
  • Rendering of building from page 47 of the file '2024-12-23 - Urban Design Brief - D07-12-24-0130'
  • Rendering of building from page 51 of the file '2024-12-23 - Urban Design Brief - D07-12-24-0130'
  • Rendering of building from page 12 of the file '2024-12-23 - Architectural Renders - D07-12-24-0130'
  • Rendering of building from page 14 of the file '2024-12-23 - Urban Design Brief - D07-12-24-0130'
  • Rendering of building from page 54 of the file '2024-12-23 - Urban Design Brief - D07-12-24-0130'
  • Rendering of building from page 45 of the file '2024-12-23 - Urban Design Brief - D07-12-24-0130'
  • Rendering of building from page 53 of the file '2024-12-23 - Urban Design Brief - D07-12-24-0130'
  • Rendering of building from page 40 of the file '2024-12-23 - Urban Design Brief - D07-12-24-0130'
  • Rendering of building from page 6 of the file '2024-12-23 - Architectural Renders - D07-12-24-0130'
  • Rendering of building from page 42 of the file '2024-12-23 - Urban Design Brief - D07-12-24-0130'
  • Rendering of building from page 14 of the file '2024-12-23 - Architectural Renders - D07-12-24-0130'
  • Rendering of building from page 46 of the file '2024-12-23 - Urban Design Brief - D07-12-24-0130'
  • Rendering of building from page 16 of the file '2024-12-23 - Urban Design Brief - D07-12-24-0130'
  • Rendering of building from page 44 of the file '2024-12-23 - Urban Design Brief - D07-12-24-0130'
  • Rendering of building from page 15 of the file '2024-12-23 - Urban Design Brief - D07-12-24-0130'
  • Rendering of building from page 48 of the file '2024-12-23 - Urban Design Brief - D07-12-24-0130'
  • Rendering of building from page 9 of the file '2024-12-23 - Architectural Renders - D07-12-24-0130'
  • Rendering of building from page 3 of the file '2024-12-23 - Architectural Renders - D07-12-24-0130'
  • Rendering of building from page 50 of the file '2024-12-23 - Urban Design Brief - D07-12-24-0130'
  • Rendering of building from page 7 of the file '2024-12-23 - Architectural Renders - D07-12-24-0130'
  • Rendering of building from page 49 of the file '2024-12-23 - Urban Design Brief - D07-12-24-0130'
  • Rendering of building from page 2 of the file '2024-12-23 - Architectural Renders - D07-12-24-0130'
  • Rendering of building from page 4 of the file '2024-12-23 - Architectural Renders - D07-12-24-0130'
  • Rendering of building from page 11 of the file '2024-12-23 - Architectural Renders - D07-12-24-0130'
  • Rendering of building from page 15 of the file '2024-12-23 - Urban Design Brief - D07-12-24-0130'
  • Rendering of building from page 52 of the file '2024-12-23 - Urban Design Brief - D07-12-24-0130'
  • Rendering of building from page 20 of the file '2024-12-23 - Urban Design Brief - D07-12-24-0130'
  • Rendering of building from page 19 of the file '2024-12-23 - Urban Design Brief - D07-12-24-0130'
  • Rendering of building from page 43 of the file '2024-12-23 - Urban Design Brief - D07-12-24-0130'
  • Rendering of building from page 47 of the file '2024-12-23 - Urban Design Brief - D07-12-24-0130'
  • Rendering of building from page 51 of the file '2024-12-23 - Urban Design Brief - D07-12-24-0130'
  • Rendering of building from page 12 of the file '2024-12-23 - Architectural Renders - D07-12-24-0130'
  • Rendering of building from page 14 of the file '2024-12-23 - Urban Design Brief - D07-12-24-0130'

Location#

Select a marker to view the address.

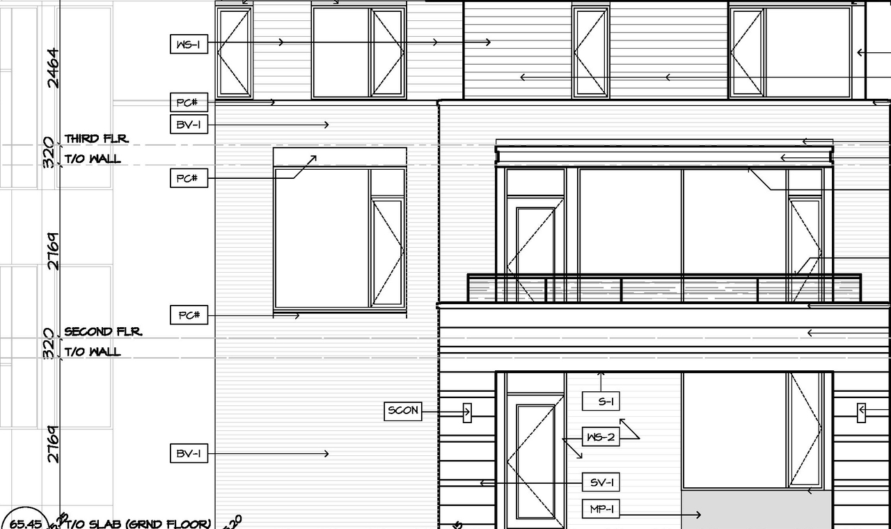
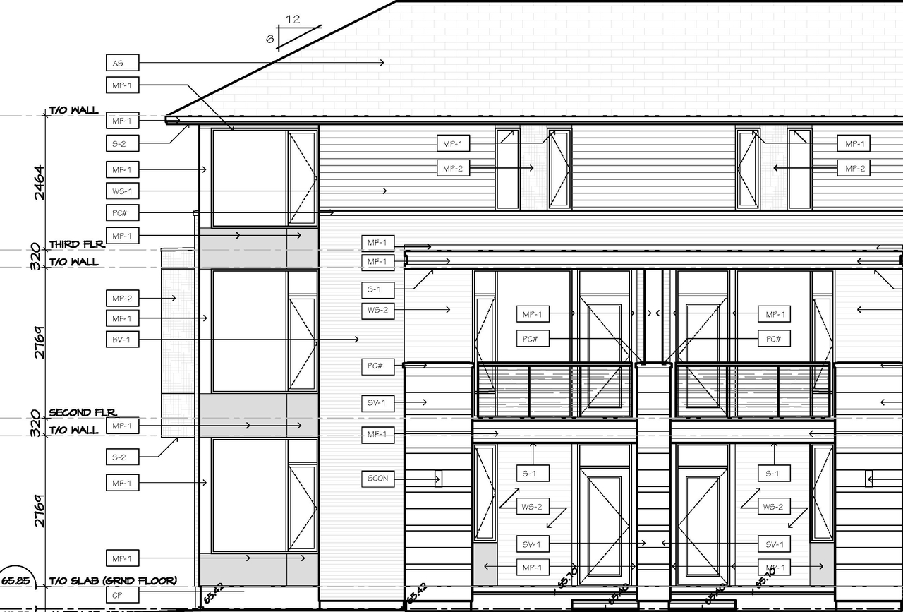
Site Plans, Elevations and Floor Plans#

  • Image from page 31 of the file '2024-10-18 - Urban Design Brief - D07-12-24-0130'
  • Image from page 26 of the file '2024-10-18 - Urban Design Brief - D07-12-24-0130'
  • Image from page 31 of the file '2024-10-18 - Urban Design Brief - D07-12-24-0130'
  • Image from page 32 of the file '2024-10-18 - Urban Design Brief - D07-12-24-0130'
  • Image from page 27 of the file '2024-10-18 - Urban Design Brief - D07-12-24-0130'
  • Image from page 33 of the file '2024-12-23 - Urban Design Brief - D07-12-24-0130'
  • Image from page 32 of the file '2024-12-23 - Urban Design Brief - D07-12-24-0130'
  • Image from page 27 of the file '2024-12-23 - Urban Design Brief - D07-12-24-0130'
  • Image from page 38 of the file '2024-12-23 - Urban Design Brief - D07-12-24-0130'
  • Image from page 37 of the file '2024-12-23 - Urban Design Brief - D07-12-24-0130'
  • Image from page 28 of the file '2024-10-18 - Urban Design Brief - D07-12-24-0130'
  • Image from page 35 of the file '2024-10-18 - Urban Design Brief - D07-12-24-0130'
  • Image from page 28 of the file '2024-12-23 - Urban Design Brief - D07-12-24-0130'
  • Image from page 29 of the file '2024-10-18 - Urban Design Brief - D07-12-24-0130'
  • Image from page 27 of the file '2024-12-23 - Urban Design Brief - D07-12-24-0130'
  • Image from page 27 of the file '2024-12-23 - Urban Design Brief - D07-12-24-0130'
  • Image from page 27 of the file '2024-12-23 - Urban Design Brief - D07-12-24-0130'
  • Image from page 37 of the file '2024-10-18 - Urban Design Brief - D07-12-24-0130'
  • Image from page 35 of the file '2024-12-23 - Urban Design Brief - D07-12-24-0130'
  • Image from page 31 of the file '2024-10-18 - Urban Design Brief - D07-12-24-0130'
  • Image from page 38 of the file '2024-12-23 - Urban Design Brief - D07-12-24-0130'
  • Image from page 35 of the file '2024-12-23 - Urban Design Brief - D07-12-24-0130'
  • Image from page 26 of the file '2024-10-18 - Urban Design Brief - D07-12-24-0130'
  • Image from page 32 of the file '2024-12-23 - Urban Design Brief - D07-12-24-0130'
  • Image from page 38 of the file '2024-12-23 - Urban Design Brief - D07-12-24-0130'
  • Image from page 27 of the file '2024-12-23 - Urban Design Brief - D07-12-24-0130'
  • Image from page 31 of the file '2024-12-23 - Urban Design Brief - D07-12-24-0130'
  • Image from page 32 of the file '2024-12-23 - Urban Design Brief - D07-12-24-0130'
  • Image from page 27 of the file '2024-12-23 - Urban Design Brief - D07-12-24-0130'
  • Image from page 29 of the file '2024-12-23 - Urban Design Brief - D07-12-24-0130'
  • Image from page 32 of the file '2024-12-23 - Urban Design Brief - D07-12-24-0130'
  • Image from page 32 of the file '2024-12-23 - Urban Design Brief - D07-12-24-0130'
  • Image from page 31 of the file '2024-12-23 - Urban Design Brief - D07-12-24-0130'
  • Image from page 34 of the file '2024-10-18 - Urban Design Brief - D07-12-24-0130'
  • Image from page 33 of the file '2024-12-23 - Urban Design Brief - D07-12-24-0130'
  • Image from page 27 of the file '2024-10-18 - Urban Design Brief - D07-12-24-0130'
  • Image from page 29 of the file '2024-12-23 - Urban Design Brief - D07-12-24-0130'
  • Image from page 31 of the file '2024-12-23 - Urban Design Brief - D07-12-24-0130'
  • Image from page 34 of the file '2024-12-23 - Urban Design Brief - D07-12-24-0130'
  • Image from page 28 of the file '2024-12-23 - Urban Design Brief - D07-12-24-0130'
  • Image from page 30 of the file '2024-12-23 - Urban Design Brief - D07-12-24-0130'
  • Image from page 29 of the file '2024-10-18 - Urban Design Brief - D07-12-24-0130'
  • Image from page 33 of the file '2024-10-18 - Urban Design Brief - D07-12-24-0130'
  • Image from page 29 of the file '2024-10-18 - Urban Design Brief - D07-12-24-0130'
  • Image from page 33 of the file '2024-12-23 - Urban Design Brief - D07-12-24-0130'
  • Image from page 27 of the file '2024-10-18 - Urban Design Brief - D07-12-24-0130'
  • Image from page 28 of the file '2024-12-23 - Urban Design Brief - D07-12-24-0130'
  • Image from page 17 of the file '2024-12-23 - Urban Design Brief - D07-12-24-0130'
  • Construction site plan for project from page 22 of the file '2024-12-23 - Urban Design Brief - D07-12-24-0130'
  • Construction site plan for project from page 26 of the file '2024-12-23 - Urban Design Brief - D07-12-24-0130'
  • Construction site plan for project from page 25 of the file '2024-12-23 - Urban Design Brief - D07-12-24-0130'
  • Construction site plan for project from page 21 of the file '2024-12-23 - Urban Design Brief - D07-12-24-0130'
  • Construction site plan for project from page 20 of the file '2024-10-18 - Urban Design Brief - D07-12-24-0130'
  • Construction site plan for project from page 9 of the file '2024-12-23 - Urban Design Brief - D07-12-24-0130'
  • Construction site plan for project from page 6 of the file '2024-12-23 - Urban Design Brief - D07-12-24-0130'
  • Construction site plan for project from page 10 of the file '2024-12-23 - Urban Design Brief - D07-12-24-0130'
  • Floor plan for project from page 27 of the file '2024-12-23 - Urban Design Brief - D07-12-24-0130'
  • Floor plan for project from page 29 of the file '2024-12-23 - Urban Design Brief - D07-12-24-0130'
  • Image from page 31 of the file '2024-10-18 - Urban Design Brief - D07-12-24-0130'
  • Image from page 26 of the file '2024-10-18 - Urban Design Brief - D07-12-24-0130'
  • Image from page 31 of the file '2024-10-18 - Urban Design Brief - D07-12-24-0130'
  • Image from page 32 of the file '2024-10-18 - Urban Design Brief - D07-12-24-0130'
  • Image from page 27 of the file '2024-10-18 - Urban Design Brief - D07-12-24-0130'
  • Image from page 33 of the file '2024-12-23 - Urban Design Brief - D07-12-24-0130'
  • Image from page 32 of the file '2024-12-23 - Urban Design Brief - D07-12-24-0130'
  • Image from page 27 of the file '2024-12-23 - Urban Design Brief - D07-12-24-0130'
  • Image from page 38 of the file '2024-12-23 - Urban Design Brief - D07-12-24-0130'
  • Image from page 37 of the file '2024-12-23 - Urban Design Brief - D07-12-24-0130'
  • Image from page 28 of the file '2024-10-18 - Urban Design Brief - D07-12-24-0130'
  • Image from page 35 of the file '2024-10-18 - Urban Design Brief - D07-12-24-0130'
  • Image from page 28 of the file '2024-12-23 - Urban Design Brief - D07-12-24-0130'
  • Image from page 29 of the file '2024-10-18 - Urban Design Brief - D07-12-24-0130'
  • Image from page 27 of the file '2024-12-23 - Urban Design Brief - D07-12-24-0130'
  • Image from page 27 of the file '2024-12-23 - Urban Design Brief - D07-12-24-0130'
  • Image from page 27 of the file '2024-12-23 - Urban Design Brief - D07-12-24-0130'
  • Image from page 37 of the file '2024-10-18 - Urban Design Brief - D07-12-24-0130'
  • Image from page 35 of the file '2024-12-23 - Urban Design Brief - D07-12-24-0130'
  • Image from page 31 of the file '2024-10-18 - Urban Design Brief - D07-12-24-0130'
  • Image from page 38 of the file '2024-12-23 - Urban Design Brief - D07-12-24-0130'
  • Image from page 35 of the file '2024-12-23 - Urban Design Brief - D07-12-24-0130'
  • Image from page 26 of the file '2024-10-18 - Urban Design Brief - D07-12-24-0130'
  • Image from page 32 of the file '2024-12-23 - Urban Design Brief - D07-12-24-0130'
  • Image from page 38 of the file '2024-12-23 - Urban Design Brief - D07-12-24-0130'
  • Image from page 27 of the file '2024-12-23 - Urban Design Brief - D07-12-24-0130'
  • Image from page 31 of the file '2024-12-23 - Urban Design Brief - D07-12-24-0130'
  • Image from page 32 of the file '2024-12-23 - Urban Design Brief - D07-12-24-0130'
  • Image from page 27 of the file '2024-12-23 - Urban Design Brief - D07-12-24-0130'
  • Image from page 29 of the file '2024-12-23 - Urban Design Brief - D07-12-24-0130'
  • Image from page 32 of the file '2024-12-23 - Urban Design Brief - D07-12-24-0130'
  • Image from page 32 of the file '2024-12-23 - Urban Design Brief - D07-12-24-0130'
  • Image from page 31 of the file '2024-12-23 - Urban Design Brief - D07-12-24-0130'
  • Image from page 34 of the file '2024-10-18 - Urban Design Brief - D07-12-24-0130'
  • Image from page 33 of the file '2024-12-23 - Urban Design Brief - D07-12-24-0130'
  • Image from page 27 of the file '2024-10-18 - Urban Design Brief - D07-12-24-0130'
  • Image from page 29 of the file '2024-12-23 - Urban Design Brief - D07-12-24-0130'
  • Image from page 31 of the file '2024-12-23 - Urban Design Brief - D07-12-24-0130'
  • Image from page 34 of the file '2024-12-23 - Urban Design Brief - D07-12-24-0130'
  • Image from page 28 of the file '2024-12-23 - Urban Design Brief - D07-12-24-0130'
  • Image from page 30 of the file '2024-12-23 - Urban Design Brief - D07-12-24-0130'
  • Image from page 29 of the file '2024-10-18 - Urban Design Brief - D07-12-24-0130'
  • Image from page 33 of the file '2024-10-18 - Urban Design Brief - D07-12-24-0130'
  • Image from page 29 of the file '2024-10-18 - Urban Design Brief - D07-12-24-0130'
  • Image from page 33 of the file '2024-12-23 - Urban Design Brief - D07-12-24-0130'
  • Image from page 27 of the file '2024-10-18 - Urban Design Brief - D07-12-24-0130'
  • Image from page 28 of the file '2024-12-23 - Urban Design Brief - D07-12-24-0130'
  • Image from page 17 of the file '2024-12-23 - Urban Design Brief - D07-12-24-0130'
  • Construction site plan for project from page 22 of the file '2024-12-23 - Urban Design Brief - D07-12-24-0130'
  • Construction site plan for project from page 26 of the file '2024-12-23 - Urban Design Brief - D07-12-24-0130'
  • Construction site plan for project from page 25 of the file '2024-12-23 - Urban Design Brief - D07-12-24-0130'
  • Construction site plan for project from page 21 of the file '2024-12-23 - Urban Design Brief - D07-12-24-0130'
  • Construction site plan for project from page 20 of the file '2024-10-18 - Urban Design Brief - D07-12-24-0130'
  • Construction site plan for project from page 9 of the file '2024-12-23 - Urban Design Brief - D07-12-24-0130'
  • Construction site plan for project from page 6 of the file '2024-12-23 - Urban Design Brief - D07-12-24-0130'
  • Construction site plan for project from page 10 of the file '2024-12-23 - Urban Design Brief - D07-12-24-0130'
  • Floor plan for project from page 27 of the file '2024-12-23 - Urban Design Brief - D07-12-24-0130'
  • Floor plan for project from page 29 of the file '2024-12-23 - Urban Design Brief - D07-12-24-0130'

Additional Information#

Date Initiated2024-10-18
WardWard 17 - Shawn Menard
All Addresses295 Deschatelets
355 Deschatelets

Documents#

TypeDocument
Application Summary2025-01-15 - Application Summary - D07-12-24-0130
Architectural Plans2025-01-08 - Building Elevations - D07-12-24-0130
Architectural Plans2024-12-23 - Site Plan - Block 29 - D07-12-24-0130
Architectural Plans2024-12-23 - Site Plan - Block 28 - D07-12-24-0130
Architectural Plans2024-12-23 - Preliminary Construction Management Plan - D07-12-24-0130
Architectural Plans2024-12-23 - Plan 4R-30796 - D07-12-24-0130
Architectural Plans2024-12-23 - Plan 4M-1596 - D07-12-24-0130
Architectural Plans2024-12-23 - Overall Landscape Plan - D07-12-24-0130
Architectural Plans2024-12-23 - General Plan of Services - Block 29 - D07-12-24-0130
Architectural Plans2024-12-23 - General Plan of Services - Block 28 - D07-12-24-0130
Architectural Plans2024-12-23 - Erosion, Sediment Control and Removals Plan - Block 29 - D07-12-24-0130
Architectural Plans2024-12-23 - Erosion, Sediment control and Removals Plan - Block 28 - D07-12-24-0130
Architectural Plans2024-12-23 - Building Elevations - D07-12-24-0130
Architectural Plans2024-12-09 - Site Plan - Block 29 - D07-12-24-0130
Architectural Plans2024-12-09 - Site Plan - Block 28 - D07-12-24-0130
Architectural Plans2024-12-09 - Preliminary Construction Management Plan - D07-12-24-0130
Architectural Plans2024-12-09 - Planting Plan - Ph 2 and 3 (L2-B) - D07-12-24-0130
Architectural Plans2024-12-09 - Planting Plan - Ph 2 and 3 (L1-B) - D07-12-24-0130
Architectural Plans2024-12-09 - Overall Landscape Plan - D07-12-24-0130
Architectural Plans2024-12-09 - General Plan of Services - Block 29 - D07-12-24-0130
Architectural Plans2024-12-09 - General Plan of Services - Block 28 - D07-12-24-0130
Architectural Plans2024-12-09 - Erosion, Sediment Control and Removals Plan - Block 29 - D07-12-24-0130
Architectural Plans2024-12-09 - Erosion, Sediment Control and Removals Plan - Block 28 - D07-12-24-0130
Architectural Plans2024-12-09 - Building Elevations - D07-12-24-0130
Architectural Plans2024-10-18 - Site Plan - Block 29 - D07-12-24-0130
Architectural Plans2024-10-18 - Site Plan - Block 28 - D07-12-24-0130
Architectural Plans2024-10-18 - Revised Subdivision Planting Plans - D07-12-24-0130
Architectural Plans2024-10-18 - Preliminary Construction Management Plan - D07-12-24-0130
Architectural Plans2024-10-18 - Plan 4R-30796 - D07-12-24-0130
Architectural Plans2024-10-18 - Plan 4M-1596 - D07-12-24-0130
Architectural Plans2024-10-18 - General Plan of Services - Block 28 & 29 - D07-12-24-0130
Architectural Plans2024-10-18 - Architechtural Elevations - D07-12-24-0130
Architectural Plans2025-03-07 - General Plan of Services - D07-12-24-0130
Architectural Plans2025-05-27 - Site Plan - Block 29 - D07-12-24-0130
Architectural Plans2025-05-27 - Site Plan - Block 28 - D07-12-24-0130
Architectural Plans2025-05-27 - Overall Landscape Plan - D07-12-24-0130
Architectural Plans2025-06-12 - Site Plan 02 - D07-12-24-0130
Architectural Plans2025-06-12 - Site Plan 01 - D07-12-24-0130
Architectural Plans2025-06-12 - Overall Landscape Plan - D07-12-24-0130
Architectural Plans2025-06-20 - Site Plan - D07-12-24-0130 (2)
Architectural Plans2025-06-20 - Site Plan - D07-12-24-0130
Architectural Plans2025-07-11 - APPROVED Site Plan Block 29 - D07-12-24-0130
Architectural Plans2025-07-11 - APPROVED Site Plan Block 28 - D07-12-24-0130
Architectural Plans2025-07-11 - APPROVED Site Plan Approval Report - D07-12-24-0130
Architectural Plans2025-07-11 - APPROVED General Plan of Services Block 29 - D07-12-24-0130
Architectural Plans2025-07-11 - APPROVED General Plan of Services Block 28 - D07-12-24-0130
Architectural Plans2025-07-11 - APPROVED Erosion, Sediment Control & Removals Plan Block 29 - D07-12-24-0130
Architectural Plans2025-07-11 - APPROVED Erosion, Sediment Control & Removals Plan Block 28 - D07-12-24-0130
Architectural Plans2025-07-11 - APPROVED Elevations - D07-12-24-0130
Civil Engineering Report2025-03-07 - Civil Plan - D07-12-24-0130
Design Brief2024-12-23 - Urban Design Brief - D07-12-24-0130
Design Brief2024-12-09 - Urban Design Brief - D07-12-24-0130
Design Brief2024-10-18 - Urban Design Brief - D07-12-24-0130
Environmental2024-12-23 - Phase I-ESA Update - D07-12-24-0130
Environmental2025-07-11 - APPROVED Phase 1 ESA - D07-12-24-0130
Erosion And Sediment Control Plan2024-10-18 - Erosion & Sediment Control Plan - Block 28 & 29 - D07-12-24-0130
Geotechnical Report2024-12-23 - Grading Plan - Block 29 - D07-12-24-0130
Geotechnical Report2024-12-23 - Grading Plan - Block 28 - D07-12-24-0130
Geotechnical Report2024-12-23 - Geotechnical Investigation - D07-12-24-0130
Geotechnical Report2024-12-09 - Grading Plan - Block 29 - D07-12-24-0130
Geotechnical Report2024-12-09 - Grading Plan - Block 28 - D07-12-24-0130
Geotechnical Report2024-10-18 - Grading Plan - Block 28 & 29 - D07-12-24-0130
Geotechnical Report2024-10-18 - Geotechnical Investigation - D07-12-24-0130
Geotechnical Report2025-04-10 - Grading Plan - D07-12-24-0130 (2)
Geotechnical Report2025-04-10 - Grading Plan - D07-12-24-0130
Geotechnical Report2025-05-27 - Grading Plan - Block 29 - D07-12-24-0130
Geotechnical Report2025-05-27 - Grading Plan - Block 28 - D07-12-24-0130
Geotechnical Report2025-06-12 - Grading Plan 2 - D07-12-24-0130
Geotechnical Report2025-06-12 - Grading Plan - D07-12-24-0130
Geotechnical Report2025-07-11 - APPROVED Grading Plan Block 29 - D07-12-24-0130
Geotechnical Report2025-07-11 - APPROVED Grading Plan Block 28 - D07-12-24-0130
Geotechnical Report2025-07-11 - APPROVED Geotechnical Report - D07-12-24-0130
Landscape Plan2024-12-23 - Landscape Details - D07-12-24-0130
Landscape Plan2024-12-09 - Landscape Details - D07-12-24-0130
Landscape Plan2025-05-27 - Landscape Details - D07-12-24-0130
Landscape Plan2025-06-12 - Landscape Details - D07-12-24-0130
Landscape Plan2025-07-11 - APPROVED Landscape Details - D07-12-24-0130
Noise Study2024-12-23 - Site Servicing, SWM, Noise, Erosion and Sediment Control Brief - D07-12-24-0130
Noise Study2024-12-23 - Noise Control Brief - D07-12-24-0130
Noise Study2024-12-09 - Noise Control Brief - D07-12-24-0130
Planning2024-12-23 - Zoning Confirmation Report - Block 29 - D07-12-24-0130
Planning2024-12-23 - Zoning Confirmation Report - Block 28 - D07-12-24-0130
Planning2024-12-23 - Planning Rationale - D07-12-24-0130
Planning2024-12-09 - Zoning Confirmation Report - Block 29 - D07-12-24-0130
Planning2024-12-09 - Zoning Confirmation Report - Block 28 - D07-12-24-0130
Planning2024-12-09 - Planning Rationale - D07-12-24-0130
Planning2024-10-18 - Zoning Conformation Report-Block29 - D07-12-24-0130
Planning2024-10-18 - Zoning Conformation Report-Block28 - D07-12-24-0130
Planning2024-10-18 - Planning Rationale - D07-12-24-0130
Rendering2024-12-23 - Architectural Renders - D07-12-24-0130
Rendering2024-12-09 - Architectural Renders - D07-12-24-0130
Rendering2024-10-18 - Architectural Renders - Blocks 29 and 28 - D07-12-24-0130
Site Servicing2024-12-23 - Site Servicing Brief - D07-12-24-0130
Site Servicing2024-12-09 - Site Servicing Brief - D07-12-24-0130
Site Servicing2024-10-18 - Site Servicing Brief - D07-12-24-0130
Site Servicing2025-03-07 - Site Servicing Brief - D07-12-24-0130
Site Servicing2025-04-10 - Site Servicing Brief - D07-12-24-0130
Site Servicing2025-07-11 - APPROVED Site Servicing Brief - D07-12-24-0130
Transportation Analysis2024-12-23 - Transportation Impact Assessment - D07-12-24-0130
Transportation Analysis2024-10-18 - Transportation Impact Assessment - D07-12-24-0130
Tree Information and Conservation2024-12-23 - Tree Conservation Plan - Block 30 - D07-12-24-0130
Tree Information and Conservation2024-12-23 - Landscape and Tree Conservation Plan - Block 29 - D07-12-24-0130
Tree Information and Conservation2024-12-23 - Landscape and Tree Conservation Plan - Block 28 - D07-12-24-0130
Tree Information and Conservation2024-12-23 - Geotechnical Tree Planting Recommendations - D07-12-24-0130
Tree Information and Conservation2024-12-09 - Tree Conservation Plan - Block 30 - D07-12-24-0130
Tree Information and Conservation2024-12-09 - Landscape and Tree Conservation Plan - Block 29 - D07-12-24-0130
Tree Information and Conservation2024-12-09 - Landscape and Tree Conservation Plan - Block 28 - D07-12-24-0130
Tree Information and Conservation2024-10-18 - Landscape Plan & Tree Conservation Plan, Details - Block 28 & 29 - D07-12-24-0130
Tree Information and Conservation2024-10-18 - Geotechnical Tree Planting Recommendations - D07-12-24-0130
Tree Information and Conservation2025-03-07 - Proposed Trees Review Plan - D07-12-24-0130
Tree Information and Conservation2025-05-27 - Landscape Plan & Tree Conservation Plan - Block 29 - D07-12-24-0130
Tree Information and Conservation2025-05-27 - Landscape Plan & Tree Conservation Plan - Block 28 - D07-12-24-0130
Tree Information and Conservation2025-06-12 - Landscape and Tree Conservation Plan_FT_L2 - D07-12-24-0130
Tree Information and Conservation2025-06-12 - Landscape and Tree Conservation Plan_FT_L1 - D07-12-24-0130
Tree Information and Conservation2025-06-12 - Landscape and Tree Conservation Plan - D07-12-24-0130
Tree Information and Conservation2025-07-11 - APPROVED Landscape and Tree Conservation Plan 03 - D07-12-24-0130
Tree Information and Conservation2025-07-11 - APPROVED Landscape and Tree Conservation Plan 02 - D07-12-24-0130
Tree Information and Conservation2025-07-11 - APPROVED Landscape and Tree Conservation Plan 01 - D07-12-24-0130
2024-12-23 - Planting Plan Phase 2 and 3 - D07-12-24-0130
2024-12-23 - Planting Plan Phase 2 & 3 - D07-12-24-0130
2024-12-23 - Master Servicing Study Update - D07-12-24-0130
2024-12-23 - Heritage Impact Assessment - D07-12-24-0130
2024-10-18 - Phase I - Environmental Site Assessment Update - D07-12-24-0130
2024-10-18 - Heritage Impact Assessment Addendum H - D07-12-24-0130
2024-10-18 - Greystone Yield Estimates 2024 - D07-12-24-0130
2024-10-18 - Area Certificate Phase 2 - D07-12-24-0130
2025-06-12 - SPAR Draft - D07-12-24-0130
2025-07-11 - APPROVED Master Servicing Study - D07-12-24-0130
2025-07-11 - APPROVED Heritage Impact Assessment - D07-12-24-0130