Ottawa Development Projects

384 Arlington Ave.#

Last updated: 2026-03-14 · ID: D07-12-24-0127

Summary#

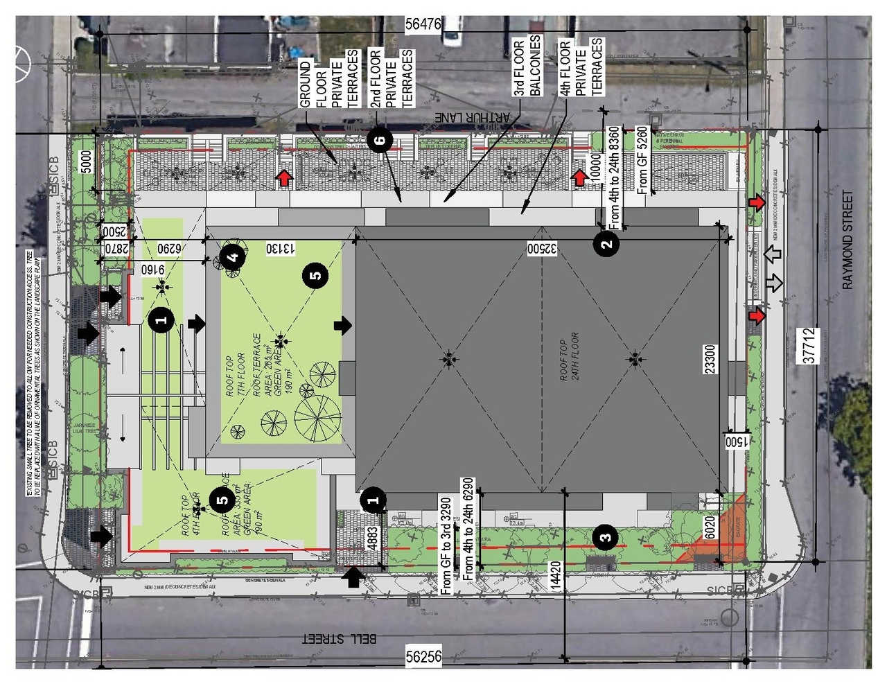
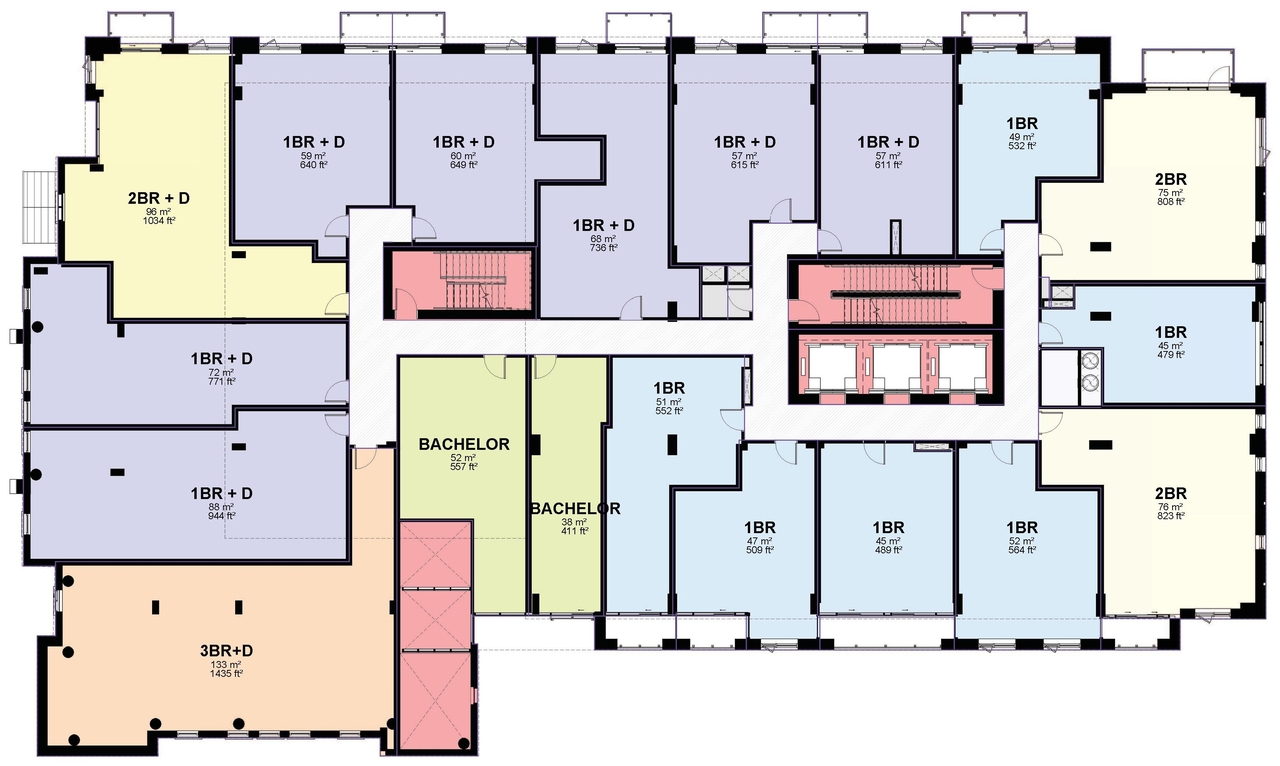
A 24-storey residential high-rise apartment building is proposed. 296 residential units.

Status
File Pending (Application File Pending)

Building Scale (Max.) Based on elevation drawings. Values may be approximate. See sources for exact figures.
High-rise · 24 storeys · 79.4 m

Renders#

Location#

Select a marker to view the address.

Site Plans, Elevations and Floor Plans#

Additional Information#

Date Initiated2024-10-11
WardWard 14 - Ariel Troster

Documents#

TypeDocument
Application Summary2024-12-19 - Application Summary - D07-12-24-0127
Architectural Plans2024-12-09 - Site Plan - D07-12-24-0127
Architectural Plans2024-12-09 - Elevations - D07-12-24-0127
Architectural Plans2024-10-11 - Site Plan with Landscape Plan - D07-12-24-0127
Architectural Plans2024-10-11 - Site Plan - D07-12-24-0127
Architectural Plans2024-10-11 - Preliminary Construction Management Plan - D07-12-24-0127
Architectural Plans2024-10-11 - Memo - Geotechnical Review of Grading Plan & Site Servicing - D07-12-24-0127
Architectural Plans2024-10-11 - Elevations - D07-12-24-0127
Architectural Plans2025-10-20 - Site Plan with Landscape Plan - D07-12-24-0127
Architectural Plans2025-10-20 - Sheet Plans - D07-12-24-0127
Architectural Plans2025-10-20 - Building Elevations - D07-12-24-0127
Architectural Plans2026-01-15 - Building Elevations - D07-12-24-0127
Architectural Plans2026-03-12 - APPROVED Site Plan Approval Report - D07-12-24-0127
Architectural Plans2026-03-12 - APPROVED Site Plan & Landscape Plan - D07-12-24-0127
Architectural Plans2026-03-12 - APPROVED Sheet Plans - D07-12-24-0127
Architectural Plans2026-03-12 - APPROVED Geotechnical Review Grading Plan & Site Servicing - D07-12-24-0127
Architectural Plans2026-03-12 - APPROVED Building Elevations - D07-12-24-0127
Civil Engineering Report2024-10-11 - Civil Plans - D07-12-24-0127
Civil Engineering Report2025-10-20 - Civil Drawings - D07-12-24-0127
Design Brief2024-10-11 - Urban Design Brief - D07-12-24-0127
Electrical Plan2024-10-11 - Site Lighting Certificate Letter - D07-12-24-0127
Environmental2024-12-09 - Phase One ESA Addendum Letter - D07-12-24-0127
Environmental2024-12-09 - Phase One Environmental Site Assessment - D07-12-24-0127
Environmental2024-10-11 - Phase One ESA - Addendum Letter - D07-12-24-0127
Environmental2024-10-11 - Phase One Environmental Site Assessment - D07-12-24-0127
Floor Plan2025-10-20 - Floor Plan - D07-12-24-0127
Geotechnical Report2024-10-11 - Geotechnical Investigation - D07-12-24-0127
Landscape Plan2024-12-09 - Landscape Plans - D07-12-24-0127
Landscape Plan2024-10-11 - Landscape Plans & Details - D07-12-24-0127
Noise Study2024-10-11 - Roadway Traffic Noise Assessment - D07-12-24-0127
Noise Study2024-10-11 - Addendum - Roadway Traffic Noise Assessment - D07-12-24-0127
Noise Study2026-03-12 - APPROVED Roadway Traffic Noise Assessment Addendum - D07-12-24-0127
Noise Study2026-03-12 - APPROVED Roadway Traffic Noise Assessment - D07-12-24-0127
Planning2024-12-09 - Zoning Confirmation Report - D07-12-24-0127
Planning2024-10-11 - Zoning Confirmation Report - D07-12-24-0127
Planning2025-10-20 - Zoning Stats - D07-12-24-0127
Shadow Study2024-10-11 - Shadow Analysis - D07-12-24-0127
Site Servicing2024-12-09 - Servicing Plan - D07-12-24-0127
Site Servicing2024-10-11 - Site Servicing and Stormwater Management Report - D07-12-24-0127
Site Servicing2025-10-20 - Servicing & Stormwater Management Report - D07-12-24-0127
Stormwater Management2026-03-12 - APPROVED Servicing & Stormwater Management Report - D07-12-24-0127
Surveying2024-10-11 - Topographic Plan of Survey - D07-12-24-0127
Transportation Analysis2024-10-11 - Transportation Impact Assessment - D07-12-24-0127
Tree Information and Conservation2024-10-11 - Tree Conservation Report - D07-12-24-0127
Tree Information and Conservation2026-03-12 - APPROVED Tree Conservation Report - D07-12-24-0127
Wind Study2024-10-11 - Pedestrian Level Wind Study - D07-12-24-0127
Wind Study2024-10-11 - Addendum Letter - Pedestrian Level Wind Study - D07-12-24-0127
Wind Study2026-03-12 - APPROVED Pedestrian Level Wind Study Addendum - D07-12-24-0127
Wind Study2026-03-12 - APPROVED Pedestrian Level Wind Study - D07-12-24-0127
2024-10-11 - Sewer CCTV Inspection Report - D07-12-24-0127
2024-10-11 - Heritage Impact Assessment - D07-12-24-0127
2024-10-11 - CCTV Sewer Inspection Photos - D07-12-24-0127
2025-10-20 - Statistics - D07-12-24-0127
2025-10-20 - Cover Letter - D07-12-24-0127
2026-03-12 - APPROVED Transportation Impact Assessment - D07-12-24-0127
2026-03-12 - APPROVED Phase One ESA Addendum Letter - D07-12-24-0127
2026-03-12 - APPROVED Phase One ESA - D07-12-24-0127
2026-03-12 - APPROVED Heritage Impact Assessment - D07-12-24-0127
2026-03-12 - APPROVED Geotechnical Investigation - D07-12-24-0127
2026-03-12 - APPROVED Civil Drawings - D07-12-24-0127