Ottawa Development Projects

125-135 Oshedinaa St.#

Last updated: 2025-12-09 · ID: D07-12-24-0126

Summary#

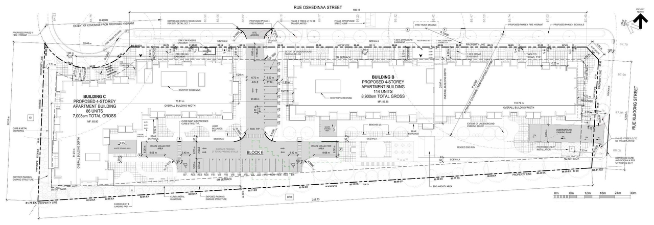
Two 4 storey rental apartment buildings with 200 rental units (114 and 86 units) total on a corner lot with most resident parking underground and all visitor parking at grade.

Status
Inactive (Notice of Decision Sent)

Building Scale (Max.) Based on elevation drawings. Values may be approximate. See sources for exact figures.
Mid-rise · 4 storeys · 18 m Data Quality Note Height was partially estimated using visual scale. This may be approximate.

Renders#

Location#

Select a marker to view the address.

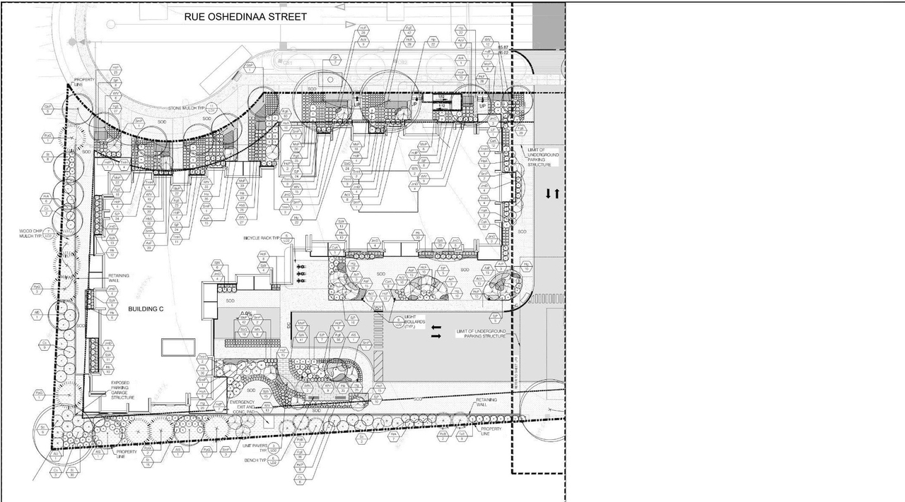
Site Plans, Elevations and Floor Plans#

Additional Information#

Date Initiated2024-10-11
WardWard 13 - Rawlson King
All Addresses125 Oshedinaa St.
135 Oshedinaa St.

Documents#

TypeDocument
Application Summary2024-12-05 - Application Summary_Bilingual - D07-12-24-0126
Architectural Plans2024-10-11 - West and North Elevations Building B - D07-12-24-0126
Architectural Plans2024-10-11 - Underground Parking Ramp Plan and Section - D07-12-24-0126
Architectural Plans2024-10-11 - Site Plan - D07-12-24-0126
Architectural Plans2024-10-11 - Plan 4M - D07-12-24-0126
Architectural Plans2024-10-11 - East and South Elevations Building B - D07-12-24-0126
Architectural Plans2024-10-11 - Building C South and West Elevations - D07-12-24-0126
Architectural Plans2024-10-11 - Building C North and East Elevations - D07-12-24-0126
Architectural Plans2024-10-11 - Architectural Cover Page - D07-12-24-0126
Architectural Plans2024-10-11 - Amenity Area Plan - D07-12-24-0126
Architectural Plans2025-02-18 - Preliminary Construction Management Plan - D07-12-24-0126
Architectural Plans2025-02-18 - Architectural Drawings - D07-12-24-0126
Architectural Plans2025-04-01 - Architectural Drawings - D07-12-24-0126
Architectural Plans2025-07-21 - APPROVED Site Plan Approval Report - D07-12-24-0126
Architectural Plans2025-07-22 - APPROVED Storm & Drainage Area Plan - D07-12-24-0126
Architectural Plans2025-07-22 - APPROVED Site Plan, Context, and Statistics - D07-12-24-0126
Architectural Plans2025-07-22 - APPROVED Sediment and Erosion Control Plan - D07-12-24-0126
Architectural Plans2025-07-22 - APPROVED Removals Plan - D07-12-24-0126
Architectural Plans2025-07-22 - APPROVED Notes & Legends Plan - D07-12-24-0126
Architectural Plans2025-07-22 - APPROVED General Plan of Services - D07-12-24-0126
Architectural Plans2025-07-22 - APPROVED General Plan - D07-12-24-0126
Architectural Plans2025-07-22 - APPROVED Elevations Building C 02 - D07-12-24-0126
Architectural Plans2025-07-22 - APPROVED Elevations Building C 01 - D07-12-24-0126
Architectural Plans2025-07-22 - APPROVED Elevations Building B 02 - D07-12-24-0126
Architectural Plans2025-07-22 - APPROVED Elevations Building B 01 - D07-12-24-0126
Architectural Plans2025-12-05 - REVISED Site Plan Approval Report - D07-12-24-0126
Civil Engineering Report2024-10-11 - Civil Engineering Plans - D07-12-24-0126
Civil Engineering Report2025-02-18 - Civil Engineering Plans - D07-12-24-0126
Civil Engineering Report2025-04-01 - Civil Engineering Drawings - D07-12-24-0126
Design Brief2024-10-11 - Design Brief - D07-12-24-0126
Environmental2024-10-11 - Phase 2 Environmental Site Assessment - D07-12-24-0126
Environmental2024-10-11 - Phase 1 Environmental Site Assessment - D07-12-24-0126
Environmental2024-10-11 - Environmental Noise Report - D07-12-24-0126
Environmental2025-07-22 - APPROVED Phase 2 ESA - D07-12-24-0126
Environmental2025-07-22 - APPROVED Phase 1 ESA - D07-12-24-0126
Environmental2025-07-22 - APPROVED Environmental Noise Assessment - D07-12-24-0126
Erosion And Sediment Control Plan2025-07-22 - APPROVED Erosion and Sediment Control Plan - D07-12-24-0126
Existing Conditions2024-10-11 - Existing Topo - D07-12-24-0126
Geotechnical Report2024-10-11 - Grading Letter to supplement the Geotechnical Investigation Report - D07-12-24-0126
Geotechnical Report2024-10-11 - Geotechnical Report - D07-12-24-0126
Geotechnical Report2024-10-11 - Geotechnical Reliance letter - D07-12-24-0126
Geotechnical Report2025-02-18 - Hydrogeological Study - D07-12-24-0126
Geotechnical Report2025-04-16 - HydroGeological Study - D07-12-24-0126
Geotechnical Report2025-07-22 - APPROVED Landscape Soil and Canopy Cover Plans - D07-12-24-0126
Geotechnical Report2025-07-22 - APPROVED Hydrogeological Study - D07-12-24-0126
Geotechnical Report2025-07-22 - APPROVED Grading Plan - D07-12-24-0126
Geotechnical Report2025-07-22 - APPROVED Geotechnical Investigation Report Phase 4 - D07-12-24-0126
Landscape Plan2024-11-25 - Landscape Plan - D07-12-24-0126
Landscape Plan2024-10-11 - Landscape Plans - D07-12-24-0126
Landscape Plan2025-02-18 - Landscape Plans - D07-12-24-0126
Landscape Plan2025-04-01 - Landscape Plans - D07-12-24-0126
Landscape Plan2025-07-22 - APPROVED Landscape Site Plan - D07-12-24-0126
Landscape Plan2025-07-22 - APPROVED Landscape Plan Building C - D07-12-24-0126
Landscape Plan2025-07-22 - APPROVED Landscape Plan Building B - D07-12-24-0126
Landscape Plan2025-07-22 - APPROVED Landscape Details LD 2 - D07-12-24-0126
Landscape Plan2025-07-22 - APPROVED Landscape Details LD 1 - D07-12-24-0126
Planning2024-10-11 - Zoning Confirmation Report - D07-12-24-0126
Rendering2025-04-01 - Rendering - D07-12-24-0126
Site Servicing2024-10-11 - Servicing Brief - D07-12-24-0126
Site Servicing2025-02-18 - Servicing Brief - D07-12-24-0126
Site Servicing2025-04-01 - Servicing Brief - D07-12-24-0126
Site Servicing2025-07-22 - APPROVED Servicing Brief - D07-12-24-0126
Stormwater Management2024-10-11 - Stormwater Management Infiltration Design Memo - D07-12-24-0126
Stormwater Management2024-10-11 - Stormwater Management Drawings Details - D07-12-24-0126
Stormwater Management2025-02-18 - SWM Infiltration Facility Design Drawings - D07-12-24-0126
Stormwater Management2025-02-18 - SWM Infiltration Design Memo - D07-12-24-0126
Transportation Analysis2024-10-11 - Transportation Technical Memo - D07-12-24-0126
Transportation Analysis2024-10-11 - TDM Checklists - D07-12-24-0126
Transportation Analysis2025-02-18 - Transportation Technical Memorandum - D07-12-24-0126
2024-10-11 - Waste and Recycling Detail - D07-12-24-0126
2024-10-11 - Stair and Curb Details - D07-12-24-0126
2024-10-11 - Slope Stability Assessment Report - D07-12-24-0126
2024-10-11 - Record of Site Condition - D07-12-24-0126
2024-10-11 - Phase 1 and 2 Environmental Site Assessment Reliance Agreement Letter - D07-12-24-01
2024-10-11 - Memo on PTTW Requirements - D07-12-24-0126
2024-10-11 - Bicycle Storage Details and Statistics - D07-12-24-0126
2024-10-11 - Additional Geotechnical Investigation - D07-12-24-0126
2025-07-22 - APPROVED Slope Stability Assessment Report - D07-12-24-0126
2025-07-22 - APPROVED Additional Geotechnical Investigation - D07-12-24-0126