Ottawa Development Projects

535 Legget Dr.#

Last updated: 2026-01-20 · ID: D07-12-24-0123

Summary#

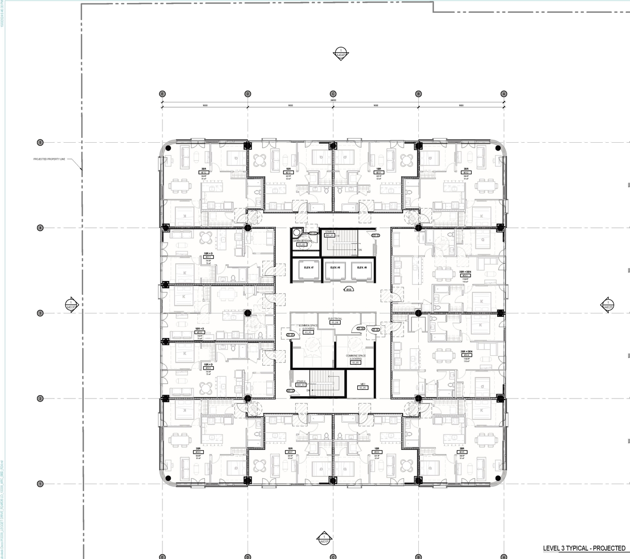
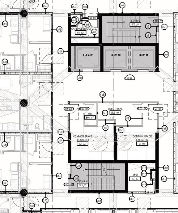
Office to Residential Conversion to 115 residential apartments with 400m2 ground floor office.

Status
Inactive (Approved - Agreement Signed, Registration Not Required)

Building Scale (Max.) Based on elevation drawings. Values may be approximate. See sources for exact figures.
High-rise · 10 storeys · 43.54 m

Renders#

Location#

Select a marker to view the address.

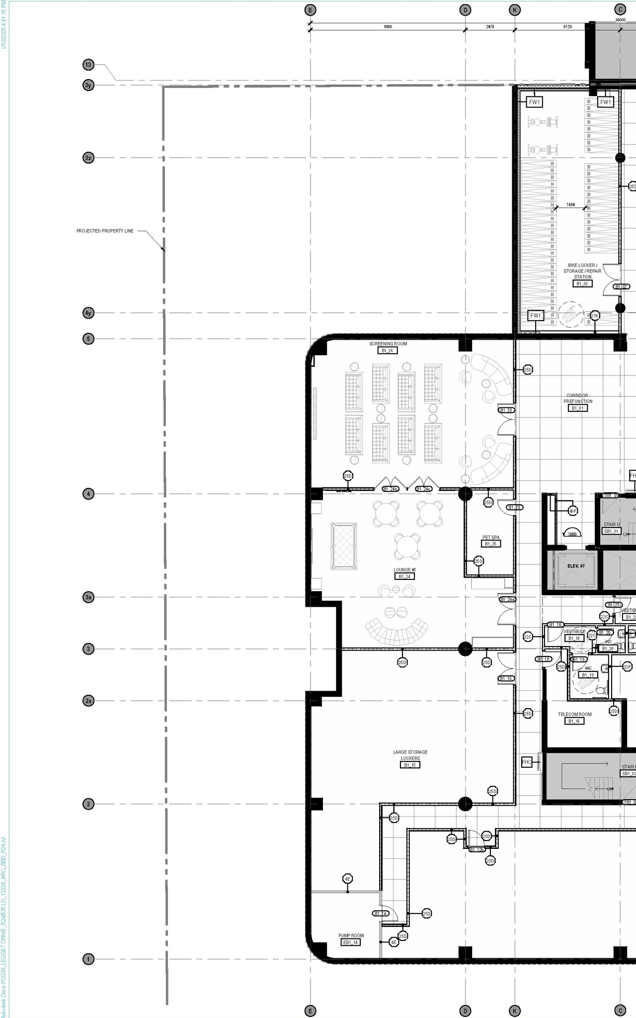
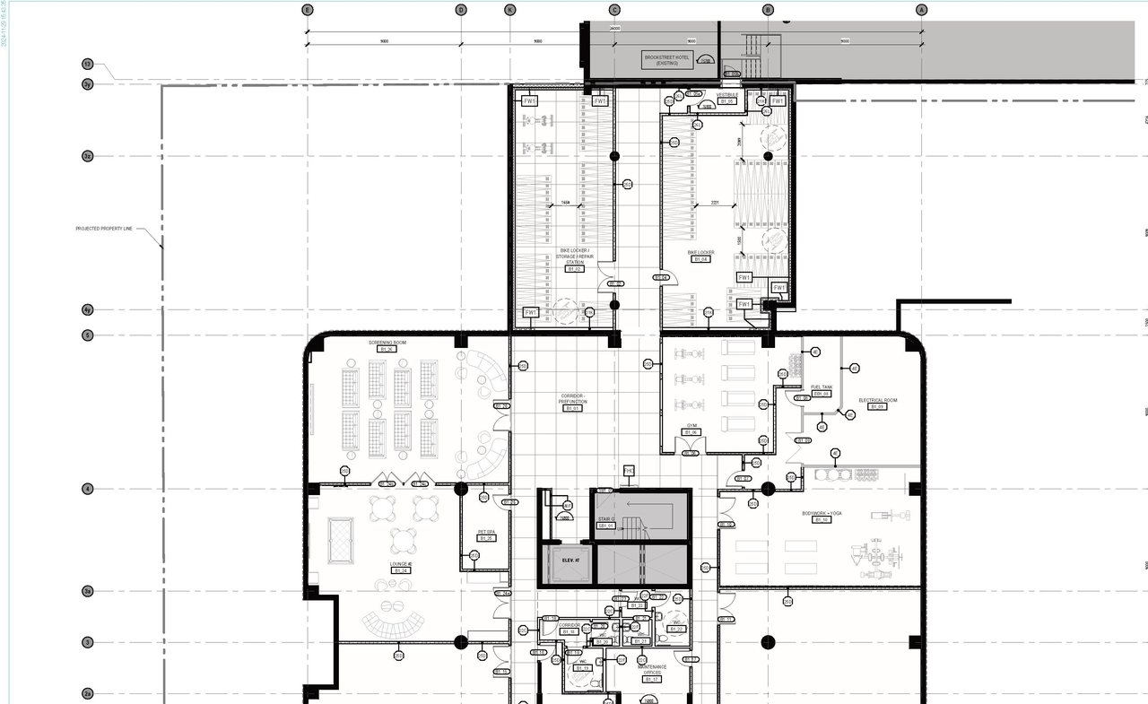
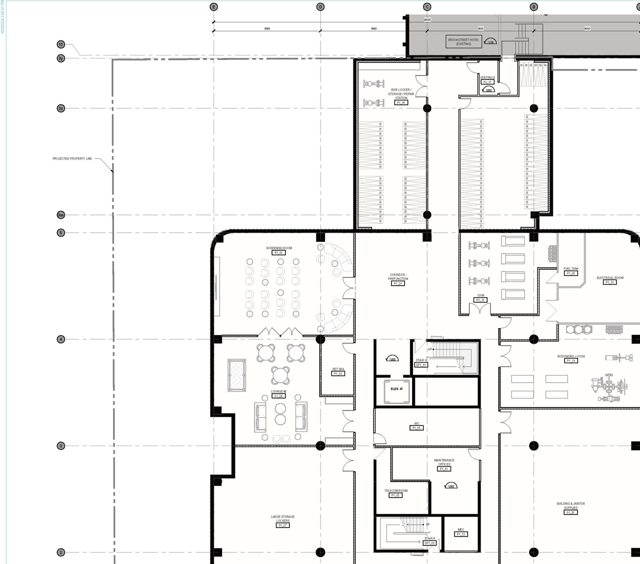
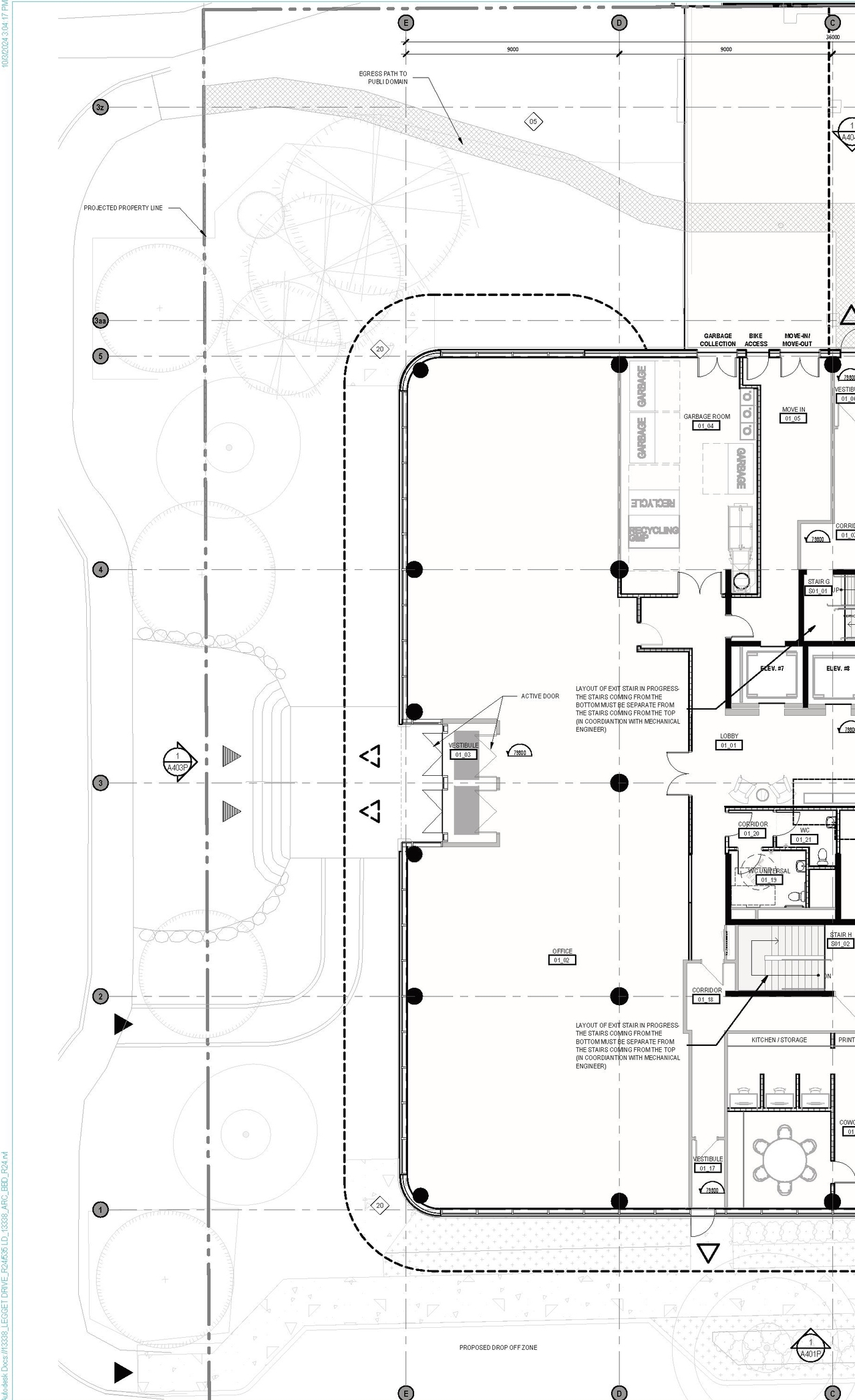
Site Plans, Elevations and Floor Plans#

Additional Information#

Date Initiated2024-10-09
WardWard 4 - Cathy Curry

Documents#

TypeDocument
Adequacy Of Public Services2025-01-17 - Serviceability Report - D07-12-24-0123
Application Summary2025-05-01 - Application Summary - D07-12-24-0123
Architectural Plans2025-01-17 - General Site Plan - Projected - D07-12-24-0123
Architectural Plans2025-01-17 - General Servicing Plan - D07-12-24-0123
Architectural Plans2025-01-17 - Architectural Plans - D07-12-24-0123
Architectural Plans2024-12-04 - GENERAL SITE PLAN -D07-12-24-0123
Architectural Plans2024-12-04 - GENERAL SERVICING PLAN - D07-12-24-0123
Architectural Plans2024-12-04 - Architectural Plans - D07-12-24-0123
Architectural Plans2024-10-09 - GENERAL SITE PLAN - PROJECTED - D07-12-24-0123
Architectural Plans2024-10-09 - General Site Plan Projected - D07-12-24-0123
Architectural Plans2024-10-09 - Architectural Drawings - D07-12-24-0123
Architectural Plans2025-06-02 - General servicing Plan - D07-12-24-0123
Architectural Plans2025-07-28 - APPROVED West Elevation - D07-12-24-0123
Architectural Plans2025-07-28 - APPROVED South Elevation - D07-12-24-0123
Architectural Plans2025-07-28 - APPROVED Site Plan Approval Report - D07-12-24-0123
Architectural Plans2025-07-28 - APPROVED North Elevation - D07-12-24-0123
Architectural Plans2025-07-28 - APPROVED General Site Plan - D07-12-24-0123
Architectural Plans2025-07-28 - APPROVED East Elevation - D07-12-24-0123
Architectural Plans2025-08-05 - General Servicing Plan - D07-12-24-0123
Architectural Plans2025-09-03 - APPROVED General Servicing Plan - D07-12-24-0123
Architectural Plans2026-01-18 - APPROVED Site Plan Approval Report - D07-12-24-0123
Design Brief2025-01-17 - Urban Design Brief - D07-12-24-0123
Design Brief2024-12-04 - URBAN DESIGN BRIEF BROCHURE - D07-12-24-0123
Design Brief2024-10-09 - URBAN DESIGN BRIEF BROCHURE - D07-12-24-0123
Environmental2024-10-09 - Phase II Environmental Site Assessment - D07-12-24-0123
Environmental2024-10-09 - Phase I Environmental Site Assessment - D07-12-24-0123
Erosion And Sediment Control Plan2025-01-17 - Erosion and Sediment Control Plan - D07-12-24-0123
Erosion And Sediment Control Plan2024-12-04 - EROSION AND SEDIMENT CONTROL PLAN - D07-12-24-0123
Erosion And Sediment Control Plan2025-08-05 - Erosion and Sediment Control Plan - D07-12-24-0123
Erosion And Sediment Control Plan2025-09-03 - APPROVED Erosion and Sediment Control Plan - D07-12-24-0123
Geotechnical Report2025-01-17 - Grading Plan - D07-12-24-0123
Geotechnical Report2024-12-04 - Grading Plan - D07-12-24-0123
Geotechnical Report2025-07-28 - APPROVED Grading Plan - D07-12-24-0123
Geotechnical Report2025-08-05 - Grading Plan - D07-12-24-0123
Landscape Plan2024-10-09 - Landscape Plans - D07-12-24-0123
Landscape Plan2025-07-28 - APPROVED Landscape Details - D07-12-24-0123-2
Landscape Plan2025-09-03 - APPROVED Landscape Plan - D07-12-24-0123
Noise Study2024-10-09 - Noise Impact Feasibility Report - D07-12-24-0123
Planning2025-01-17 - Zoning Confirmation Report - D07-12-24-0123
Planning2025-01-17 - Planning Rationale - D07-12-24-0123
Planning2024-12-04 - Zoning Confirmation Report - D07-12-24-0123
Planning2024-12-04 - Planning Rationale - D07-12-24-0123
Planning2024-10-09 - Planning Rationale - D07-12-24-0123
Site Servicing2024-12-04 - Servicing Report -D07-12-24-0123
Site Servicing2024-10-09 - Servicing Report - D07-12–24-0123
Site Servicing2025-08-05 - Servicing Report - D07-12-24-0123
Surveying2024-10-09 - Survey Plan - D07-12-24-0123
Transportation Analysis2024-10-09 - Transportation Impact Assessment - Letter - D07-12-24-0123
Tree Information and Conservation2025-01-17 - Landscape and Tree Conservation Plans - D07-12-24-0123
Tree Information and Conservation2024-12-04 - Tree Conservation Report - D07-12-24-0123
Tree Information and Conservation2025-07-28 - APPROVED Tree Conservation Plans - D07-12-24-0123
Tree Information and Conservation2025-08-05 - Tree Conservation Plans - D07-12-24-0123
2024-12-04 - Roof drainage declaration - D07-12-24-0123