110-116 York St./137-141 George St.#
Last updated: 2025-11-25 · ID: D07-12-24-0116
Summary#
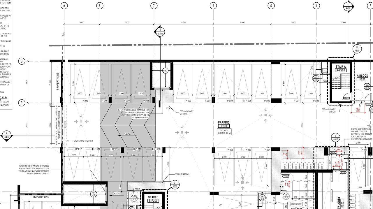
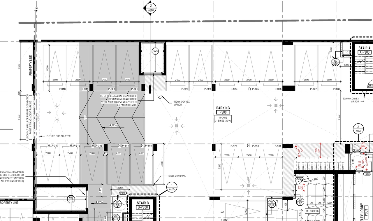
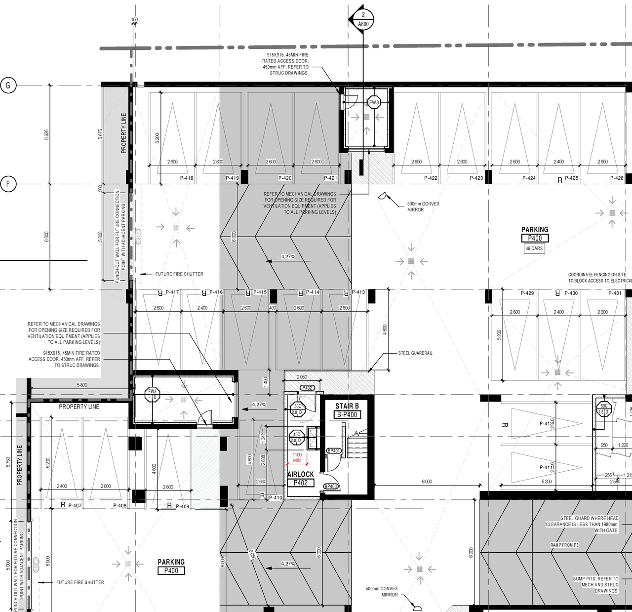
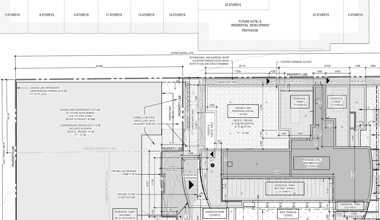
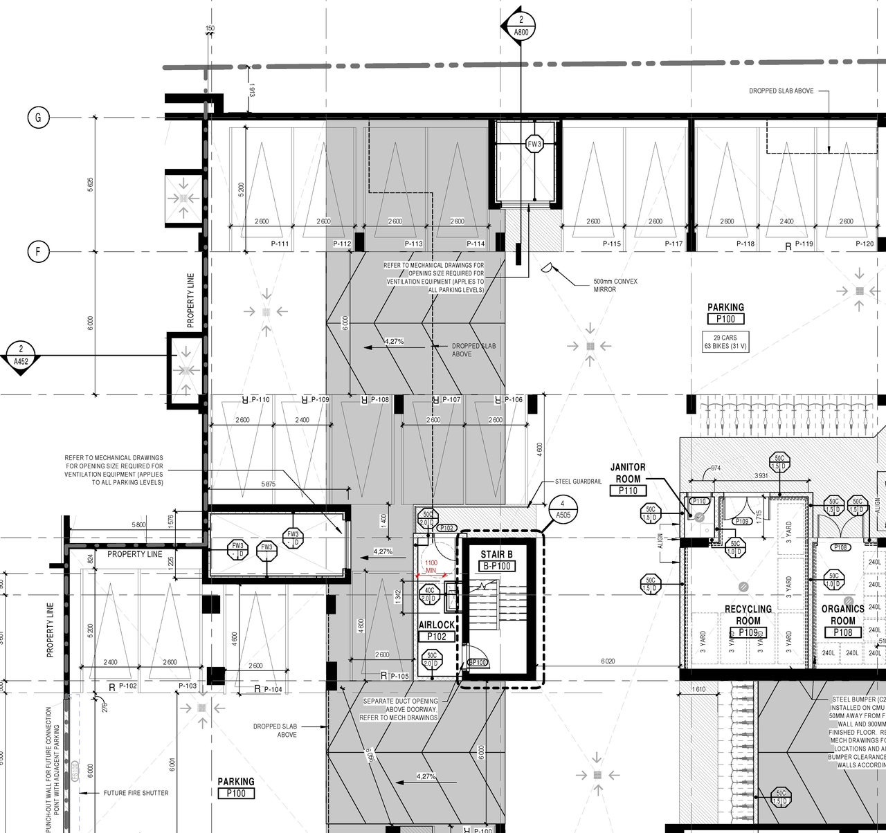
A Site Plan Control Revision application to construct a four-level underground parking garage, which will be shared by all uses located on the subject site.
Status
Inactive (Notice of Decision Sent)
Location#
Select a marker to view the address.
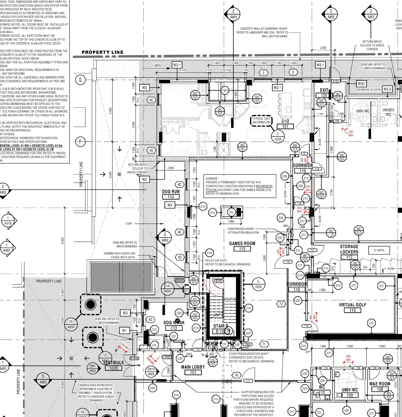
Site Plans, Elevations and Floor Plans#
Additional Information#
| Date Initiated | 2024-10-04 |
| Ward | Ward 12 - Stéphanie Plante |
| All Addresses | 110 York St. 116 York St. 137 George St. 141 George St. |

















