Ottawa Development Projects

370 Athlone Ave.#

Last updated: 2026-02-05 · ID: D07-12-24-0114

Summary#

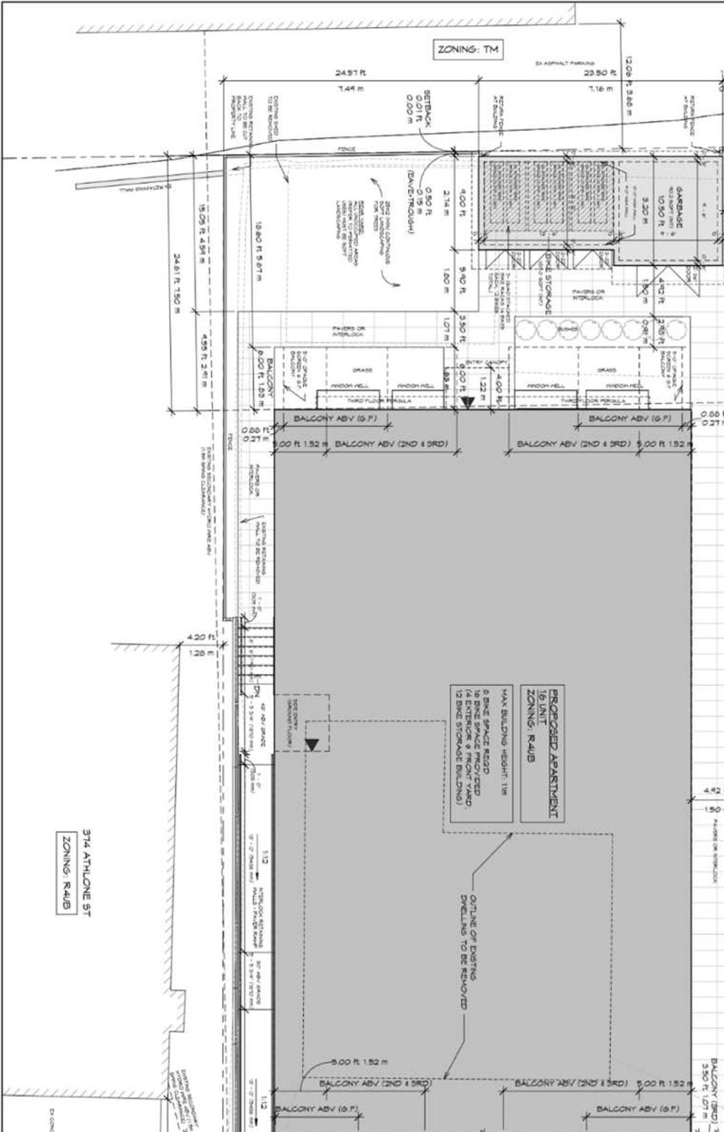
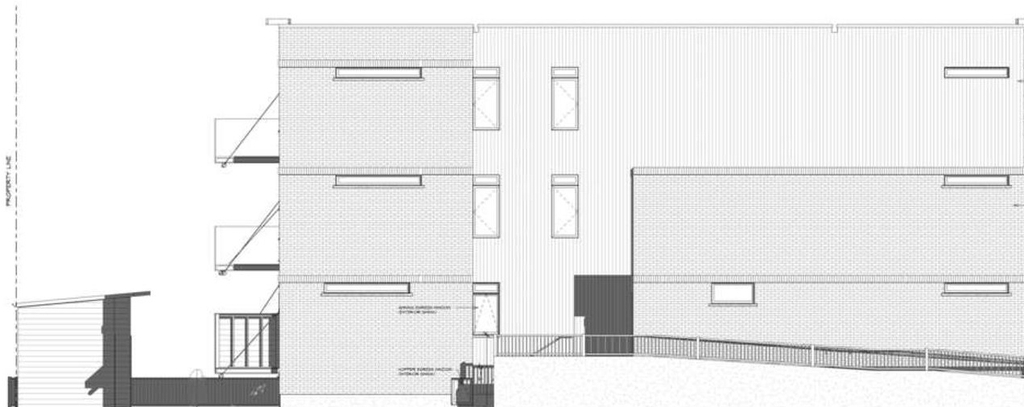
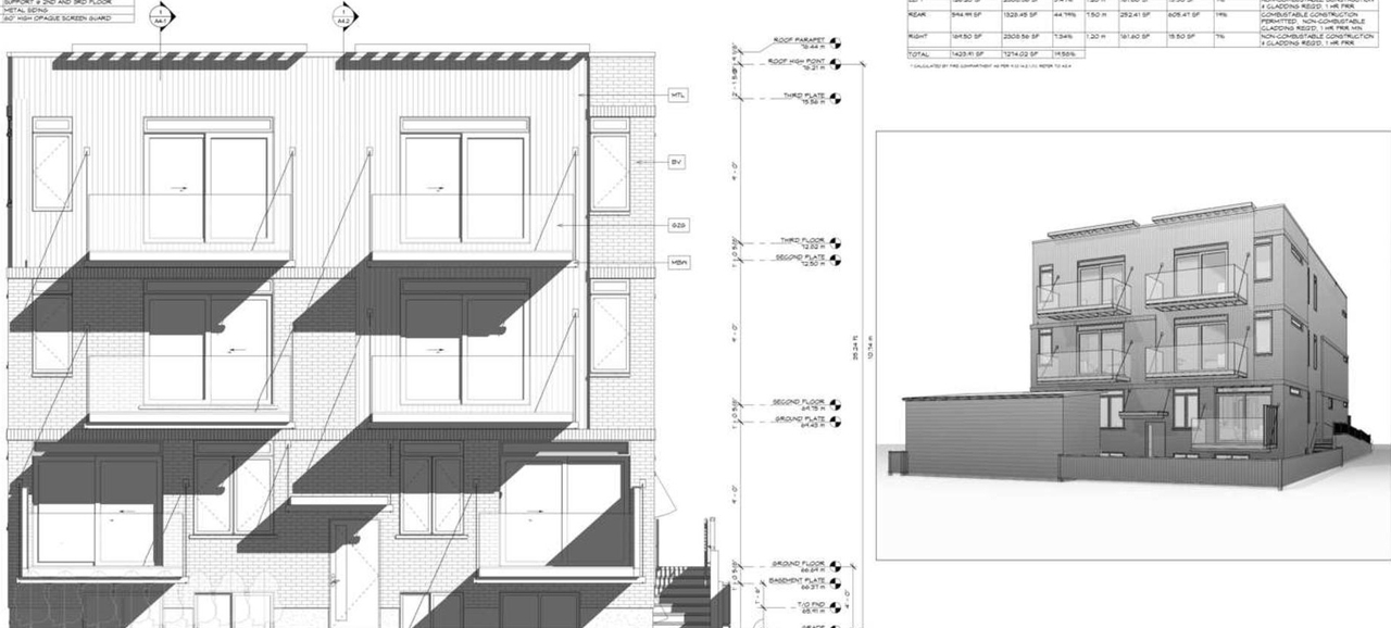
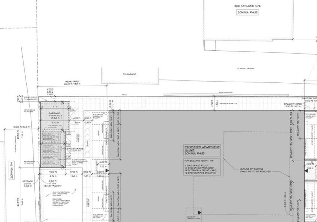
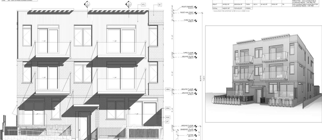
Low-rise residential apartment building (3 storeys).

Status
Inactive (Agreement Registered - Final Legal Clearance Given)

Building Scale (Max.) Based on elevation drawings. Values may be approximate. See sources for exact figures.
Low-rise · 3 storeys · 11.02 m

Renders#

Location#

Select a marker to view the address.

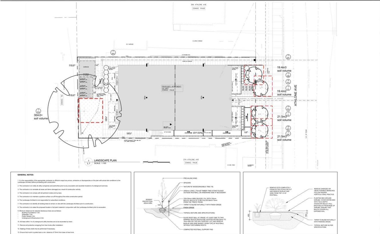
Site Plans, Elevations and Floor Plans#

Additional Information#

Date Initiated2024-10-01
WardWard 15 - Jeff Leiper

Documents#

TypeDocument
Adequacy Of Public Services2024-10-01 - Serviceability Report - D07-12-24-0114
Adequacy Of Public Services2024-10-01 - Serviceability Report Approved - D07-12-24-0114
Application Summary2024-11-21 - Application Summary - D07-12-24-0114
Architectural Plans2024-11-15 - Site Plan- D07-12-24-0114
Architectural Plans2024-11-05 - Site Plan - D07-12-24-0114
Architectural Plans2024-11-05 - Lot Grading and Servicing Plan - D07-12-24-0114
Architectural Plans2024-10-01 - Site Plan - D07-12-24-0114
Architectural Plans2024-10-01 - Proposed Lot Grading and Servicing Plan - D07-12-24-0114
Architectural Plans2024-10-01 - Proposed Erosion and Sediment Control Plan - D07-12-24-0114
Architectural Plans2024-10-01 - Elevations - D07-12-24-0114
Architectural Plans2025-02-03 - Site plan - D07-12-24-0114
Architectural Plans2025-03-10 - Site plan - D07-12-24-0114
Architectural Plans2025-03-10 - Elevations - D07-12-24-0114
Architectural Plans2025-03-17 - Site Plan - D07-12-24-0114
Architectural Plans2025-03-17 - Site Plan Approved - D07-12-24-0114
Architectural Plans2025-03-10 - Elevations Approved - D07-12-24-0114
Civil Engineering Report2025-02-03 - Civil Report - D07-12-24-0114
Civil Engineering Report2025-02-03 - Civil Report Approved - D07-12-24-0114
Design Brief2024-10-01 - Urban Design Brief - D07-12-24-0114
Environmental2024-10-01 - Phase II ESA - D07-12-24-0114
Environmental2024-10-01 - Phase I ESA - D07-12-24-0114
Environmental2025-02-03 - Phase 1 ESA - D07-12-24-0114
Environmental2025-02-03 - Phase 1 ESA Approved - D07-12-24-0114
Environmental2024-10-01 - Phase II ESA Approved - D07-12-24-0114
Erosion And Sediment Control Plan2025-02-03 - Erosion and Sediment Control - D07-12-24-0114
Erosion And Sediment Control Plan2025-02-03 - Erosion and Sediment Control Approved - D07-12-24-0114
Geotechnical Report2024-10-01 - Geotechnical Investigation - D07-12-24-0114
Geotechnical Report2025-02-03 - Grading and Servicing Plan - D07-12-24-0114
Geotechnical Report2025-02-03 - Geotechnical investigation - D07-12-24-0114
Geotechnical Report2025-02-03 - Geotech Memorandum - D07-12-24-0114
Geotechnical Report2025-02-03 - Grading and Servicing Plan Approved - D07-12-24-0114
Geotechnical Report2025-02-03 - Geotechnical investigation Approved - D07-12-24-0114
Landscape Plan2024-11-05 - Landscape Plan - D07-12-24-0114
Landscape Plan2024-10-01 - Landscape Plan - D07-12-24-0114
Landscape Plan2025-02-03 - Landscape Plan - D07-12-24-0114
Landscape Plan2025-02-03 - Landscape Plan Approved - D07-12-24-0114
Noise Study2024-10-01 - Roadway Traffic Noise Assessment - D07-12-24-0114
Noise Study2024-10-01 - Roadway Traffic Noise Assessment Approved - D07-12-24-0114
Planning2024-10-01 - Zoning Confirmation Report - D07-12-24-0114
Stormwater Management2024-10-01 - Storm Drainage Area Plan - D07-12-24-0114
Stormwater Management2024-10-01 - Proposed Rooftop Stormwater Management Plan - D07-12-24-0114
Stormwater Management2025-02-03 - Storm drainage area - D07-12-24-0114
Stormwater Management2025-02-03 - Rooftop and Storm water - D07-12-24-0114
Stormwater Management2025-02-03 - Storm drainage area Approved - D07-12-24-0114
Stormwater Management2025-02-03 - Rooftop and Storm water Approved - D07-12-24-0114
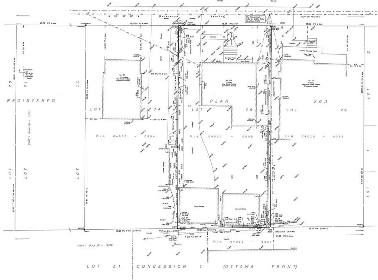
Surveying2024-10-01 - Plan of Survey - D07-12-24-0114
2024-10-01 - Strom Drainage Report - D07-12-24-0114
2025-02-03 - RiskAssessment - D07-12-24-0114
2025-03-20 - Delegated Authority Report - D07-12-24-0114
2025-02-03 - RiskAssessment Approved - D07-12-24-0114
2024-10-01 - Strom Drainage Report Approved - D07-12-24-0114