524 Lacolle Way#
Summary#
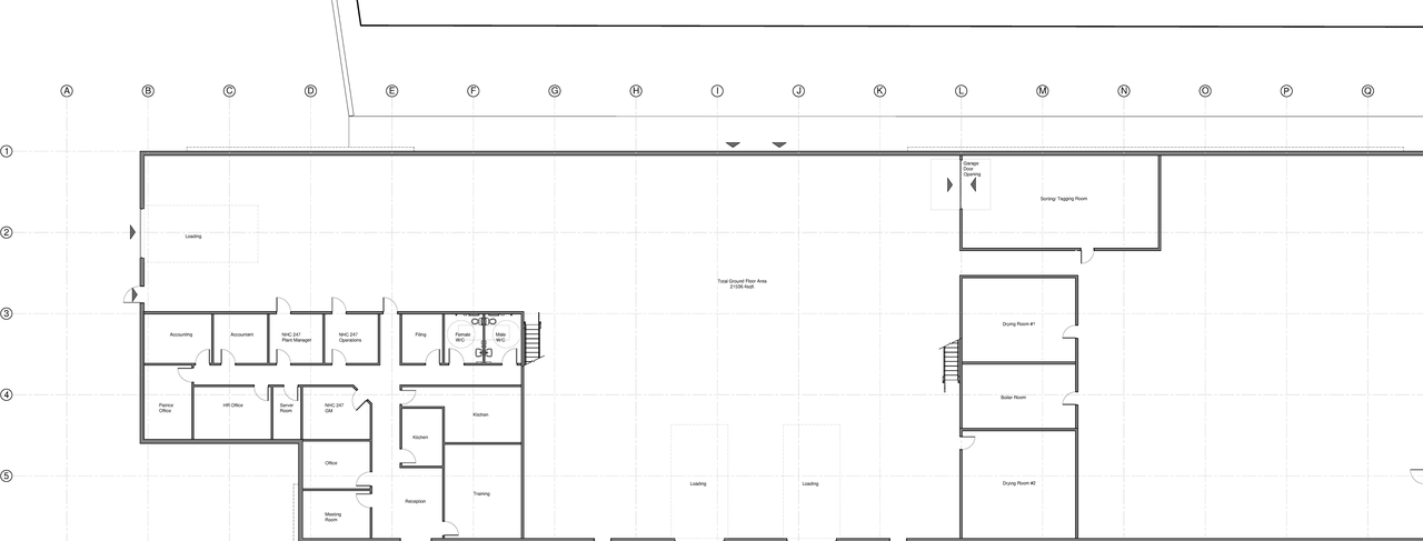
The City of Ottawa has received a Site Plan Control application to construct a one-storey light industrial building with a mezzanine, with a Gross Floor Area (GFA) of 2,242 square metres. The building will consist of two units. A municipal servicing easement runs along the rear lot line.
Status
File Pending (Application File Pending)
Building Scale (Max.)
Based on elevation drawings. Values may be approximate. See sources for exact figures.
Low-rise · 2 storeys
Data Quality Note
Text was extracted using optical character recognition. This may introduce artifacts or misreads.
· 10.5 m
Data Quality Note
Height was partially estimated using visual scale. This may be approximate.
Data Quality Note
Text was extracted using optical character recognition. This may introduce artifacts or misreads.
Renders#
Location#
Site Plans, Elevations and Floor Plans#
Additional Information#
| Date Initiated | 2024-09-27 |
| Ward | Ward 1 - Matthew Luloff |








