6622 Bank St.#
Last updated: 2026-03-03 ยท ID: D07-12-24-0106
Summary#
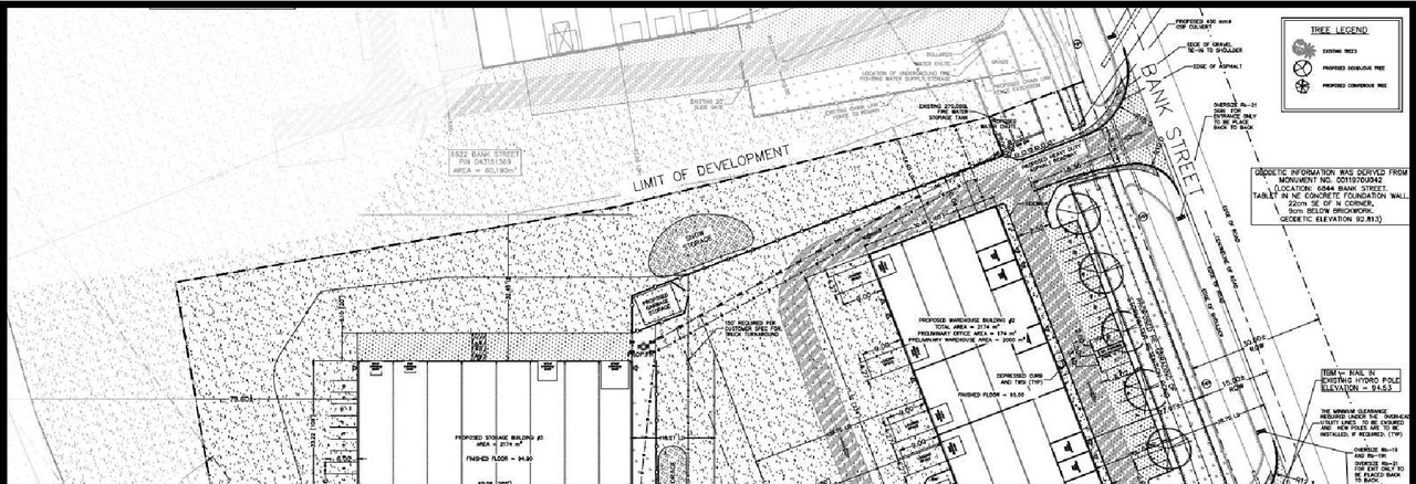
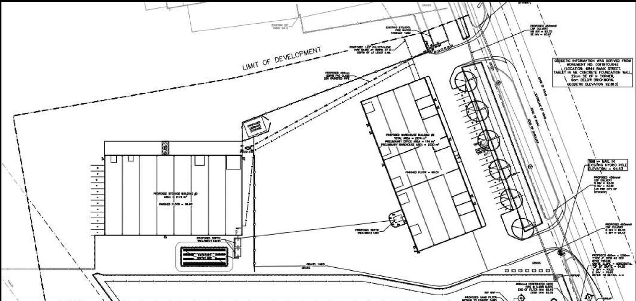
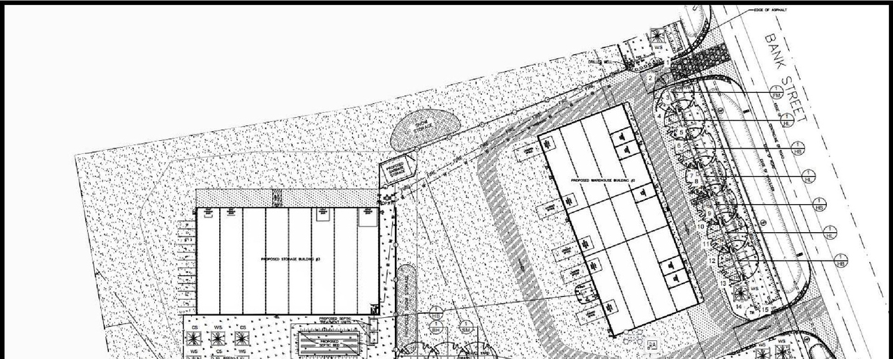
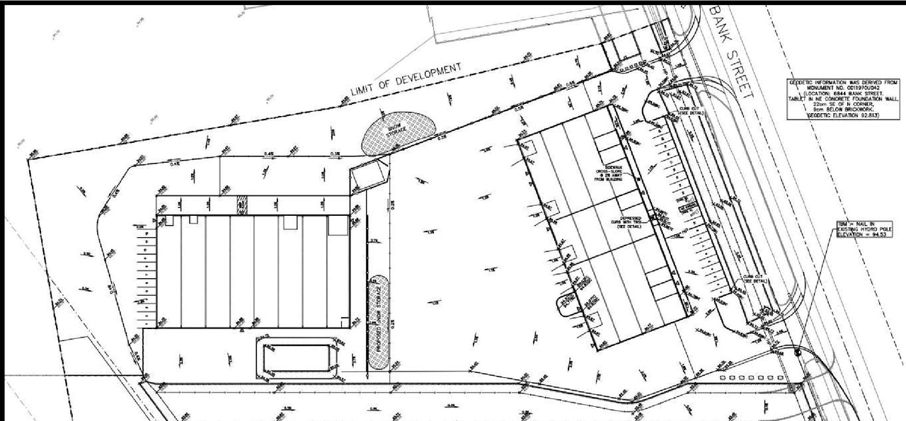
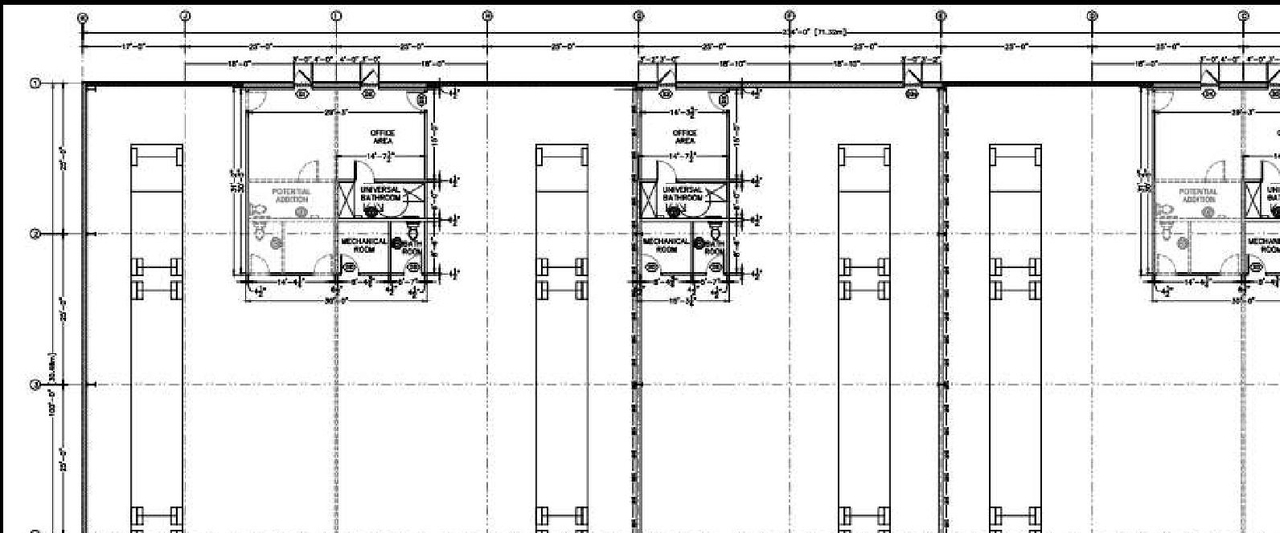
This proposal is to construct two industrial buildings to expand the existing operation at 6622 Bank Street. The building will be used as heavy equipment warehousing with accessory office uses. The building fronting on Bank will have the accessory office uses to support the permitted use and will be accessible via the two propped site access and parking lot. The building in the rear will only be accessible via the existing gate located in the north portion of the property and not feature a parking lot for private vehicles. Stormwater retention ponds are proposed along the south an east property lines.
Status
Inactive (Agreement Registered - Final Legal Clearance Given)
Renders#
Location#
Select a marker to view the address.
Site Plans, Elevations and Floor Plans#
Additional Information#
| Date Initiated | 2024-09-17 |
| Ward | Ward 20 - Isabelle Skalski |














