Ottawa Development Projects

1047 Richmond Rd.#

Last updated: 2026-03-05 · ID: D07-12-24-0104

Summary#

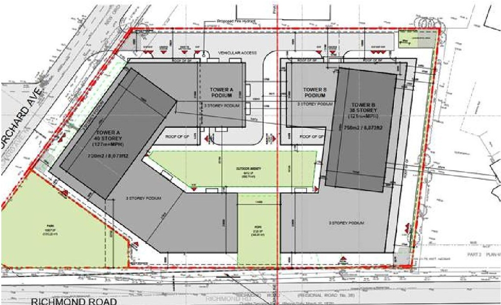
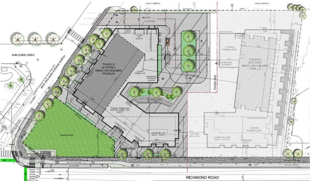
A Site Plan Control application to construct Tower A (Phase 1), a high-rise mixed-use building with underground parking, and to provide parkland. The proposed development includes 423 residential units, 497.7 square metres of commercial space, 254 vehicle parking spaces and 528 bicycle parking spaces.

Status
Post Approval (Request for Agreement Received)

Building Scale (Max.) Based on elevation drawings. Values may be approximate. See sources for exact figures.
High-rise · 36 storeys · 116.99 m

Renders#

Location#

Select a marker to view the address.

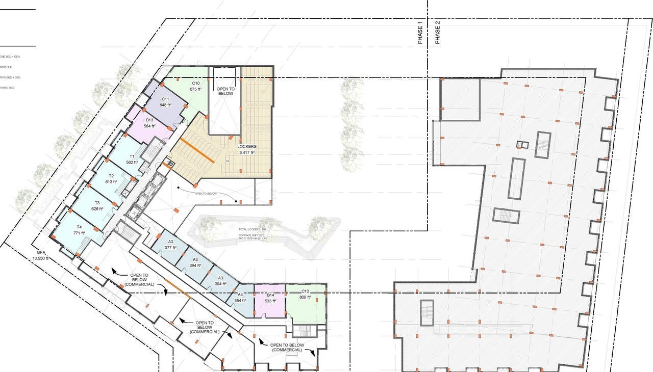
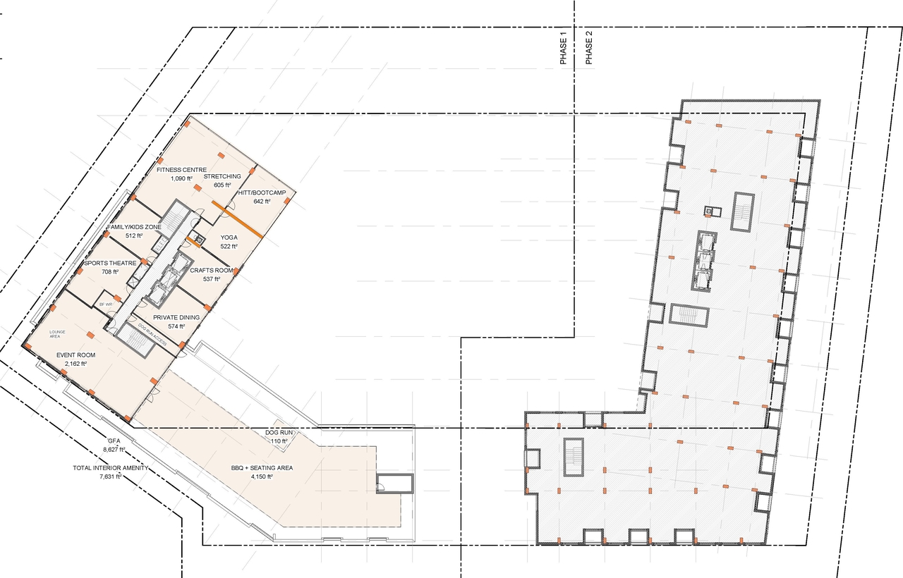
Site Plans, Elevations and Floor Plans#

Additional Information#

Date Initiated2024-09-06
WardWard 7 - Theresa Kavanagh

Documents#

TypeDocument
Application Summary2024-10-07 - Application Summary - D07-12-24-0104
Architectural Plans2024-09-27 - Architectural Package - D07-12-24-0104
Architectural Plans2024-09-06 - Preliminary Construction Management Plan - D07-12-24-0104
Architectural Plans2024-09-06 - Lot Grading & Drainage Plan - D07-12-24-0104
Architectural Plans2024-12-19 - Site Plan - D07-12-24-0104
Architectural Plans2024-12-19 - LOT GRADING AND DRAINAGE - EROSION AND SEDIMENT CONTROL PLAN - D07-12-24-0104
Architectural Plans2025-04-22 -SITE SERVICING PLAN - D07-12-24-0104
Architectural Plans2025-04-22 -SITE PLAN - D07-12-24-0104
Architectural Plans2025-04-22 - LOT GRADING, DRAINAGE, EROSION AND SEDIMENT CONTROL PLAN PLAN - D07-12-24-0104
Architectural Plans2025-07-04 - Site Plan Phase 1 - D07-12-24-0104
Architectural Plans2025-09-05 - Site Plan - D07-12-24-0104
Architectural Plans2025-09-05 - Revised Lot Grading & Drainage Plan - D07-12-24-0104
Architectural Plans2025-09-05 - Elevations - D07-12-24-0104
Architectural Plans2025-09-22 - APPROVED Site Plan Approval Report - D07-12-24-0104
Architectural Plans2025-09-22 - APPROVED Site Plan - D07-12-24-0104
Architectural Plans2025-09-22 - APPROVED Lot Grading and Drainage Plan - D07-12-24-0104
Architectural Plans2025-09-22 - APPROVED Elevations - D07-12-24-0104
Architectural Plans2026-03-04 - Approved Revised Site Plan - D07-12-24-0104
Design Brief2024-09-27 - UDRP Report - D07-12-24-0104
Electrical Plan2024-09-06 - Electrical Site Layout and Site Lighting Photometric Layout - D07-12-24-0104
Environmental2024-09-06 - Phase Two Environmental Site Assessment - D07-12-24-0104
Environmental2024-09-06 - Phase One Environmental Site Assessment - D07-12-24-0104
Environmental2025-09-05 - Phase Two Environmental Site Assessment - D07-12-24-0104
Environmental2025-09-05 - Phase One Environmental Site Assessment - D07-12-24-0104
Environmental2025-09-22 - APPROVED Phase Two Environmental Site Assessment - D07-12-24-0104
Environmental2025-09-22 - APPROVED Phase One Environmental Site Assessment - D07-12-24-0104
Geotechnical Report2024-09-06 - Geotechnical and Hydrogeological Investigation - D07-12-24-0104
Geotechnical Report2024-12-19 - GEOTECHNICAL ASSESSMENT REPORT - D07-12-24-0104
Geotechnical Report2025-04-22 - Geotechnical Assessment Report - D07-12-24-0104
Geotechnical Report2025-07-04 - Hydrogeological Investigation - Excavation - D07-12-24-0104
Geotechnical Report2025-07-04 - Grading, Drainage, Erosion & Sediment Control Plan - D07-12-24-0104
Geotechnical Report2025-07-04 - Geotechnical Report - D07-12-24-0104
Geotechnical Report2025-09-22 - APPROVED Geotechnical Assessment Report - D07-12-24-0104
Landscape Plan2024-09-06 - Landscape Plans - D07-12-24-0104
Landscape Plan2024-10-17 - Landscape plan Revised - D07-12-24-0104
Landscape Plan2024-12-19 - Landscape Drawing Set - D07-12-24-0104
Landscape Plan2025-04-22 - Landscape Plan - D07-12-24-0104
Landscape Plan2025-07-04 - Landscape Plans and Details - D07-12-24-0104
Landscape Plan2025-09-05 - Revised Landscape Package - D07-12-24-0104
Landscape Plan2025-09-22 - APPROVED Landscape Plans - D07-12-24-0104
Noise Study2024-09-06 - Transportation Noise and Vibration Assessment - D07-12-24-0104
Noise Study2025-09-22 - APPROVED Transportation Noise and Vibration Assessment - D07-12-24-0104
Planning2024-09-06 - Zoning Confirmation Report - D07-12-24-0104
Site Servicing2024-09-06 - Site Servicing Plan - D07-12-24-0104
Site Servicing2024-09-06 - Servicing Report - D07-12-24-0104
Site Servicing2024-12-19 - Site Servicing Plan - D07-12-24-0104
Site Servicing2024-12-19 - Site Servicing and Stormwater Managment Report - D07-12-24-0104
Site Servicing2025-04-22 - SITE SERVICING & STORMWATER MANAGEMENT
Site Servicing2025-07-04 - Site Servicing Plan - D07-12-24-0104
Site Servicing2025-07-04 - Servicing Report - D07-12-24-0104
Site Servicing2025-09-05 - Revised Site Servicing Plan - D07-12-24-0104
Site Servicing2025-09-22 - APPROVED Site Servicing Plan - D07-12-24-0104
Site Servicing2025-09-22 - APPROVED Site Servicing and SWM Report - D07-12-24-0104
Surveying2024-09-06 - Topographic Plan of Survey - D07-12-24-0104
Transportation Analysis2024-09-06 - Transportation Impact Assessment Strategy Report - D07-12-24-0104
Transportation Analysis2024-12-19 - Transportation Impact Assessment Report - D07-12-24-0104
Transportation Analysis2025-04-22 - Transportation Impact Assessment Report FINAL - D07-12-24-0104
Transportation Analysis2025-09-22 - APPROVED Transportation Impact Assessment - D07-12-24-0104
Tree Information and Conservation2024-09-06 - Tree Conservation Report - D07-12-24-0104
Tree Information and Conservation2025-09-22 - APPROVED Tree Conservation Report - D07-12-24-0104
Wind Study2024-09-06 - Pedestrian Level Wind Study - D07-12-24-0104
Wind Study2024-09-06 - Addendum to Pedestrian Level Wind Study - D07-12-24-0104
Wind Study2025-09-22 - APPROVED Pedestrian Level Wind Study - D07-12-24-0104
2024-09-06 - Confederation Line Level 2 Proximity Study - D07-12-24-0104
2024-12-19 - Confederation Line Level 2 Proximity Study - D07-12-24-0104
2025-04-22 - Gradient Wind Addendum V2 - D07-12-24-0104
2025-04-22 - DEWATERING ASSESSMENT, PROPOSED
2025-09-05 - Dewatering Assessment - Proposed Excavation - D07-12-24-0104
2025-09-22 - APPROVED Dewatering Assessment - D07-12-24-0104
2025-09-22 - APPROVED Confederation Line Level 2 Proximity Study - D07-12-24-0104