3285 Borrisokane Rd.#
Last updated: 2026-02-05 · ID: D07-12-24-0097
Summary#
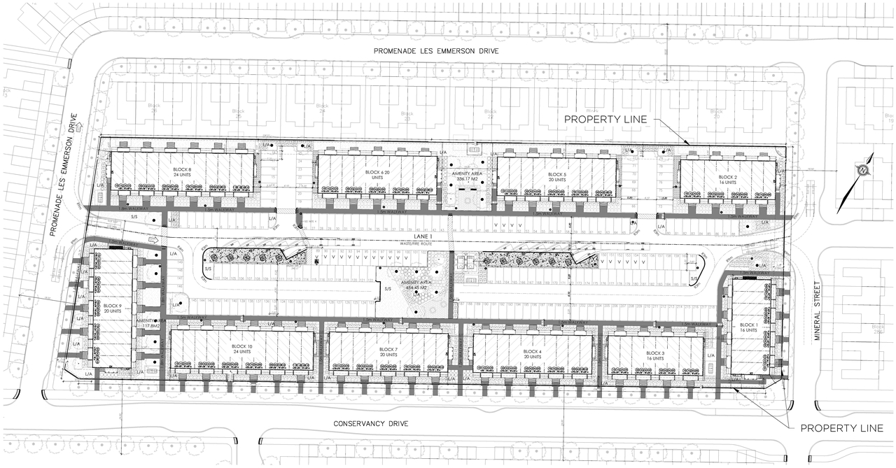
The City of Ottawa has received a Site Plan Control application to construct a new Planned Unit Development consisting of 196 stacked townhouse units with 215 surface vehicular parking spaces and 100 bicycle parking spaces.
Status
Inactive (Notice of Decision Sent)
Building Scale (Max.)
Based on elevation drawings. Values may be approximate. See sources for exact figures.
Low-rise · 3 storeys
· 10 m
Data Quality Note
Height was partially estimated using visual scale. This may be approximate.
Renders#
Location#
Select a marker to view the address.
Site Plans, Elevations and Floor Plans#
Additional Information#
| Date Initiated | 2024-08-28 |
| Ward | Ward 3 - David Hill |
Documents#
Related Projects#
| Project | Last Updated | Date Initiated |
|---|---|---|
3285-3305 Borrisokane Rd.
D07-16-24-0011 | 2026-03-29 | 2024-04-19 |
3285-3305 Borrisokane Rd.
D02-02-22-0120 | 2026-02-28 | 2022-12-19 |
3285-3305 Borrisokane Rd.
D07-16-24-0023 | 2025-11-29 | 2024-09-25 |
3285-3305 Borrisokane Rd.
D02-02-24-0073 | 2025-08-29 | 2024-11-27 |
3285 Borrisokane Rd.
D02-02-24-0046 | 2025-05-31 | 2024-08-22 |
3285-3305 Borrisokane Rd.
D07-16-22-0028 | 2025-02-12 | 2022-12-19 |




























