1518-1526 Stittsville Main St.#
Summary#
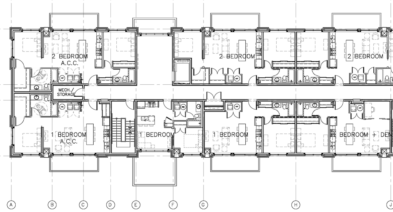
A Site Plan Control Revision application has been submitted for a four-storey, 27-unit residential building, and two-storey mixed-use building. The mixed-use building includes a ground floor restaurant and patio, and second floor office space. The proposed development includes 67 surface parking spaces and 17 bicycle parking.
Status
Inactive (Agreement Registered - Securities Held)
Building Scale (Max.)
Based on elevation drawings. Values may be approximate. See sources for exact figures.
Mid-rise · 4 storeys
Data Quality Note
Text was extracted using optical character recognition. This may introduce artifacts or misreads.
· 16.7 m
Data Quality Note
Height was partially estimated using visual scale. This may be approximate.
Data Quality Note
Text was extracted using optical character recognition. This may introduce artifacts or misreads.
Location#
Site Plans, Elevations and Floor Plans#
Additional Information#
| Date Initiated | 2024-08-26 |
| Ward | Ward 6 - Glen Gower |
| All Addresses | 1518 Stittsville Main St. 1524 Stittsville Main St. 1526 Stittsville Main St. |



