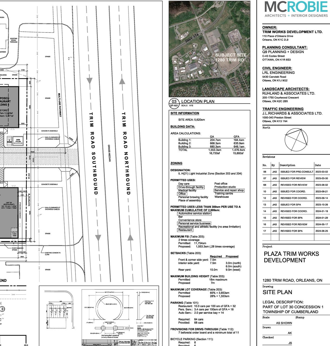
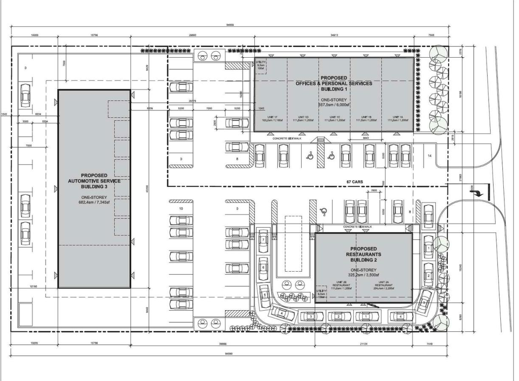
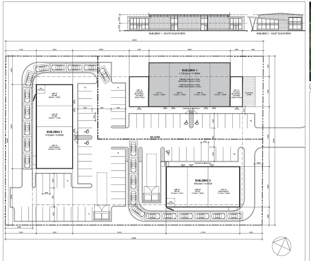
1280 Trim Rd.#
Last updated: 2025-04-30 · ID: D07-12-24-0089
Summary#
The proposed development consists of three, one-storey commercial buildings, which will contain a mix of uses that fall into the following categories: personal service, office, restaurant, and automobile service centre.
Status
Inactive (Agreement Registered - Securities Held)
Renders#
Location#
Select a marker to view the address.
Project Updates#
Status Updated
- Status: Inactive (Agreement Registered - Securities Held)
Status Updated
- Status: Post Approval (Agreement Signed)
Status Updated
- Status: Post Approval (Receipt of Agreement from Owner Pending)
Status Updated
- Status: Post Approval (Consensus Achieved on Additional Submission)
Added 15 documents
- Status: Active (Consensus Achieved on Additional Submission)
- 2025-01-22 - Approved SWM Plan C601 - D07-12-24-0089
- 2025-01-22 - Approved Site Plan SP-A01 - D07-12-24-0089
- 2025-01-22 - Approved Servicing Plan C401 - D07-12-24-0089
- 2025-01-22 - Approved Retaining Wall S100 - D07-12-24-0089
- 2025-01-22 - Approved Pre-Development Watershed Plan C701 - D07-12-24-0089
- 2025-01-22 - Approved Post Development Watershed Plan C702 - D07-12-24-0089
- 2025-01-22 - Approved Noise Report - D07-12-24-0089
- 2025-01-22 - Approved Landscape Plans - D07-12-24-0089
- 2025-01-22 - Approved Grading and Drainage Plan C301 - D07-12-24-0089
- 2025-01-22 - Approved General Notes C001 - D07-12-24-0089
- 2025-01-22 - Approved Erosion and Sediment Control Plan C101 - D07-12-24-0089
- 2025-01-22 - Approved Demolition Plan C102 - D07-12-24-0089
- 2025-01-22 - Approved Contruction Detail Plan C901 - D07-12-24-0089
- 2025-01-22 - Revised Signed Delegated Authority Report - D07-12-24-0089
- 2025-01-22 - Approved Elevations - D07-12-24-0089
Status Updated
- Status: Inactive (Notice of Decision Sent)
Added 10 documents
- 2025-01-10 - SWM Plan - D07-12-24-0089
- 2025-01-10 - Pre-Development Watershed Plan - D07-12-24-0089
- 2025-01-10 - Post-Development Watershed Plan - D07-12-24-0089
- 2025-01-10 - Landscape Plan Signed - D07-12-24-0089
- 2025-01-10 - General Notes - D07-12-24-0089
- 2025-01-10 - Erosion and Sediment Control Plan - D07-12-24-0089
- 2025-01-10 - Elevations Signed - D07-12-24-0089
- 2025-01-10 - Demolition Plan - D07-12-24-0089
- 2025-01-10 - Construction Detail Plan - D07-12-24-0089
- 2025-01-07 - Delegated Authority Report Signed - D07-12-24-0089
Added 14 documents
- 2024-12-19 - Site Plan - D07-12-24-0089
- 2024-12-19 - L03 Landscape Plan - D07-12-24-0089
- 2024-12-19 - L02 Landscape Plan - D07-12-24-0089
- 2024-12-19 - L01 Landscape Plan - D07-12-24-0089
- 2024-12-19 - Elevations - D07-12-24-0089
- 2024-12-19 - C901 Construction Detail Plan - D07-12-24-0089
- 2024-12-19 - C702 Post-Development Watershed Plan - D07-12-24-0089
- 2024-12-19 - C701 Pre-Development Watershed Plan - D07-12-24-0089
- 2024-12-19 - C601 SWM Plan - D07-12-24-0089
- 2024-12-19 - C401 Servicing Plan - D07-12-24-0089
- 2024-12-19 - C301 Grading and Drainage Plan - D07-12-24-0089
- 2024-12-19 - C102 Demolition Plan - D07-12-24-0089
- 2024-12-19 - C101 Erosion and Sediment Control Plan - D07-12-24-0089
- 2024-12-19 - C001 General Notes - D07-12-24-0089
Status Updated
- Status: Active (Draft Report Sent for Response)
Added 17 documents
- 2024-10-31-Construction Detail Plan,C901 - D07-12-24-0089
- 2024-10-31 - ZCR - D07-12-24-0089
- 2024-10-31 - TIA Addendum 1 - D07-12-24-0089
- 2024-10-31 - SWM Plan, C601 - D07-12-24-0089
- 2024-10-31 - Site Plan - D07-12-24-0089
- 2024-10-31 - Servicing Plan, C401 - D07-12-24-0089
- 2024-10-31 - Retaining Wall, S100, D07-12-24-0089
- 2024-10-31 - Response Letter -D07-12-24-0089
- 2024-10-31 - Post-Development Watershed Plan - D07-12-24-0089
- 2024-10-31 - Landscape Plan - D07-12-24-0089
- 2024-10-31 - Grading and Servicing Plan, C301 - D07-12-24-0089
- 2024-10-31 - General Notes, C001 - D07-12-24-0089
- 2024-10-31 - Erosion and Sediment Control Plan, C101 - D07-12-24-0089
- 2024-10-31 - Elevations - D07-12-24-0089
- 2024-10-31 - Demolition Plan, C102 - D07-12-24-0089
- 2024-10-31 - Canopy Coverage, L02 - D07-12-24-0089
- 2024-10-31-Pre-Development Watershed Plan C701 - D07-12-24-0089
Added 9 documents
- 2024-10-11 - SWM and Servicing Brief - D07-12-24-0089
- 2024-10-11 - Stormwater Management Plan, C601 - D07-12-24-0089
- 2024-10-11 - Servicing Plan, C401 - D07-12-24-0089
- 2024-10-11 - Pre-Development Watershed Plan - C701 - D07-12-24-0089
- 2024-10-11 - Post-Development Watershed Plan - C702 - D07-12-24-0089
- 2024-10-11 - Grading and Servicing Plan, C301 - D07-12-24-0089
- 2024-10-11 - General Notes, C001 - D07-12-24-0089
- 2024-10-11 - Erosion and Sediment Control Plan, C101- D07-12-24-0089
- 2024-10-11 - Demolition Plan, C102 - D07-12-24-0089
Added description, height, 14 images and 1 document
- Status: Active (On Circulation; Initial Submission Review)
- The proposed development consists of three, one-storey commercial buildings, which will contain a mix of uses that fall into the following …
- Height: 0.3 m
- 3 renders
- 8 site plans
- 3 elevations
Site Plans, Elevations and Floor Plans#
Additional Information#
| Date Initiated | 2024-08-20 |
| Ward | Ward 1 - Matthew Luloff |















