Ottawa Development Projects

1280 Trim Rd.#

Last updated: 2025-04-30 ยท ID: D07-12-24-0089

Summary#

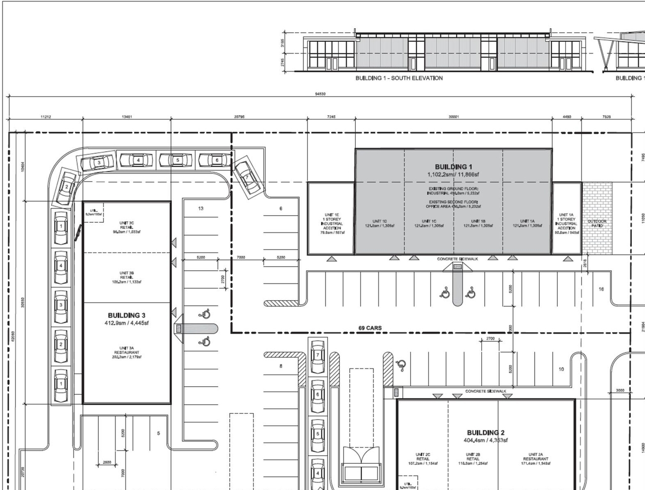
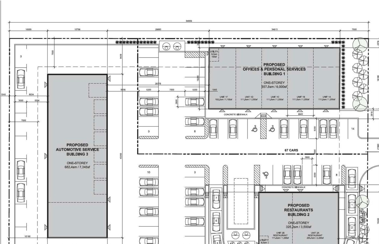
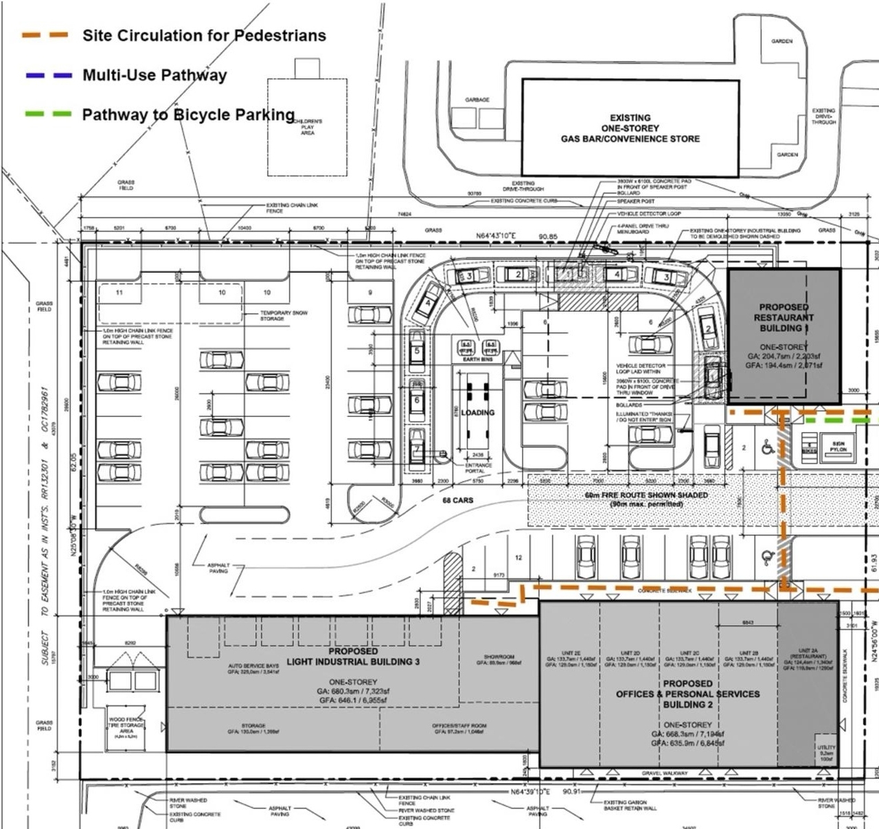
The proposed development consists of three, one-storey commercial buildings, which will contain a mix of uses that fall into the following categories: personal service, office, restaurant, and automobile service centre.

Status
Inactive (Agreement Registered - Securities Held)

Renders#

Location#

Select a marker to view the address.

Site Plans, Elevations and Floor Plans#

Additional Information#

Date Initiated2024-08-20
WardWard 1 - Matthew Luloff

Documents#

TypeDocument
Application Summary2024-09-19 - Application Summary - D07-12-24-0089
Architectural Plans2024-08-20 - Site Plan and Elevation - D07-12-24-0089
Architectural Plans2024-08-20 - Preliminary Construction Management Plan - D07-12-24-0089
Architectural Plans2024-10-11 - Pre-Development Watershed Plan - C701 - D07-12-24-0089
Architectural Plans2024-10-11 - Post-Development Watershed Plan - C702 - D07-12-24-0089
Architectural Plans2024-10-11 - Demolition Plan, C102 - D07-12-24-0089
Architectural Plans2024-10-31-Pre-Development Watershed Plan C701 - D07-12-24-0089
Architectural Plans2024-10-31-Construction Detail Plan,C901 - D07-12-24-0089
Architectural Plans2024-10-31 - Site Plan - D07-12-24-0089
Architectural Plans2024-10-31 - Post-Development Watershed Plan - D07-12-24-0089
Architectural Plans2024-10-31 - Elevations - D07-12-24-0089
Architectural Plans2024-10-31 - Demolition Plan, C102 - D07-12-24-0089
Architectural Plans2024-12-19 - Site Plan - D07-12-24-0089
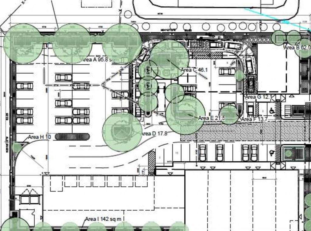
Architectural Plans2024-12-19 - L03 Landscape Plan - D07-12-24-0089
Architectural Plans2024-12-19 - L02 Landscape Plan - D07-12-24-0089
Architectural Plans2024-12-19 - L01 Landscape Plan - D07-12-24-0089
Architectural Plans2024-12-19 - Elevations - D07-12-24-0089
Architectural Plans2024-12-19 - C901 Construction Detail Plan - D07-12-24-0089
Architectural Plans2024-12-19 - C702 Post-Development Watershed Plan - D07-12-24-0089
Architectural Plans2024-12-19 - C701 Pre-Development Watershed Plan - D07-12-24-0089
Architectural Plans2024-12-19 - C401 Servicing Plan - D07-12-24-0089
Architectural Plans2024-12-19 - C301 Grading and Drainage Plan - D07-12-24-0089
Architectural Plans2024-12-19 - C102 Demolition Plan - D07-12-24-0089
Architectural Plans2024-12-19 - C101 Erosion and Sediment Control Plan - D07-12-24-0089
Architectural Plans2025-01-10 - Pre-Development Watershed Plan - D07-12-24-0089
Architectural Plans2025-01-10 - Post-Development Watershed Plan - D07-12-24-0089
Architectural Plans2025-01-10 - Elevations Signed - D07-12-24-0089
Architectural Plans2025-01-10 - Demolition Plan - D07-12-24-0089
Architectural Plans2025-01-10 - Construction Detail Plan - D07-12-24-0089
Architectural Plans2025-01-22 - Approved Site Plan SP-A01 - D07-12-24-0089
Architectural Plans2025-01-22 - Approved Pre-Development Watershed Plan C701 - D07-12-24-0089
Architectural Plans2025-01-22 - Approved Post Development Watershed Plan C702 - D07-12-24-0089
Architectural Plans2025-01-22 - Approved Elevations - D07-12-24-0089
Architectural Plans2025-01-22 - Approved Demolition Plan C102 - D07-12-24-0089
Architectural Plans2025-01-22 - Approved Contruction Detail Plan C901 - D07-12-24-0089
Civil Engineering Report2024-08-20 - Civil Drawings - D07-12-24-0089
Design Brief2024-08-20 - Urban Design Brief - D07-12-24-0089
Environmental2024-08-20 - Phase II Environmental Site Assessment - D07-12-24-0089
Environmental2024-08-20 - Phase I Environmental Site Assessment - D07-12-24-0089
Erosion And Sediment Control Plan2024-10-11 - Erosion and Sediment Control Plan, C101- D07-12-24-0089
Erosion And Sediment Control Plan2024-10-31 - Erosion and Sediment Control Plan, C101 - D07-12-24-0089
Erosion And Sediment Control Plan2025-01-10 - Erosion and Sediment Control Plan - D07-12-24-0089
Erosion And Sediment Control Plan2025-01-22 - Approved Erosion and Sediment Control Plan C101 - D07-12-24-0089
Geotechnical Report2024-08-20 - Geotechnical Investigation - D07-12-24-0089
Geotechnical Report2024-10-11 - Grading and Servicing Plan, C301 - D07-12-24-0089
Geotechnical Report2024-10-31 - Grading and Servicing Plan, C301 - D07-12-24-0089
Geotechnical Report2025-01-22 - Approved Grading and Drainage Plan C301 - D07-12-24-0089
Landscape Plan2024-09-17 - Landscape Plan, L-01 & L-02 - D07-12-24-0089
Landscape Plan2024-10-31 - Landscape Plan - D07-12-24-0089
Landscape Plan2025-01-10 - Landscape Plan Signed - D07-12-24-0089
Landscape Plan2025-01-22 - Approved Landscape Plans - D07-12-24-0089
Noise Study2025-01-22 - Approved Noise Report - D07-12-24-0089
Planning2024-08-20 - Zoning Confirmation Report - D07-12-24-0089
Planning2024-08-20 - Planning Rationale - D07-12-24-0089
Site Servicing2024-08-20 - Servicing Brief & SWM Report - D07-12-24-0089
Site Servicing2024-10-11 - Servicing Plan, C401 - D07-12-24-0089
Site Servicing2024-10-31 - Servicing Plan, C401 - D07-12-24-0089
Site Servicing2025-01-22 - Approved Servicing Plan C401 - D07-12-24-0089
Stormwater Management2024-10-11 - SWM and Servicing Brief - D07-12-24-0089
Stormwater Management2024-10-11 - Stormwater Management Plan, C601 - D07-12-24-0089
Stormwater Management2024-10-31 - SWM Plan, C601 - D07-12-24-0089
Stormwater Management2024-12-19 - C601 SWM Plan - D07-12-24-0089
Stormwater Management2025-01-10 - SWM Plan - D07-12-24-0089
Stormwater Management2025-01-22 - Approved SWM Plan C601 - D07-12-24-0089
Surveying2024-08-20 - Survey - D07-12-24-0089
Transportation Analysis2024-08-20 - Transportation Impact Assessmen - D07-12-24-0089
Transportation Analysis2024-08-20 - TIA Addendum Letter - D07-12-24-0089
Transportation Analysis2024-10-31 - TIA Addendum 1 - D07-12-24-0089
Tree Information and Conservation2024-09-17 - Tree Conservation Report - D07-12-24-0089
2024-08-20 - Images - D07-12-24-0089
2024-10-11 - General Notes, C001 - D07-12-24-0089
2024-10-31 - ZCR - D07-12-24-0089
2024-10-31 - Retaining Wall, S100, D07-12-24-0089
2024-10-31 - Response Letter -D07-12-24-0089
2024-10-31 - General Notes, C001 - D07-12-24-0089
2024-10-31 - Canopy Coverage, L02 - D07-12-24-0089
2024-12-19 - C001 General Notes - D07-12-24-0089
2025-01-10 - General Notes - D07-12-24-0089
2025-01-07 - Delegated Authority Report Signed - D07-12-24-0089
2025-01-22 - Revised Signed Delegated Authority Report - D07-12-24-0089
2025-01-22 - Approved Retaining Wall S100 - D07-12-24-0089
2025-01-22 - Approved General Notes C001 - D07-12-24-0089