Ottawa Development Projects

1132 St Pierre St.#

Last updated: 2025-12-19 · ID: D07-12-24-0080

Summary#

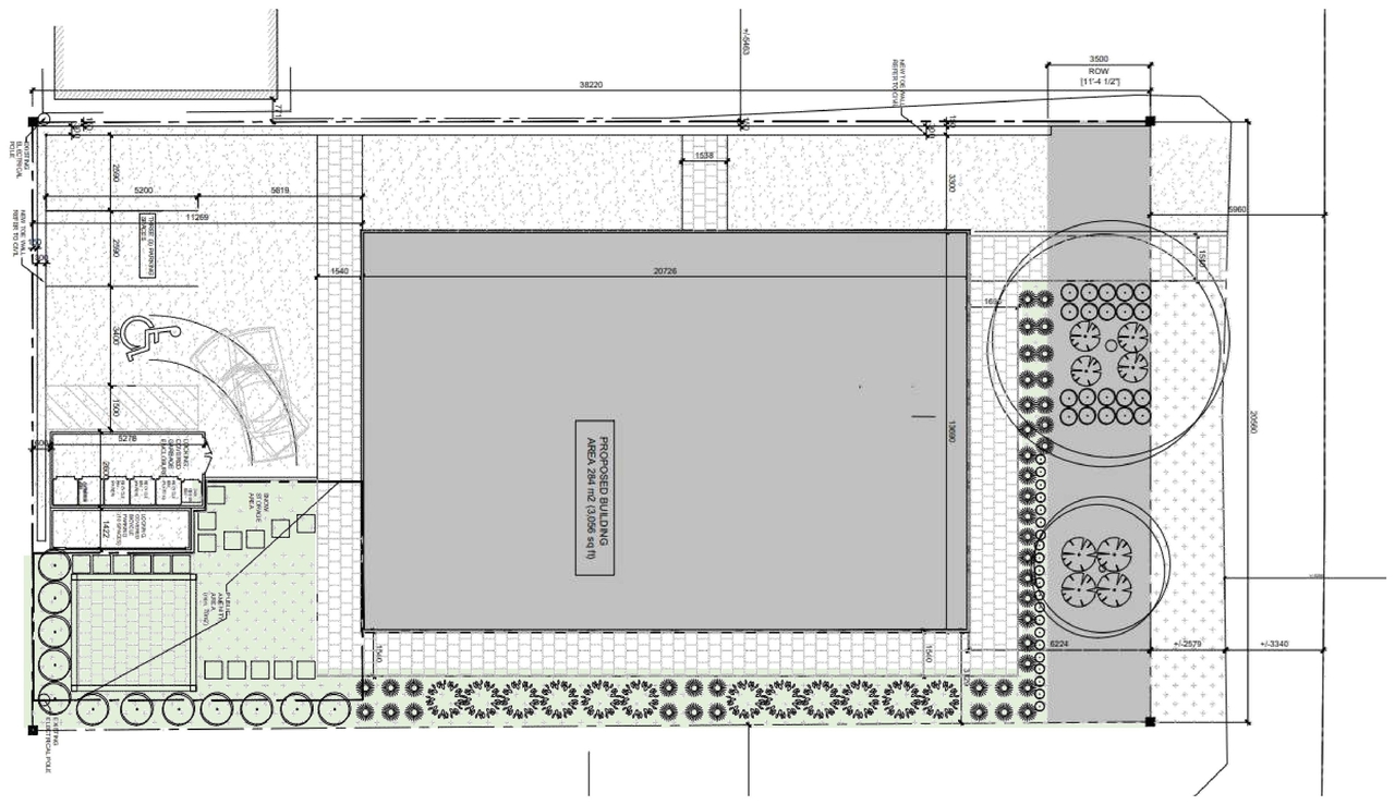
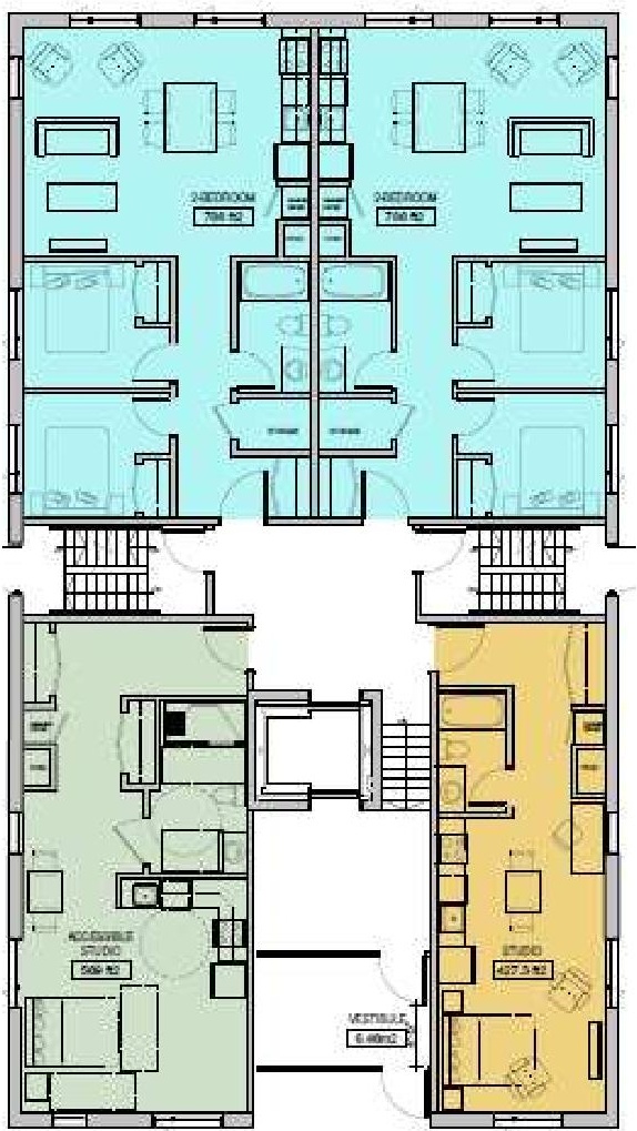
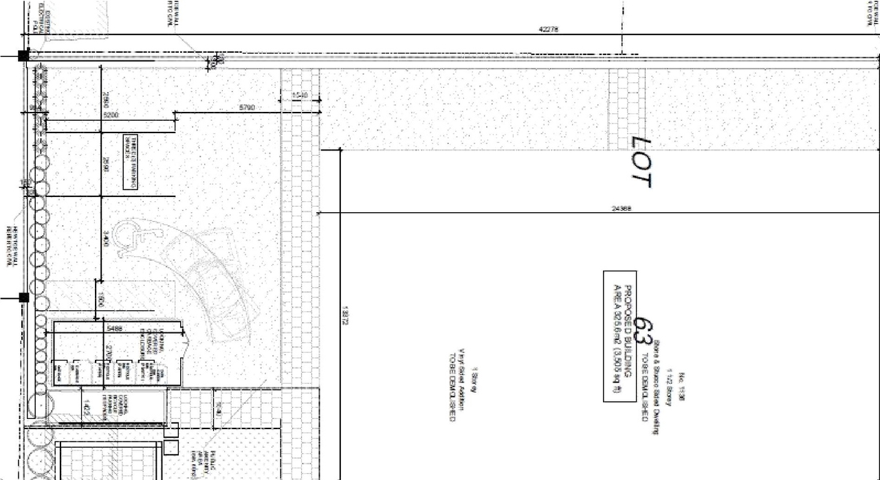
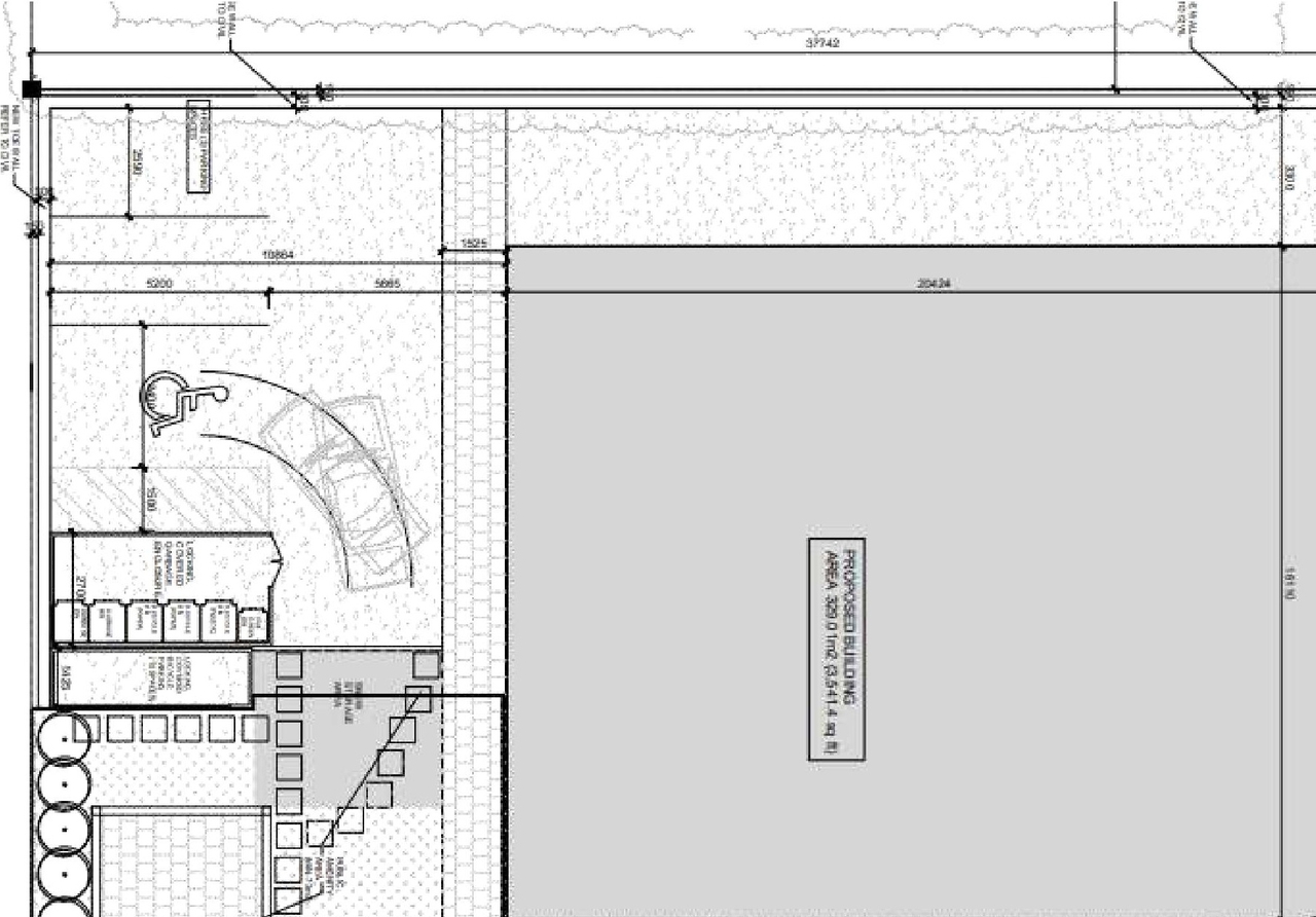
A Site Plan Control application to construct a four-storey apartment building with 20 residential units and a total floor area of 1201.6m2.

Status
Inactive (Agreement Registered - Securities Held)

Building Scale (Max.) Based on elevation drawings. Values may be approximate. See sources for exact figures.
Mid-rise · 4 storeys · 14.58 m

Renders#

Location#

Select a marker to view the address.

Site Plans, Elevations and Floor Plans#

Additional Information#

Date Initiated2024-08-08
WardWard 1 - Matthew Luloff

Documents#

TypeDocument
Application Summary2025-03-31 - Application Summary - D07-12-24-0080
Architectural Plans2024-11-04 - Site plan - D07-12-24-0080
Architectural Plans2024-11-04 - Preliminary Construction Management Plan - D07-12-24-0080
Architectural Plans2024-11-04 - Elevations - D07-12-24-0080
Architectural Plans2024-11-04 - Demolition Site Plan - D07-12-24-0080
Architectural Plans2024-11-04 - Architectural Drawings - D07-12-24-0080
Architectural Plans2024-08-15 - Site Plan - D07-12-24-0080
Architectural Plans2024-08-08 - Site Plan - D07-12-24-0080
Architectural Plans2024-08-08 - Site Grading Plan - D07-12-24-0080
Architectural Plans2024-08-08 - Preliminary Construction Management Plan - D07-12-24-0080
Architectural Plans2024-08-08 - Elevations - D07-12-24-0080
Architectural Plans2025-06-05 - Site plan - D07-12-24-0080
Architectural Plans2025-06-05 - Site Grading Plan - D07-12-24-0080
Architectural Plans2025-06-05 - Master Plan L1 - D07-12-24-0080
Architectural Plans2025-06-06 - Site Grading Plan - D07-12-24-0080
Architectural Plans2025-06-06 - Notes and Details - D07-12-24-0080
Architectural Plans2025-08-27 - APPROVED Site Plan Approval Report - D07-12-24-0080
Architectural Plans2025-08-28 - Site Plan - D07-12-24-0080
Architectural Plans2025-12-09 - APPROVED Site Plan Demolition - D07-12-24-0080
Architectural Plans2025-12-09 - APPROVED Site Plan - D07-12-24-0080
Architectural Plans2025-12-09 - APPROVED Preliminary Construction Management Plan - D07-12-24-0080
Architectural Plans2025-12-09 - APPROVED Master Plan - D07-12-24-0080
Architectural Plans2025-12-09 - APPROVED Elevations - D07-12-24-0080
Civil Engineering Report2024-11-04 - Civil Plans - D07-12-24-0080
Civil Engineering Report2025-12-09 - APPROVED Civil Drawings - D07-12-24-0080
Design Brief2024-11-04 - Urban Design Brief Policy - D07-12-24-0080
Design Brief2024-08-08 - Urban Design & Policy Brief - D07-12-24-0080
Environmental2024-08-08 - Phase I ESA - D07-12-24-0080
Environmental2025-12-09 - APPROVED Phase I ESA - D07-12-24-0080
Erosion And Sediment Control Plan2024-08-08 - Erosion and Sediment Control Plan - D07-12-24-0080
Erosion And Sediment Control Plan2025-06-05 - Erosion Sediment Control - D07-12-24-0080
Erosion And Sediment Control Plan2025-06-06 - Erosion and Sediment Control Plan - D07-12-24-0080
Existing Conditions2024-08-08 - Existing Conditions and Removals Plan - D07-12-24-0080
Existing Conditions2024-08-08 - Existing Conditions & Removals Plan - D07-12-24-0080
Existing Conditions2025-06-05 - Existing Conditions - D07-12-24-0080
Existing Conditions2025-06-06 - Existing Conditions and Removals Plan - D07-12-24-0080
Geotechnical Report2024-11-04 - Geotechnical Investigation - D07-12-24-0080
Geotechnical Report2024-08-08 - Geotechnical Investigation - D07-12-24-0080
Geotechnical Report2025-06-05 - Geotechnical Investigation Report - D07-12-24-0080
Geotechnical Report2025-12-09 - APPROVED Geotechnical Report - D07-12-24-0080
Landscape Plan2024-11-04 - Landscape Plans - D07-12-24-0080
Landscape Plan2024-08-08 - Landscape Plan - D07-12-24-0080
Landscape Plan2025-08-28 - Landscape Plan - D07-12-24-0080
Planning2024-08-08 - Zoning Confirmation Report - D07-12-24-0080
Planning2025-06-05 - Zoning Confirmation - D07-12-24-0080
Planning2025-08-28 - Zoning Confirmation Report - D07-12-24-0080
Planning2025-12-09 - APPROVED Zoning Confirmation Report - D07-12-24-0080
Shadow Study2024-08-08 - FUS Fire Flow Chart - D07-12-24-0080
Site Servicing2024-11-04 - Site Servicing and SWM Report - D07-12-24-0080
Site Servicing2024-08-08 - Site Servicing Plan - D07-12-24-0080
Site Servicing2024-08-08 - Servicing & SWM Report - D07-12-24-0080
Site Servicing2025-06-05 - Site Servicing Plan - D07-12-24-0080
Site Servicing2025-06-05 - Site Servicing and SWM Report - D07-12-24-0080
Site Servicing2025-06-06 - Site Servicing Plan - D07-12-24-0080
Site Servicing2025-06-06 - Site Servicing and SWM Report - D07-12-24-0080
Site Servicing2025-12-09 - APPROVED Site Servicing & Stormwater Management Report - D07-12-24-0080
Surveying2024-08-15 - Plan of Survey - D07-12-24-0080
Surveying2025-12-09 - APPROVED Plan of Survey - D07-12-24-0080
Tree Information and Conservation2024-11-04 - Tree Conservation Report - D07-12-24-0080
Tree Information and Conservation2024-08-08 - Tree Planting Plan - D07-12-24-0080
Tree Information and Conservation2025-12-09 - APPROVED Tree Information Report - D07-12-24-0080
Tree Information and Conservation2025-12-09 - APPROVED Tree Conservation Report - D07-12-24-0080
2024-11-04 - Image - D07-12-24-0080
2024-08-08 - Pre-Dev Catchments - D07-12-24-0080
2024-08-08 - Post-Dev Catchments - D07-12-24-0080
2024-08-08 - Iteration 1 - D07-12-24-0080
2025-06-05 - PRE Development - D07-12-24-0080
2025-06-05 - Post Development - D07-12-24-0080
2025-06-05 - Notes and Detail - D07-12-24-0080
2025-06-06 - Pre-Development Catchments - D07-12-24-0080
2025-06-06 - Post-Development Catchments - D07-12-24-0080