Ottawa Development Projects

1108 Maisonneuve St.#

Last updated: 2025-12-19 · ID: D07-12-24-0079

Summary#

A Site Plan Control application to construct a four-storey apartment building with 24 residential units and a total floor area of 1316.04m2.

Status
Post Approval (Receipt of Letter of Undertaking from Owner Pending)

Building Scale (Max.) Based on elevation drawings. Values may be approximate. See sources for exact figures.
Mid-rise · 4 storeys · 14.58 m

Renders#

Location#

Select a marker to view the address.

Site Plans, Elevations and Floor Plans#

  • Image from page 30 of the file '2024-11-04 - Urban Design Brief Policy - D07-12-24-0079'
  • Image from page 6 of the file '2024-11-04 - Urban Design Brief Policy - D07-12-24-0079'
  • Image from page 10 of the file '2024-11-04 - Urban Design Brief Policy - D07-12-24-0079'
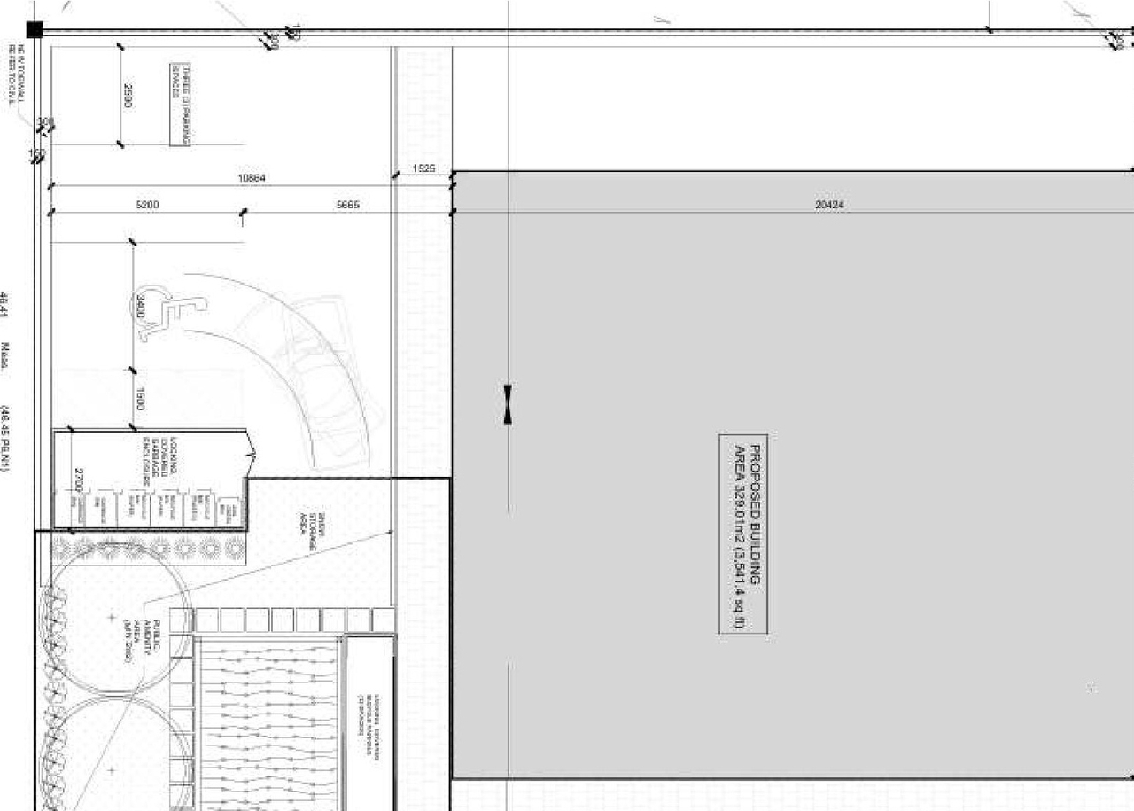
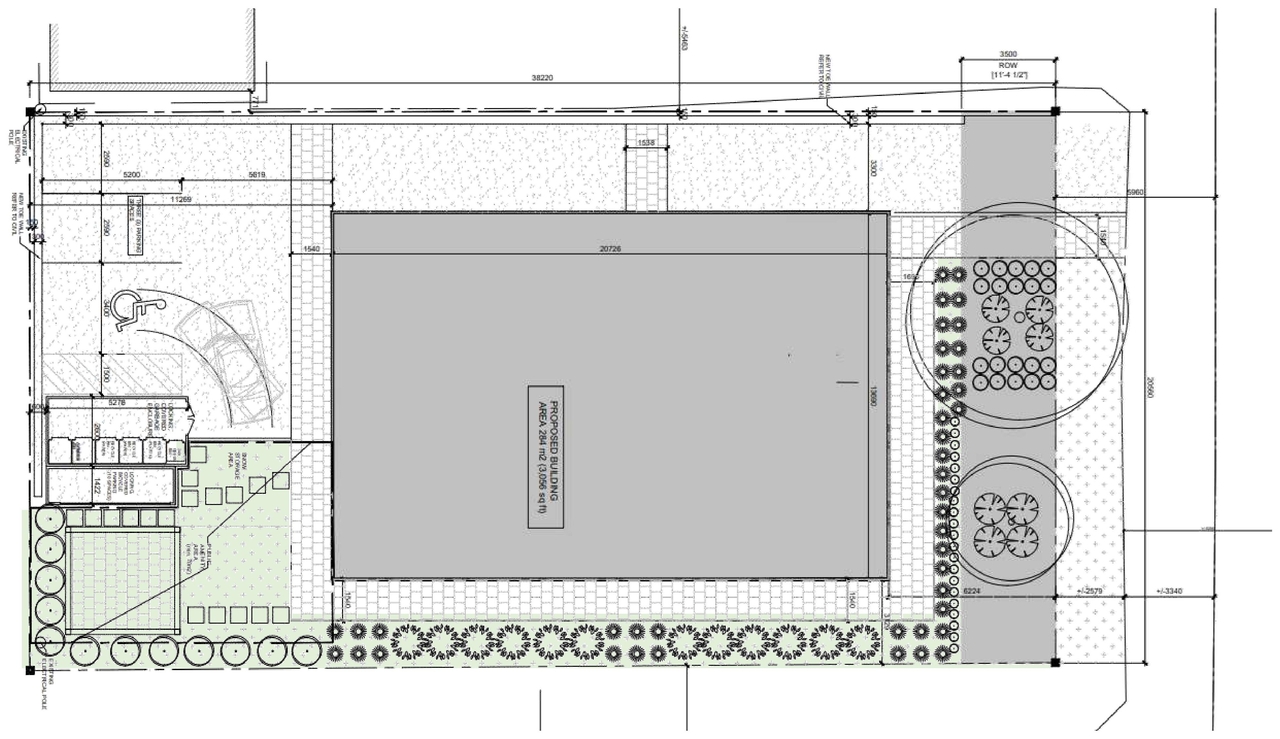
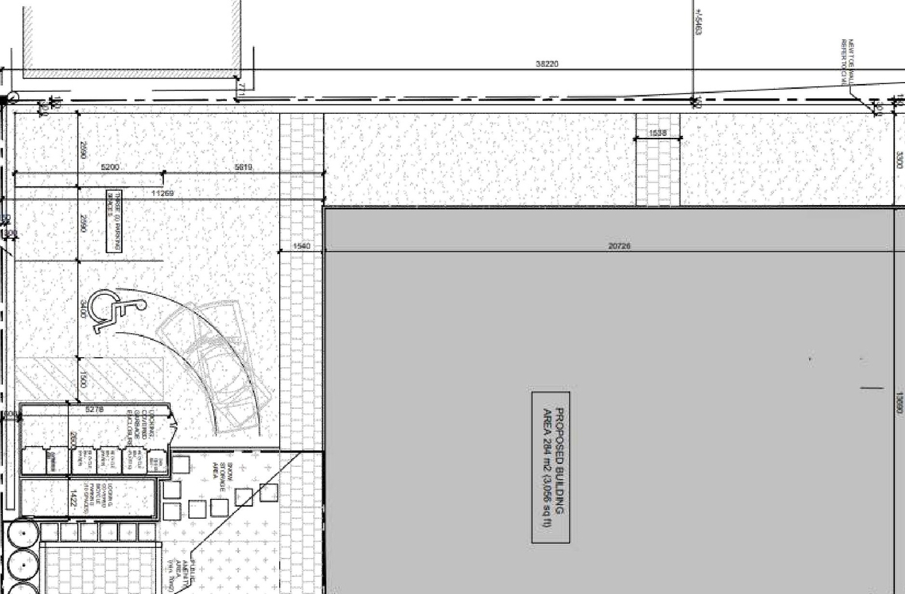
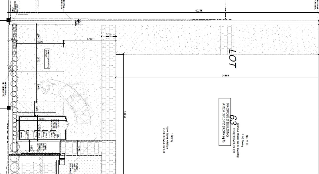
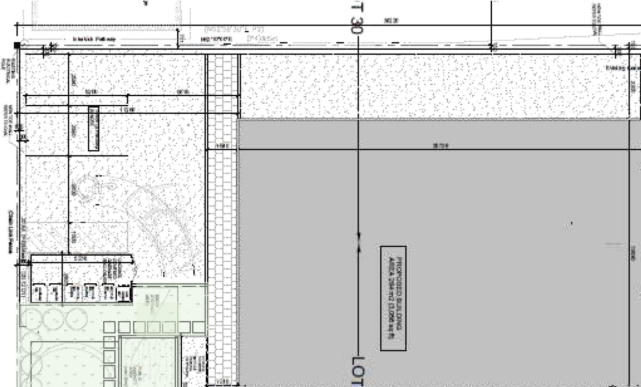
  • Construction site plan for project from page 31 of the file '2025-03-31 - Urban Design Brief & Policy - D07-12-24-0079'
  • Construction site plan for project from page 28 of the file '2025-03-31 - Urban Design Brief & Policy - D07-12-24-0079'
  • Construction site plan for project from page 28 of the file '2024-11-04 - Urban Design Brief Policy - D07-12-24-0079'
  • Construction site plan for project from page 8 of the file '2025-03-31 - Urban Design Brief & Policy - D07-12-24-0079'
  • Construction site plan for project from page 25 of the file '2024-11-04 - Urban Design Brief Policy - D07-12-24-0079'
  • Construction site plan for project from page 18 of the file '2024-08-08 - Urban Design & Policy Brief - D07-12-24-0079'
  • Construction site plan for project from page 8 of the file '2024-11-04 - Urban Design Brief Policy - D07-12-24-0079'
  • Construction site plan for project from page 9 of the file '2024-11-04 - Urban Design Brief Policy - D07-12-24-0079'
  • Construction site plan for project from page 15 of the file '2025-03-31 - Urban Design Brief & Policy - D07-12-24-0079'
  • Construction site plan for project from page 11 of the file '2024-11-04 - Urban Design Brief Policy - D07-12-24-0079'
  • Construction site plan for project from page 31 of the file '2024-11-04 - Urban Design Brief Policy - D07-12-24-0079'
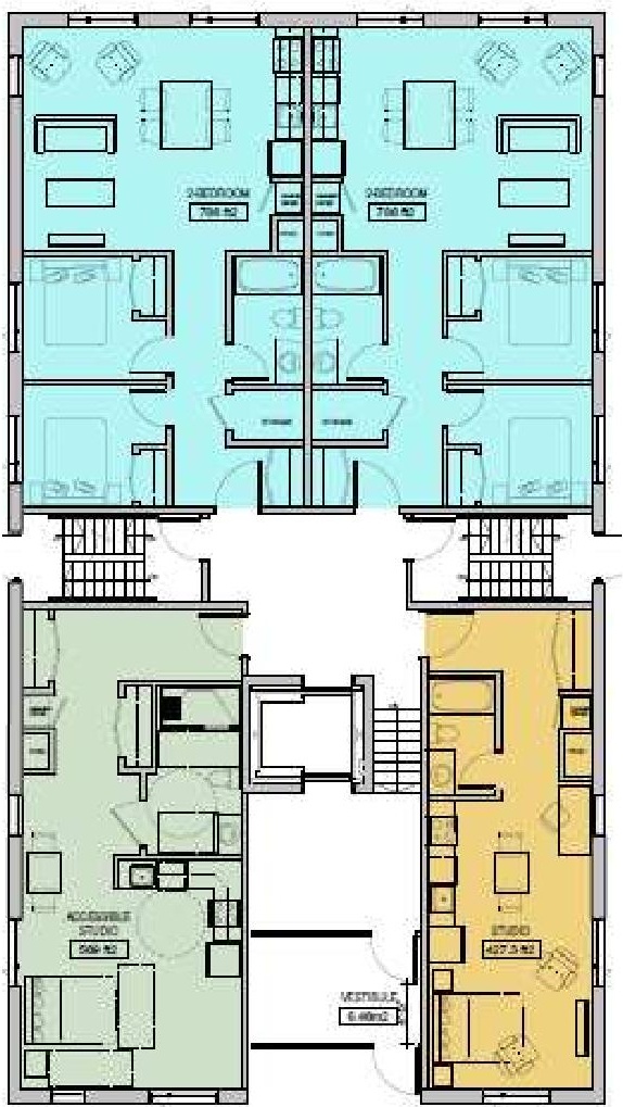
  • Floor plan for project from page 12 of the file '2024-08-08 - Urban Design & Policy Brief - D07-12-24-0079'
  • Floor plan for project from page 9 of the file '2025-03-31 - Urban Design Brief & Policy - D07-12-24-0079'
  • Floor plan for project from page 9 of the file '2024-08-08 - Urban Design & Policy Brief - D07-12-24-0079'
  • Floor plan for project from page 9 of the file '2024-08-08 - Urban Design & Policy Brief - D07-12-24-0079'
  • Floor plan for project from page 9 of the file '2024-11-04 - Urban Design Brief Policy - D07-12-24-0079'
  • Floor plan for project from page 12 of the file '2024-11-04 - Urban Design Brief Policy - D07-12-24-0079'
  • Floor plan for project from page 12 of the file '2025-03-31 - Urban Design Brief & Policy - D07-12-24-0079'
  • Floor plan for project from page 9 of the file '2025-03-31 - Urban Design Brief & Policy - D07-12-24-0079'
  • Floor plan for project from page 9 of the file '2024-08-08 - Urban Design & Policy Brief - D07-12-24-0079'
  • Floor plan for project from page 15 of the file '2025-03-31 - Urban Design Brief & Policy - D07-12-24-0079'
  • Floor plan for project from page 9 of the file '2025-03-31 - Urban Design Brief & Policy - D07-12-24-0079'
  • Floor plan for project from page 12 of the file '2025-03-31 - Urban Design Brief & Policy - D07-12-24-0079'
  • Floor plan for project from page 12 of the file '2024-08-08 - Urban Design & Policy Brief - D07-12-24-0079'
  • Floor plan for project from page 12 of the file '2025-03-31 - Urban Design Brief & Policy - D07-12-24-0079'
  • Floor plan for project from page 15 of the file '2024-11-04 - Urban Design Brief Policy - D07-12-24-0079'
  • Image from page 30 of the file '2024-11-04 - Urban Design Brief Policy - D07-12-24-0079'
  • Image from page 6 of the file '2024-11-04 - Urban Design Brief Policy - D07-12-24-0079'
  • Image from page 10 of the file '2024-11-04 - Urban Design Brief Policy - D07-12-24-0079'
  • Construction site plan for project from page 31 of the file '2025-03-31 - Urban Design Brief & Policy - D07-12-24-0079'
  • Construction site plan for project from page 28 of the file '2025-03-31 - Urban Design Brief & Policy - D07-12-24-0079'
  • Construction site plan for project from page 28 of the file '2024-11-04 - Urban Design Brief Policy - D07-12-24-0079'
  • Construction site plan for project from page 8 of the file '2025-03-31 - Urban Design Brief & Policy - D07-12-24-0079'
  • Construction site plan for project from page 25 of the file '2024-11-04 - Urban Design Brief Policy - D07-12-24-0079'
  • Construction site plan for project from page 18 of the file '2024-08-08 - Urban Design & Policy Brief - D07-12-24-0079'
  • Construction site plan for project from page 8 of the file '2024-11-04 - Urban Design Brief Policy - D07-12-24-0079'
  • Construction site plan for project from page 9 of the file '2024-11-04 - Urban Design Brief Policy - D07-12-24-0079'
  • Construction site plan for project from page 15 of the file '2025-03-31 - Urban Design Brief & Policy - D07-12-24-0079'
  • Construction site plan for project from page 11 of the file '2024-11-04 - Urban Design Brief Policy - D07-12-24-0079'
  • Construction site plan for project from page 31 of the file '2024-11-04 - Urban Design Brief Policy - D07-12-24-0079'
  • Floor plan for project from page 12 of the file '2024-08-08 - Urban Design & Policy Brief - D07-12-24-0079'
  • Floor plan for project from page 9 of the file '2025-03-31 - Urban Design Brief & Policy - D07-12-24-0079'
  • Floor plan for project from page 9 of the file '2024-08-08 - Urban Design & Policy Brief - D07-12-24-0079'
  • Floor plan for project from page 9 of the file '2024-08-08 - Urban Design & Policy Brief - D07-12-24-0079'
  • Floor plan for project from page 9 of the file '2024-11-04 - Urban Design Brief Policy - D07-12-24-0079'
  • Floor plan for project from page 12 of the file '2024-11-04 - Urban Design Brief Policy - D07-12-24-0079'
  • Floor plan for project from page 12 of the file '2025-03-31 - Urban Design Brief & Policy - D07-12-24-0079'
  • Floor plan for project from page 9 of the file '2025-03-31 - Urban Design Brief & Policy - D07-12-24-0079'
  • Floor plan for project from page 9 of the file '2024-08-08 - Urban Design & Policy Brief - D07-12-24-0079'
  • Floor plan for project from page 15 of the file '2025-03-31 - Urban Design Brief & Policy - D07-12-24-0079'
  • Floor plan for project from page 9 of the file '2025-03-31 - Urban Design Brief & Policy - D07-12-24-0079'
  • Floor plan for project from page 12 of the file '2025-03-31 - Urban Design Brief & Policy - D07-12-24-0079'
  • Floor plan for project from page 12 of the file '2024-08-08 - Urban Design & Policy Brief - D07-12-24-0079'
  • Floor plan for project from page 12 of the file '2025-03-31 - Urban Design Brief & Policy - D07-12-24-0079'
  • Floor plan for project from page 15 of the file '2024-11-04 - Urban Design Brief Policy - D07-12-24-0079'

Additional Information#

Date Initiated2024-08-08
WardWard 1 - Matthew Luloff

Documents#

TypeDocument
Application Summary2025-03-31 - Application Summary - D07-12-24-0079
Architectural Plans2024-11-04 - Site Plan - D07-12-24-0079
Architectural Plans2024-11-04 - Preliminary Construction Management Plan - D07-12-24-0079
Architectural Plans2024-11-04 - Notes and Details - D07-12-24-0079
Architectural Plans2024-11-04 - Elevations - D07-12-24-0079
Architectural Plans2024-11-04 - Demolition -Site Plan - D07-12-24-0079
Architectural Plans2024-11-04 - Architectural Drawings - D07-12-24-0079
Architectural Plans2024-08-15 - Site Plan - D07-12-24-0079
Architectural Plans2024-08-08 - Site Plan - D07-12-24-0079
Architectural Plans2024-08-08 - Site Grading Plan - D07-12-24-0079
Architectural Plans2024-08-08 - Preliminary Construction Management Plan - D07-12-24-0079
Architectural Plans2024-08-08 - Master Concept Plan - D07-12-24-0079
Architectural Plans2024-08-08 - Elevations - D07-12-24-0079
Architectural Plans2025-03-31 - Site plan - Demolition - D07-12-24-0079
Architectural Plans2025-03-31 - Site plan - Construction - D07-12-24-0079
Architectural Plans2025-01-22 - Elevations - D07-12-24-0079
Architectural Plans2025-06-10 - Site Plan - D07-12-24-0079
Architectural Plans2025-12-11 - APPROVED Site Plan Approval Report - D07-12-24-0079
Architectural Plans2025-12-11 - APPROVED Site Plan - D07-12-24-0079
Architectural Plans2025-12-11 - APPROVED Preliminary Construction Management Plan - D07-12-24-0079
Architectural Plans2025-12-11 - APPROVED Elevations - D07-12-24-0079
Civil Engineering Report2025-06-10 - Civil Drawings - D07-12-24-0079
Civil Engineering Report2025-12-11 - APPROVED Civil Drawings - D07-12-24-0079
Design Brief2024-11-04 - Urban Design Brief Policy - D07-12-24-0079
Design Brief2024-08-08 - Urban Design & Policy Brief - D07-12-24-0079
Design Brief2025-03-31 - Urban Design Brief & Policy - D07-12-24-0079
Environmental2024-08-08 - Phase I ESA - D07-12-24-0079
Environmental2025-12-11 - APPROVED Phase I ESA - D07-12-24-0079
Erosion And Sediment Control Plan2024-11-04 - Erosion and Sediment Control Plan - D07-12-24-0079
Erosion And Sediment Control Plan2024-08-08 - Erosion and Sediment Control Plan - D07-12-24-0079
Existing Conditions2024-11-04 - Existing Conditions and Removals Plan - D07-12-24-0079
Existing Conditions2024-08-08 - Existing Conditions and Removals Plan - D07-12-24-0079
Existing Conditions2024-08-08 - Existing Conditions & Removals Plan - D07-12-24-0079
Geotechnical Report2024-11-04 - Grading Plan - D07-12-24-0079
Geotechnical Report2024-08-08 - Geotechnical Investigation - D07-12-24-0079
Geotechnical Report2025-03-31 - Geotechnical Investigation - D07-12-24-0079
Landscape Plan2025-03-31 - Landscape Plan - D07-12-24-0079
Landscape Plan2025-06-10 - Landscape Plan - D07-12-24-0079
Landscape Plan2025-12-11 - APPROVED Landscape Plan - D07-12-24-0079
Planning2024-08-08 - Zoning Confirmation Report - D07-12-24-0079
Planning2025-01-22 - Zoning Confirmation Report - D07-12-24-0079
Planning2025-12-11 - APPROVED Zoning Confirmation Report - D07-12-24-0079
Shadow Study2024-08-08 - FUS Fire Flow Chart - D07-12-24-0079
Site Servicing2024-11-04 - Site Servicing Plan - D07-12-24-0079
Site Servicing2024-11-04 - Site Servicing and Stormwater Management Report - D07-12-24-0079
Site Servicing2024-08-08 - Site Servicing Plan - D07-12-24-0079
Site Servicing2024-08-08 - Site Servicing and SWM Report - D07-12-24-0079
Site Servicing2025-06-10 - Servicing and SWM Report - D07-12-24-0079
Site Servicing2025-12-11 - APPROVED Site Servicing & Stormwater Management Report - D07-12-24-0079
Surveying2024-08-15 - Plan of Survey - D07-12-24-0079
Surveying2025-12-11 - APPROVED Plan of Survey - D07-12-24-0079
Tree Information and Conservation2024-11-04 - Tree Conservation Report - D07-12-24-0079
Tree Information and Conservation2024-08-08 - Tree Planting Plan - D07-12-24-0079
Tree Information and Conservation2025-12-11 - APPROVED Tree Planting Plan - D07-12-24-0079
Tree Information and Conservation2025-12-11 - APPROVED Tree Conservation Report - D07-12-24-0079
2024-11-04 - Pre-Development - Cathments - D07-12-24-0079
2024-11-04 - Post-Development Cathments - D07-12-24-00790
2024-11-04 - Maisonneuve -D07-12-24-0079
2024-08-08 - Pre-Dev Catchments - D07-12-24-0079
2024-08-08 - Post-Dev Catchments - D07-12-24-0079
2024-08-08 - Iteration 1 - D07-12-24-0079
2025-12-11 - APPROVED Geotechincal Report - D07-12-24-0079