Ottawa Development Projects

1136 Gabriel St.#

Last updated: 2026-01-27 · ID: D07-12-24-0078

Summary#

A Site Plan Control application to construct a four-storey apartment building with 20 residential units and a total floor area of 1,335.2m2.

Status
Inactive (Agreement Registered - Final Legal Clearance Given)

Building Scale (Max.) Based on elevation drawings. Values may be approximate. See sources for exact figures.
Mid-rise · 4 storeys · 14.58 m

Renders#

Location#

Select a marker to view the address.

Site Plans, Elevations and Floor Plans#

  • Image from page 30 of the file '2024-11-04 - Urban Design & Planning Policy Brief - D07-12-24-0078'
  • Image from page 6 of the file '2024-11-04 - Urban Design & Planning Policy Brief - D07-12-24-0078'
  • Image from page 10 of the file '2024-11-04 - Urban Design & Planning Policy Brief - D07-12-24-0078'
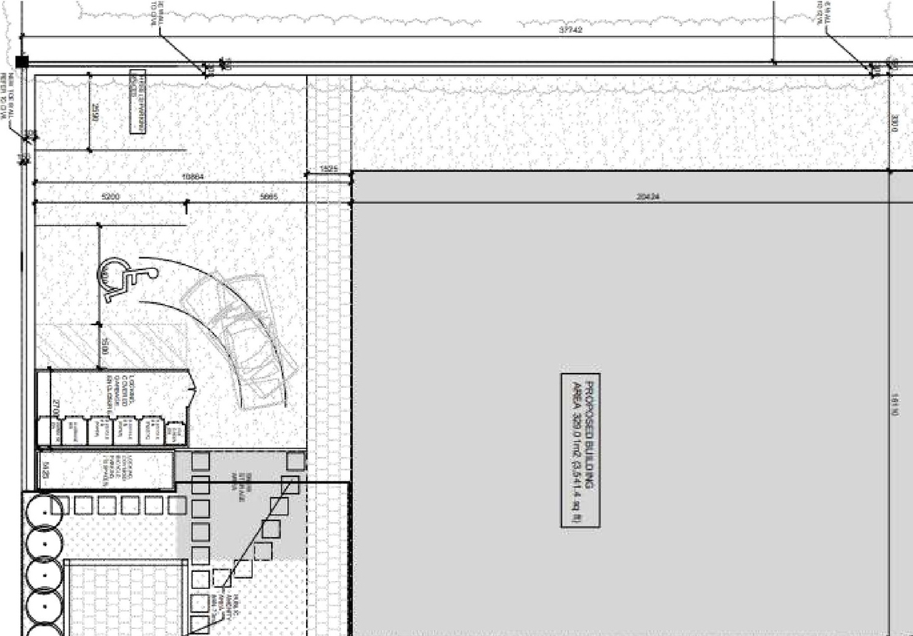
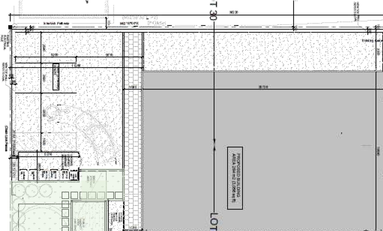
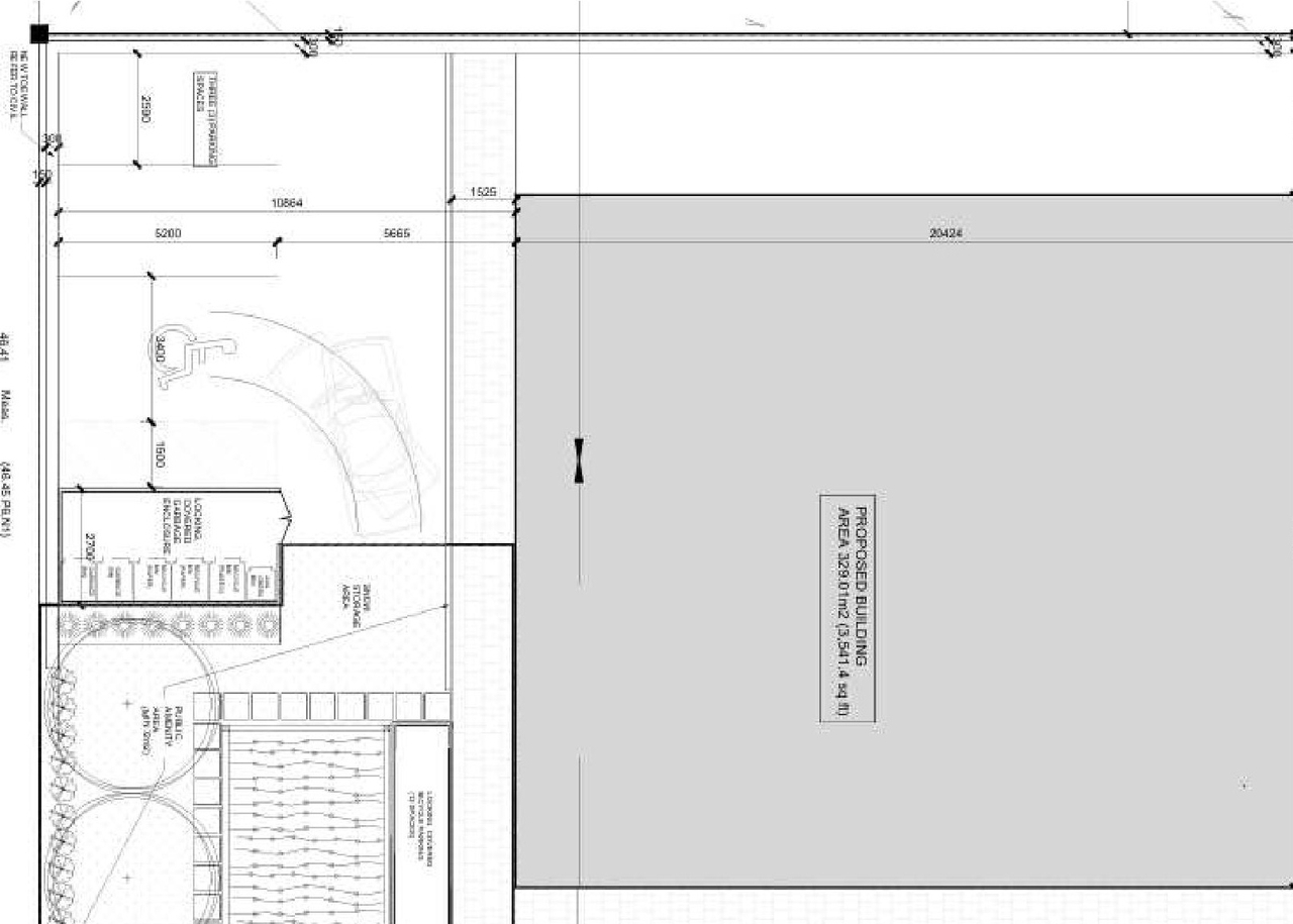
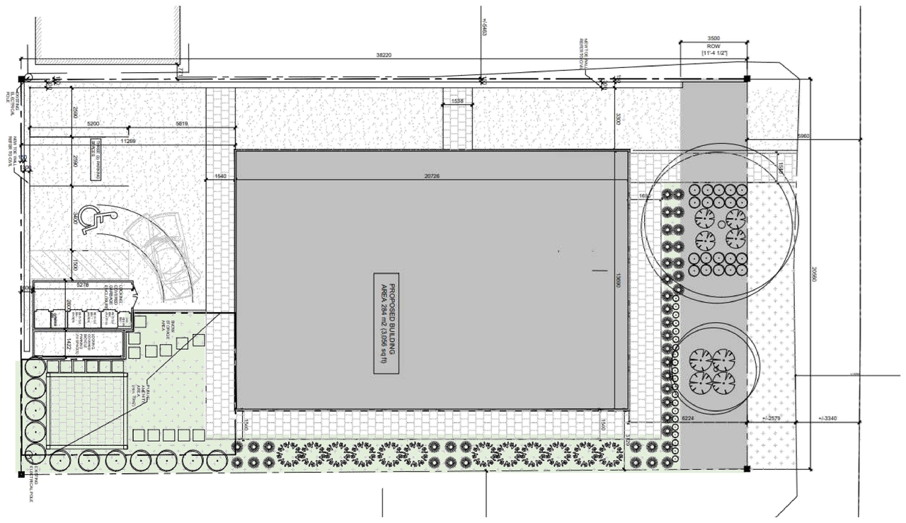
  • Construction site plan for project from page 31 of the file '2025-03-31 - Urban Design Brief & Policy - D07-12-24-0078'
  • Construction site plan for project from page 28 of the file '2025-03-31 - Urban Design Brief & Policy - D07-12-24-0078'
  • Construction site plan for project from page 28 of the file '2024-11-04 - Urban Design & Planning Policy Brief - D07-12-24-0078'
  • Construction site plan for project from page 8 of the file '2025-03-31 - Urban Design Brief & Policy - D07-12-24-0078'
  • Construction site plan for project from page 25 of the file '2024-11-04 - Urban Design & Planning Policy Brief - D07-12-24-0078'
  • Construction site plan for project from page 18 of the file '2024-08-07 - Urban Design Brief & Policy - D07-12-24-0078'
  • Construction site plan for project from page 8 of the file '2024-11-04 - Urban Design & Planning Policy Brief - D07-12-24-0078'
  • Construction site plan for project from page 9 of the file '2024-11-04 - Urban Design & Planning Policy Brief - D07-12-24-0078'
  • Construction site plan for project from page 15 of the file '2025-03-31 - Urban Design Brief & Policy - D07-12-24-0078'
  • Construction site plan for project from page 11 of the file '2024-11-04 - Urban Design & Planning Policy Brief - D07-12-24-0078'
  • Construction site plan for project from page 31 of the file '2024-11-04 - Urban Design & Planning Policy Brief - D07-12-24-0078'
  • Floor plan for project from page 12 of the file '2024-08-07 - Urban Design Brief & Policy - D07-12-24-0078'
  • Floor plan for project from page 9 of the file '2025-03-31 - Urban Design Brief & Policy - D07-12-24-0078'
  • Floor plan for project from page 9 of the file '2024-08-07 - Urban Design Brief & Policy - D07-12-24-0078'
  • Floor plan for project from page 9 of the file '2024-08-07 - Urban Design Brief & Policy - D07-12-24-0078'
  • Floor plan for project from page 9 of the file '2024-11-04 - Urban Design & Planning Policy Brief - D07-12-24-0078'
  • Floor plan for project from page 12 of the file '2024-11-04 - Urban Design & Planning Policy Brief - D07-12-24-0078'
  • Floor plan for project from page 12 of the file '2025-03-31 - Urban Design Brief & Policy - D07-12-24-0078'
  • Floor plan for project from page 9 of the file '2025-03-31 - Urban Design Brief & Policy - D07-12-24-0078'
  • Floor plan for project from page 9 of the file '2024-08-07 - Urban Design Brief & Policy - D07-12-24-0078'
  • Floor plan for project from page 15 of the file '2025-03-31 - Urban Design Brief & Policy - D07-12-24-0078'
  • Floor plan for project from page 15 of the file '2025-03-31 - Urban Design Brief & Policy - D07-12-24-0078'
  • Floor plan for project from page 9 of the file '2025-03-31 - Urban Design Brief & Policy - D07-12-24-0078'
  • Floor plan for project from page 12 of the file '2025-03-31 - Urban Design Brief & Policy - D07-12-24-0078'
  • Floor plan for project from page 12 of the file '2024-08-07 - Urban Design Brief & Policy - D07-12-24-0078'
  • Floor plan for project from page 12 of the file '2025-03-31 - Urban Design Brief & Policy - D07-12-24-0078'
  • Floor plan for project from page 15 of the file '2024-11-04 - Urban Design & Planning Policy Brief - D07-12-24-0078'
  • Image from page 30 of the file '2024-11-04 - Urban Design & Planning Policy Brief - D07-12-24-0078'
  • Image from page 6 of the file '2024-11-04 - Urban Design & Planning Policy Brief - D07-12-24-0078'
  • Image from page 10 of the file '2024-11-04 - Urban Design & Planning Policy Brief - D07-12-24-0078'
  • Construction site plan for project from page 31 of the file '2025-03-31 - Urban Design Brief & Policy - D07-12-24-0078'
  • Construction site plan for project from page 28 of the file '2025-03-31 - Urban Design Brief & Policy - D07-12-24-0078'
  • Construction site plan for project from page 28 of the file '2024-11-04 - Urban Design & Planning Policy Brief - D07-12-24-0078'
  • Construction site plan for project from page 8 of the file '2025-03-31 - Urban Design Brief & Policy - D07-12-24-0078'
  • Construction site plan for project from page 25 of the file '2024-11-04 - Urban Design & Planning Policy Brief - D07-12-24-0078'
  • Construction site plan for project from page 18 of the file '2024-08-07 - Urban Design Brief & Policy - D07-12-24-0078'
  • Construction site plan for project from page 8 of the file '2024-11-04 - Urban Design & Planning Policy Brief - D07-12-24-0078'
  • Construction site plan for project from page 9 of the file '2024-11-04 - Urban Design & Planning Policy Brief - D07-12-24-0078'
  • Construction site plan for project from page 15 of the file '2025-03-31 - Urban Design Brief & Policy - D07-12-24-0078'
  • Construction site plan for project from page 11 of the file '2024-11-04 - Urban Design & Planning Policy Brief - D07-12-24-0078'
  • Construction site plan for project from page 31 of the file '2024-11-04 - Urban Design & Planning Policy Brief - D07-12-24-0078'
  • Floor plan for project from page 12 of the file '2024-08-07 - Urban Design Brief & Policy - D07-12-24-0078'
  • Floor plan for project from page 9 of the file '2025-03-31 - Urban Design Brief & Policy - D07-12-24-0078'
  • Floor plan for project from page 9 of the file '2024-08-07 - Urban Design Brief & Policy - D07-12-24-0078'
  • Floor plan for project from page 9 of the file '2024-08-07 - Urban Design Brief & Policy - D07-12-24-0078'
  • Floor plan for project from page 9 of the file '2024-11-04 - Urban Design & Planning Policy Brief - D07-12-24-0078'
  • Floor plan for project from page 12 of the file '2024-11-04 - Urban Design & Planning Policy Brief - D07-12-24-0078'
  • Floor plan for project from page 12 of the file '2025-03-31 - Urban Design Brief & Policy - D07-12-24-0078'
  • Floor plan for project from page 9 of the file '2025-03-31 - Urban Design Brief & Policy - D07-12-24-0078'
  • Floor plan for project from page 9 of the file '2024-08-07 - Urban Design Brief & Policy - D07-12-24-0078'
  • Floor plan for project from page 15 of the file '2025-03-31 - Urban Design Brief & Policy - D07-12-24-0078'
  • Floor plan for project from page 15 of the file '2025-03-31 - Urban Design Brief & Policy - D07-12-24-0078'
  • Floor plan for project from page 9 of the file '2025-03-31 - Urban Design Brief & Policy - D07-12-24-0078'
  • Floor plan for project from page 12 of the file '2025-03-31 - Urban Design Brief & Policy - D07-12-24-0078'
  • Floor plan for project from page 12 of the file '2024-08-07 - Urban Design Brief & Policy - D07-12-24-0078'
  • Floor plan for project from page 12 of the file '2025-03-31 - Urban Design Brief & Policy - D07-12-24-0078'
  • Floor plan for project from page 15 of the file '2024-11-04 - Urban Design & Planning Policy Brief - D07-12-24-0078'

Additional Information#

Date Initiated2024-08-07
WardWard 1 - Matthew Luloff

Documents#

TypeDocument
Application Summary2025-03-31 - Application Summary - D07-12-24-0078
Architectural Plans2024-11-04 - Site Plan - D07-12-24-0078
Architectural Plans2024-11-04 - Site Grading Plan - D07-12-24-0078
Architectural Plans2024-11-04 - Pre-Dev Drainage Plan - D07-12-24-0078
Architectural Plans2024-11-04 - Post-Dev Drainage Plan - D07-12-24-0078
Architectural Plans2024-11-04 - Elevations - D07-12-24-0078
Architectural Plans2024-11-04 - Demolition Site Plan - D07-12-24-0078
Architectural Plans2024-11-04 - Architectural Plans - D07-12-24-0078
Architectural Plans2024-08-15 - Site Plan - D07-12-24-0078
Architectural Plans2024-08-07 - Site Plan - D07-12-24-0078
Architectural Plans2024-08-07 - Preliminary Construction Management Plan - D07-12-24-0078
Architectural Plans2024-08-07 - Plan C500 - Post Development Drainage Plan - D07-12-24-0078
Architectural Plans2024-08-07 - Plan C400 - Pre-Development Drainage Plan D07-12-24-0078
Architectural Plans2024-08-07 - Plan C300 Erosion and Sediment Control Plan - D07-12-24-0078
Architectural Plans2024-08-07 - Plan C200 - Site Grading Plan - D07-12-24-0078
Architectural Plans2024-08-07 - Plan C100 - Site Servicing Plan - D07-12-24-0078
Architectural Plans2024-08-07 - Plan C001 Details and Notes -D07-12-24-0078
Architectural Plans2024-08-07 - Plan C000 - Existing Conditions and Removals Plan - D07-12-24-0078
Architectural Plans2024-08-07 - Building Elevations - D07-12-24-0078
Architectural Plans2025-03-31 - Site Plan - D07-12-24-0078
Architectural Plans2025-03-31 - Master Plan L1 - D07-12-24-0078
Architectural Plans2025-03-31 - Demo-Site Plan - D07-12-24-0078
Architectural Plans2025-06-10 - Site Plan - D07-12-24-0078
Architectural Plans2025-06-10 - Master Plan L1 - D07-12-24-0078
Architectural Plans2025-08-26 - APPROVED Site Plan Approval Report - D07-12-24-0078
Architectural Plans2025-08-26 - APPROVED Site Plan - D07-12-24-0078
Architectural Plans2025-08-26 - APPROVED Master Plan - D07-12-24-0078
Architectural Plans2025-08-26 - APPROVED Elevations - D07-12-24-0078
Civil Engineering Report2024-08-07 - Civil Plans - D07-12-24-0078
Civil Engineering Report2025-06-10 - Civil Drawings - D07-12-24-0078
Civil Engineering Report2025-08-26 - APPROVED Civil Drawings - D07-12-24-0078
Design Brief2024-11-04 - Urban Design & Planning Policy Brief - D07-12-24-0078
Design Brief2024-08-07 - Urban Design Brief & Policy - D07-12-24-0078
Design Brief2025-03-31 - Urban Design Brief & Policy - D07-12-24-0078
Environmental2024-08-07 - Phase One Environmental Site Assessment - D07-12-24-0078
Environmental2025-08-26 - APPROVED Phase One Environmental Site Assessment - D07-12-24-0078
Erosion And Sediment Control Plan2024-11-04 - Erosion and Sediment Control Plan - D07-12-24-0078
Existing Conditions2024-11-04 - Existing Conditions and Removals Plan - D07-12-24-0078
Geotechnical Report2024-11-04 - Geotechnical Investigation - D07-12-24-0078
Geotechnical Report2024-08-07 - Geotechnical Investigation - D07-12-24-0078
Geotechnical Report2025-03-31 - Geotechnical Report - D07-12-24-0078
Geotechnical Report2025-08-26 - APPROVED Geotechnical Investigation - D07-12-24-0078
Landscape Plan2024-11-04 - Landscape Plan - D07-12-24-0078
Landscape Plan2024-08-07 - Landscape Plan - D07-12-24-0078
Noise Study2024-11-04 - Transportation Noise Assessment - D07-12-24-0078
Noise Study2024-08-07 - Transportation Noise Assessment - D07-12-24-0078
Noise Study2025-08-26 - APPROVED Transportation Noise Assessment - D07-12-24-0078
Planning2024-08-07 - Zoning Confirmation - D07-12-24-0078
Shadow Study2024-08-07 - FUS Fire Flow Calcs - D07-12-24-0078
Site Servicing2024-11-04 - Site Servicing Plan - D07-12-24-0078
Site Servicing2024-11-04 - Site Servicing and SWM Report - D07-12-24-0078
Site Servicing2024-08-07 - Site Servicing and SWM Report - D07-12-24-0078
Site Servicing2025-06-10 - Site Servicing and SWM Report - D07-12-24-0078
Site Servicing2025-08-26 - APPROVED Site Servicing & Stormwater Management Report - D07-12-24-0078
Surveying2024-08-15 - Plan of Survey - D07-12-24-0078
Surveying2025-03-31 - Survey - D07-12-24-0078
Tree Information and Conservation2024-11-04 - Tree Conservation Report - D07-12-24-0078
Tree Information and Conservation2024-08-07 - Tree planting plan - D07-12-24-0078
Tree Information and Conservation2024-08-07 - Tree Information Report - D07-12-24-0078
Tree Information and Conservation2025-08-26 - APPROVED Tree Planting Plan - D07-12-24-0078
Tree Information and Conservation2025-08-26 - APPROVED Tree Information Report - D07-12-24-0078
Tree Information and Conservation2025-08-26 - APPROVED Tree Conservation Report - D07-12-24-0078
2024-11-04 - Iteration 1 - D07-12-24-0078
2024-11-04 - Details and Notes - D07-12-24-0078
2024-08-07 - Image - D07-12-24-0078