1330 Avenue K/25 Pickering Pl.#
Last updated: 2026-02-05 · ID: D07-12-24-0077
Summary#
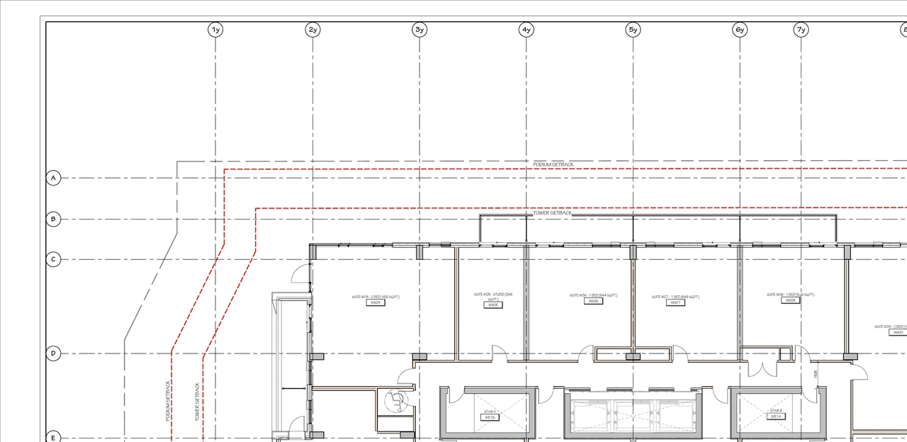
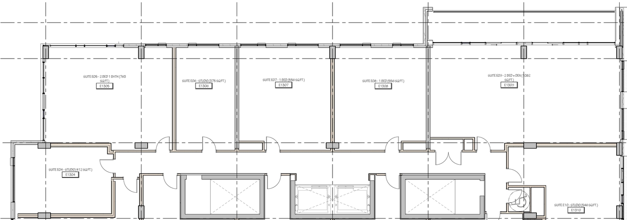
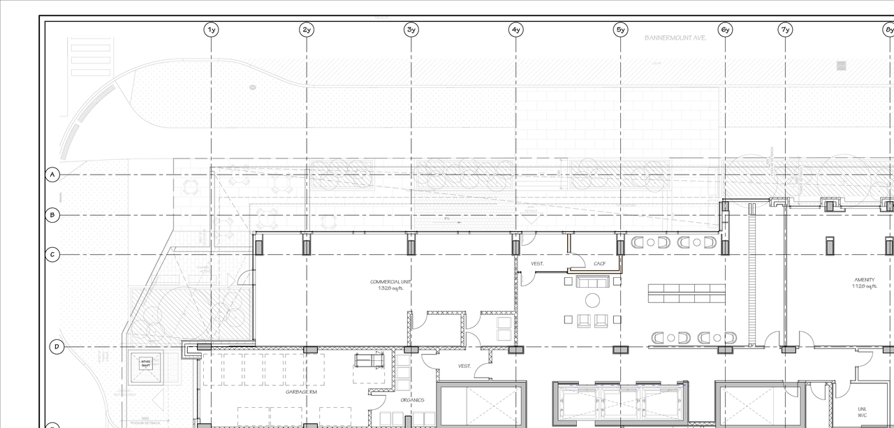
The City of Ottawa has received a Site Plan Control application to construct two mixed-use high-rise apartment dwellings of 28 and 14 storeys in height. The buildings will contain 483 units and associated underground parking.
Status
Post Approval (Request for Agreement Received)
Building Scale (Max.)
Based on elevation drawings. Values may be approximate. See sources for exact figures.
High-rise · 28 storeys
· 93.8 m
Location#
Select a marker to view the address.
Site Plans, Elevations and Floor Plans#
Additional Information#
| Date Initiated | 2024-08-07 |
| Ward | Ward 18 - Marty Carr |







