1525-1545 Sieveright Rd./1452-1470 Hunt Club Rd.#
Last updated: 2026-02-04 · ID: D07-12-24-0068
Summary#
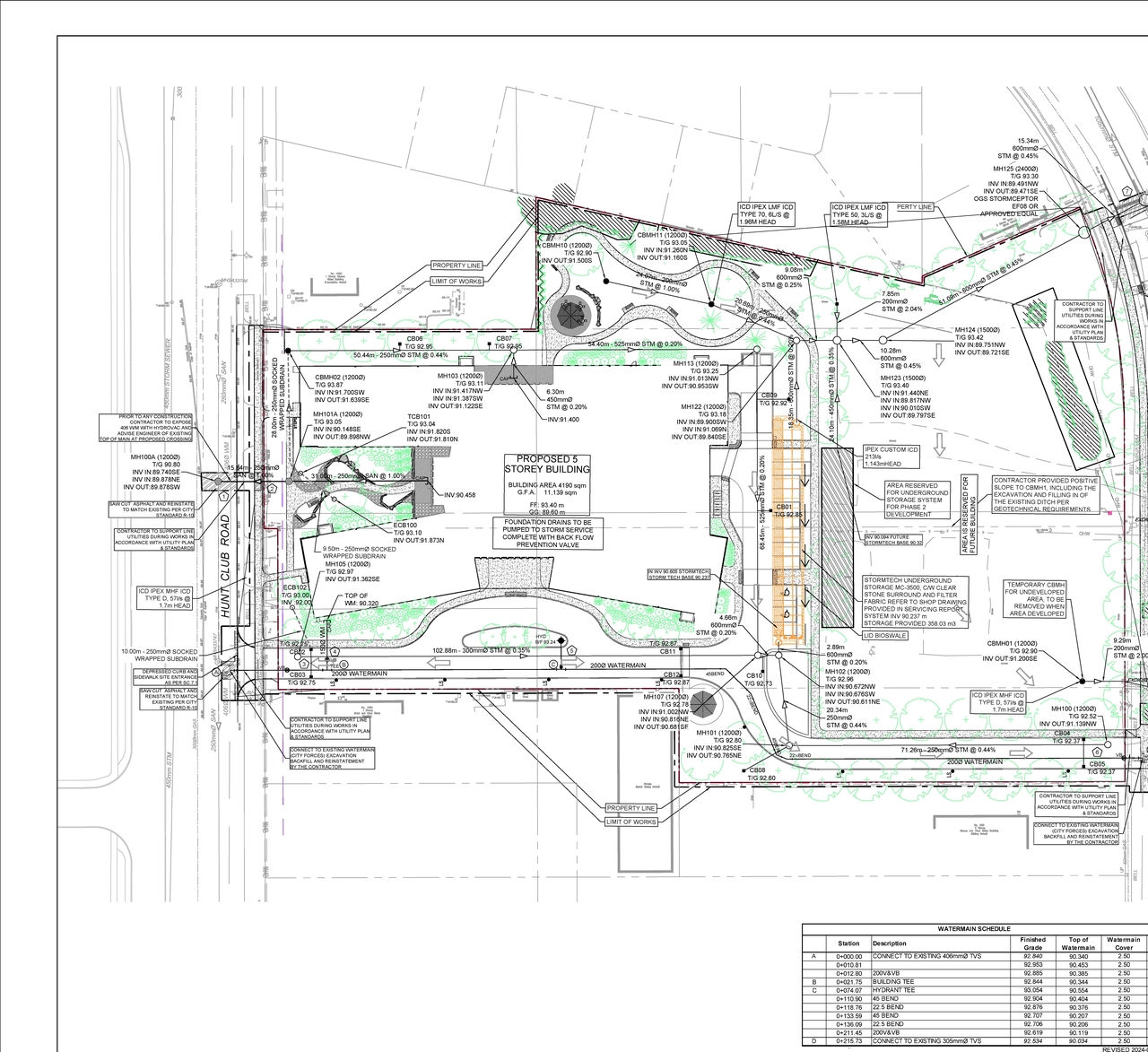
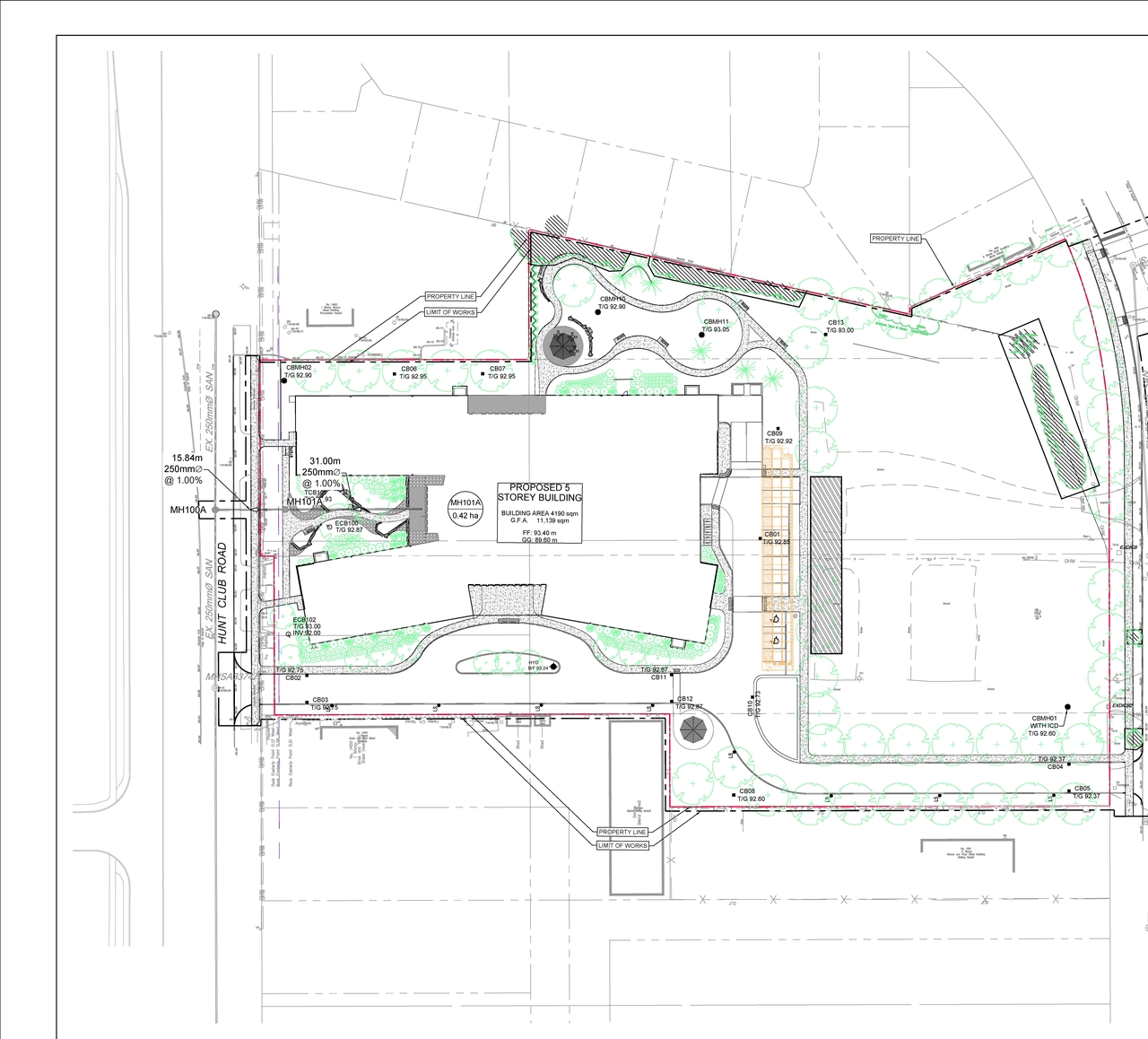
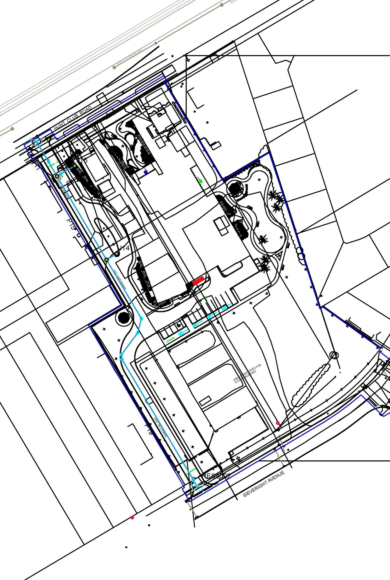
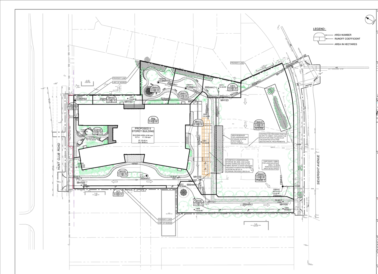
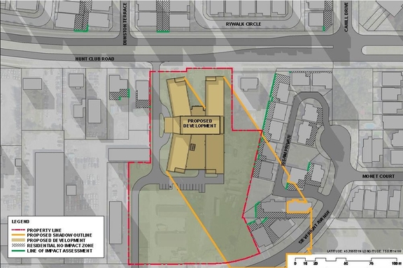
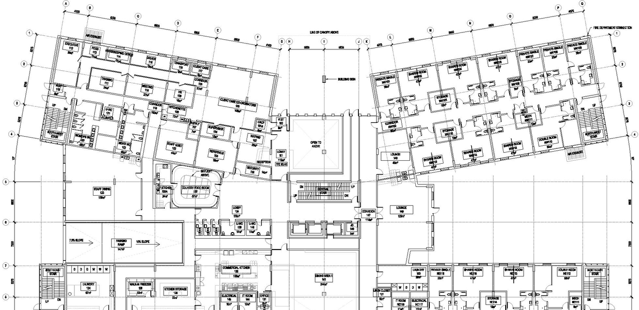
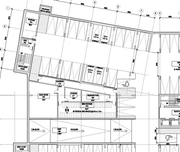
A five (5) storey residential care facility is proposed to be developed on the subject property. The proposed development will include 176 units. A total of 94 parking spaces are proposed, with 81 of those spaces located in an underground parking garage and 13 spaces located at-grade at the south end of the building.
Status
Post Approval (Request for Agreement Received)
Building Scale (Max.)
Based on elevation drawings. Values may be approximate. See sources for exact figures.
Mid-rise · 5 storeys
Data Quality Note
Text was extracted using optical character recognition. This may introduce artifacts or misreads.
· 25.9 m
Data Quality Note
Text was extracted using optical character recognition. This may introduce artifacts or misreads.
Renders#
Location#
Select a marker to view the address.
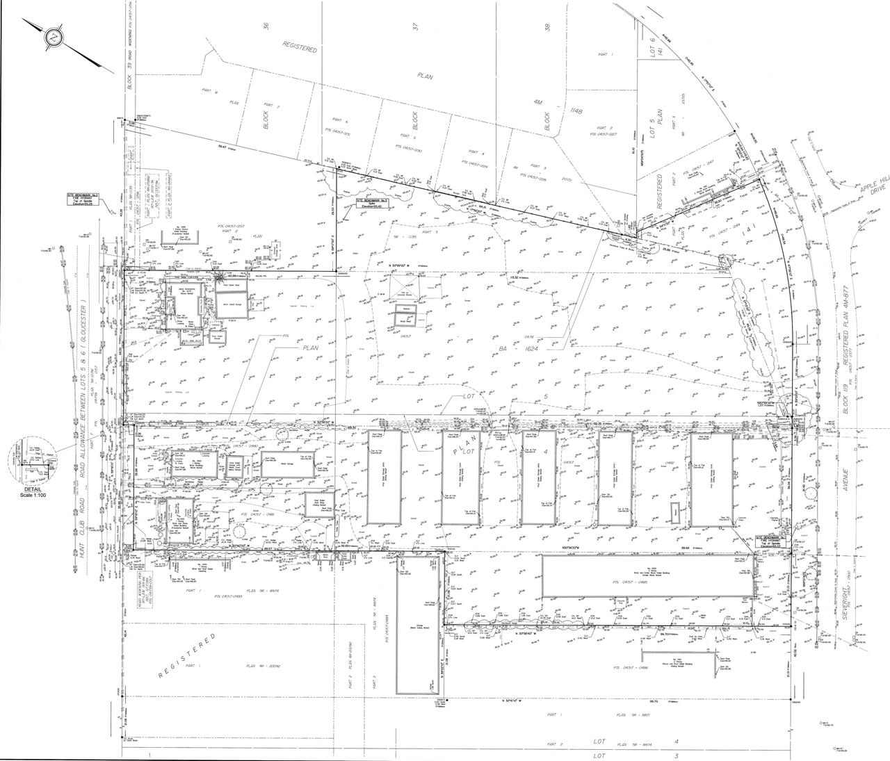
Site Plans, Elevations and Floor Plans#
Additional Information#
| Date Initiated | 2024-07-24 |
| Ward | Ward 10 - Jessica Bradley |
| All Addresses | 1525 Sieveright Rd. 1531 Sieveright Rd. 1545 Sieveright Rd. 1452 Hunt Club Rd. 1460 Hunt Club Rd. 1470 Hunt Club Rd. |







































