Ottawa Development Projects

2865 Riverside Dr.#

Last updated: 2025-08-20 · ID: D07-12-24-0064

Summary#

7-storey new senior’s apartments next to existing long-term care facility building and associated expansion and revision to existing parking lot and landscape area.

Status
Post Approval (Receipt of Agreement from Owner Pending)

Building Scale (Max.) Based on elevation drawings. Values may be approximate. See sources for exact figures.
Mid-rise · 7 storeys · 23.8 m

Renders#

Location#

Select a marker to view the address.

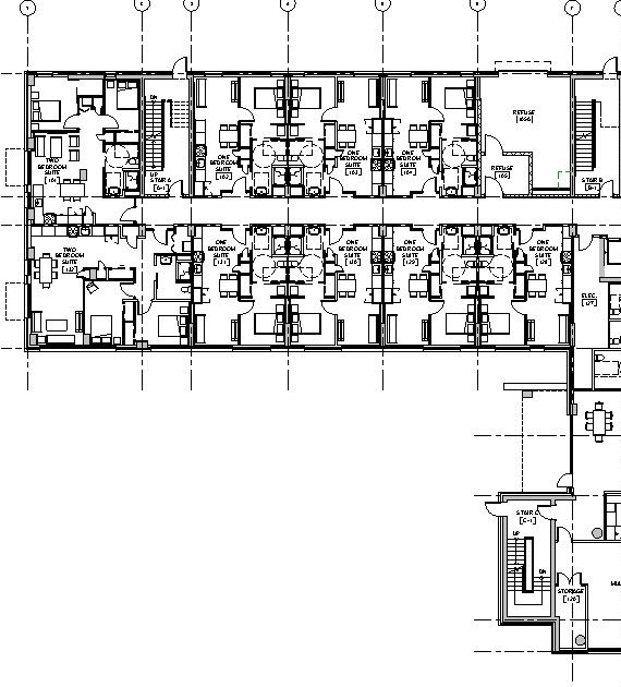
Site Plans, Elevations and Floor Plans#

Additional Information#

Date Initiated2024-07-19
WardWard 16 - Riley Brockington

Documents#

TypeDocument
Application Summary2024-07-29 - Application Summary - D07-12-24-0064
Application Summary2024-08-01 - Application Summary (update) - D07-12-24-0064
Architectural Plans2024-07-29 - Study and Plan Identification - D07-12-24-0064
Architectural Plans2024-07-30 - Site Plan Details - D07-12-24-0064
Architectural Plans2024-07-30 - Site Plan - D07-12-24-0064
Architectural Plans2024-07-30 - Elevations - D07-12-24-0064
Architectural Plans2024-07-30 - Demolition Site Plan - D07-12-24-0064
Architectural Plans2024-07-29 - Site Plan Details - D07-12-24-0064
Architectural Plans2024-07-29 - Site Plan - D07-12-24-0064
Architectural Plans2024-07-29 - Elevations - D07-12-24-0064
Architectural Plans2024-07-29 - Demolition Sit Plan - D07-12-24-0064
Architectural Plans2024-08-23 - Site Plan Details - D07-12-24-0064
Architectural Plans2024-08-23 - Site Plan - D07-12-24-0064
Architectural Plans2024-08-23 - Elevations - D07-12-24-0064
Architectural Plans2024-08-23 - Demolition Site Plan - D07-12-24-0064
Architectural Plans2024-08-23 - Site Plan - D07-12-24-0064
Architectural Plans2024-09-17 - Site Plan Details - D07-12-24-0064
Architectural Plans2024-09-17 - Site Plan - D07-12-24-0064
Architectural Plans2024-09-17 - Elevations - D07-12-24-0064
Civil Engineering Report2024-07-30 - Civil Drawings - D07-12-24-0064
Civil Engineering Report2024-07-29 - Civil Drawings - D07-12-24-0064
Civil Engineering Report2024-08-23 - Civil Drawings - D07-12-24-0064
Civil Engineering Report2024-09-17 - Civil Drawings - D07-12-24-0064
Design Brief2024-07-29 - Urban Design Brief - D07-12-24-0064
Electrical Plan2024-07-30 - Site Lighting Plan - D07-12-24-0064
Electrical Plan2024-07-29 - Site Lighting Plan - D07-12-24-0064
Electrical Plan2024-08-23 - Site Lighting Plan - D07-12-24-0064
Environmental2024-07-29 - Phase One-Environmental Site Assessment - D07-12-24-0064
Environmental2024-07-29 - Environmental Site Assessment - D07-12-24-0064
Geotechnical Report2024-07-29 - Soil Characterization Report - D07-12-24-0064
Geotechnical Report2024-07-29 - Geotechnical Review Memo - D07-12-24-0064
Geotechnical Report2024-07-29 - Geotechnical Investigation Report - D07-12-24-0064
Landscape Plan2024-07-30 - Landscape Plan - D07-12-24-0064
Landscape Plan2024-07-29 - Landscape Plan - D07-12-24-0064
Landscape Plan2024-08-23 - Landscape Plan - D07-12-24-0064
Landscape Plan2024-09-17 - Landscape Plan - D07-12-24-0064
Noise Study2024-07-29 - Noise Impact Assessment - D07-12-24-0064
Planning2024-07-29 - Zoning Confirmation Report - D07-12-24-0064
Site Servicing2024-07-30 - Servicing Report - D07-12-24-0064
Site Servicing2024-07-0-29 - Servicing Report - D07-12-24-0064
Stormwater Management2024-07-30 - Stormwater Management Report - D07-12-24-0064
Surveying2024-07-29 - Site Survey - D07-12-24-0064
Tree Information and Conservation2024-07-30 - Tree Conservation Report - D07-12-24-0064
Tree Information and Conservation2024-07-29 - Tree Conservation Report - D07-12-24-0064
Tree Information and Conservation2024-08-23 - Tree Conservation Report - D07-12-24-0064
Tree Information and Conservation2024-09-17 - Tree Conservation Report - D07-12-24-0064
2024-07-29 - Technical Literature-Generator - D07-12-24-0064
2024-07-29 - Riverside map - D07-12-24-0064
2024-07-29 - Community and Councillor Engagement - D07-12-24-0064
2024-09-17 - Delegated Authority Report - D07-12-24-0064