Ottawa Development Projects

3555 Borrisokane Rd.#

Last updated: 2025-09-25 ยท ID: D07-12-24-0063

Summary#

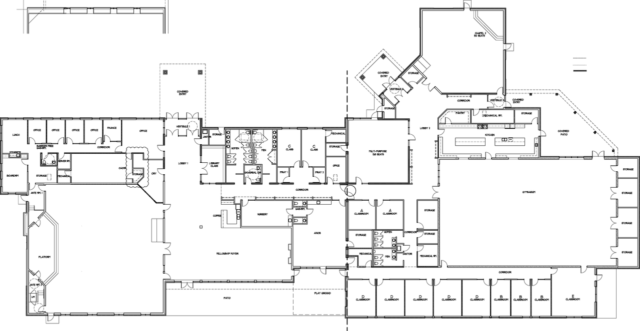
The City of Ottawa has received a Site Plan Control application to construct a one-storey place of worship with accessory uses. The proposed development includes 135 surface parking spaces.

Status
Inactive (Agreement Registered - Final Legal Clearance Given)

Location#

Select a marker to view the address.

Site Plans, Elevations and Floor Plans#

Additional Information#

Date Initiated2024-07-19
WardWard 3 - David Hill

Documents#

TypeDocument
Application Summary2024-08-22 - Application Summary - D07-12-24-0063
Architectural Plans2024-07-19 - Site Plan - D07-12-24-0063
Architectural Plans2024-07-19 - MEMO - Grading and Site Servicing Plans Review -D07-12-24-0063
Architectural Plans2024-07-19 - Elevations - D07-12-24-0063
Architectural Plans2024-10-09 - Site Plan - D07-12-24-0063
Architectural Plans2024-10-09 - Elevation 4 - D07-12-24-0063
Architectural Plans2024-10-09 - Elevation 3 - D07-12-24-0063
Architectural Plans2024-10-09 - Elevation 2 - D07-12-24-0063
Architectural Plans2024-10-09 - Elevation 1 - D07-12-24-0063
Architectural Plans2024-10-24 - Site Plan - D07-12-24-0063
Architectural Plans2024-11-25 - Site Plan - D07-12-24-0063
Architectural Plans2024-11-25 - Elevations 2 - D07-12-24-0063
Architectural Plans2024-11-25 - Elevations 1 - D07-12-24-0063
Architectural Plans2025-03-03 - Elevations 2 - D07-12-24-0063
Architectural Plans2025-03-03 - Elevations 1 - D07-12-24-0063
Architectural Plans2025-05-15 - APPROVED Site Plan Approval Report - D07-12-24-0063
Architectural Plans2025-05-30 - APPROVED Site Plan - D07-12-24-0063
Architectural Plans2025-05-30 - APPROVED Elevations 2 - D07-12-24-0063
Architectural Plans2025-05-30 - APPROVED Elevations 1 - D07-12-24-0063
Civil Engineering Report2024-07-19 - Civil Plans - D07-12-24-0063
Civil Engineering Report2024-10-09 - Civil Plans - D07-12-24-0063
Civil Engineering Report2024-11-25 - Civil Plans - D07-12-24-0063
Civil Engineering Report2025-03-03 - Civil Plans (Phased) - D07-12-24-0063
Civil Engineering Report2025-05-30 - APPROVED Civil Set Phased - D07-12-24-0063
Environmental2024-10-09 - Environmental Impact Study - D07-12-24-0063
Environmental2024-10-24 - Phase I Environmental Site Assessment - D07-12-24-0063
Environmental2024-11-25 - Phase I ESA - D07-12-24-0063
Floor Plan2024-07-19 - Floor Plan - D07-12-24-0063
Floor Plan2024-10-09 - Floor Plan - D07-12-24-0063
Floor Plan2025-03-03 - Floor Plan - D07-12-24-0063
Geotechnical Report2024-07-19 - Geotechnical Investigation - D07-12-24-0063
Geotechnical Report2024-11-25 - Geotechnical Investigation - D07-12-24-0063
Landscape Plan2024-07-19 - Landscape Plan - D07-12-24-0063
Landscape Plan2024-10-09 - Landscape Plan - D07-12-24-0063
Landscape Plan2024-11-25 - Landscape Plan - D07-12-24-0063
Landscape Plan2025-03-03 - Landscape Plan - D07-12-24-0063
Noise Study2024-07-19 - Traffic Noise - D07-12-24-0063
Noise Study2024-11-25 - Traffic Noise - D07-12-24-0063
Planning2024-07-19 - Planning Rationale and Design Brief - D07-12-24-0063
Stormwater Management2024-07-19 - Stormwater Management and Servicing Report - D07-12-24-0063
Stormwater Management2024-10-09 - Stormwater Management and Servicing Report - D07-12-24-0063
Stormwater Management2024-11-25 - Stormwater Management & Servicing Report - D07-12-24-0063
Stormwater Management2025-03-03 - SWM & Servicing Report - D07-12-24-0063
Surveying2024-07-19 - Topographical Plan - D07-12-24-0063
Transportation Analysis2024-07-19 - Traffic Impact Assessment Report - D07-12-24-0063
Transportation Analysis2024-11-25 - Traffic Impact Assessment Report - D07-12-24-0063
Transportation Analysis2025-03-03 - TIA Memo - D07-12-24-0063
Tree Information and Conservation2024-07-19 - Environmental Impact Study and Tree Conservation Report - D07-12-24-0063
Tree Information and Conservation2024-11-25 - Environmental Impact Study & Tree Conservation Report - D07-12-24-0063
Tree Information and Conservation2025-05-30 - APPROVED Landscape and Tree Preservation Plan - D07-12-24-0063
2024-11-25 - Approved Delegated Authority Report - D07-12-24-0063