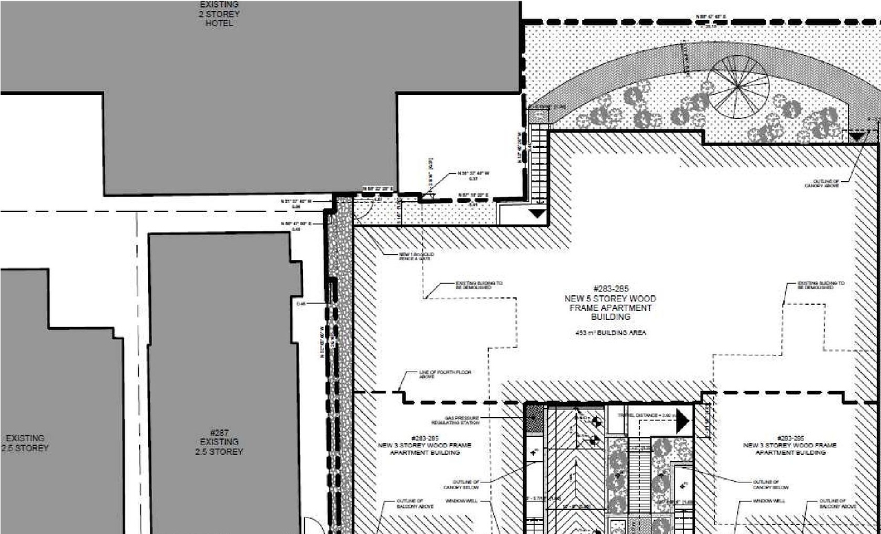
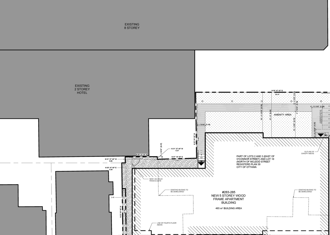
283-285 McLeod St.#
Last updated: 2025-07-30 · ID: D07-12-24-0049
Summary#
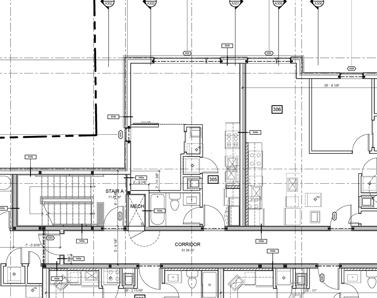
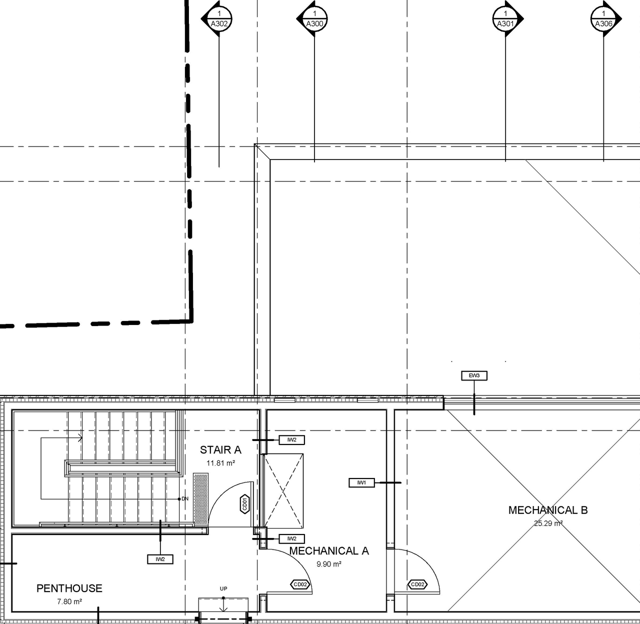
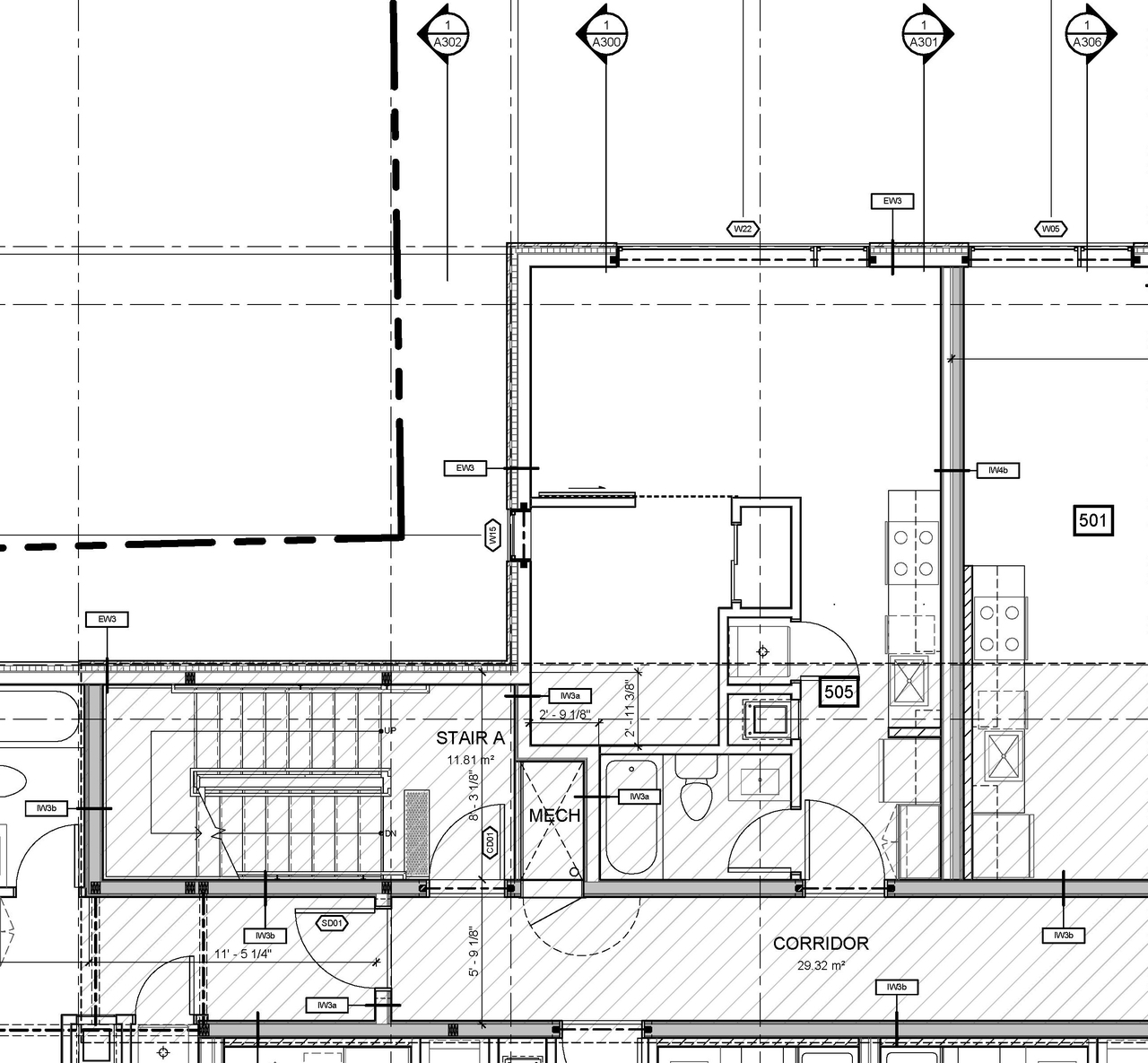
Demolition of building at 283 & 285 McLeod St, construction of 5 storey mid-rise residential apt building, transition to 3 storey low rise, contains 31 dwelling units. underground parking from McLeod, 8 parking spaces, 31 bicycle parking spaces, 259 sq meters amenity space
Status
Inactive (Agreement Registered - Securities Held)
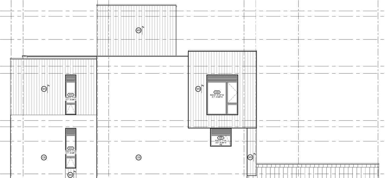
Building Scale (Max.)
Based on elevation drawings. Values may be approximate. See sources for exact figures.
Mid-rise · 5 storeys
Renders#
Location#
Select a marker to view the address.
Site Plans, Elevations and Floor Plans#
Additional Information#
| Date Initiated | 2024-07-04 |
| Ward | Ward 14 - Ariel Troster |
| All Addresses | 283 McLeod St. 285 McLeod St. |































