Ottawa Development Projects

788 March Rd.#

Last updated: 2026-01-06 · ID: D07-12-24-0045

Summary#

A Site Plan Control application to construct two six-storey mid-rise apartment buildings with an underground parking garage. The purpose of the application is to develop two, mid-rise apartment buildings on the subject site. Building A, proposed to contain 95 residential units, will be constructed at the southeast intersection of Klondike and March Roads. Building B, proposed to contain 101 residential units, will front on March Road. Both buildings will share a common two-level underground parking garage and a surface parking lot. There are two accesses proposed on site, one from Klondike and one from March Road. A total of 275 vehicular parking spaces and 189 bicycle parking spaces will be provided on site.

Status
Inactive (Agreement Registered - Securities Held)

Building Scale (Max.) Based on elevation drawings. Values may be approximate. See sources for exact figures.
Mid-rise · 6 storeys · 24.51 m

Renders#

Location#

Select a marker to view the address.

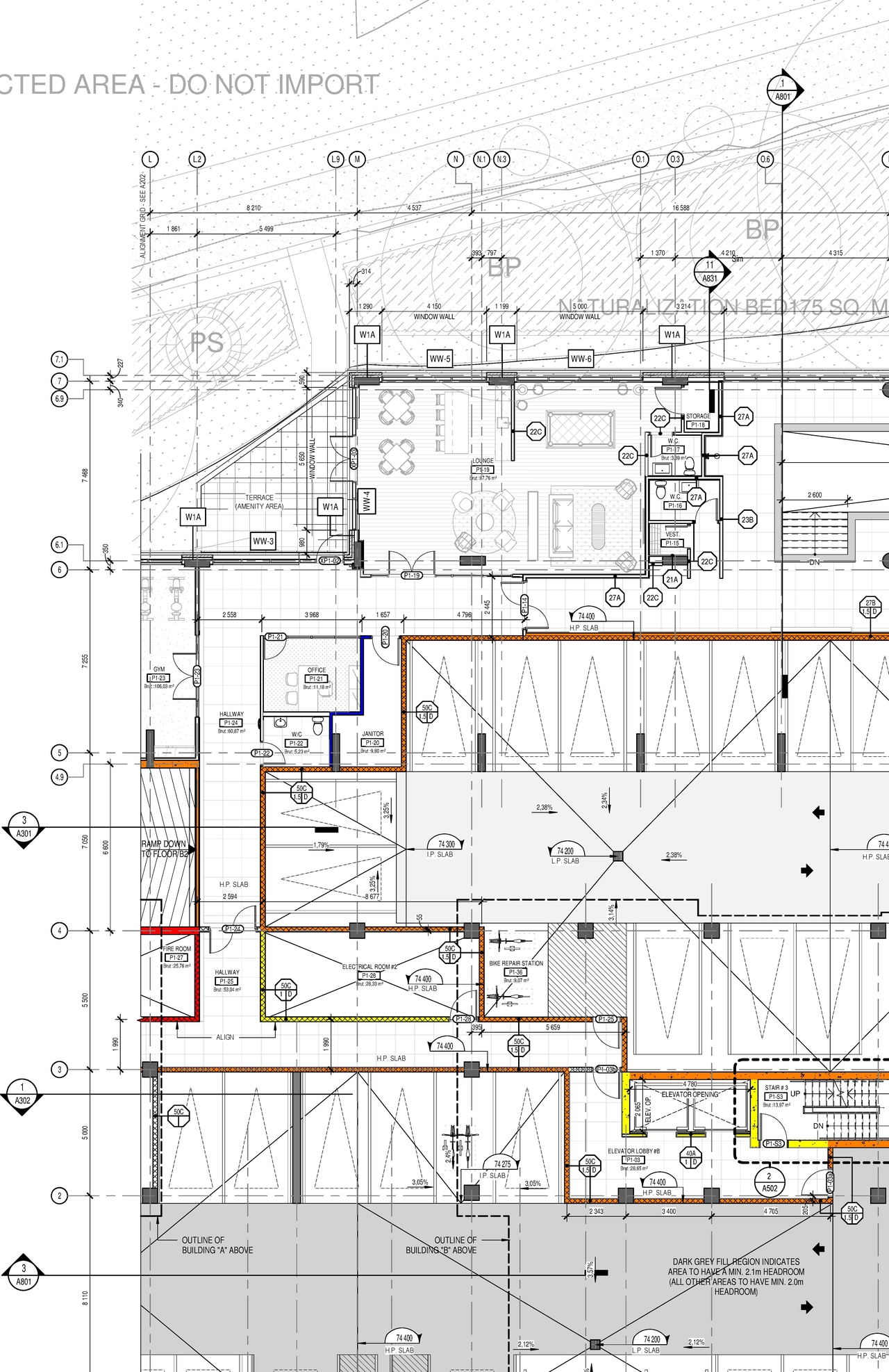
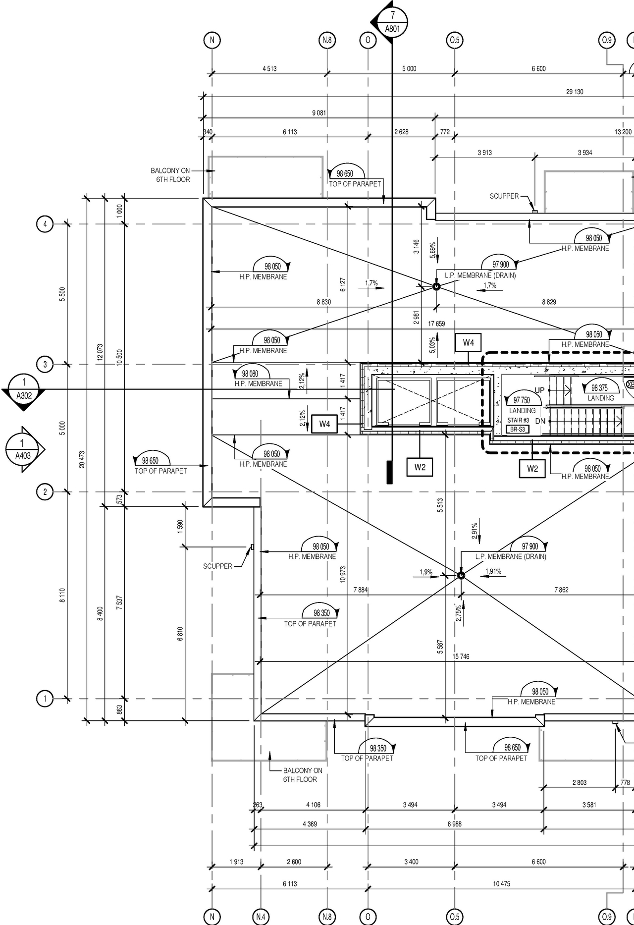
Site Plans, Elevations and Floor Plans#

  • Image from page 36 of the file '2024-06-26 - Urban Design Brief - D07-12-24-0045'
  • Image from page 35 of the file '2024-06-26 - Urban Design Brief - D07-12-24-0045'
  • Image from page 35 of the file '2024-06-26 - Urban Design Brief - D07-12-24-0045'
  • Image from page 2 of the file '2024-06-26 - Floor plans and Parking Garage Plans - D07-12-24-0045'
  • Image from page 66 of the file '2024-06-26 - Urban Design Brief - D07-12-24-0045'
  • Image from page 11 of the file '2024-06-26 - Floor plans and Parking Garage Plans - D07-12-24-0045'
  • Image from page 50 of the file '2024-06-26 - Urban Design Brief - D07-12-24-0045'
  • Image from page 12 of the file '2024-06-26 - Floor plans and Parking Garage Plans - D07-12-24-0045'
  • Image from page 12 of the file '2024-06-26 - Floor plans and Parking Garage Plans - D07-12-24-0045'
  • Image from page 44 of the file '2024-06-26 - Urban Design Brief - D07-12-24-0045'
  • Image from page 48 of the file '2024-06-26 - Urban Design Brief - D07-12-24-0045'
  • Image from page 44 of the file '2024-06-26 - Urban Design Brief - D07-12-24-0045'
  • Image from page 44 of the file '2024-06-26 - Urban Design Brief - D07-12-24-0045'
  • Construction site plan for project from page 46 of the file '2024-06-26 - Urban Design Brief - D07-12-24-0045'
  • Construction site plan for project from page 48 of the file '2024-06-26 - Urban Design Brief - D07-12-24-0045'
  • Construction site plan for project from page 70 of the file '2024-06-26 - Urban Design Brief - D07-12-24-0045'
  • Construction site plan for project from page 78 of the file '2024-06-26 - Urban Design Brief - D07-12-24-0045'
  • Construction site plan for project from page 79 of the file '2024-06-26 - Urban Design Brief - D07-12-24-0045'
  • Construction site plan for project from page 4 of the file '2024-06-26 - Urban Design Brief - D07-12-24-0045'
  • Construction site plan for project from page 81 of the file '2024-06-26 - Urban Design Brief - D07-12-24-0045'
  • Construction site plan for project from page 71 of the file '2024-06-26 - Urban Design Brief - D07-12-24-0045'
  • Construction site plan for project from page 6 of the file '2024-06-26 - Floor plans and Parking Garage Plans - D07-12-24-0045'
  • Construction site plan for project from page 87 of the file '2024-06-26 - Urban Design Brief - D07-12-24-0045'
  • Construction site plan for project from page 73 of the file '2024-06-26 - Urban Design Brief - D07-12-24-0045'
  • Construction site plan for project from page 83 of the file '2024-06-26 - Urban Design Brief - D07-12-24-0045'
  • Construction site plan for project from page 14 of the file '2024-06-26 - Urban Design Brief - D07-12-24-0045'
  • Construction site plan for project from page 86 of the file '2024-06-26 - Urban Design Brief - D07-12-24-0045'
  • Construction site plan for project from page 58 of the file '2024-06-26 - Urban Design Brief - D07-12-24-0045'
  • Construction site plan for project from page 8 of the file '2024-06-26 - Floor plans and Parking Garage Plans - D07-12-24-0045'
  • Construction site plan for project from page 11 of the file '2024-06-26 - Urban Design Brief - D07-12-24-0045'
  • Construction site plan for project from page 50 of the file '2024-06-26 - Urban Design Brief - D07-12-24-0045'
  • Construction site plan for project from page 25 of the file '2024-06-26 - Urban Design Brief - D07-12-24-0045'
  • Construction site plan for project from page 28 of the file '2024-06-26 - Urban Design Brief - D07-12-24-0045'
  • Image from page 36 of the file '2024-06-26 - Urban Design Brief - D07-12-24-0045'
  • Image from page 35 of the file '2024-06-26 - Urban Design Brief - D07-12-24-0045'
  • Image from page 35 of the file '2024-06-26 - Urban Design Brief - D07-12-24-0045'
  • Image from page 2 of the file '2024-06-26 - Floor plans and Parking Garage Plans - D07-12-24-0045'
  • Image from page 66 of the file '2024-06-26 - Urban Design Brief - D07-12-24-0045'
  • Image from page 11 of the file '2024-06-26 - Floor plans and Parking Garage Plans - D07-12-24-0045'
  • Image from page 50 of the file '2024-06-26 - Urban Design Brief - D07-12-24-0045'
  • Image from page 12 of the file '2024-06-26 - Floor plans and Parking Garage Plans - D07-12-24-0045'
  • Image from page 12 of the file '2024-06-26 - Floor plans and Parking Garage Plans - D07-12-24-0045'
  • Image from page 44 of the file '2024-06-26 - Urban Design Brief - D07-12-24-0045'
  • Image from page 48 of the file '2024-06-26 - Urban Design Brief - D07-12-24-0045'
  • Image from page 44 of the file '2024-06-26 - Urban Design Brief - D07-12-24-0045'
  • Image from page 44 of the file '2024-06-26 - Urban Design Brief - D07-12-24-0045'
  • Construction site plan for project from page 46 of the file '2024-06-26 - Urban Design Brief - D07-12-24-0045'
  • Construction site plan for project from page 48 of the file '2024-06-26 - Urban Design Brief - D07-12-24-0045'
  • Construction site plan for project from page 70 of the file '2024-06-26 - Urban Design Brief - D07-12-24-0045'
  • Construction site plan for project from page 78 of the file '2024-06-26 - Urban Design Brief - D07-12-24-0045'
  • Construction site plan for project from page 79 of the file '2024-06-26 - Urban Design Brief - D07-12-24-0045'
  • Construction site plan for project from page 4 of the file '2024-06-26 - Urban Design Brief - D07-12-24-0045'
  • Construction site plan for project from page 81 of the file '2024-06-26 - Urban Design Brief - D07-12-24-0045'
  • Construction site plan for project from page 71 of the file '2024-06-26 - Urban Design Brief - D07-12-24-0045'
  • Construction site plan for project from page 6 of the file '2024-06-26 - Floor plans and Parking Garage Plans - D07-12-24-0045'
  • Construction site plan for project from page 87 of the file '2024-06-26 - Urban Design Brief - D07-12-24-0045'
  • Construction site plan for project from page 73 of the file '2024-06-26 - Urban Design Brief - D07-12-24-0045'
  • Construction site plan for project from page 83 of the file '2024-06-26 - Urban Design Brief - D07-12-24-0045'
  • Construction site plan for project from page 14 of the file '2024-06-26 - Urban Design Brief - D07-12-24-0045'
  • Construction site plan for project from page 86 of the file '2024-06-26 - Urban Design Brief - D07-12-24-0045'
  • Construction site plan for project from page 58 of the file '2024-06-26 - Urban Design Brief - D07-12-24-0045'
  • Construction site plan for project from page 8 of the file '2024-06-26 - Floor plans and Parking Garage Plans - D07-12-24-0045'
  • Construction site plan for project from page 11 of the file '2024-06-26 - Urban Design Brief - D07-12-24-0045'
  • Construction site plan for project from page 50 of the file '2024-06-26 - Urban Design Brief - D07-12-24-0045'
  • Construction site plan for project from page 25 of the file '2024-06-26 - Urban Design Brief - D07-12-24-0045'
  • Construction site plan for project from page 28 of the file '2024-06-26 - Urban Design Brief - D07-12-24-0045'

Additional Information#

Date Initiated2024-06-26
WardWard 4 - Cathy Curry

Documents#

TypeDocument
Application Summary2024-07-18 - Application Summary - D07-12-24-0045
Archaelogical Assessment2024-06-26 - Stage 1 and 2 Archaeological assessments - D07-12-24-0045
Archaelogical Assessment2024-06-26 - Ministry of Tourism, Culture and Support Archaeologic Assessments Report - D07-12-2
Architectural Plans2024-06-26 - SITE PLAN - D07-12-24-0045
Architectural Plans2024-06-26 - Site Grading Plan - D07-12-24-0045
Architectural Plans2024-06-26 - Elevations - D07-12-24-0045
Architectural Plans2024-06-26 - Colored Elevations - D07-12-24-0045
Architectural Plans2024-09-27 - Site Plan - D07-12-24-0045
Architectural Plans2024-09-27 - Elevations - D07-12-24-0045
Architectural Plans2025-02-06 - Site Plan & Elevations - D07-12-24-0045
Architectural Plans2025-02-06 - Site Grading Plan - D07-12-24-0045
Architectural Plans2025-05-12 - SIGNED Site Plan Approval Report - D07-12-24-0045
Architectural Plans2025-05-12 - APPROVED Site Plan - D07-12-24-0045
Architectural Plans2025-05-12 - APPROVED Site Grading Plan - D07-12-24-0045
Architectural Plans2025-05-12 - APPROVED Elevations - D07-12-24-0045
Civil Engineering Report2024-09-27 - Civil Plans - D07-12-24-0045
Design Brief2024-06-26 - Urban Design Brief - D07-12-24-0045
Environmental2024-06-26 - Phase One Environmental Site Assessment - D07-12-24-0045
Environmental2024-06-26 - Environmental Impact Statement - D07-12-24-0045
Environmental2024-09-27 - Phase I ESA Update - D07-12-24-0045
Environmental2024-09-27 - Phase I ESA - D07-12-24-0045
Environmental2024-09-27 - Environmental Impact Statement - D07-12-24-0045
Environmental2025-05-16 - Phase 1 ESA Update - D07-12-24-0045
Environmental2025-05-16 - Phase 1 ESA - D07-12-24-0045
Environmental2025-05-16 - Environmental Impact Statement - D07-12-24-0045
Erosion And Sediment Control Plan2025-05-12 - APPROVED Erosion and Sediment Control Plan - D07-12-24-0045
Floor Plan2024-06-26 - Floor plans and Parking Garage Plans - D07-12-24-0045
Geotechnical Report2024-06-26 - Hydrogeological Study - D07-12-24-0045
Geotechnical Report2024-06-26 - Groundwater Management Plan - D07-12-24-0045
Geotechnical Report2024-06-26 - Geotechnical Report Letter of Reliance stamped - D07-12-24-0045
Geotechnical Report2024-06-26 - Geotechnical Investigation Report - D07-12-24-0045
Geotechnical Report2024-09-27 - Geotechnical Grading Review - D07-12-24-0045
Geotechnical Report2025-05-16 - Hydrogeological Study - D07-12-24-0045
Geotechnical Report2025-05-16 - Groundwater Management Plan - D07-12-24-0045
Geotechnical Report2025-05-16 - Geotechnical Investigation Report - D07-12-24-0045
Landscape Plan2024-06-26 - Landscape Plan - D07-12-24-0045
Landscape Plan2024-10-09 - Landscape Plan - D07-12-24-0045
Landscape Plan2025-02-06 - Landscape Plan - D07-12-24-0045
Landscape Plan2025-05-12 - APPROVED Landscape Plan - D07-12-24-00451
Noise Study2024-06-26 - Transportation Noise Letter - D07-12-24-0045
Noise Study2024-06-26 - Traffic noise assessment - D07-12-24-0045
Noise Study2025-05-16 - Traffic Noise Assessment - D07-12-24-0045
Planning2024-06-26 - Zoning Confirmation Report - D07-12-24-0045
Planning2024-06-26 - Planning Rationale - D07-12-24-0045
Planning2025-02-06 - Planning Act and Condominium Act - D07-12-24-0045
Shadow Study2024-06-26 - Sun Shadow Study - D07-12-24-0045
Site Servicing2024-06-26 - SITE SERVICING AND STORMWATER MANAGEMENT REPORT - D07-12-24-0045
Site Servicing2024-09-27 - Site Servicing & SWM Report - D07-12-24-0045
Site Servicing2025-02-06 - Site Servicing Plan - D07-12-24-0045
Site Servicing2025-05-16 - Site Servicing and SWM Report - D07-12-24-0045
Site Servicing2025-05-12 - APPROVED Site Servicing Plan - D07-12-24-0045
Surveying2024-06-26 - Topographic Plan - D07-12-24-0045
Surveying2024-09-27 - Plan of Survey - D07-12-24-0045
Transportation Analysis2024-06-26 - Transportation Impact Assessment (Addendum letter) - D07-12-24-0045
Transportation Analysis2024-06-26 - Transportation Impact Assessment - D07-12-24-0045
Transportation Analysis2025-05-16 - TIA Strategy Report - D07-12-24-0045
Tree Information and Conservation2024-06-26 - Tree Conservation Report - D07-12-24-0045
Tree Information and Conservation2024-09-27 - Tree Conservation Report - D07-12-24-0045
Tree Information and Conservation2025-02-06 - Tree Conservation Report - D07-12-24-0045
Tree Information and Conservation2025-05-16 - Tree Conservation Report - D07-12-24-0045
2024-06-26 - Waterproofing measure - D07-12-24-0045
2024-06-26 - Slope Stability Assessment - D07-12-24-0045
2024-06-26 - GEMTEC Species at Risk Permitting Requirements Letter - D07-12-24-0045
2024-06-26 - Detailed Design Proposal - D07-12-24-0045
2024-06-26 - PHASE I - Geofirma - Site assessment update - D07-12-24-0045
2024-09-27 - Hydro Ottawa Electrical Poles - D07-12-24-0045
2025-02-06 - Roadway Modifications - D07-12-24-0045
2025-05-16 - Slope Stability Assessment - D07-12-24-0045