Ottawa Development Projects

2506 Innes Rd.#

Last updated: 2026-02-28 · ID: D07-12-24-0038

Summary#

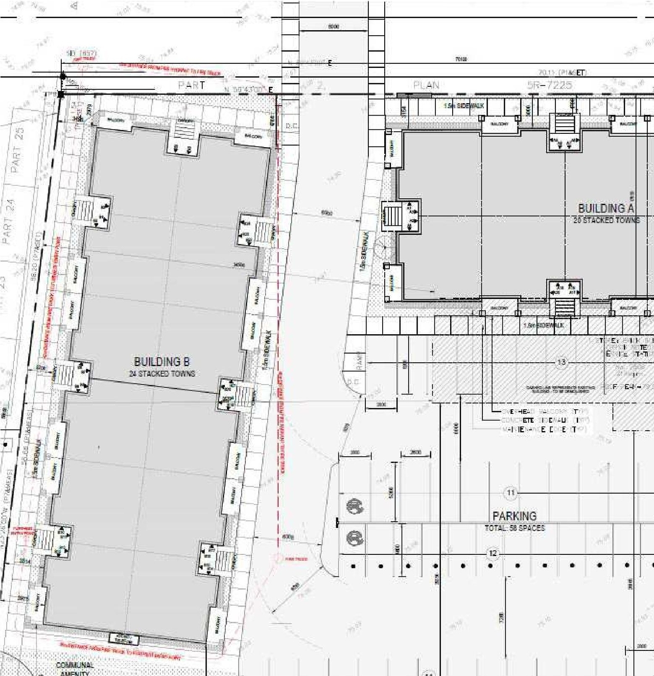
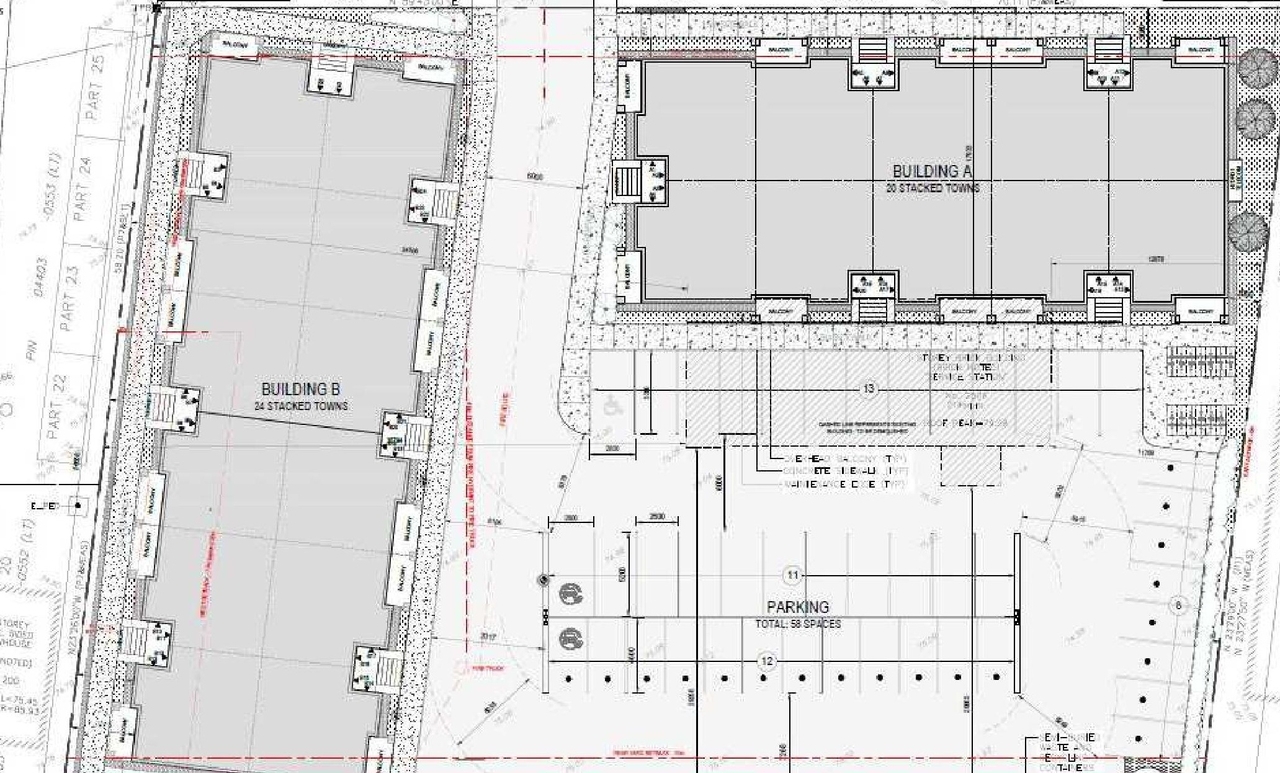
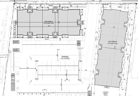
A Site Plan Control application to construct a Planned Unit Development (PUD) with two three-storey residential buildings with a total of 44 dwelling units and a proposed gross floor area (GFA) of 4,716.8 square metres.

Status
Post Approval (Consensus Achieved on Additional Submission)

Building Scale (Max.) Based on elevation drawings. Values may be approximate. See sources for exact figures.
Low-rise · 3 storeys · 12.59 m

Renders#

Location#

Select a marker to view the address.

Site Plans, Elevations and Floor Plans#

Additional Information#

Date Initiated2024-06-13
WardWard 2 - Laura Dudas

Documents#

TypeDocument
Application Summary2025-01-29 - Application Summary - D07-12-24-0038
Architectural Plans2024-12-24 - Site Plan - D07-12-24-0038
Architectural Plans2024-10-28-Erosion and Sediment Control Plan C-5 - D07-12-24-0038
Architectural Plans2024-10-28 - Schedules Water Services Plan C8 - D07-12-24-0038
Architectural Plans2024-10-28 - Schedules (Sewers) - Plan C7 - D07-12-24-0038
Architectural Plans2024-10-28 - Post-Development Drainage Plan C-10 - D07-12-24-0038
Architectural Plans2024-09-27 - Architectural Design Package - D07-12-24-0038
Architectural Plans2024-06-24 - Preliminary Construction Management Plan - D07-12-24-0038
Architectural Plans2024-06-20 - Pre-Development Drainge Plan - D07-12-24-0038
Architectural Plans2024-06-20 - Post-Development Drainage Plan - D07-12-24-0038
Architectural Plans2024-06-20 - MEMO - Grading Plan Review - D07-12-24-0038
Architectural Plans2024-06-20 - Architectural Design Package - D07-12-24-0038
Architectural Plans2025-06-12 - Site Plan - D07-12-24-0038
Architectural Plans2025-06-12 - C-7 - Erosion and Sediment Control Plan - D07-12-24-0038
Architectural Plans2025-06-12 - C-6 Grading Plan Detail - D07-12-24-0038
Architectural Plans2025-06-12 - C-5 Grading Plan Detail - D07-12-24-0038
Architectural Plans2025-06-12 - C-4 Grading Plan - D07-12-24-0038
Architectural Plans2025-06-12 - C-3 Existing Conditions, Removals and Decommissioning Plan - D07-12-24-0038
Architectural Plans2025-06-12 - C-2 Servicing Plan - D07-12-24-0038
Architectural Plans2025-06-12 - C-12 Post Development Drainage Plans - D07-12-24-0038
Architectural Plans2025-06-12 - C-11 Pre-Development Drainage Plans - D07-12-24-0038
Architectural Plans2025-06-12 - C-1 Site Servicing Plan (Sewers) - D07-12-24-0038
Architectural Plans2025-08-13 - Site Plan - D07-12-24-0038
Architectural Plans2025-08-13 - East and West Elevations - D07-12-24-0038
Architectural Plans2025-09-09 - Site Plan - D07-12-24-0038
Architectural Plans2025-09-08 - C5 Grading Plan Details - D07-12-24-0038
Architectural Plans2025-09-08 - C4 Grading Plan - D07-12-24-0038
Architectural Plans2025-09-08 - C2 Site Servicing Plan Water - D07-12-24-0038
Architectural Plans2025-09-08 - C12 Post Development Drainage Plans - D07-12-24-0038
Architectural Plans2025-09-08 - C1 Site Servicing Plan Sewers - D07-12-24-0038
Architectural Plans2025-10-29 - Approved Site Plan Approval Report - D07-12-24-0038
Architectural Plans2025-10-29 - Approved Site Plan - D07-12-24-0038
Architectural Plans2025-10-29 - Approved Elevations - D07-12-24-0038
Architectural Plans2025-11-10 - C5 Grading Plan Details - D07-12-24-0038
Design Brief2024-09-27 - Design Brief - D07-12-24-0038
Design Brief2024-06-20 - Design Brief - D07-12-24-0038
Environmental2024-09-27 - Phase II ESA - D07-12-24-0038
Environmental2024-06-24 - Phase II Environmental Site Assessment - D07-12-24-0038
Environmental2024-06-24 - Phase I Environmental Site Assessment - D07-12-24-0038
Environmental2024-06-20 - Environmental Noise Control Study - d07-12-24-0038
Environmental2025-06-12 - Environmental Noise Control Study - D07-12-24-0038
Environmental2025-09-26 - Phase II Environmental Site Assessment Update - D07-12-24-0038
Environmental2025-09-26 - Phase II Environmental Site Assessment - D07-12-24-0038
Environmental2025-09-26 - Phase II Environmental Site Assessment - D07-12-24-0038 (1)
Environmental2025-09-26 - Phase I-Environmental Site Assessment - D07-12-24-0038
Environmental2025-10-29 - Approved Environmental Remediation Report - D07-12-24-0038
Erosion And Sediment Control Plan2024-06-20 - Erosion and Sediment Control Plan - D07-12-24-0038
Erosion And Sediment Control Plan2025-10-29 - Approved Erosion and Sediment Control Plan - D07-12-24-0038
Existing Conditions2024-06-20 - Existing Conditions and Removals Plan - D07-12-24-0038
Existing Conditions2025-10-29 - Approved Existing Conditions, Removals and Decommissioning Plan - D07-12-24-0038
Geotechnical Report2024-10-28 - Grading Plan - Plan C4 - D07-12-24-0038
Geotechnical Report2024-09-27 - Grading Plan - D07-12-24-0038
Geotechnical Report2024-06-24 - Geotechnical Report - D07-12-24-0038
Geotechnical Report2024-06-20 - Grading Plan - D07-12-24-0038
Geotechnical Report2025-10-29 - Approved Grading Plan and Details - D07-12-24-0038
Landscape Plan2024-12-24 - Landscape Plan - D07-12-24-0038
Landscape Plan2024-09-27 - Landscape Plan & Details - D07-12-24-0038
Landscape Plan2024-06-24 - Landscape Plans - D07-12-24-0038
Landscape Plan2025-06-12 - Landscape Plan and Details - D07-12-24-0038
Landscape Plan2025-08-13 - Landscape Plans - D07-12-24-0038
Landscape Plan2025-09-08 - Landscape Plan - D07-12-24-0038
Landscape Plan2025-10-31 - Approved Landscape Plan and Details - D07-12-24-0038
Planning2024-12-24 - Zoning Confirmation Report - D07-12-24-0038
Planning2024-09-27 - Zoning Confirmation Report - D07-12-24-0038
Planning2024-06-20 - Zoning Confirmation Report - D07-12-24-0038
Site Servicing2024-10-28 - Site Servicing Plan, Plan C1 - D07-12-24-0038
Site Servicing2024-10-28 - Servicing Plan, Plan C2 - D07-12-24-0038
Site Servicing2024-09-27 - Site Servicing Plan (Sewers) - D07-12-24-0038
Site Servicing2024-06-20 - Site Servicing Plan - D07-12-24-0038
Site Servicing2024-06-20 - SITE SERVICING & STORMWATER MANAGEMENT REPORT - D07-12-24-0038
Site Servicing2024-06-20 - Servicing Plan - D07-12-24-0038
Site Servicing2025-10-29 - Approved Site Servicing Plan - Water - D07-12-24-0038
Site Servicing2025-10-29 - Approved Site Servicing Plan - Sewers - D07-12-24-0038
Stormwater Management2024-10-28 - SS & SWM -D07-12-24-0038
Stormwater Management2025-06-12 - SS & SWM Report - D07-12-24-0038
Surveying2024-06-20 - Topographic Plan - D07-12-24-0038
Tree Information and Conservation2024-12-24 - Tree Conservation Report - D07-12-24-0038
Tree Information and Conservation2024-09-27 - Tree Conservation Report - D07-12-24-0038
Tree Information and Conservation2024-06-20 - Tree Conservation Report - D07-12-24-0038
Tree Information and Conservation2025-09-26 - Tree Conservation Report - D07-12-24-0038
2024-10-28 - Response to Deficiencies - D07-12-24-0038
2024-10-28 - Gray Eng Response -D07-12-24-0038
2024-06-20 - Schedules Sewers - D07-12-24-0038
2024-06-20 - Schedules -Water Service - D07-12-24-0038
2024-06-20 - Notes - D07-12-24-0038
2025-06-12- C-10 Schedules (Water Service) - D07-12-24-0038
2025-06-12 - C-9 Schedules (Sewers) - D07-12-24-0038
2025-06-12 - C-8 Notes - D07-12-24-0038
2025-09-08 - C7 Erosion and Sediment Control - D07-12-24-0038
2025-10-29 - Approved Schedules (Water Service) - D07-12-24-0038
2025-10-29 - Approved Schedules (Sewers) - D07-12-24-0038
2025-10-29 - Approved Notes C-8 - D07-12-24-0038
2025-10-30 - Approved Revised Delegated Authority Report - D07-12-24-0038