170 Slater St.#
Last updated: 2025-03-20 · ID: D07-12-24-0026
Summary#
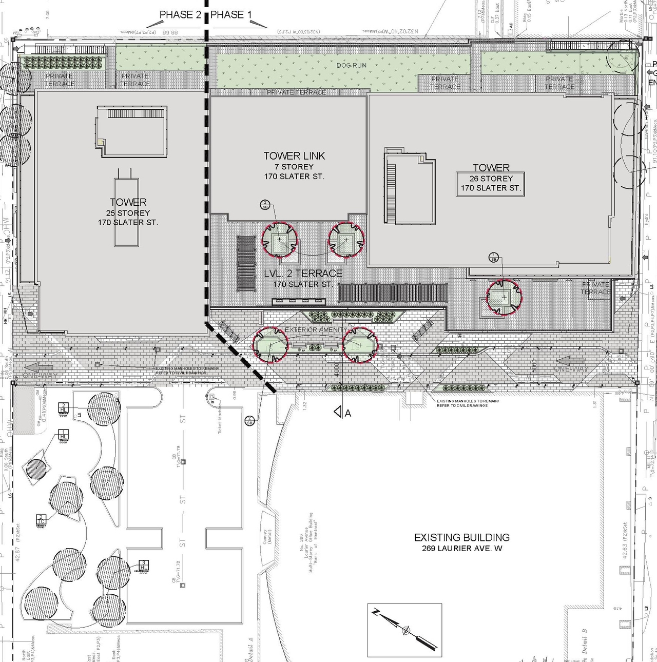
Two towers, one fronting Slater Street (25-storeys) and one fronting laurier Avenue West (26-storeys).
Status
Inactive (Notice of Decision Sent)
Building Scale (Max.)
Based on elevation drawings. Values may be approximate. See sources for exact figures.
High-rise · 26 storeys
· 79.08 m
Renders#
Location#
Select a marker to view the address.
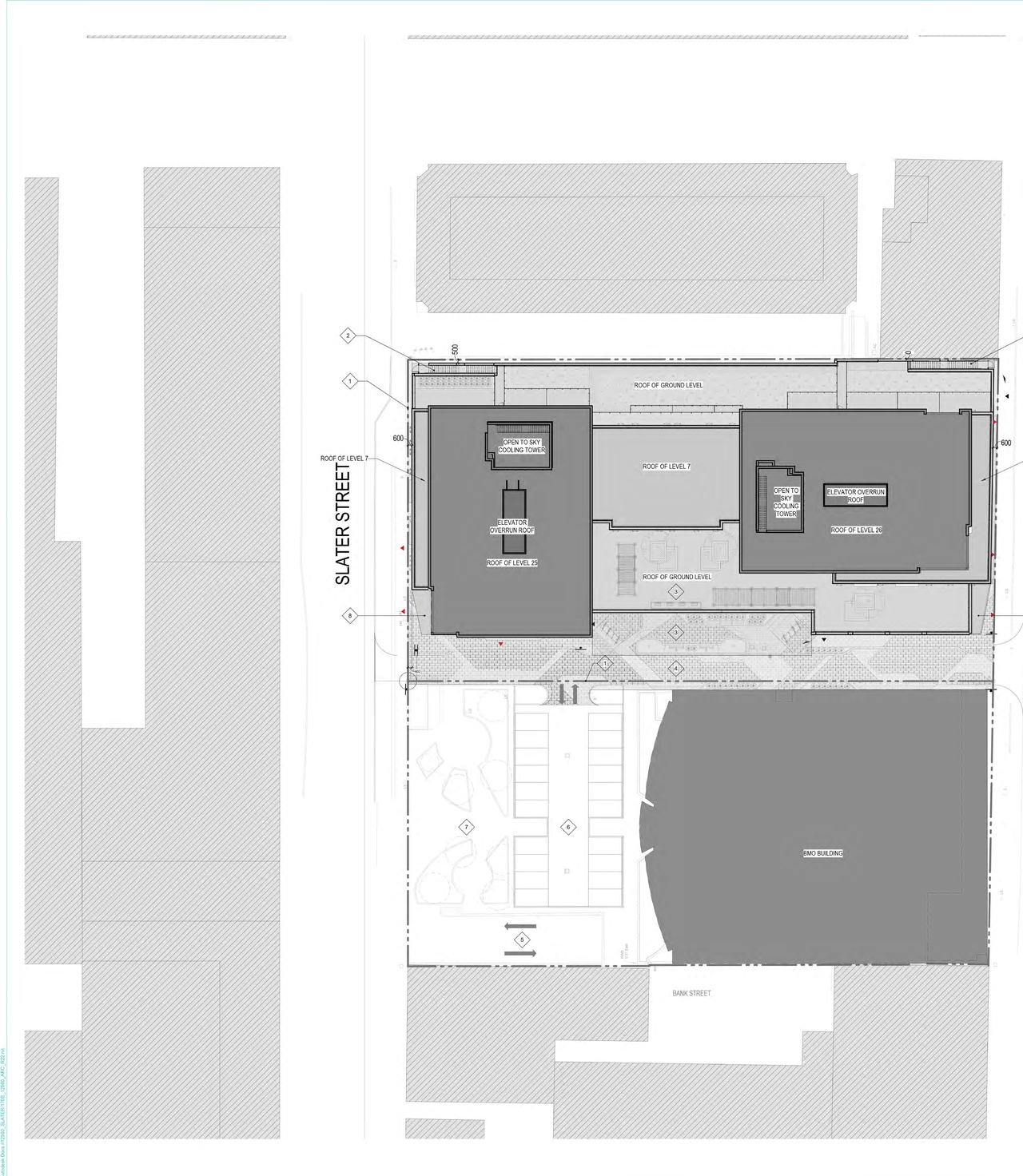
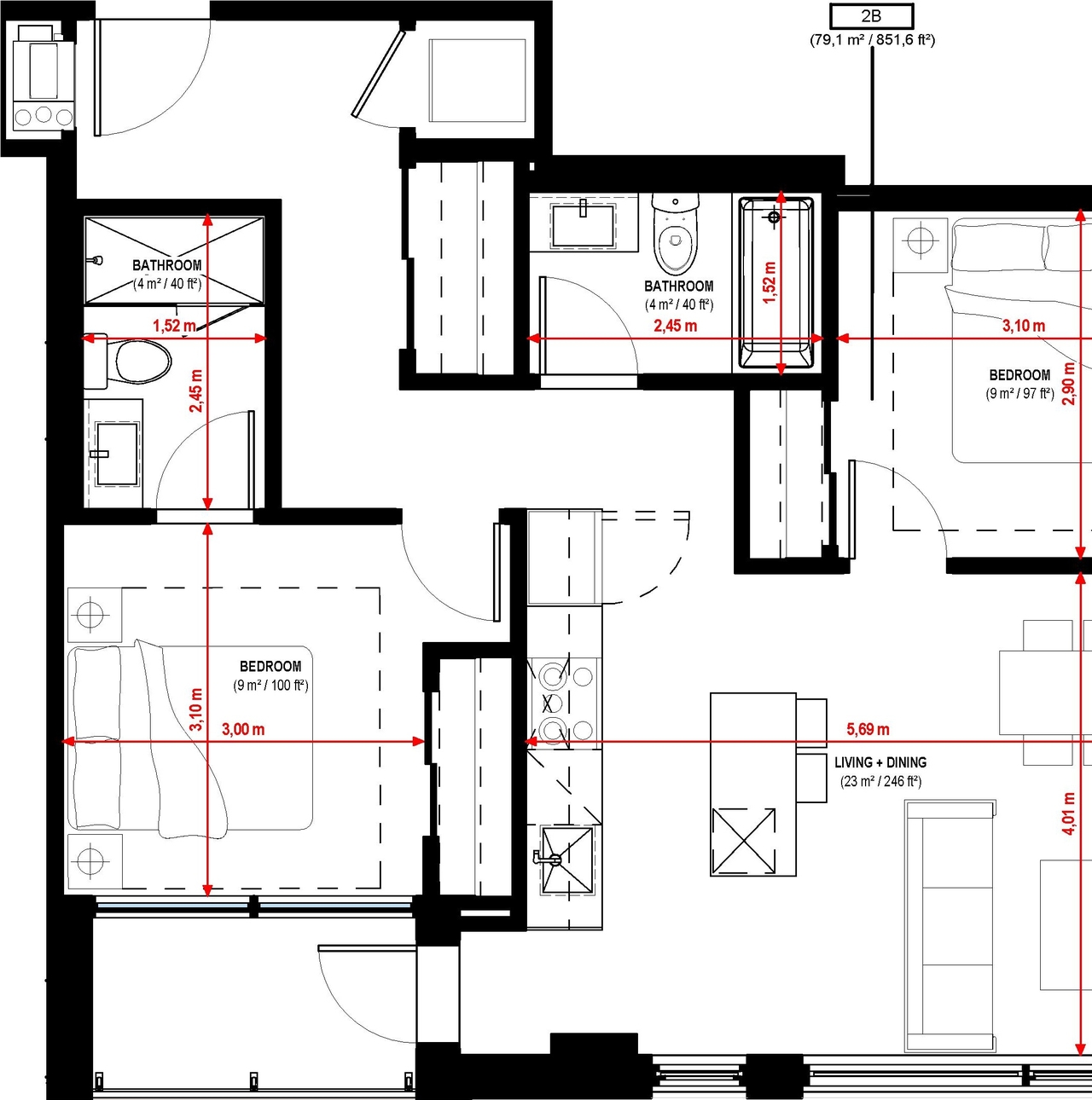
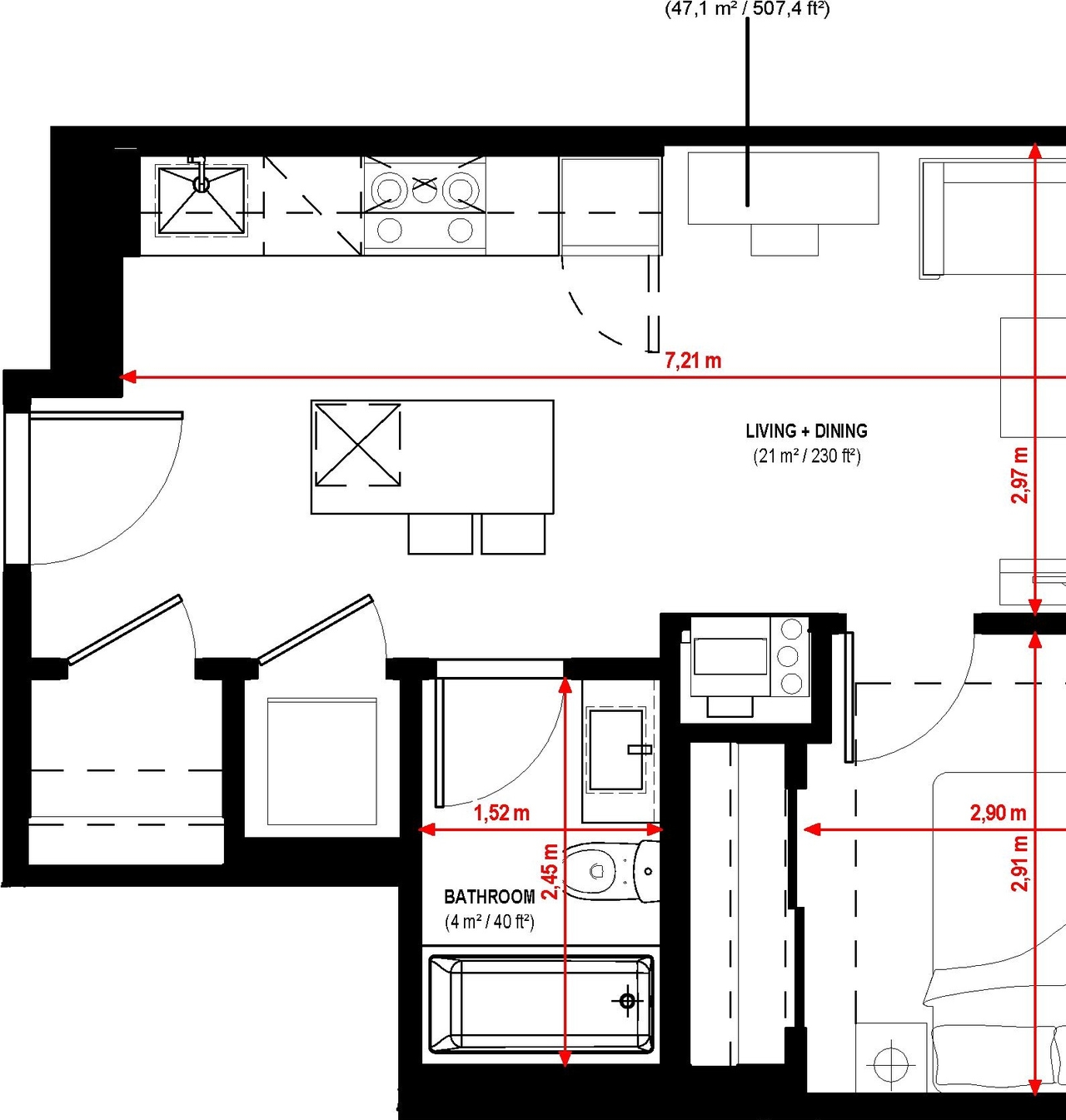
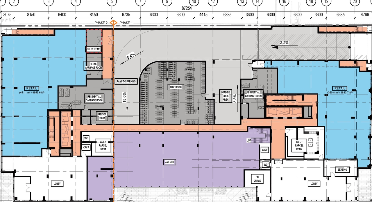
Site Plans, Elevations and Floor Plans#
Additional Information#
| Date Initiated | 2024-04-30 |
| Ward | Ward 14 - Ariel Troster |



































