205 Greenbank Rd.#
Last updated: 2024-10-29 · ID: D07-12-24-0020
Summary#
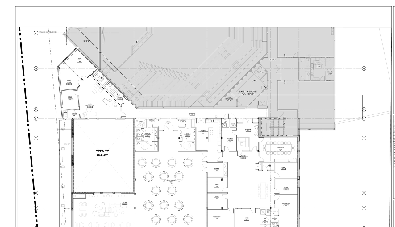
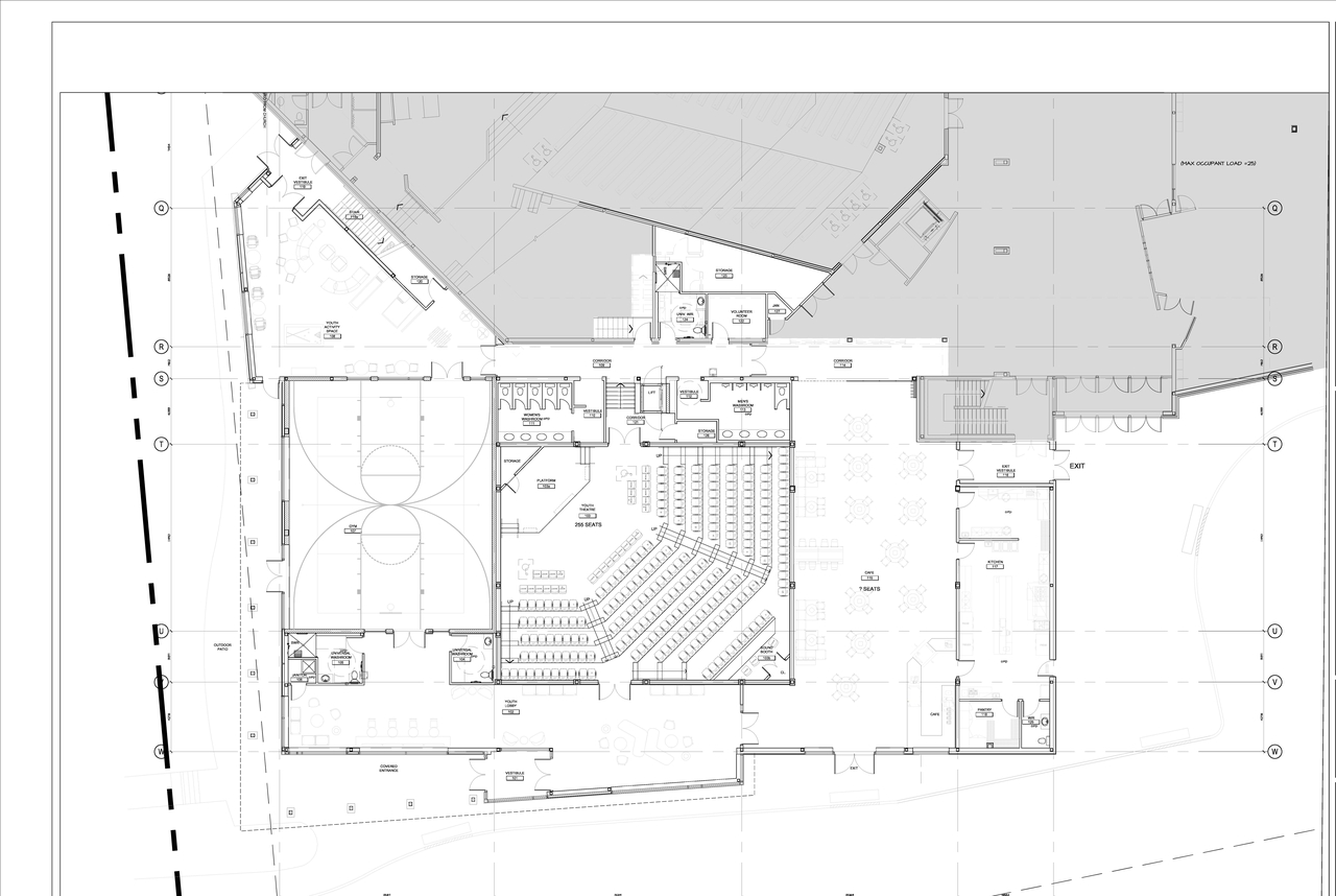
The City of Ottawa has received a Site Plan Control application to construct a two-storey addition connected on the southwest side of the existing two storey Woodvale Pentecostal Church.
Status
Inactive (Agreement Registered - Final Legal Clearance Given)
Building Scale (Max.)
Based on elevation drawings. Values may be approximate. See sources for exact figures.
Low-rise · 2 storeys
Data Quality Note
Text was extracted using optical character recognition. This may introduce artifacts or misreads.
· 10.2 m
Data Quality Note
Text was extracted using optical character recognition. This may introduce artifacts or misreads.
Renders#
Location#
Select a marker to view the address.
Site Plans, Elevations and Floor Plans#
Additional Information#
| Date Initiated | 2024-04-10 |
| Ward | Ward 9 - Sean Devine |







