151 Cope Dr.#
Last updated: 2023-10-16 ยท ID: D07-12-23-0099
Summary#
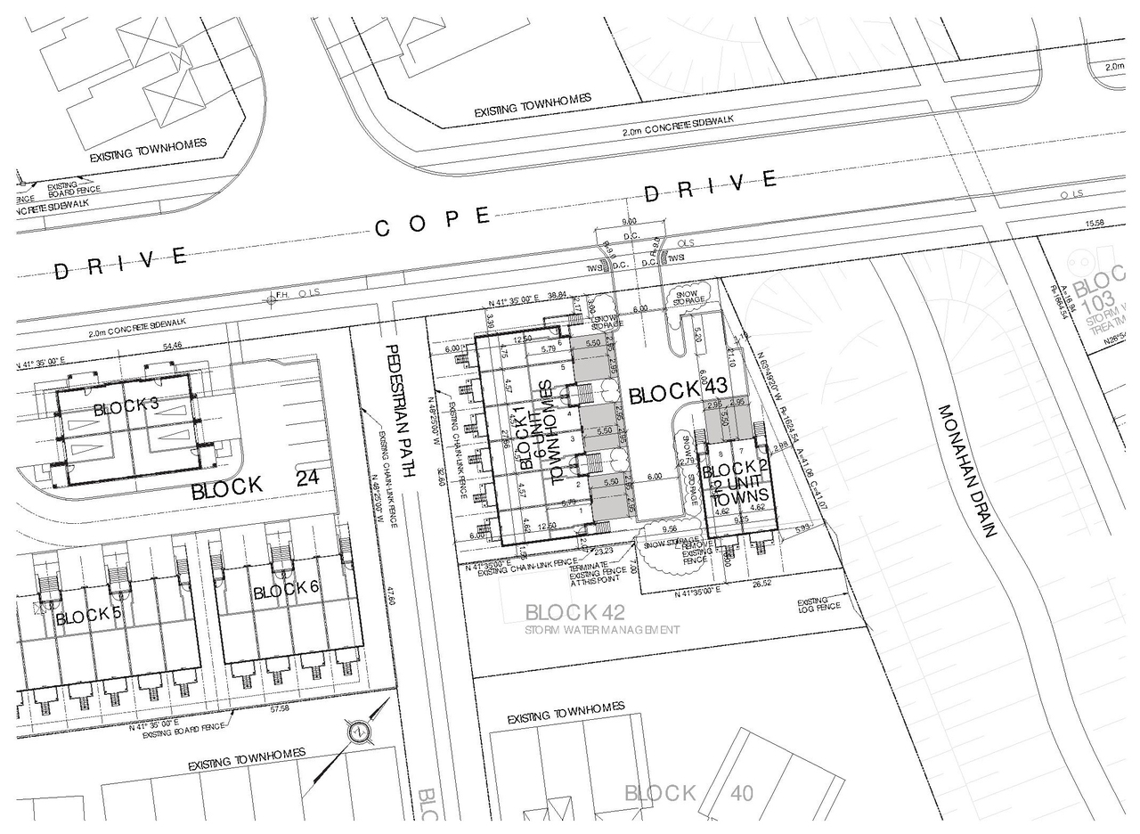
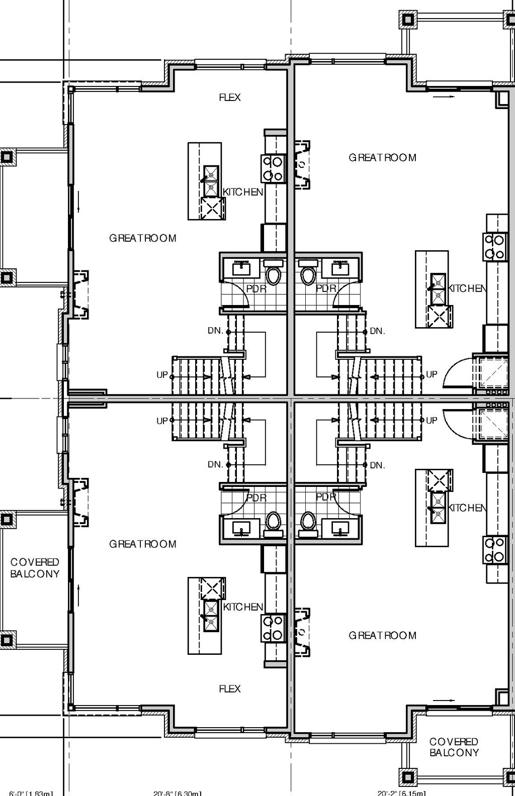
A Site Plan Control application to construct 20 back-to-back and 20 standard 3 storey town homes for a total of 40 units. All units will have their own driveway and garage and will have a combined GFA of 6,882 m2.
Status
File Pending (Application File Pending)
Renders#
Location#
Select a marker to view the address.
Site Plans, Elevations and Floor Plans#
Additional Information#
| Date Initiated | 2023-06-27 |
| Ward | Ward 23 - Allan Hubley |
Documents#
| Type | Document |
|---|---|
| Application Summary | 2023-08-02 - Application Summary - D07-12-23-0099 |
| Architectural Plans | 2023-07-14 - Site Plan - D07-12-23-0099 |
| Architectural Plans | 2023-07-14 - Sanitary Drainage Plan - D07-12-23-0099 |
| Design Brief | 2023-07-14 - Design Brief - D07-12-23-0099 |
| Environmental | 2023-07-14 - Phase I ESA - D07-12-23-0099 |
| Erosion And Sediment Control Plan | 2023-07-14 - Erosion Control Plan - D07-12-23-0099 |
| Geotechnical Report | 2023-07-14 - Grading Plan - D07-12-23-0099 |
| Landscape Plan | 2023-07-14 - Landscape Plan - D07-12-23-0099 |
| Noise Study | 2023-07-14 - Roadway Traffic Noise Assessment - D07-12-23-0099 |
| Planning | 2023-07-14 - Planning Rationale - D07-12-23-0099 |
| Site Servicing | 2023-07-14 - Site Servicing Plan - D07-12-23-0099 |
| Site Servicing | 2023-07-14 - Servicing and Stormwater Management Report - D07-12-23-0099 |
| Stormwater Management | 2023-07-14 - Storm Drainage Plan - D07-12-23-0099 |
| 2023-07-14 - Details Sheet - D07-12-23-0099 | |
| 2023-07-14 - 4M-1383 - D07-12-23-0099 |
Related Projects#
| Project | Last Updated | Date Initiated |
|---|---|---|
80-151 Cope Dr.150-170 Akerson Rd.
D02-02-22-0080 | 2024-10-08 | 2022-08-15 |


















