140 Cope Dr.#
Last updated: 2023-10-16 ยท ID: D07-12-23-0098
Summary#
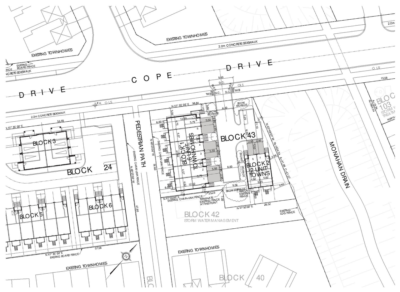
A Site Plan Control application to construct 16 back-to-back and 16 standard 3 storey town home for a total of 32 units. All units will have their own driveway and garage and will have a combined total GFA of 6,336 m2.
Status
File Pending (Application File Pending)
Renders#
Location#
Select a marker to view the address.
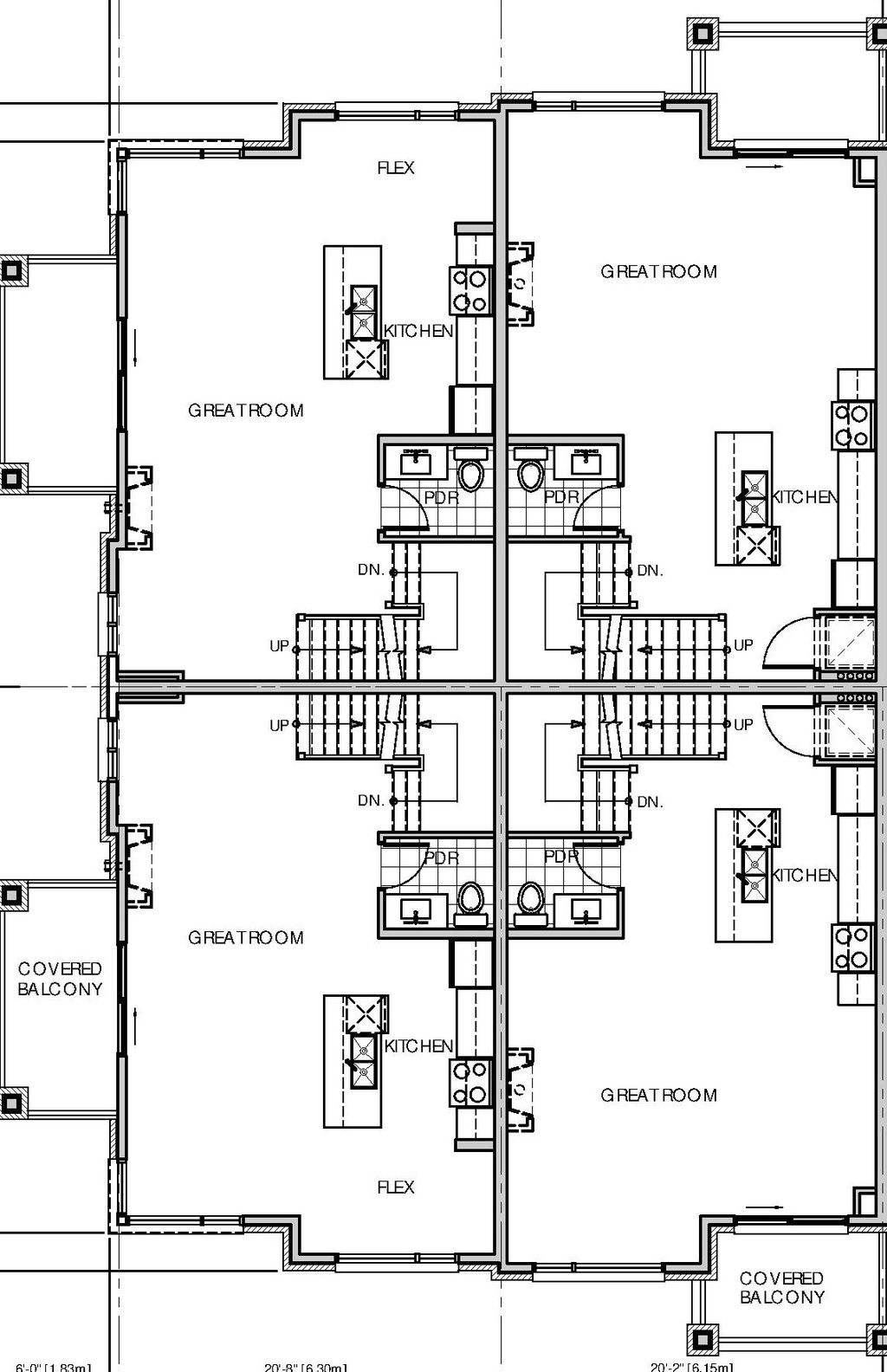
Site Plans, Elevations and Floor Plans#
Additional Information#
| Date Initiated | 2023-06-27 |
| Ward | Ward 23 - Allan Hubley |
Documents#
Related Projects#
| Project | Last Updated | Date Initiated |
|---|---|---|
80-151 Cope Dr.150-170 Akerson Rd.
D02-02-22-0080 | 2024-10-08 | 2022-08-15 |


















