2666 Tenth Line#
Last updated: 2025-10-03 · ID: D07-12-23-0094
Summary#
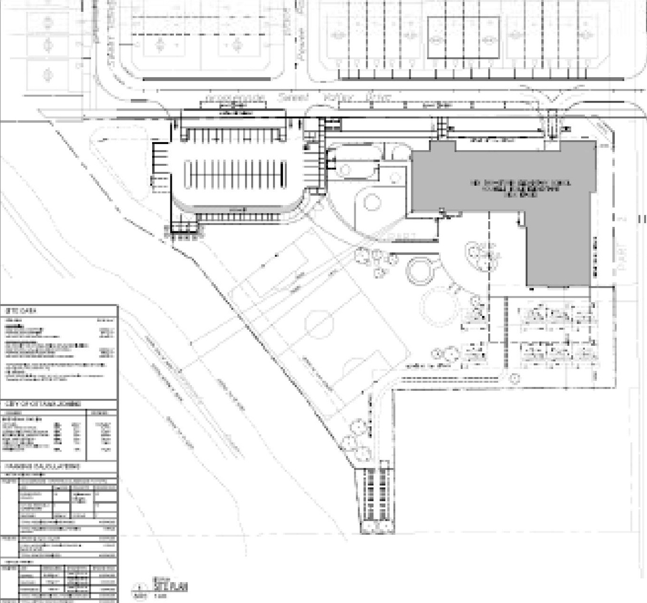
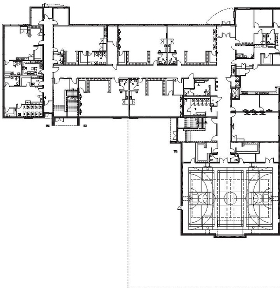
A Site Plan Control application to construct a two-storey elementary school with a total floor area of 2,900 square metres. The school will accommodate up to 604 students within the school building and eight portable classrooms. Surface parking for 49 vehicles at the rear of the site will have access from Sweetvalley Drive.
Status
Post Approval (Receipt of Agreement from Owner Pending)
Building Scale (Max.)
Based on elevation drawings. Values may be approximate. See sources for exact figures.
Low-rise · 1 storey
· 10.5 m
Renders#
Site Plans, Elevations and Floor Plans#
Additional Information#
| Date Initiated | 2023-06-23 |
| Ward | Ward 19 - Catherine Kitts |
Documents#
Related Projects#
| Project | Last Updated | Date Initiated |
|---|---|---|
2503 Mer-Bleue, Ch De La2666 Tenth Line
D02-02-22-0060 | 2026-01-24 | 2022-06-29 |
2503 Mer-Bleue, Ch De La2666 Tenth Line
D07-16-22-0011 | 2026-01-24 | 2022-06-29 |
2666 Tenth Line
D02-02-23-0027 | 2024-02-20 | 2023-04-06 |

















