Ottawa Development Projects

3030 St-Joseph#

Last updated: 2025-09-09 · ID: D07-12-23-0090

Summary#

The City of Ottawa has received an Official Plan Amendment, Zoning By-law Amendment, and Site Plan Control application to construct an 18-storey mixed-use residential building, comprising 202 residential units with 260 m2 of commercial gross floor area at-grade. A total of 163 parking spaces are proposed below grade.

Status
Post Approval (Receipt of Agreement from Owner Pending)

Building Scale (Max.) Based on elevation drawings. Values may be approximate. See sources for exact figures.
High-rise · 18 storeys · 63.14 m

Renders#

Location#

Select a marker to view the address.

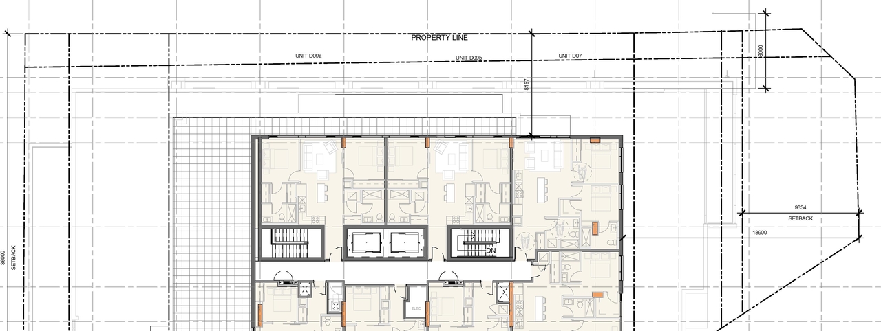
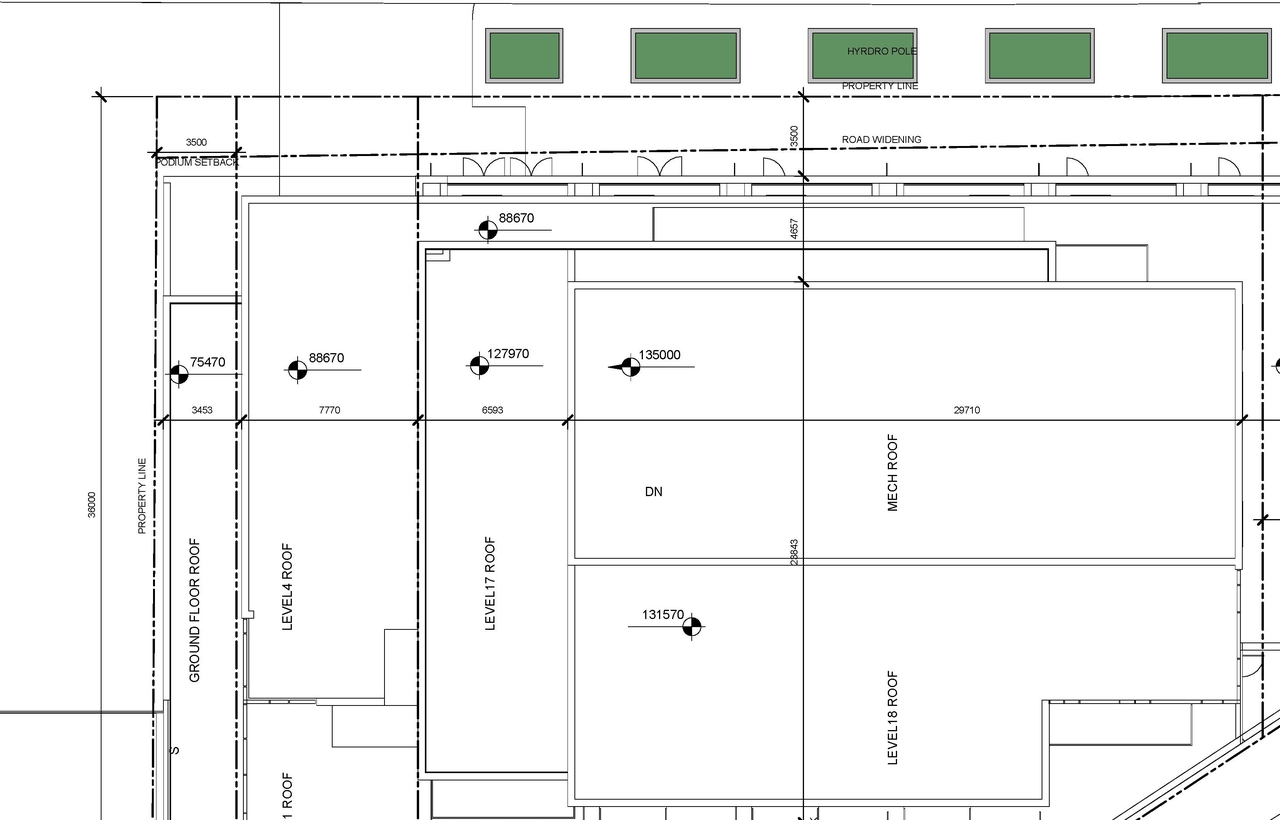
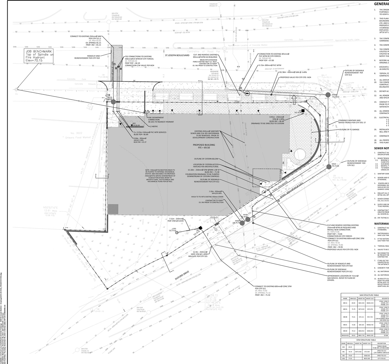
Site Plans, Elevations and Floor Plans#

  • Image from page 21 of the file '2024-03-19 - Urban Design Review Panel Slide Deck -D07-12-23-0090'
  • Image from page 6 of the file '2023-06-15 - Context, Site, Floor, Elevation, Sections, 3D Views, Sunshade, Plans - D07-12-23-009'
  • Construction site plan for project from page 7 of the file '2023-06-15 - Context, Site, Floor, Elevation, Sections, 3D Views, Sunshade, Plans - D07-12-23-009'
  • Construction site plan for project from page 16 of the file '2024-03-19 - Urban Design Review Panel Slide Deck -D07-12-23-0090'
  • Construction site plan for project from page 2 of the file '2023-06-15 - Context, Site, Floor, Elevation, Sections, 3D Views, Sunshade, Plans - D07-12-23-009'
  • Construction site plan for project from page 22 of the file '2024-03-19 - Urban Design Review Panel Slide Deck -D07-12-23-0090'
  • Construction site plan for project from page 28 of the file '2024-03-19 - Urban Design Review Panel Slide Deck -D07-12-23-0090'
  • Construction site plan for project from page 17 of the file '2024-03-19 - Urban Design Review Panel Slide Deck -D07-12-23-0090'
  • Construction site plan for project from page 28 of the file '2024-03-19 - Urban Design Review Panel Slide Deck -D07-12-23-0090'
  • Construction site plan for project from page 27 of the file '2024-03-19 - Urban Design Review Panel Slide Deck -D07-12-23-0090'
  • Construction site plan for project from page 5 of the file '2023-06-15 - Context, Site, Floor, Elevation, Sections, 3D Views, Sunshade, Plans - D07-12-23-009'
  • Construction site plan for project from page 34 of the file '2024-03-19 - Urban Design Review Panel Slide Deck -D07-12-23-0090'
  • Construction site plan for project from page 29 of the file '2024-03-19 - Urban Design Review Panel Slide Deck -D07-12-23-0090'
  • Construction site plan for project from page 33 of the file '2024-03-19 - Urban Design Review Panel Slide Deck -D07-12-23-0090'
  • Construction site plan for project from page 29 of the file '2024-03-19 - Urban Design Review Panel Slide Deck -D07-12-23-0090'
  • Construction site plan for project from page 29 of the file '2024-03-19 - Urban Design Review Panel Slide Deck -D07-12-23-0090'
  • Construction site plan for project from page 32 of the file '2024-03-19 - Urban Design Review Panel Slide Deck -D07-12-23-0090'
  • Construction site plan for project from page 27 of the file '2024-03-19 - Urban Design Review Panel Slide Deck -D07-12-23-0090'
  • Construction site plan for project from page 29 of the file '2024-03-19 - Urban Design Review Panel Slide Deck -D07-12-23-0090'
  • Construction site plan for project from page 29 of the file '2024-03-19 - Urban Design Review Panel Slide Deck -D07-12-23-0090'
  • Construction site plan for project from page 27 of the file '2024-03-19 - Urban Design Review Panel Slide Deck -D07-12-23-0090'
  • Construction site plan for project from page 36 of the file '2024-03-19 - Urban Design Review Panel Slide Deck -D07-12-23-0090'
  • Construction site plan for project from page 36 of the file '2024-03-19 - Urban Design Review Panel Slide Deck -D07-12-23-0090'
  • Construction site plan for project from page 11 of the file '2023-06-15 - Context, Site, Floor, Elevation, Sections, 3D Views, Sunshade, Plans - D07-12-23-009'
  • Construction site plan for project from page 36 of the file '2024-03-19 - Urban Design Review Panel Slide Deck -D07-12-23-0090'
  • Construction site plan for project from page 35 of the file '2024-03-19 - Urban Design Review Panel Slide Deck -D07-12-23-0090'
  • Construction site plan for project from page 35 of the file '2024-03-19 - Urban Design Review Panel Slide Deck -D07-12-23-0090'
  • Construction site plan for project from page 12 of the file '2024-03-19 - Urban Design Review Panel Slide Deck -D07-12-23-0090'
  • Construction site plan for project from page 10 of the file '2024-03-19 - Urban Design Review Panel Slide Deck -D07-12-23-0090'
  • Floor plan for project from page 5 of the file '2023-06-15 - Context, Site, Floor, Elevation, Sections, 3D Views, Sunshade, Plans - D07-12-23-009'
  • Image from page 21 of the file '2024-03-19 - Urban Design Review Panel Slide Deck -D07-12-23-0090'
  • Image from page 6 of the file '2023-06-15 - Context, Site, Floor, Elevation, Sections, 3D Views, Sunshade, Plans - D07-12-23-009'
  • Construction site plan for project from page 7 of the file '2023-06-15 - Context, Site, Floor, Elevation, Sections, 3D Views, Sunshade, Plans - D07-12-23-009'
  • Construction site plan for project from page 16 of the file '2024-03-19 - Urban Design Review Panel Slide Deck -D07-12-23-0090'
  • Construction site plan for project from page 2 of the file '2023-06-15 - Context, Site, Floor, Elevation, Sections, 3D Views, Sunshade, Plans - D07-12-23-009'
  • Construction site plan for project from page 22 of the file '2024-03-19 - Urban Design Review Panel Slide Deck -D07-12-23-0090'
  • Construction site plan for project from page 28 of the file '2024-03-19 - Urban Design Review Panel Slide Deck -D07-12-23-0090'
  • Construction site plan for project from page 17 of the file '2024-03-19 - Urban Design Review Panel Slide Deck -D07-12-23-0090'
  • Construction site plan for project from page 28 of the file '2024-03-19 - Urban Design Review Panel Slide Deck -D07-12-23-0090'
  • Construction site plan for project from page 27 of the file '2024-03-19 - Urban Design Review Panel Slide Deck -D07-12-23-0090'
  • Construction site plan for project from page 5 of the file '2023-06-15 - Context, Site, Floor, Elevation, Sections, 3D Views, Sunshade, Plans - D07-12-23-009'
  • Construction site plan for project from page 34 of the file '2024-03-19 - Urban Design Review Panel Slide Deck -D07-12-23-0090'
  • Construction site plan for project from page 29 of the file '2024-03-19 - Urban Design Review Panel Slide Deck -D07-12-23-0090'
  • Construction site plan for project from page 33 of the file '2024-03-19 - Urban Design Review Panel Slide Deck -D07-12-23-0090'
  • Construction site plan for project from page 29 of the file '2024-03-19 - Urban Design Review Panel Slide Deck -D07-12-23-0090'
  • Construction site plan for project from page 29 of the file '2024-03-19 - Urban Design Review Panel Slide Deck -D07-12-23-0090'
  • Construction site plan for project from page 32 of the file '2024-03-19 - Urban Design Review Panel Slide Deck -D07-12-23-0090'
  • Construction site plan for project from page 27 of the file '2024-03-19 - Urban Design Review Panel Slide Deck -D07-12-23-0090'
  • Construction site plan for project from page 29 of the file '2024-03-19 - Urban Design Review Panel Slide Deck -D07-12-23-0090'
  • Construction site plan for project from page 29 of the file '2024-03-19 - Urban Design Review Panel Slide Deck -D07-12-23-0090'
  • Construction site plan for project from page 27 of the file '2024-03-19 - Urban Design Review Panel Slide Deck -D07-12-23-0090'
  • Construction site plan for project from page 36 of the file '2024-03-19 - Urban Design Review Panel Slide Deck -D07-12-23-0090'
  • Construction site plan for project from page 36 of the file '2024-03-19 - Urban Design Review Panel Slide Deck -D07-12-23-0090'
  • Construction site plan for project from page 11 of the file '2023-06-15 - Context, Site, Floor, Elevation, Sections, 3D Views, Sunshade, Plans - D07-12-23-009'
  • Construction site plan for project from page 36 of the file '2024-03-19 - Urban Design Review Panel Slide Deck -D07-12-23-0090'
  • Construction site plan for project from page 35 of the file '2024-03-19 - Urban Design Review Panel Slide Deck -D07-12-23-0090'
  • Construction site plan for project from page 35 of the file '2024-03-19 - Urban Design Review Panel Slide Deck -D07-12-23-0090'
  • Construction site plan for project from page 12 of the file '2024-03-19 - Urban Design Review Panel Slide Deck -D07-12-23-0090'
  • Construction site plan for project from page 10 of the file '2024-03-19 - Urban Design Review Panel Slide Deck -D07-12-23-0090'
  • Floor plan for project from page 5 of the file '2023-06-15 - Context, Site, Floor, Elevation, Sections, 3D Views, Sunshade, Plans - D07-12-23-009'

Additional Information#

Date Initiated2023-06-16
WardWard 1 - Matthew Luloff

Documents#

TypeDocument
Application Summary2023-07-18 - Application Summary - D07-12-23-0090
Architectural Plans2024-08-01 - Plan & Profile STA 2+000 to 2+040 - D07-12-23-0090
Architectural Plans2024-08-01 - Plan & Profile STA 1+000 to 1+063 - D07-12-23-0090
Architectural Plans2024-08-01 - Architectural Plans - D07-12-23-0090
Architectural Plans2024-03-19 - Plan and Profile - D07-12-23-0090
Architectural Plans2024-03-19 - Plan and Profile - (2) - D07-12-23-0090
Architectural Plans2024-03-19 - Architecture Plans - D07-12-23-0090
Architectural Plans2024-03-19 - Appendix Landscape Plan - D07-12-23-0090
Architectural Plans2023-06-15 - Site Plan -D07-12-23-0090
Architectural Plans2024-09-12 - Site Plan - D07-12-23-0090
Architectural Plans2024-09-12 - Plan & Profile STA 3+000 to 3+020 - D07-12-23-0090
Architectural Plans2024-09-12 - Plan & Profile STA 2+000 to 2+040 - D07-12-23-0090
Architectural Plans2024-09-12 - Plan & Profile STA 1+000 to 1+073 - D07-12-23-0090
Architectural Plans2024-09-12 - Site Plan signed - D07-12-23-0090
Architectural Plans2024-09-12 - Plan & Profile STA 3+000 to 3+020 signed - D07-12-23-0090
Architectural Plans2024-09-12 - Plan & Profile STA 2+000 to 2+040 signed - D07-12-23-0090
Architectural Plans2024-09-12 - Plan & Profile Sta 1+000 to 1+073 signed - D07-12-23-0090
Architectural Plans2024-08-01 - Site Plan Sheet 2 - D07-12-23-0090
Architectural Plans2024-08-01 - Elevation signed - D07-12-23-0090
Architectural Plans2025-05-21 - site grading and erosion plan - D07-12-23-0090
Architectural Plans2025-05-21 - Plan and profile 3 - D07-12-23-0090
Architectural Plans2025-05-21 - Plan and profile 2 - D07-12-23-0090
Architectural Plans2025-05-21 - PLan and profile - D07-12-23-0090
Civil Engineering Report2024-03-19 - Civil Plans - D07-12-23-0090
Design Brief2024-03-19 - Urban Design Review Panel Report - D07-12-23-0090
Design Brief2024-03-19 - Urban Design Review Panel Slide Deck -D07-12-23-0090
Electrical Plan2024-03-19 - ELECTRICAL SITE PLAN - D07-12-23-0090
Environmental2023-06-15 - Phase I Environmental Site Assessment - D07-12-23-0090
Geotechnical Report2024-08-01 - Grading, Drainage and Erosion & Sediment Control Plan - D07-12-23-0090
Geotechnical Report2023-06-15 - GRADING, DRAINAGE AND EROSION & SEDIMENT CONTROL PLAN -D07-12-23-0090(2)
Geotechnical Report2023-06-15 - GRADING, DRAINAGE AND EROSION & SEDIMENT CONTROL PLAN - D07-12-23-0090
Geotechnical Report2023-06-15 - Geotechnical Investigation - D07-12-23-0090
Geotechnical Report2024-09-12 - Grading, Drainage and Erosion & Sediment Control Plan - D07-12-23-0090
Geotechnical Report2024-09-12 - Grading, Drainage and Erosion & Sediment Control Plan signed - D07-12-23-0090
Noise Study2023-06-15 - Roadway Traffic Noise - D07-12-23-0090
Planning2024-03-19 - Planning Rationale - D07-12-23-0090
Planning2023-06-15 - Planning Rationale and Design Brief -D07-12-23-0090
Rendering2023-06-15 - Context, Site, Floor, Elevation, Sections, 3D Views, Sunshade, Plans - D07-12-23-009
Site Servicing2024-08-01 - Site Servicing Plan - D07-12-23-0090
Site Servicing2024-08-01 - Servicing & SWM Report - D07-12-23-0090
Site Servicing2024-03-19 - Site Servicing Plan -D07-12-23-0090
Site Servicing2024-03-19 - SERVICING AND STORMWATER MANAGEMENT REPORT - D07-12-23-0090
Site Servicing2023-06-15 - SERVICING & STORMWATER MANAGEMENT REPORT - D07-12-23-0090
Site Servicing2024-09-12 - Site Servicing Plan - D07-12-23-0090
Site Servicing2024-09-12 - Servicing & SWM Report - D07-12-23-0090
Site Servicing2024-09-12 - Site Servicing Plan signed - D07-12-23-0090
Site Servicing2025-05-21 - Site servicing Plan - D07-12-23-0090
Surveying2023-06-15 - Topographical Plan - D07-12-23-0090
Transportation Analysis2024-03-19 - Transportation Impact Assessment - D07-12-23-0090
Transportation Analysis2023-06-15 - Transportation Impact Assessment - D07-12-23-0090
Tree Information and Conservation2024-08-01 - TCR & Landscape Plan - D07-12-23-0090
Tree Information and Conservation2024-03-19 - Tree Conservation Report and Landscape Plan - D07-12-23-0090
Tree Information and Conservation2023-06-15 - Tree Conservation Report and Landscape Plan - D07-12-23-0090
Tree Information and Conservation2024-09-12 - TCR & Landscape Plan - D07-12-23-0090
Tree Information and Conservation2024-09-12 - TCR & Landscape Plan signed - D07-12-23-0090
Wind Study2023-06-15 - Pedestrian Level Wind Study - D07-12-23-0090
2024-03-19 - Landslide Hazard Assessment - D07-12-23-0090
2024-03-19 - Hydro Wire Section - D07-12-23-0090
2023-06-15 - SETBACK Schedule -D07-12-23-0090
2025-01-09 - Delegated Authority Report signed - D07-12-23-0090
2024-08-01 - Sections - D07-12-24-0090
2025-05-21 - Water data - D07-12-23-0090