Ottawa Development Projects

1531 St-Laurent Blvd.#

Last updated: 2026-03-31 · ID: D07-12-23-0088

Summary#

The City of Ottawa has received a Zoning By-law amendment and Site Plan Control application to construct two high-rise towers with modifications to the zoning provisions.

Status
Active (Resubmission Received)

Building Scale (Max.) Based on elevation drawings. Values may be approximate. See sources for exact figures.
High-rise · 26 storeys · 82.03 m

Renders#

  • Rendering of building from page 11 of the file '2024-07-23 - UDRP Design Brief - D07-12-23-0088'
  • Rendering of building from page 14 of the file '2026-03-26 - UDRP Presentation Drawing Set - D07-12-23-0088'
  • Rendering of building from page 18 of the file '2026-03-26 - UDRP Presentation Drawing Set - D07-12-23-0088'
  • Rendering of building from page 15 of the file '2026-03-26 - UDRP Presentation Drawing Set - D07-12-23-0088'
  • Rendering of building from page 15 of the file '2024-07-23 - UDRP Design Brief - D07-12-23-0088'
  • Rendering of building from page 14 of the file '2024-07-23 - UDRP Design Brief - D07-12-23-0088'
  • Rendering of building from page 12 of the file '2024-07-23 - UDRP Design Brief - D07-12-23-0088'
  • Rendering of building from page 7 of the file '2024-07-23 - UDRP Design Brief - D07-12-23-0088'
  • Rendering of building from page 13 of the file '2024-07-23 - UDRP Design Brief - D07-12-23-0088'
  • Rendering of building from page 17 of the file '2024-07-23 - UDRP Design Brief - D07-12-23-0088'
  • Rendering of building from page 16 of the file '2024-07-23 - UDRP Design Brief - D07-12-23-0088'
  • Rendering of building from page 7 of the file '2024-07-23 - UDRP Design Brief - D07-12-23-0088'
  • Rendering of building from page 7 of the file '2024-07-23 - UDRP Design Brief - D07-12-23-0088'
  • Rendering of building from page 16 of the file '2026-03-26 - UDRP Presentation Drawing Set - D07-12-23-0088'
  • Rendering of building from page 17 of the file '2026-03-26 - UDRP Presentation Drawing Set - D07-12-23-0088'
  • Rendering of building from page 7 of the file '2024-07-23 - UDRP Design Brief - D07-12-23-0088'
  • Rendering of building from page 8 of the file '2026-03-26 - UDRP Presentation Drawing Set - D07-12-23-0088'
  • Rendering of building from page 9 of the file '2026-03-26 - UDRP Presentation Drawing Set - D07-12-23-0088'
  • Rendering of building from page 8 of the file '2026-03-26 - UDRP Presentation Drawing Set - D07-12-23-0088'
  • Rendering of building from page 9 of the file '2026-03-26 - UDRP Presentation Drawing Set - D07-12-23-0088'
  • Rendering of building from page 8 of the file '2026-03-26 - UDRP Presentation Drawing Set - D07-12-23-0088'
  • Rendering of building from page 11 of the file '2024-07-23 - UDRP Design Brief - D07-12-23-0088'
  • Rendering of building from page 14 of the file '2026-03-26 - UDRP Presentation Drawing Set - D07-12-23-0088'
  • Rendering of building from page 18 of the file '2026-03-26 - UDRP Presentation Drawing Set - D07-12-23-0088'
  • Rendering of building from page 15 of the file '2026-03-26 - UDRP Presentation Drawing Set - D07-12-23-0088'
  • Rendering of building from page 15 of the file '2024-07-23 - UDRP Design Brief - D07-12-23-0088'
  • Rendering of building from page 14 of the file '2024-07-23 - UDRP Design Brief - D07-12-23-0088'
  • Rendering of building from page 12 of the file '2024-07-23 - UDRP Design Brief - D07-12-23-0088'
  • Rendering of building from page 7 of the file '2024-07-23 - UDRP Design Brief - D07-12-23-0088'
  • Rendering of building from page 13 of the file '2024-07-23 - UDRP Design Brief - D07-12-23-0088'
  • Rendering of building from page 17 of the file '2024-07-23 - UDRP Design Brief - D07-12-23-0088'
  • Rendering of building from page 16 of the file '2024-07-23 - UDRP Design Brief - D07-12-23-0088'
  • Rendering of building from page 7 of the file '2024-07-23 - UDRP Design Brief - D07-12-23-0088'
  • Rendering of building from page 7 of the file '2024-07-23 - UDRP Design Brief - D07-12-23-0088'
  • Rendering of building from page 16 of the file '2026-03-26 - UDRP Presentation Drawing Set - D07-12-23-0088'
  • Rendering of building from page 17 of the file '2026-03-26 - UDRP Presentation Drawing Set - D07-12-23-0088'
  • Rendering of building from page 7 of the file '2024-07-23 - UDRP Design Brief - D07-12-23-0088'
  • Rendering of building from page 8 of the file '2026-03-26 - UDRP Presentation Drawing Set - D07-12-23-0088'
  • Rendering of building from page 9 of the file '2026-03-26 - UDRP Presentation Drawing Set - D07-12-23-0088'
  • Rendering of building from page 8 of the file '2026-03-26 - UDRP Presentation Drawing Set - D07-12-23-0088'
  • Rendering of building from page 9 of the file '2026-03-26 - UDRP Presentation Drawing Set - D07-12-23-0088'
  • Rendering of building from page 8 of the file '2026-03-26 - UDRP Presentation Drawing Set - D07-12-23-0088'

Location#

Select a marker to view the address.

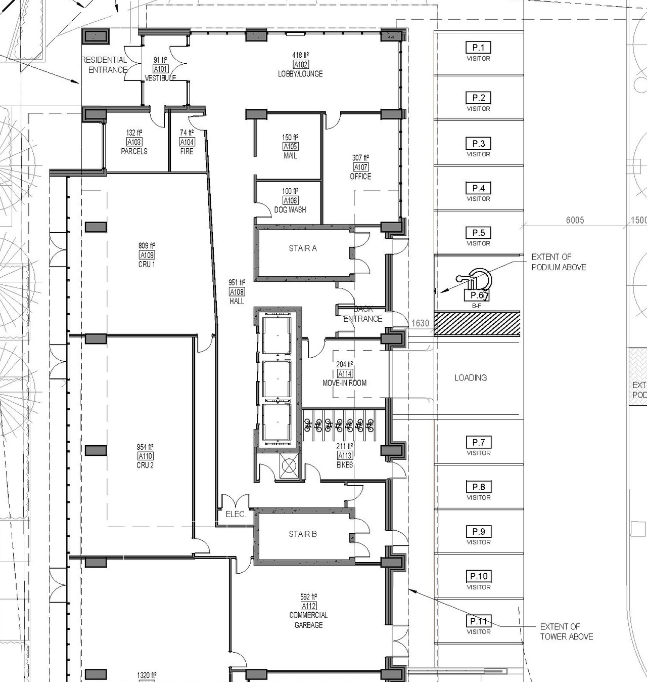
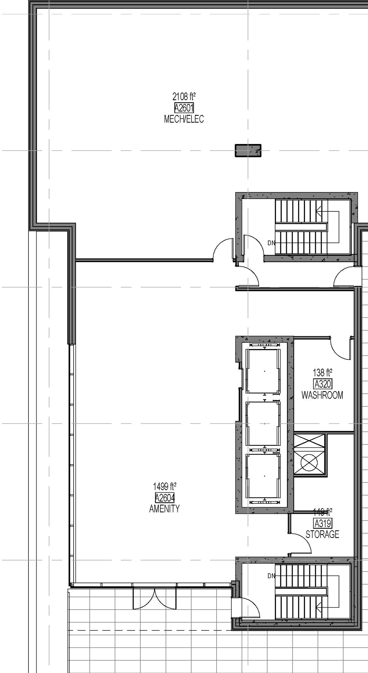
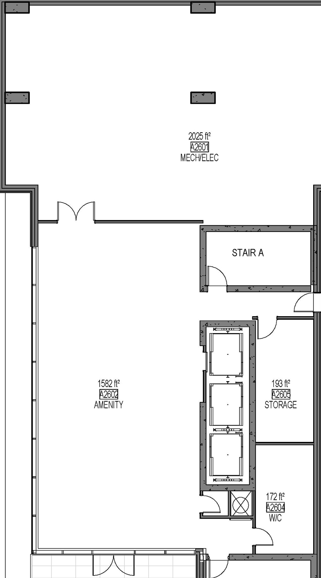
Site Plans, Elevations and Floor Plans#

  • Image from page 9 of the file '2026-03-26 - UDRP Presentation Drawing Set - D07-12-23-0088'
  • Image from page 9 of the file '2026-03-26 - UDRP Presentation Drawing Set - D07-12-23-0088'
  • Image from page 32 of the file '2024-07-23 - UDRP Design Brief - D07-12-23-0088'
  • Image from page 37 of the file '2026-03-26 - UDRP Presentation Drawing Set - D07-12-23-0088'
  • Image from page 34 of the file '2026-03-26 - UDRP Presentation Drawing Set - D07-12-23-0088'
  • Image from page 29 of the file '2024-07-23 - UDRP Design Brief - D07-12-23-0088'
  • Image from page 9 of the file '2026-03-26 - UDRP Presentation Drawing Set - D07-12-23-0088'
  • Image from page 36 of the file '2026-03-26 - UDRP Presentation Drawing Set - D07-12-23-0088'
  • Image from page 36 of the file '2026-03-26 - UDRP Presentation Drawing Set - D07-12-23-0088'
  • Image from page 31 of the file '2024-07-23 - UDRP Design Brief - D07-12-23-0088'
  • Image from page 32 of the file '2024-07-23 - UDRP Design Brief - D07-12-23-0088'
  • Image from page 31 of the file '2024-07-23 - UDRP Design Brief - D07-12-23-0088'
  • Image from page 37 of the file '2026-03-26 - UDRP Presentation Drawing Set - D07-12-23-0088'
  • Image from page 33 of the file '2024-07-23 - UDRP Design Brief - D07-12-23-0088'
  • Image from page 35 of the file '2026-03-26 - UDRP Presentation Drawing Set - D07-12-23-0088'
  • Image from page 35 of the file '2026-03-26 - UDRP Presentation Drawing Set - D07-12-23-0088'
  • Image from page 28 of the file '2024-07-23 - UDRP Design Brief - D07-12-23-0088'
  • Image from page 12 of the file '2023-06-15 - Floor Plans - D07-12-23-0088'
  • Image from page 8 of the file '2023-06-15 - Floor Plans - D07-12-23-0088'
  • Image from page 30 of the file '2024-07-23 - UDRP Design Brief - D07-12-23-0088'
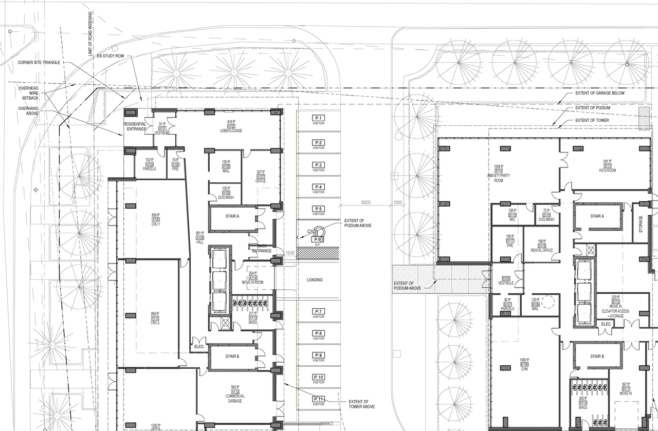
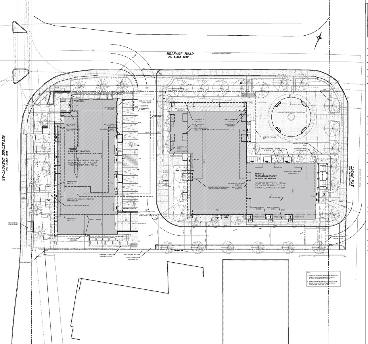
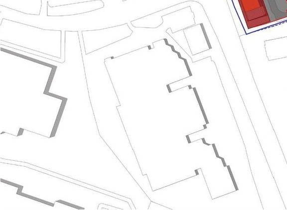
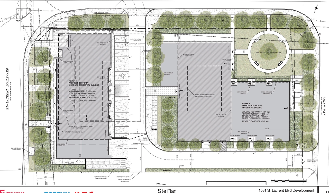
  • Construction site plan for project from page 11 of the file '2026-03-26 - UDRP Presentation Drawing Set - D07-12-23-0088'
  • Construction site plan for project from page 10 of the file '2026-03-26 - UDRP Presentation Drawing Set - D07-12-23-0088'
  • Construction site plan for project from page 8 of the file '2024-07-23 - UDRP Design Brief - D07-12-23-0088'
  • Construction site plan for project from page 34 of the file '2024-07-23 - UDRP Design Brief - D07-12-23-0088'
  • Construction site plan for project from page 10 of the file '2024-07-23 - UDRP Design Brief - D07-12-23-0088'
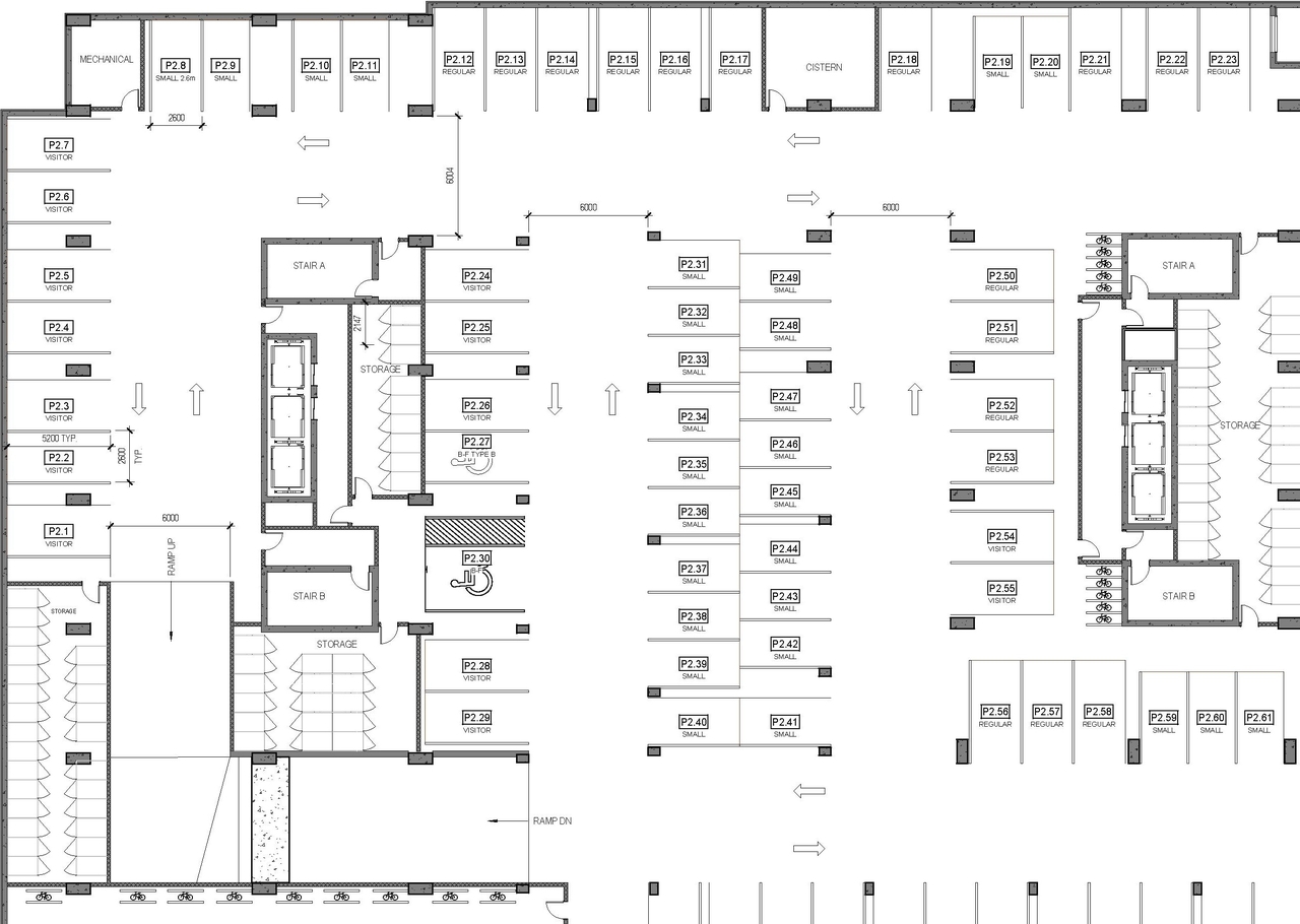
  • Construction site plan for project from page 3 of the file '2024-07-23 - Parking & Floor Plans - D07-12-23-0088'
  • Construction site plan for project from page 20 of the file '2024-07-23 - UDRP Design Brief - D07-12-23-0088'
  • Construction site plan for project from page 4 of the file '2024-07-23 - UDRP Design Brief - D07-12-23-0088'
  • Construction site plan for project from page 5 of the file '2023-06-15 - Floor Plans - D07-12-23-0088'
  • Construction site plan for project from page 6 of the file '2023-06-15 - Floor Plans - D07-12-23-0088'
  • Construction site plan for project from page 9 of the file '2024-07-23 - UDRP Design Brief - D07-12-23-0088'
  • Construction site plan for project from page 4 of the file '2026-03-26 - UDRP Presentation Drawing Set - D07-12-23-0088'
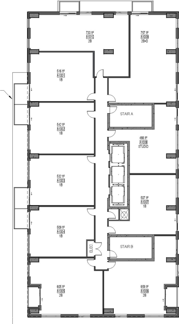
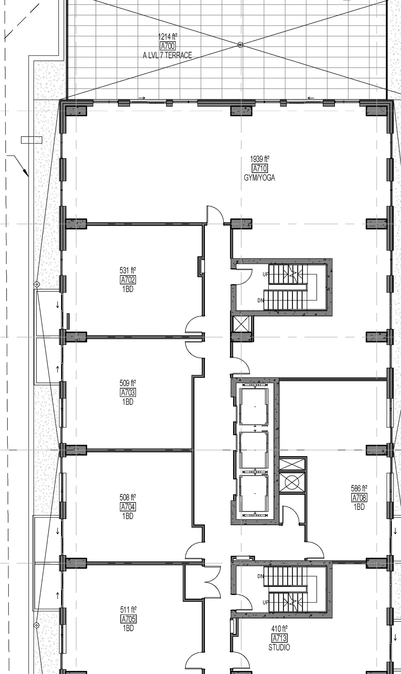
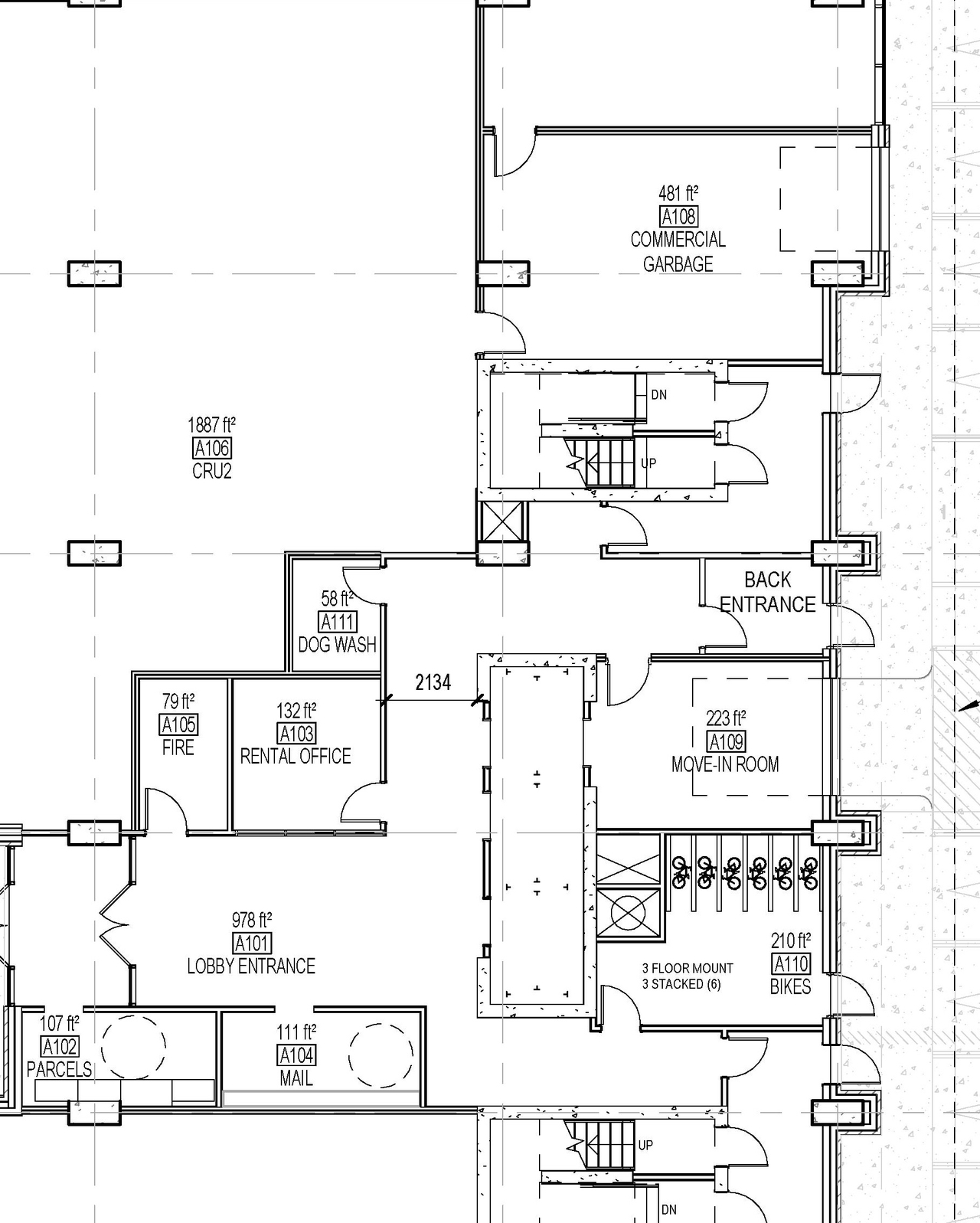
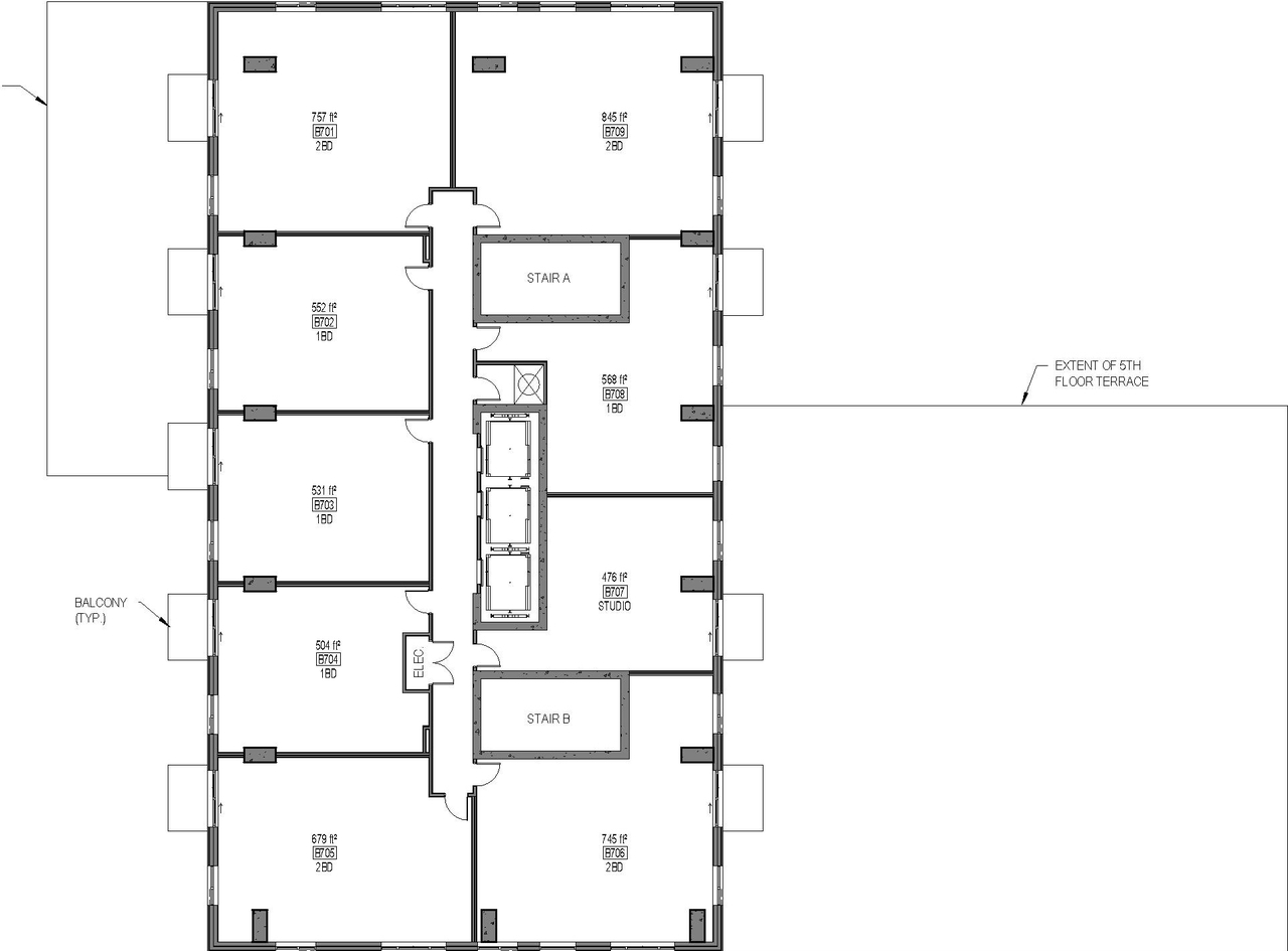
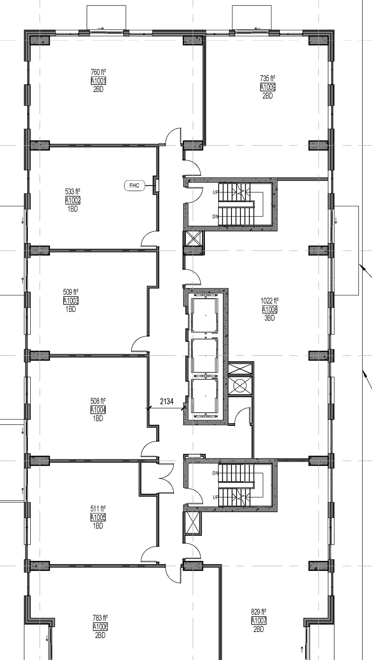
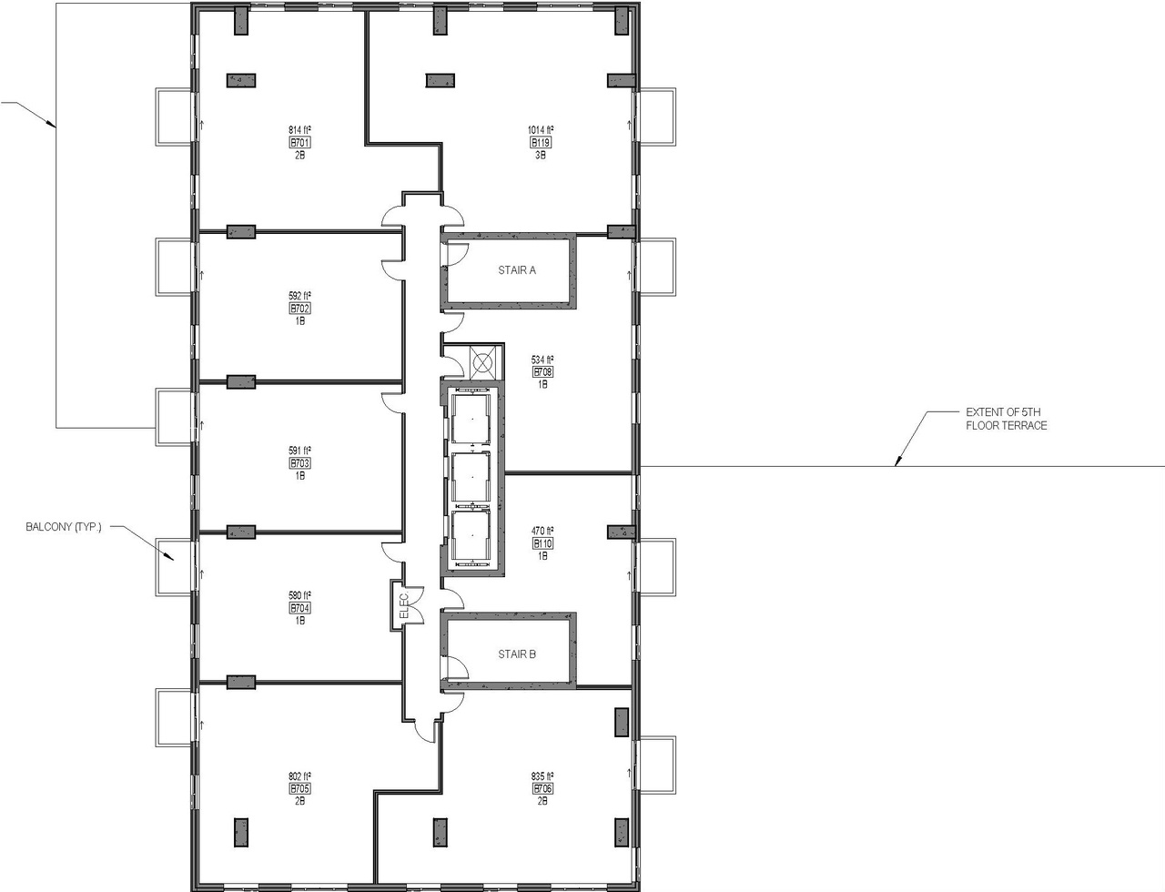
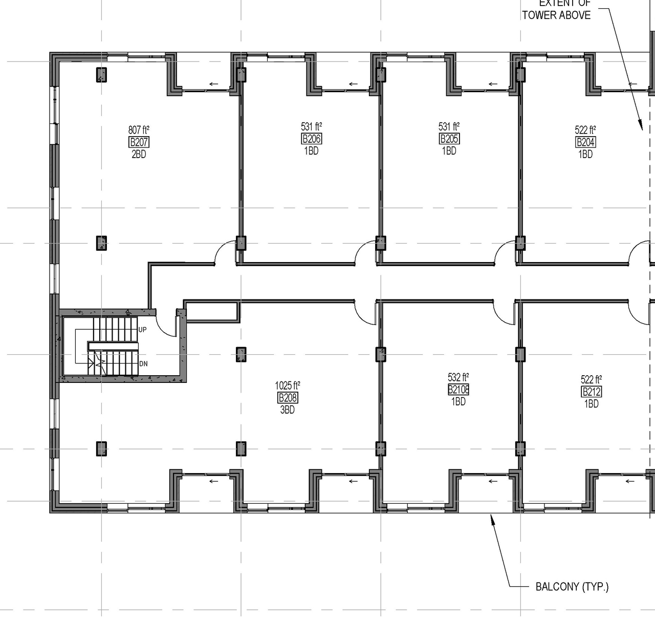
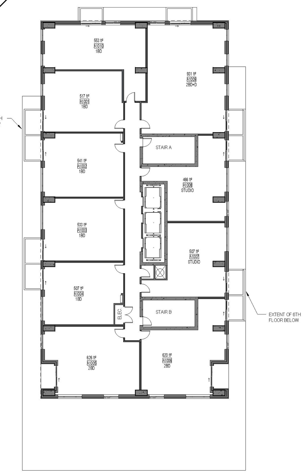
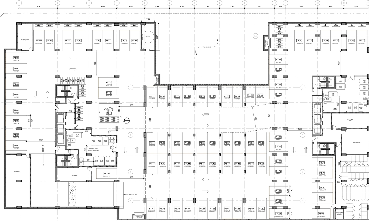
  • Floor plan for project from page 21 of the file '2026-03-26 - UDRP Presentation Drawing Set - D07-12-23-0088'
  • Floor plan for project from page 13 of the file '2023-06-15 - Floor Plans - D07-12-23-0088'
  • Floor plan for project from page 1 of the file '2024-07-23 - Parking & Floor Plans - D07-12-23-0088'
  • Floor plan for project from page 5 of the file '2024-07-23 - Parking & Floor Plans - D07-12-23-0088'
  • Floor plan for project from page 4 of the file '2023-06-15 - Floor Plans - D07-12-23-0088'
  • Floor plan for project from page 18 of the file '2024-07-23 - UDRP Design Brief - D07-12-23-0088'
  • Floor plan for project from page 8 of the file '2023-06-15 - Floor Plans - D07-12-23-0088'
  • Floor plan for project from page 8 of the file '2024-07-23 - Parking & Floor Plans - D07-12-23-0088'
  • Floor plan for project from page 7 of the file '2024-07-23 - Parking & Floor Plans - D07-12-23-0088'
  • Floor plan for project from page 25 of the file '2026-03-26 - UDRP Presentation Drawing Set - D07-12-23-0088'
  • Floor plan for project from page 7 of the file '2023-06-15 - Floor Plans - D07-12-23-0088'
  • Floor plan for project from page 9 of the file '2023-06-15 - Floor Plans - D07-12-23-0088'
  • Floor plan for project from page 11 of the file '2024-07-23 - Parking & Floor Plans - D07-12-23-0088'
  • Floor plan for project from page 10 of the file '2023-06-15 - Floor Plans - D07-12-23-0088'
  • Floor plan for project from page 31 of the file '2026-03-26 - UDRP Presentation Drawing Set - D07-12-23-0088'
  • Floor plan for project from page 29 of the file '2026-03-26 - UDRP Presentation Drawing Set - D07-12-23-0088'
  • Floor plan for project from page 25 of the file '2024-07-23 - UDRP Design Brief - D07-12-23-0088'
  • Floor plan for project from page 9 of the file '2024-07-23 - Parking & Floor Plans - D07-12-23-0088'
  • Floor plan for project from page 12 of the file '2023-06-15 - Floor Plans - D07-12-23-0088'
  • Floor plan for project from page 28 of the file '2026-03-26 - UDRP Presentation Drawing Set - D07-12-23-0088'
  • Floor plan for project from page 26 of the file '2026-03-26 - UDRP Presentation Drawing Set - D07-12-23-0088'
  • Floor plan for project from page 24 of the file '2024-07-23 - UDRP Design Brief - D07-12-23-0088'
  • Floor plan for project from page 4 of the file '2024-07-23 - Parking & Floor Plans - D07-12-23-0088'
  • Floor plan for project from page 5 of the file '2024-07-23 - Parking & Floor Plans - D07-12-23-0088'
  • Floor plan for project from page 21 of the file '2024-07-23 - UDRP Design Brief - D07-12-23-0088'
  • Image from page 9 of the file '2026-03-26 - UDRP Presentation Drawing Set - D07-12-23-0088'
  • Image from page 9 of the file '2026-03-26 - UDRP Presentation Drawing Set - D07-12-23-0088'
  • Image from page 32 of the file '2024-07-23 - UDRP Design Brief - D07-12-23-0088'
  • Image from page 37 of the file '2026-03-26 - UDRP Presentation Drawing Set - D07-12-23-0088'
  • Image from page 34 of the file '2026-03-26 - UDRP Presentation Drawing Set - D07-12-23-0088'
  • Image from page 29 of the file '2024-07-23 - UDRP Design Brief - D07-12-23-0088'
  • Image from page 9 of the file '2026-03-26 - UDRP Presentation Drawing Set - D07-12-23-0088'
  • Image from page 36 of the file '2026-03-26 - UDRP Presentation Drawing Set - D07-12-23-0088'
  • Image from page 36 of the file '2026-03-26 - UDRP Presentation Drawing Set - D07-12-23-0088'
  • Image from page 31 of the file '2024-07-23 - UDRP Design Brief - D07-12-23-0088'
  • Image from page 32 of the file '2024-07-23 - UDRP Design Brief - D07-12-23-0088'
  • Image from page 31 of the file '2024-07-23 - UDRP Design Brief - D07-12-23-0088'
  • Image from page 37 of the file '2026-03-26 - UDRP Presentation Drawing Set - D07-12-23-0088'
  • Image from page 33 of the file '2024-07-23 - UDRP Design Brief - D07-12-23-0088'
  • Image from page 35 of the file '2026-03-26 - UDRP Presentation Drawing Set - D07-12-23-0088'
  • Image from page 35 of the file '2026-03-26 - UDRP Presentation Drawing Set - D07-12-23-0088'
  • Image from page 28 of the file '2024-07-23 - UDRP Design Brief - D07-12-23-0088'
  • Image from page 12 of the file '2023-06-15 - Floor Plans - D07-12-23-0088'
  • Image from page 8 of the file '2023-06-15 - Floor Plans - D07-12-23-0088'
  • Image from page 30 of the file '2024-07-23 - UDRP Design Brief - D07-12-23-0088'
  • Construction site plan for project from page 11 of the file '2026-03-26 - UDRP Presentation Drawing Set - D07-12-23-0088'
  • Construction site plan for project from page 10 of the file '2026-03-26 - UDRP Presentation Drawing Set - D07-12-23-0088'
  • Construction site plan for project from page 8 of the file '2024-07-23 - UDRP Design Brief - D07-12-23-0088'
  • Construction site plan for project from page 34 of the file '2024-07-23 - UDRP Design Brief - D07-12-23-0088'
  • Construction site plan for project from page 10 of the file '2024-07-23 - UDRP Design Brief - D07-12-23-0088'
  • Construction site plan for project from page 3 of the file '2024-07-23 - Parking & Floor Plans - D07-12-23-0088'
  • Construction site plan for project from page 20 of the file '2024-07-23 - UDRP Design Brief - D07-12-23-0088'
  • Construction site plan for project from page 4 of the file '2024-07-23 - UDRP Design Brief - D07-12-23-0088'
  • Construction site plan for project from page 5 of the file '2023-06-15 - Floor Plans - D07-12-23-0088'
  • Construction site plan for project from page 6 of the file '2023-06-15 - Floor Plans - D07-12-23-0088'
  • Construction site plan for project from page 9 of the file '2024-07-23 - UDRP Design Brief - D07-12-23-0088'
  • Construction site plan for project from page 4 of the file '2026-03-26 - UDRP Presentation Drawing Set - D07-12-23-0088'
  • Floor plan for project from page 21 of the file '2026-03-26 - UDRP Presentation Drawing Set - D07-12-23-0088'
  • Floor plan for project from page 13 of the file '2023-06-15 - Floor Plans - D07-12-23-0088'
  • Floor plan for project from page 1 of the file '2024-07-23 - Parking & Floor Plans - D07-12-23-0088'
  • Floor plan for project from page 5 of the file '2024-07-23 - Parking & Floor Plans - D07-12-23-0088'
  • Floor plan for project from page 4 of the file '2023-06-15 - Floor Plans - D07-12-23-0088'
  • Floor plan for project from page 18 of the file '2024-07-23 - UDRP Design Brief - D07-12-23-0088'
  • Floor plan for project from page 8 of the file '2023-06-15 - Floor Plans - D07-12-23-0088'
  • Floor plan for project from page 8 of the file '2024-07-23 - Parking & Floor Plans - D07-12-23-0088'
  • Floor plan for project from page 7 of the file '2024-07-23 - Parking & Floor Plans - D07-12-23-0088'
  • Floor plan for project from page 25 of the file '2026-03-26 - UDRP Presentation Drawing Set - D07-12-23-0088'
  • Floor plan for project from page 7 of the file '2023-06-15 - Floor Plans - D07-12-23-0088'
  • Floor plan for project from page 9 of the file '2023-06-15 - Floor Plans - D07-12-23-0088'
  • Floor plan for project from page 11 of the file '2024-07-23 - Parking & Floor Plans - D07-12-23-0088'
  • Floor plan for project from page 10 of the file '2023-06-15 - Floor Plans - D07-12-23-0088'
  • Floor plan for project from page 31 of the file '2026-03-26 - UDRP Presentation Drawing Set - D07-12-23-0088'
  • Floor plan for project from page 29 of the file '2026-03-26 - UDRP Presentation Drawing Set - D07-12-23-0088'
  • Floor plan for project from page 25 of the file '2024-07-23 - UDRP Design Brief - D07-12-23-0088'
  • Floor plan for project from page 9 of the file '2024-07-23 - Parking & Floor Plans - D07-12-23-0088'
  • Floor plan for project from page 12 of the file '2023-06-15 - Floor Plans - D07-12-23-0088'
  • Floor plan for project from page 28 of the file '2026-03-26 - UDRP Presentation Drawing Set - D07-12-23-0088'
  • Floor plan for project from page 26 of the file '2026-03-26 - UDRP Presentation Drawing Set - D07-12-23-0088'
  • Floor plan for project from page 24 of the file '2024-07-23 - UDRP Design Brief - D07-12-23-0088'
  • Floor plan for project from page 4 of the file '2024-07-23 - Parking & Floor Plans - D07-12-23-0088'
  • Floor plan for project from page 5 of the file '2024-07-23 - Parking & Floor Plans - D07-12-23-0088'
  • Floor plan for project from page 21 of the file '2024-07-23 - UDRP Design Brief - D07-12-23-0088'

Additional Information#

Date Initiated2023-06-15
WardWard 18 - Marty Carr

Documents#

TypeDocument
Application Summary2023-07-05 - Application Summary - D07-12-23-0088
Architectural Plans2024-07-23 - Site Plan - D07-12-23-0088
Architectural Plans2024-07-23 - Site Grading, Drainage & Erosion & Sediment Control Plan - D07-12-23-0088
Architectural Plans2024-07-23 - Section Plan - D07-12-23-0088
Architectural Plans2024-07-23 - Elevations - D07-12-23-0088
Architectural Plans2023-06-15 - Site Plan - D07-12-23-0088
Architectural Plans2023-06-15 - Site Grading, Drainage and Erosion and Sediment Control Plan - D07-12-23-0088
Architectural Plans2023-06-15 - Sections Plan - D07-12-23-0088
Architectural Plans2023-06-15 - Elevations - D07-12-23-0088
Architectural Plans2026-03-26 - Site Servicing Plan - D07-12-23-0088
Architectural Plans2026-03-26 - Site Plan - D07-12-23-0088
Architectural Plans2026-03-26 - Site Grading Drainage Erosion & Sediment Control Plan - D07-12-23-0088
Architectural Plans2026-03-26 - Parking Plan - D07-12-23-0088
Architectural Plans2026-03-26 - Landscape Plan - D07-12-23-0088
Design Brief2024-07-23 - UDRP Design Brief - D07-12-23-0088
Design Brief2026-03-26 - UDRP Presentation Drawing Set - D07-12-23-0088
Environmental2023-06-15 - Phase I Environmental Site Assessment - D07-12-23-0088
Floor Plan2024-07-23 - Parking & Floor Plans - D07-12-23-0088
Floor Plan2023-06-15 - Floor Plans - D07-12-23-0088
Geotechnical Report2023-06-30 - Geotechnical Investigation - D07-12-23-0088
Geotechnical Report2023-06-15 - Geotechnical Investigation - D07-12-23-0088
Landscape Plan2024-07-23 - Landscape Plan - D07-12-23-0088
Landscape Plan2023-06-15 - Landscape Plan -D07-12-23-0088
Noise Study2024-07-23 - Transportation Noise Assessment - D07-12-23-0088
Noise Study2023-06-15 - Transportation Noise Assessment - D07-12-23-0088
Planning2023-06-15 - Planning Rationale - D07-12-23-0088
Shadow Study2024-07-23 - Shadow Studies - D07-12-23-0088
Shadow Study2023-06-15 - Shadow studies - D07-12-23-0088
Site Servicing2024-07-23 - Site Servicing Plan - D07-12-23-0088
Site Servicing2024-07-23 - Servicing & SWM Report - D07-12-23-0088
Site Servicing2023-06-15 - Site Servicing Plan - D07-12-23-0088
Site Servicing2023-06-15 - Servicing and Stormwater Management Report -D07-12-23-0088
Stormwater Management2026-03-26 - Servicing & Stormwater Management Report - D07-12-23-0088
Surveying2023-06-15 - Topographic Plan of Survey - D07-12-23-0088
Transportation Analysis2024-07-23 - TIA Strategy Report - D07-12-23-0088
Transportation Analysis2023-06-15 - Transportation Impact Assessment - D07-12-23-0088
Tree Information and Conservation2023-06-15 - Tree Conservation Report Letter - D07-12-23-0088
Tree Information and Conservation2026-03-26 - Tree Conservation Report - D07-12-23-0088
Wind Study2024-07-23 - Wind Study - D07-12-23-0088
Wind Study2023-06-15 - Pedestrian Level Wind Study - D07-12-23-0088
2024-07-23 - Supplemental Phase II ESA - D07-12-23-0088
2024-07-23 - Phase I & II ESA - D07-12-23-0088
2023-06-15 - Presentation - D07-12-23-0088
2026-03-26 - Cover Letter - D07-12-23-0088