Ottawa Development Projects

47 Beechwood Ave.#

Last updated: 2026-03-10 · ID: D07-12-23-0084

Summary#

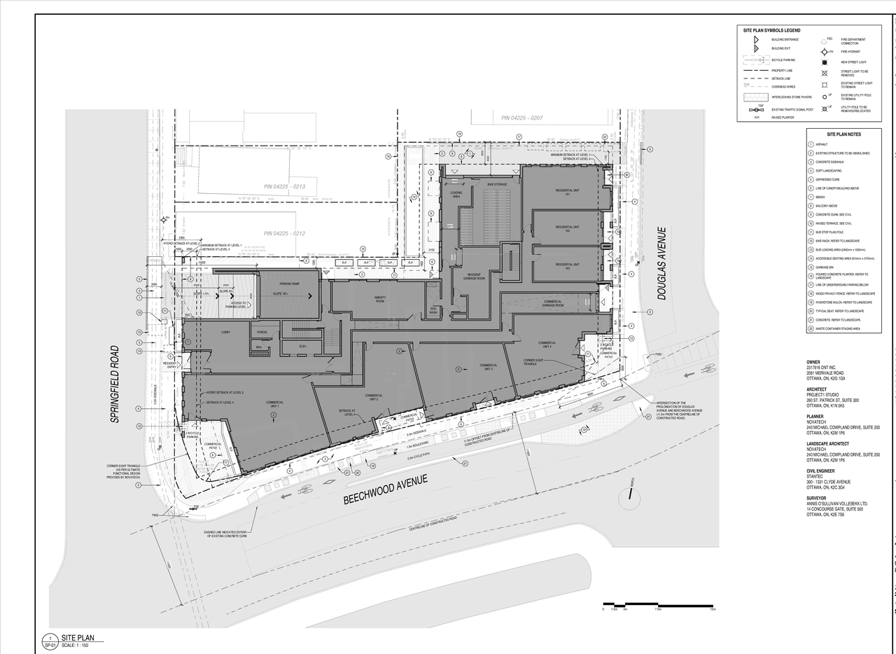
It is proposed to develop an eight-storey, mixed use building on the subject property, The propsed building will have four commercial units on the ground floor. 121 residential units will be provided ranging in size from studio to 3-bedroom apartments. The principal access to the residential units will be provided off Sprinfield Rd. and Douglas Ave. Access to commercial units is provided off Beechwood Ave. Underground motor vehicle pariing spaces are provided with access off Springfield Rd. A Minor Zoning By-law Amendment is required to facilitate the proposed development on the subject property and is being submitted concurrently.

Status
File Pending (Application File Pending)

Building Scale (Max.) Based on elevation drawings. Values may be approximate. See sources for exact figures.
Mid-rise · 8 storeys · 24.4 m

Renders#

Location#

Select a marker to view the address.

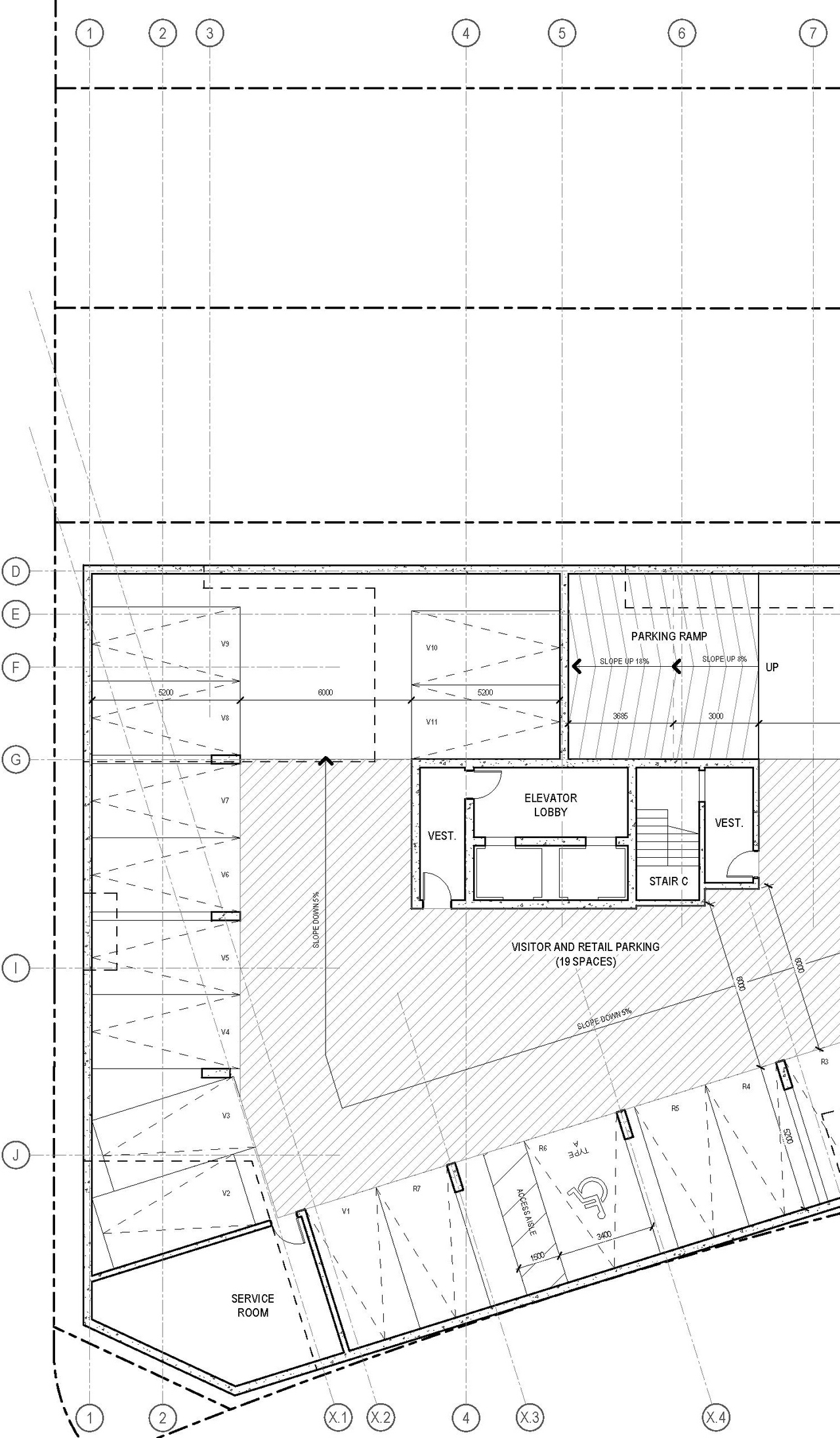
Site Plans, Elevations and Floor Plans#

Additional Information#

Date Initiated2023-06-14
WardWard 13 - Rawlson King

Documents#

TypeDocument
Application Summary2024-09-18 - Application Summary - D07-12-23-0084
Architectural Plans2024-09-12 - Preliminary Construction Management Plan - D07-12-23-0084
Architectural Plans2024-07-12 - Architectural Plans - D07-12-23-0084
Architectural Plans2023-06-14 - Site Plan - D07-12-23-0084
Architectural Plans2024-10-15 - Architectural Plans - D07-12-23-0084
Architectural Plans2025-05-07 - Revised Architectural Plans - D07-12-23-0084
Architectural Plans2025-08-07 - Architectural Plans - D07-12-23-0084
Architectural Plans2025-10-28 - Architectural Plans - D07-12-23-0084
Design Brief2024-07-12 - Design Brief - D07-12-23-0084
Design Brief2023-06-14 - Design Brief - D07-12-23-0084
Environmental2024-07-12 - Phase 2 Environmental Site Assessment Amendment Letter -D07-12-23-0084
Environmental2024-07-12 - Phase 2 Environmental Site Assessment - D07-12-23-0084
Environmental2024-07-12 - Phase 1 Environmental Site Assessment - D07-12-23-0084
Environmental2023-06-14 - Phase One Environmental Site Assessment - D07-12-23-0084
Environmental2023-06-14 - Phase I Environmental Site Assessment - D07-12-23-0084
Environmental2023-06-14 - Environmental Noise Control Study - D07-12-23-0084
Environmental2025-10-29 - Environmental Noise Control Study - D07-12-23-0084
Environmental2025-10-28 - Phase Two Environmental Site Assessment - D07-12-23-0084
Environmental2025-10-28 - Phase One Environmental Site Assessment - D07-12-23-0084
Erosion And Sediment Control Plan2024-07-12 - Erosion Control and Details Sheet - D07-12-23-0084
Erosion And Sediment Control Plan2023-06-14 - Erosion Control and Detail Sheet - D07-12-23-0084
Erosion And Sediment Control Plan2024-10-15 - Erosion Control and Details Sheet - D07-12-23-0084
Erosion And Sediment Control Plan2025-08-07 - Erosion Controls & Detail Sheet - D07-12-23-0084
Erosion And Sediment Control Plan2025-10-29 - Erosion Controls and Detail Sheet - D07-12-23-0084
Existing Conditions2024-07-12 - Existing Storm Drainage Plan - D07-12-23-0084
Existing Conditions2024-07-12 - Existing Conditions and Removals Plan - D07-12-23-0084
Existing Conditions2023-06-14 - Existing Storm Drainage Plan - D07-12-23-0084
Existing Conditions2023-06-14 - Existing Conditions and Removals Plan - D07-12-23-0084
Existing Conditions2024-10-15 - Existing Storm Drainage Plan - D07-12-23-0084
Existing Conditions2024-10-15 - Existing Conditions and Removals Plan - D07-12-23-0084
Existing Conditions2025-08-07 - Existing Storm Drainage Plan - D07-12-23-0084
Existing Conditions2025-08-07 - Existing Condition sand Removals Plan - D07-12-23-0084
Existing Conditions2025-10-29 - Existing Conditions and Removals Plan - D07-12-23-0084
Existing Conditions2025-10-28 - Existing Storm Drainage Plan - D07-12-23-0084
Floor Plan2026-03-09 - Site Plan and Floor Plan - D07-12-23-0084
Geotechnical Report2024-07-12 - Grading Plan- D07-12-23-0084
Geotechnical Report2024-07-12 - Geotechnical Investigation Report - D07-12-23-0084
Geotechnical Report2023-06-14 - Grading Plan - D07-12-23-0084
Geotechnical Report2023-06-14 - Geotechnical Investigation - D07-12-23-0084
Geotechnical Report2024-10-15 - Grading Plan - D07-12-23-0084
Geotechnical Report2025-05-07 - Grading Plan - D07-12-23-0084
Geotechnical Report2025-08-07 - Grading Plan - D07-12-23-0084
Geotechnical Report2025-10-28 - Grading Plan - D07-12-23-0084
Geotechnical Report2025-10-28 - Geotechnical Investigation Report - D07-12-23-0084
Noise Study2024-07-12 - Noise Attenuation Study - D07-12-23-0084
Planning2024-07-12 - Planning Rationale - D07-12-23-0084
Planning2023-06-14 - Planning Rationale - D07-12-23-0084
Site Servicing2024-07-12 - Site Servicing Plan - D07-12-23-0084
Site Servicing2024-07-12 - Servicing and Stormwater Management Report - D07-12-23-0084
Site Servicing2023-06-14 - Site Servicing Plan - D07-12-23-0084
Site Servicing2023-06-14 - Servicing and Stormwater Management Report - D07-12-23-0084
Site Servicing2024-10-15 - Site Servicing Plan - D07-12-23-0084
Site Servicing2024-10-15 - Servicing and SWM Report - D07-12-23-0084
Site Servicing2025-08-07 - Site Servicing Plan - D07-12-23-0084
Site Servicing2025-10-28 - Site Servicing Plan - D07-12-23-0084
Stormwater Management2024-07-12 - Storm Drainage Plan - D07-12-23-0084
Stormwater Management2023-06-14 - Storm Drainage Plan - D07-12-23-0084
Stormwater Management2024-10-15 - Storm Drainage Plan - D07-12-23-0084
Stormwater Management2025-08-07 - Storm Drainage Plan - D07-12-23-0084
Stormwater Management2025-10-28 - Storm Drainage Plan - D07-12-23-0084
Stormwater Management2026-03-09 - Servicing and SWM Report - D07-12-23-0084
Surveying2024-07-12 - Survey - D07-12-23-0084
Surveying2023-06-14 - SURVEY - D07-12-23-0084
Transportation Analysis2024-07-12 - Transportation Impact Assessment - D07-12-23-0084
Transportation Analysis2023-06-14 - Transportation Impact Assessment - D07-12-23-0084
Transportation Analysis2024-10-15 - Transportation Impact Assessment - D07-12-23-0084
Transportation Analysis2025-05-07 - Transportation Impact Assessment - D07-12-23-0084
Transportation Analysis2025-10-28 - Transportation Impact Assessment - D07-12-23-0084
Tree Information and Conservation2024-09-12 - Tree Conservation Plan - D07-12-23-0084
Tree Information and Conservation2024-07-12 - Landscape Plan and Tree Conservation Plan - D07-12-23-0084
Tree Information and Conservation2023-06-14 - Tree Conservation Plan - D07-12-23-0084
Tree Information and Conservation2024-10-15 - Landscape & Tree Conservation Plan - D07-12-23-0084
Tree Information and Conservation2025-05-07 - Tree Conservation Plan - D07-12-23-0084
Tree Information and Conservation2025-08-07 - Tree Conservation Plan - D07-12-23-0084
Tree Information and Conservation2025-10-28 - Tree Conservation and Landscape Plans - D07-12-23-0084
2024-07-12 - Sketch Showing Height Restrictions - D07-12-23-0084
2023-06-14 - Height Restriction Grid - D07-12-23-0084
2025-08-07 - Functional Design - D07-12-23-0084
2025-10-28 - Interim Design - D07-12-23-0084
2025-10-28 - GreenBlue-Datasheets - D07-12-23-0084
2025-10-28 - Amendment Letter - Phase Two Environmental Site Assessment - D07-12-23-0084
2026-03-09 - Phase Two Environmental Site Assessment - D07-12-23-0084