Ottawa Development Projects

780 Baseline Rd./1350 Fisher Ave.#

Last updated: 2026-01-03 · ID: D07-12-23-0076

Summary#

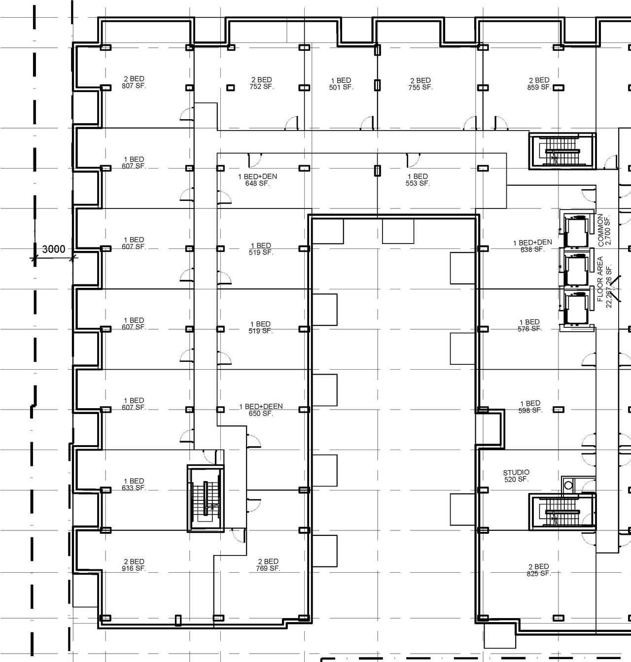
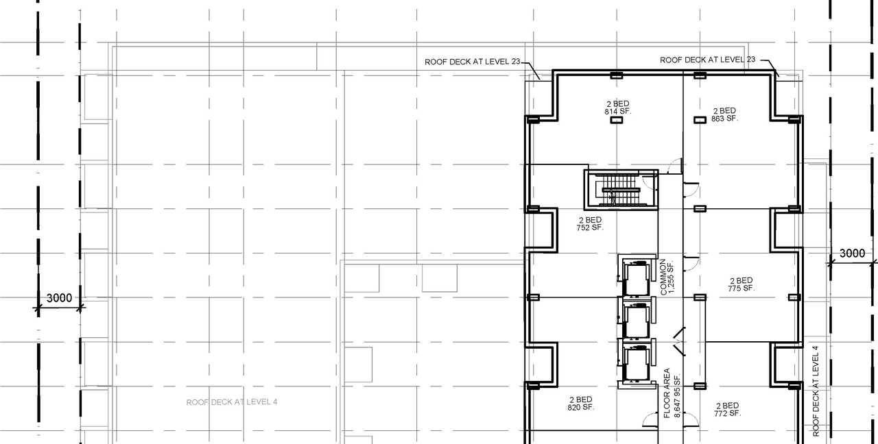
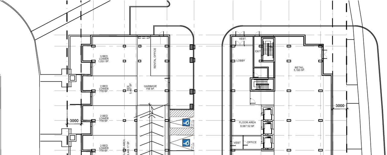
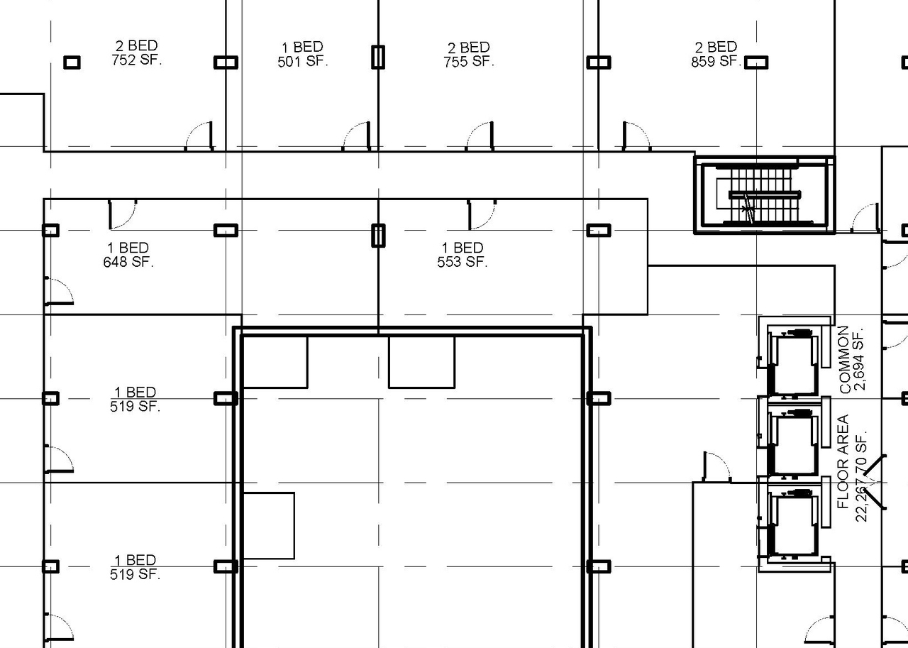
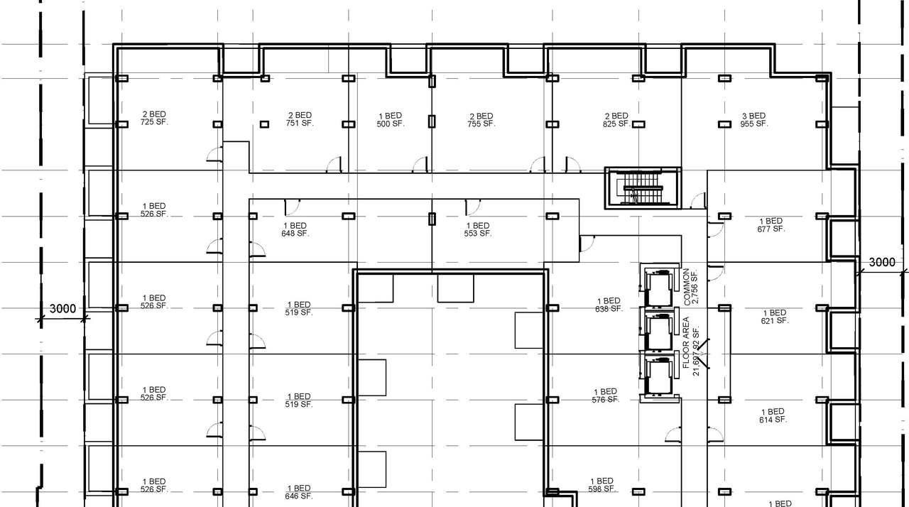
A Site Plan Control application has been received to construct a 24-storey mixed use high-rise on a four-storey podium and retain the existing commercial one-storey commercial plaza. Phase 1 will consist of Building A on the existing surface parking lot along Fisher Ave, and retention of the existing commercial mall. Building A is proposed at 24-storeys, sited along Fisher Ave, and will have 320 residential units with about 480 sq.m. of ground floor commercial space. The rear of the lot with frontage to Hilliard Ave will be 4-storeys in height with a townhouse form.

Status
Post Approval (Agreement Package Received from Owner)

Building Scale (Max.) Based on elevation drawings. Values may be approximate. See sources for exact figures.
High-rise · 24 storeys · 83.5 m Data Quality Note Height was partially estimated using visual scale. This may be approximate.

Renders#

Location#

Select a marker to view the address.

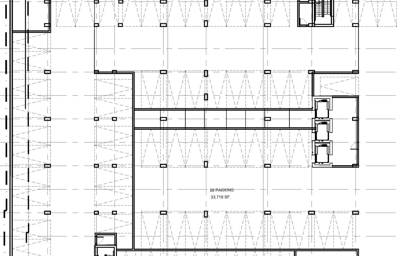
Site Plans, Elevations and Floor Plans#

Additional Information#

Date Initiated2023-06-12
WardWard 9 - Sean Devine

Documents#

TypeDocument
Application Summary2023-07-14 - Application Summary - D07-12-23-0076
Architectural Plans2024-05-28 - Site Plan Phase 1 - D07-12-23-0076 (2)
Architectural Plans2024-05-28 - Site Plan Phase 1 - D07-12-23-0076
Architectural Plans2024-05-28 - Plan and Profile - D07-12-23-0076 (3)
Architectural Plans2024-05-28 - Plan and Profile - D07-12-23-0076 (2)
Architectural Plans2024-05-28 - Plan and Profile - D07-12-23-0076
Architectural Plans2023-10-10 - Site Plan Phase I - D07-12-23-0076
Architectural Plans2023-10-10 - Site Plan Overall - D07-12-23-0076
Architectural Plans2023-10-10 - Architectural Drawing Package - Phase 1 - D07-12-23-0076
Architectural Plans2023-10-10 - Architectural Drawing Package - Full Buildout - D07-12-23-0076
Architectural Plans2023-06-12 - Site Plan Phase 1 - D07-12-23-0076
Architectural Plans2023-06-12 - Site Plan Overall - D07-12-23-0076
Architectural Plans2025-06-30 - APPROVED Site Plan Phase 1 Enlargement - D07-12-23-0076
Architectural Plans2025-06-30 - APPROVED Site Plan Phase 1 - D07-12-23-0076
Architectural Plans2025-06-30 - APPROVED Site Plan Overall - D07-12-23-0076
Architectural Plans2025-06-30 - APPROVED Site Plan Authority Report - D07-12-23-0076
Architectural Plans2025-06-30 - APPROVED Plan and Profile C203 - D07-12-23-0076
Architectural Plans2025-06-30 - APPROVED Plan and Profile C202 - D07-12-23-0076
Architectural Plans2025-06-30 - APPROVED Plan and Profile C201 - D07-12-23-0076
Architectural Plans2025-06-30 - APPROVED Building Elevations - D07-12-23-0076
Architectural Plans2025-07-24 - APPROVED Site Plan Phase 1 Enlargement - D07-12-23-0076
Architectural Plans2025-07-24 - APPROVED Site Plan Phase 1 - D07-12-23-0076
Architectural Plans2025-07-24 - APPROVED Site Plan Overall - D07-12-23-0076
Architectural Plans2025-07-24 - APPROVED Site Plan Authority Report - D07-12-23-0076
Civil Engineering Report2024-05-18 - Civil Plan - D07-12-23-0076
Civil Engineering Report2023-10-10 - Civil Drawing Package - D07-12-23-0076
Civil Engineering Report2023-06-12 - Civil Plan - D07-12-23-0076
Design Brief2023-06-12 - Design Brief - D07-12-23-0076
Environmental2024-05-28 - Phase One Environmental Site Assessment - D07-12-23-0076
Environmental2023-10-10 - Phase 1 Environmental Site Assessment - D07-12-23-0076
Environmental2023-06-12 - Phase Two Environmental Site Assessment and Geotechnical Investigation - D07-12-23-0
Existing Conditions2024-05-28 - Existing Conditions and Removals Plan - D07-12-23-0076
Geotechnical Report2024-05-28 - Geotechncial Investigation - D07-12-23-0076
Geotechnical Report2023-10-10 - Soil Characterizaton Report - D07-12-23-0076
Geotechnical Report2023-06-12 - Geotechnical Investigation - D07-12-23-0076
Geotechnical Report2025-06-30 - APPROVED Grading Drainage and Erosion Sediment Control Plan - D07-12-23-0076
Landscape Plan2024-05-28 - Landscape Plan - D07-12-23-0076
Landscape Plan2023-06-12 - Landscape Plan - D07-12-23-0076
Noise Study2023-06-12 - Roadway Traffic Noise Assessment - D07-12-23-0076
Planning2023-10-10 - Zoning Schedule - D07-12-23-0076
Planning2023-10-10 - Planning and Urban Design Memo - D07-12-23-0076
Rendering2023-06-12 - Floor, Perspective Views, Shadow Plans - D07-12-23-0076
Site Servicing2024-05-28 - Site Servicing Plan - D07-12-23-0076
Site Servicing2024-05-28 - Servicing and Stormwater Managment Report - D07-12-23-0076
Site Servicing2023-10-10 - Servicing and Stormwater Management Report - D07-12-23-0076
Site Servicing2023-06-12 - Site Servicing Plan - D07-12-23-0076
Site Servicing2023-06-12 - Servicing and Stormwater Management Report - D07-12-23-0076
Site Servicing2024-08-27 - Servicing Report - D07-12-23-0076
Site Servicing2025-06-30 - APPROVED Site Servicing Plan - D07-12-23-0076
Surveying2023-10-10 - Plan of Survey - D07-12-23-0076
Surveying2023-06-12 - Topographic Plan - D07-12-23-0076
Transportation Analysis2024-05-28 - Transportation Impact Assessment - D07-12-23-0076
Transportation Analysis2023-10-10 - Transportation Impact Assessment - ZBLA - D07-12-23-0076
Transportation Analysis2023-10-10 - Transportation Impact Assessment - SPA - D07-12-23-0076
Transportation Analysis2023-06-12 - Transportation Impact Assessment - D07-12-23-0076
Tree Information and Conservation2023-10-10 - Tree Conservation Report and Landscape Plan - D07-12-23-0076
Tree Information and Conservation2025-06-30 - APPROVED Tree Conservation Report and Landscape Plan - D07-12-23-0076
Tree Information and Conservation2025-07-24 - APPROVED Tree Conservation Report and Landscape Plan - D07-12-23-0076
Wind Study2023-10-24 - Pedestrian Level Wind Study - D07-12-23-0076
Wind Study2023-06-12 - Pedestrian Level Wind Study - D07-12-23-0076
2024-01-17 - Potential Effects of Structural Sunlight Obstruction on AAFC Plots - D07-12-23-0076
2024-01-17 - Heritage Impact Assessment - D07-12-23-0076
2023-10-10 - Updated Heritage Impact Assessment - D07-12-23-0076
2023-10-10 - ParaTranspo Turning Movements Interim & Ultimate - D07-12-23-0076
2024-08-27 - SPC Round 3 - D07-12-23-0076
2024-08-27 - SP-2 Ph-1 - D07-12-23-0076
2024-08-27 - land scape - D07-12-23-0076
2024-08-27 - CCO-22-0952C203REV04 - D07-12-23-0076
2024-08-27 - CCO-22-0952C202REV04 - D07-12-23-0076
2024-08-27 - CCO-22-0952C201REV04 - D07-12-23-0076
2024-08-27 - CCO-22-0952C102REV04 - D07-12-23-0076
2024-08-27 - CCO-22-0952C100REV03 - D07-12-23-0076