150-170 Akerson Rd.#
Last updated: 2025-01-23 · ID: D07-12-23-0075
Summary#
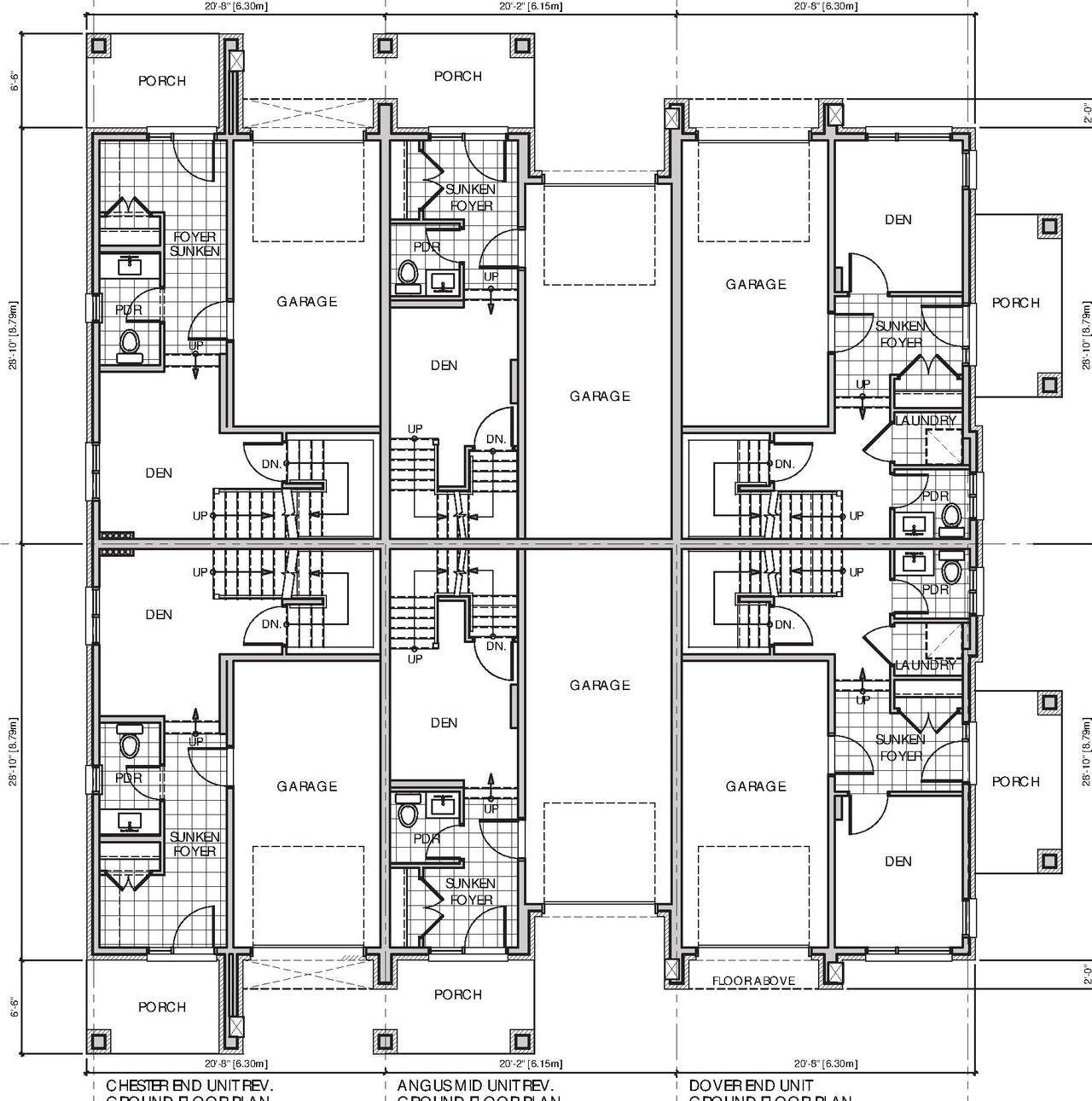
A Site Plan Control application to construct 48 back-to-back 3 storey townhouse units. The development will be accessed by private roads and each unit is to have its own garage.
Status
File Pending (Application File Pending)
Building Scale (Max.)
Based on elevation drawings. Values may be approximate. See sources for exact figures.
Low-rise · 2 storeys
· 5.2 m
Data Quality Note
Height was partially estimated using visual scale. This may be approximate.
Renders#
Location#
Select a marker to view the address.
Site Plans, Elevations and Floor Plans#
Additional Information#
| Date Initiated | 2023-06-08 |
| Ward | Ward 23 - Allan Hubley |
| All Addresses | 150 Akerson Rd. 170 Akerson Rd. |
Documents#
Related Projects#
| Project | Last Updated | Date Initiated |
|---|---|---|
80-151 Cope Dr.150-170 Akerson Rd.
D02-02-22-0080 | 2024-10-08 | 2022-08-15 |







