40 Frank Nighbor#
Last updated: 2025-11-26 · ID: D07-12-23-0061
Summary#
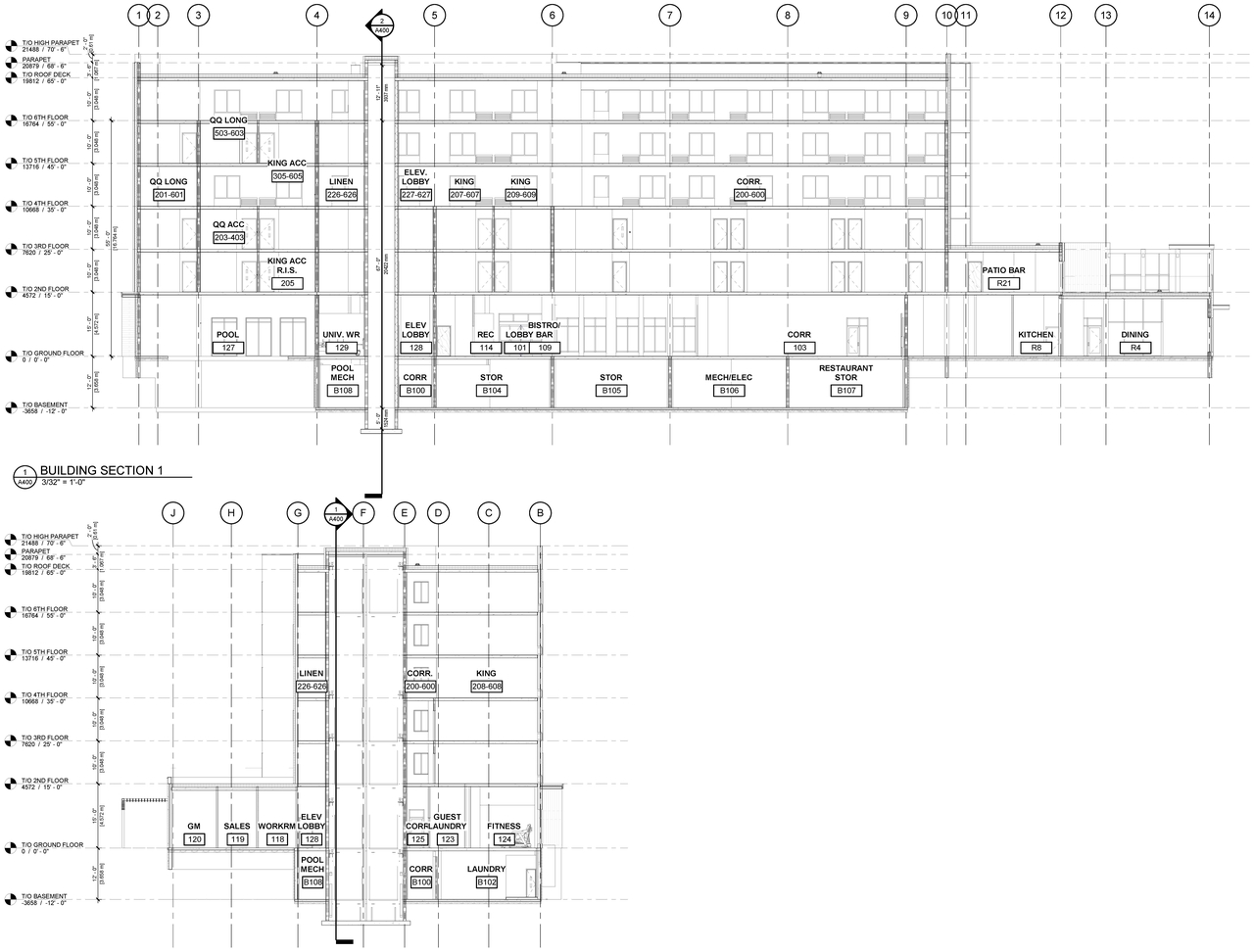
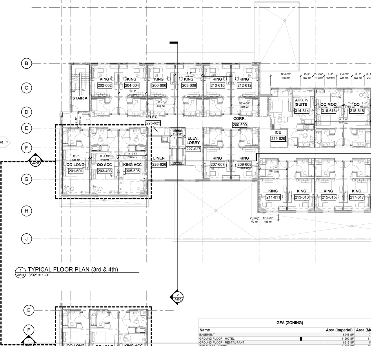
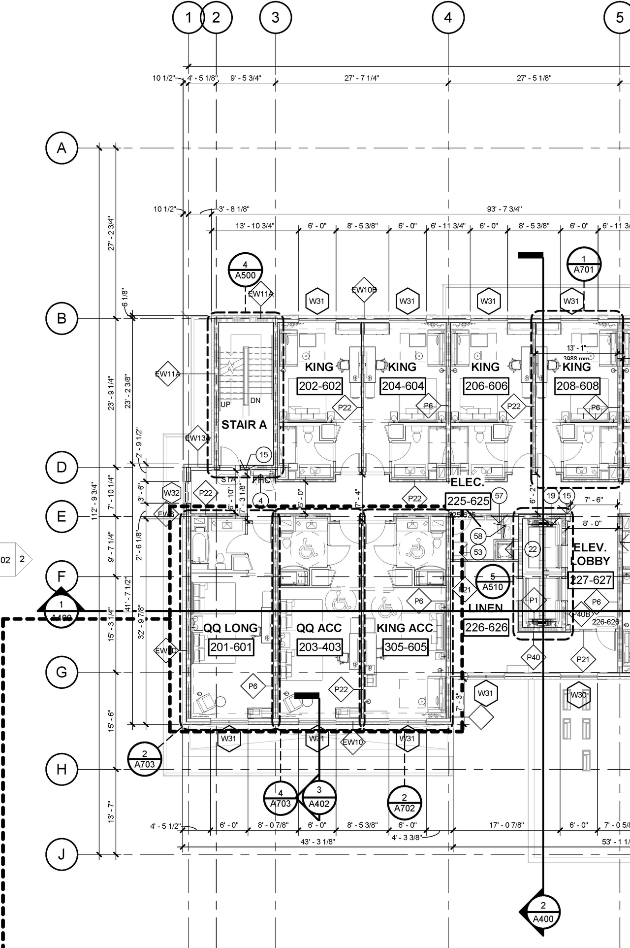
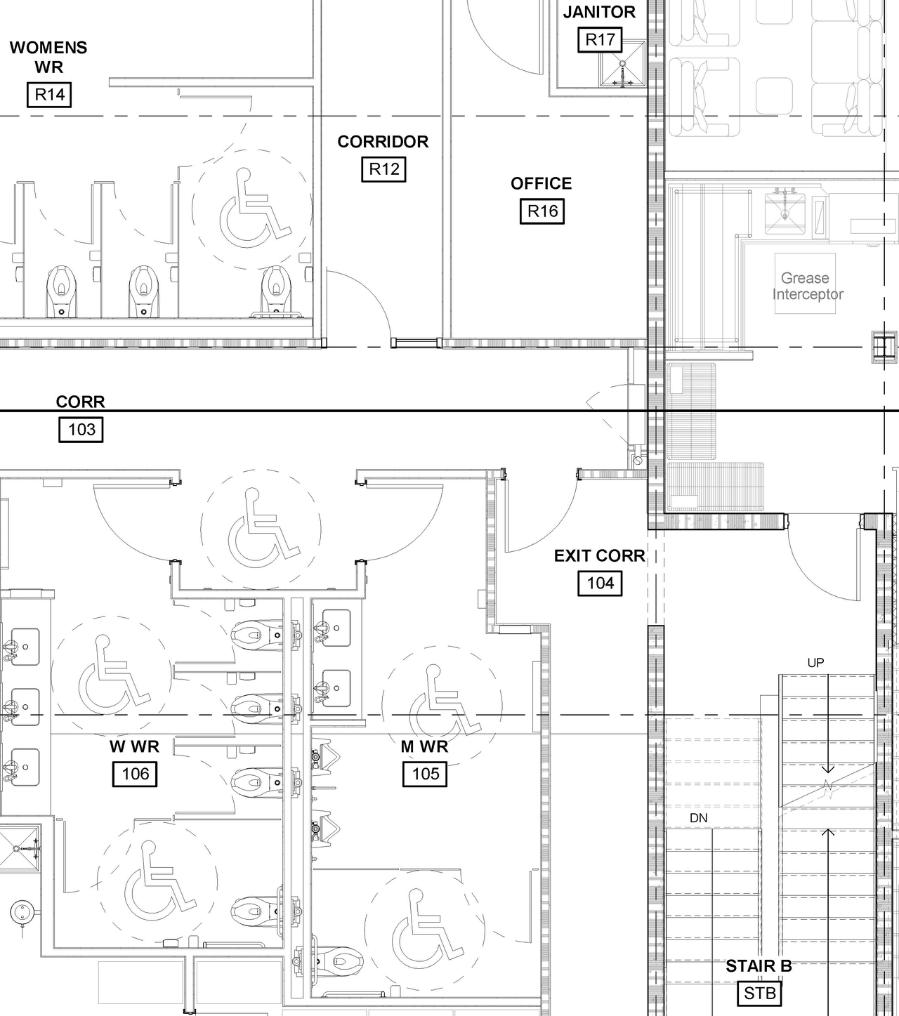
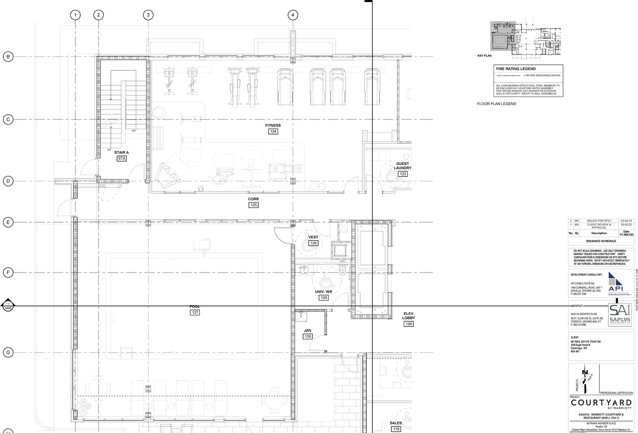
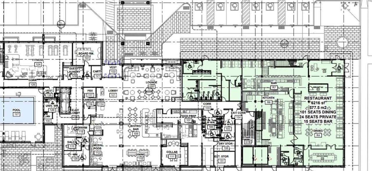
A Site Plan Control application to construct a hotel and restaurant six (6) storeys in height, with one hundred fifteen (115) guest suites, one hundred sixty (160) parking spaces, and a total GFA of 8,036 square metres.
Status
Post Approval (Receipt of Agreement from Owner Pending)
Building Scale (Max.)
Based on elevation drawings. Values may be approximate. See sources for exact figures.
Mid-rise · 6 storeys
· 21.49 m
Renders#
Site Plans, Elevations and Floor Plans#
Additional Information#
| Date Initiated | 2023-05-16 |
| Ward | Ward 23 - Allan Hubley |
















