224 Preston St.#
Last updated: 2026-03-06 · ID: D07-12-23-0060
Summary#
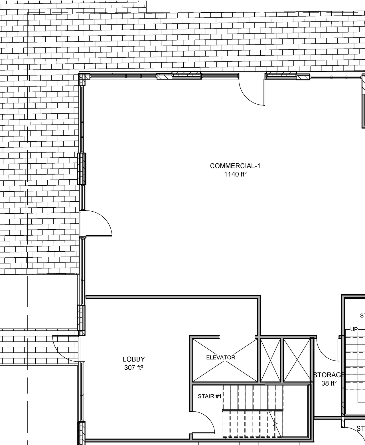
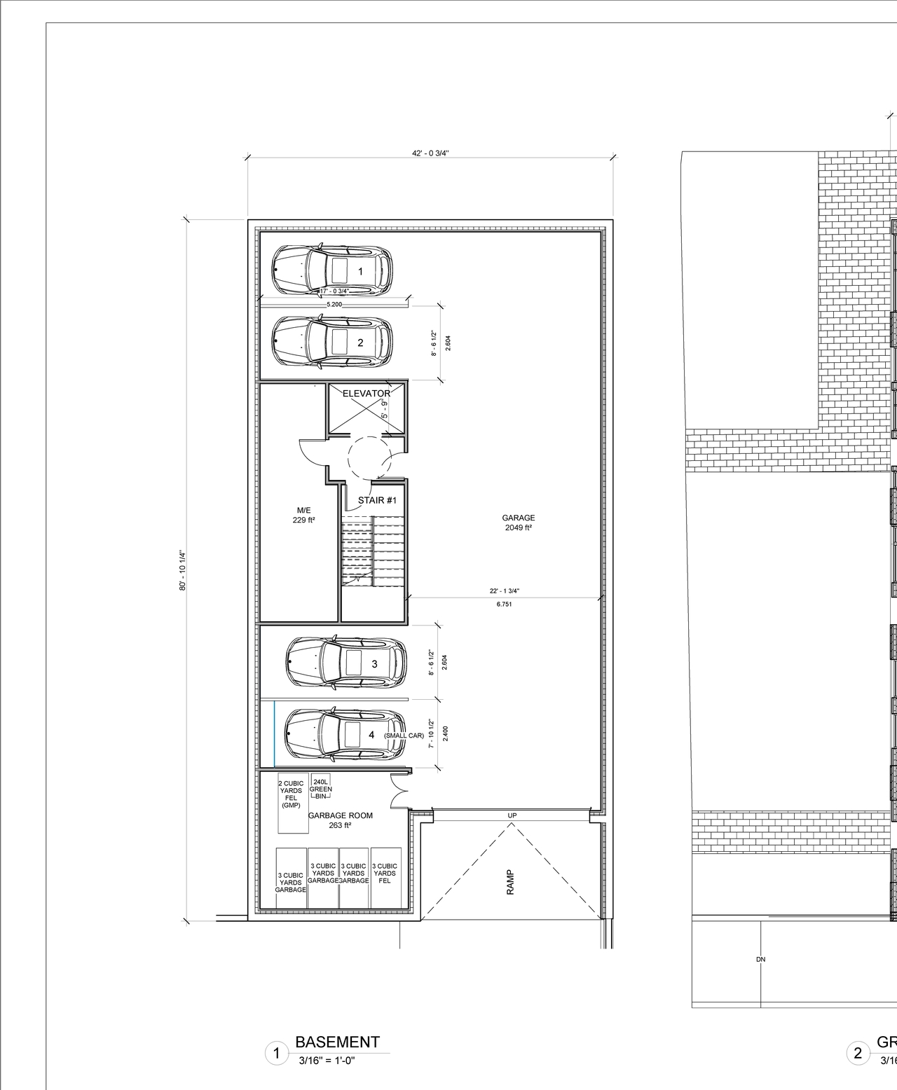
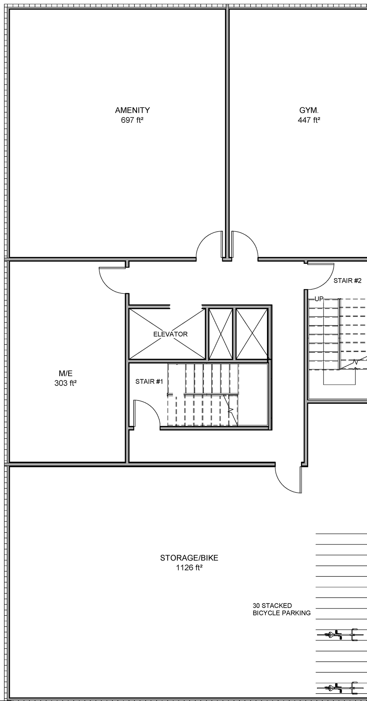
Construction of a 6 storey mid-srise,mixed-use building with 2 commercial units on the ground floor and a total of 28 residential units; 19 bachelor units and 9 one-bedroom units. A total of 149 square metres of amenity space is provided via private balconies, communal terraces and outdoor patio space.
Status
Post Approval (Receipt of Agreement from Owner Pending)
Building Scale (Max.)
Based on elevation drawings. Values may be approximate. See sources for exact figures.
Mid-rise · 6 storeys
· 19.8 m
Data Quality Note
Height was partially estimated using visual scale. This may be approximate.
Renders#
Location#
Select a marker to view the address.
Project Updates#
Status Updated
- Status: Post Approval (Receipt of Agreement from Owner Pending)
Added 1 image and 11 documents
- Status: Inactive (Notice of Decision Sent)
- 2024-08-16 - Approved TCR & Landscape Plan - D07-12-23-0060
- 2024-08-16 - Approved Storm Watershed Plan - D07-12-23-0060
- 2024-08-16 - Approved Site Servicing Plan - D07-12-23-0060
- 2024-08-16 - Approved Site Plan & Ex Floor Plans - D07-12-23-0060
- 2024-08-16 - Approved Roof Drainage Plan - D07-12-23-0060
- 2024-08-16 - Approved Grading Plan - D07-12-23-0060
- 2024-08-16 - Approved Existing Conditions and Removals Plan - D07-12-23-0060
- 2024-08-16 - Approved Erosion and Sediment Control Plan - D07-12-23-0060
- 2024-08-16 - Approved Elevations - D07-12-23-0060
- 2024-07-23 - Shadow Study - D07-12-23-0060
- 2024-08-16 - Signed Delegated Authority Report - D07-12-23-0060
Status Updated
- Status: Inactive (Application Approved)
Status Updated
- Status: Active (Draft Report Sent for Response)
Status Updated
- Status: Active (Application Reactivated)
Status Updated
- Status: Active (Approval Package Accepted)
Added description, height, 4 images and 3 documents
- Status: Active (Additional Submission Circulation Period Completed)
- Construction of a 6 storey mid-srise,mixed-use building with 2 commercial units on the ground floor and a total of 28 residential units; 19…
- Height: 19.8 m
- Storeys: 6 storeys
- 1 render
- 1 site plan
- 2023-05-17 - floor plans - D07-12-23-0060
- 2024-02-26 - Basement & Ground Floor Plan - D07-12-23-0060
- 2024-07-23 - 3D Massing View - D07-12-23-0060
Site Plans, Elevations and Floor Plans#
Additional Information#
| Date Initiated | 2023-05-16 |
| Ward | Ward 14 - Ariel Troster |
Documents#
Related Projects#
| Project | Last Updated | Date Initiated |
|---|---|---|
224 Preston St.
D02-02-23-0040 | 2024-06-20 | 2023-05-16 |





