575 Dealership Dr.#
Last updated: 2024-10-24 · ID: D07-12-23-0054
Summary#
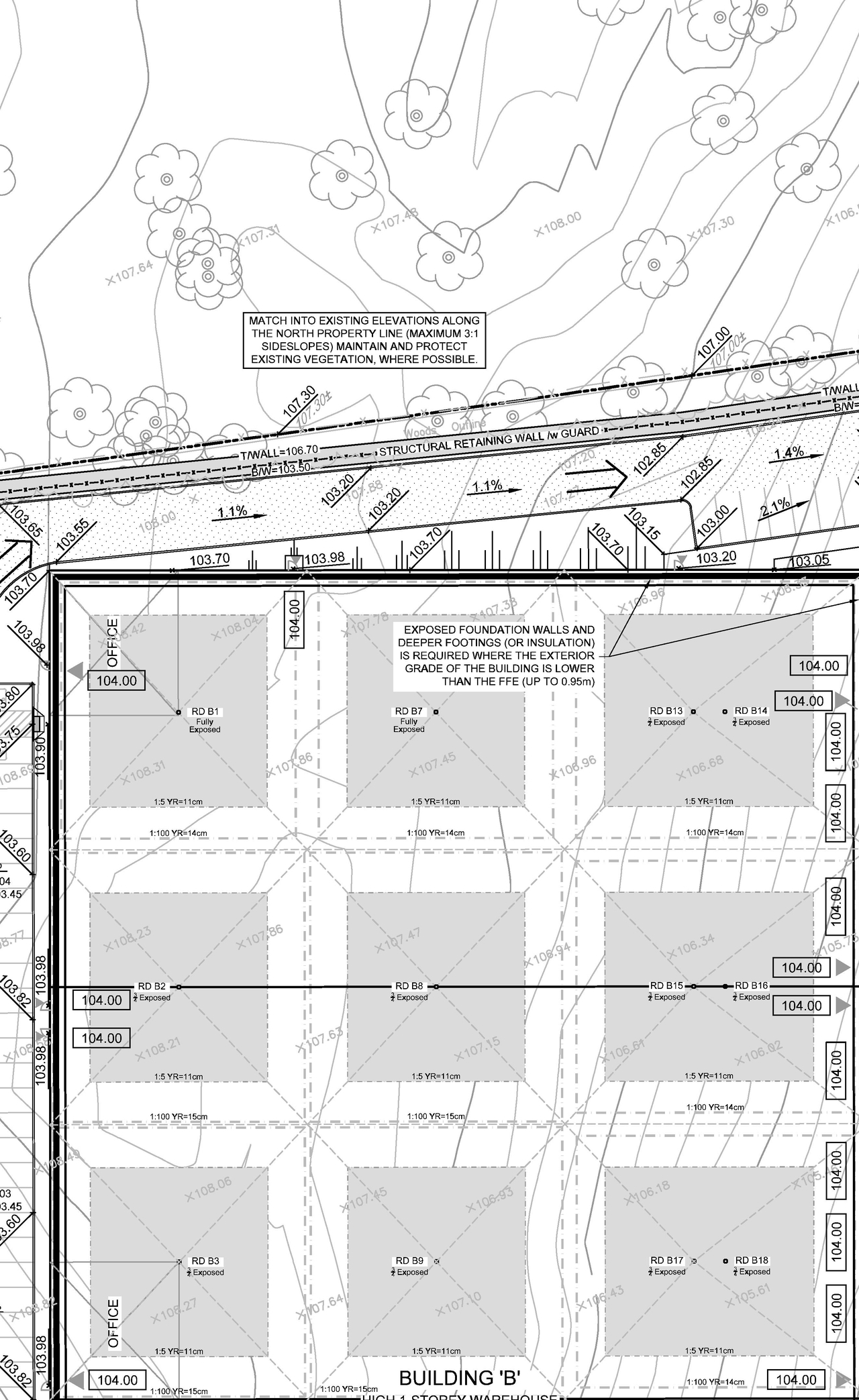
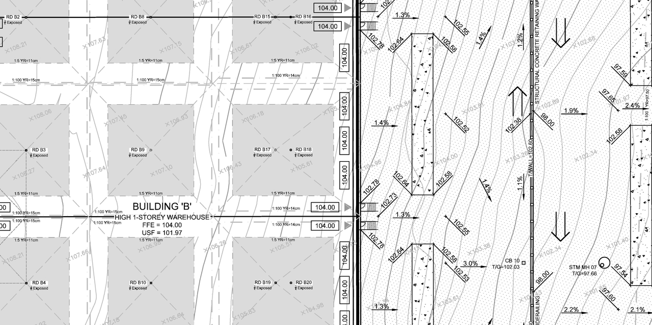
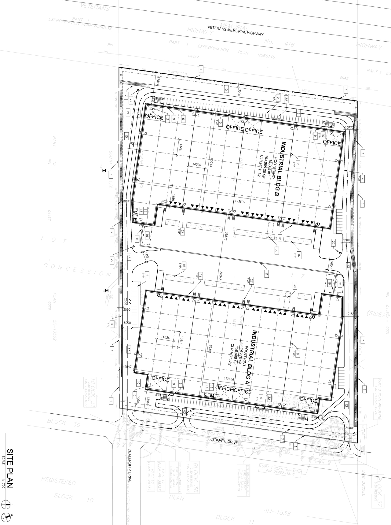
Two new industrial use buildings of approximately 14,776 sq.m and 15,205sq respectively. Each will be divided into four individual units. Units are intended to be leased and the site is not proposed to be subdivided
Status
Active (Application Reactivated)
Building Scale (Max.)
Based on elevation drawings. Values may be approximate. See sources for exact figures.
Low-rise · 1 storey
· 11.43 m
Renders#
Location#
Select a marker to view the address.
Site Plans, Elevations and Floor Plans#
Additional Information#
| Date Initiated | 2023-05-08 |
| Ward | Ward 3 - David Hill |
Documents#
Related Projects#
| Project | Last Updated | Date Initiated |
|---|---|---|
575 Dealership Dr.
D02-02-23-0019 | 2024-01-03 | 2023-03-13 |







