1485 Upper Canada St.#
Last updated: 2025-09-16 · ID: D07-12-23-0051
Summary#
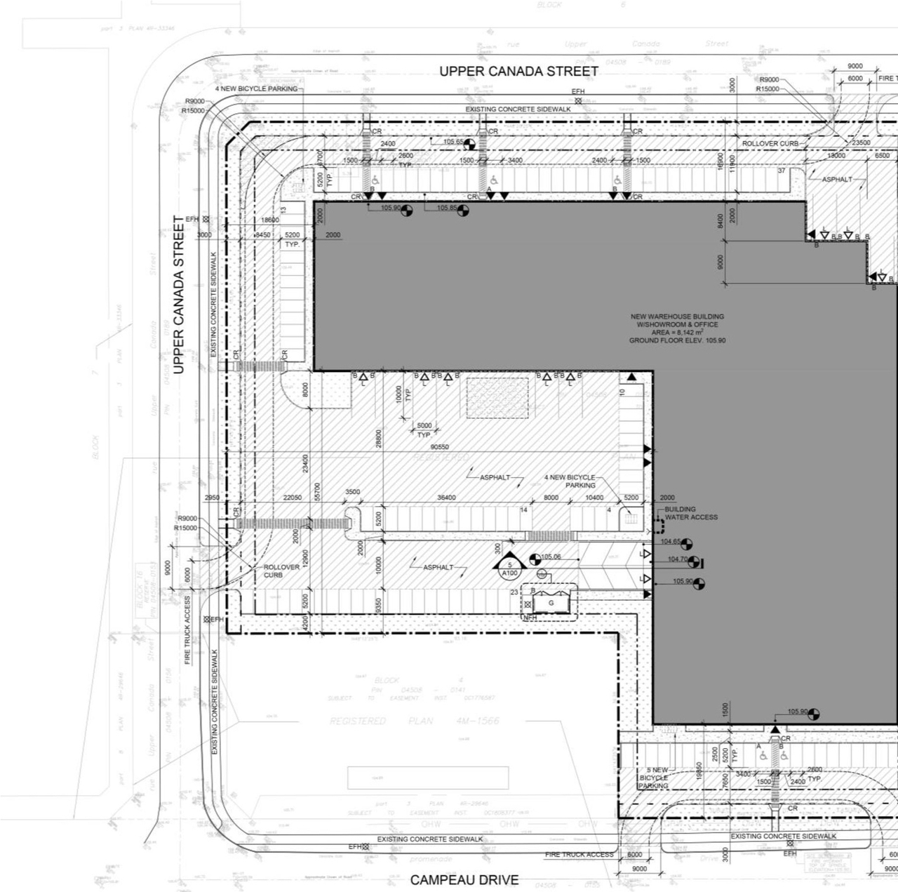
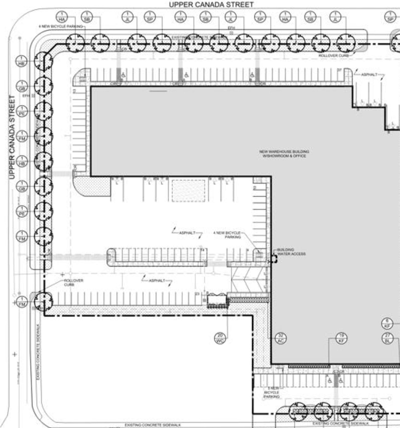
A Site Plan Control application to construct a single storey multi-tenant warehouse building with a gross floor area of 8,142 square metres and 116 associated parking spaces.
Status
Post Approval (Receipt of Agreement from Owner Pending)
Building Scale (Max.)
Based on elevation drawings. Values may be approximate. See sources for exact figures.
Low-rise · 2 storeys
· 8.4 m
Renders#
Location#
Select a marker to view the address.
Site Plans, Elevations and Floor Plans#
Additional Information#
| Date Initiated | 2023-05-02 |
| Ward | Ward 4 - Cathy Curry |










