Ottawa Development Projects

1184-1196 Cummings Ave.#

Last updated: 2025-05-01 · ID: D07-12-23-0044

Summary#

The City of Ottawa has received Zoning By-law Amendment and Site Plan Control applications to permit a six-storey apartment building consisting of 188 dwelling units, 184 bicycle parking spaces and 56 vehicle parking spaces.

Status
Inactive (Agreement Registered - Securities Held)

Building Scale (Max.) Based on elevation drawings. Values may be approximate. See sources for exact figures.
Mid-rise · 6 storeys · 22.8 m

Renders#

Location#

Select a marker to view the address.

Site Plans, Elevations and Floor Plans#

  • Image from page 19 of the file '2023-05-01 - Design Brief - D07-12-23-0044'
  • Image from page 18 of the file '2023-05-01 - Design Brief - D07-12-23-0044'
  • Image from page 4 of the file '2023-05-01 - Design Brief - D07-12-23-0044'
  • Image from page 9 of the file '2023-05-01 - Design Brief - D07-12-23-0044'
  • Construction site plan for project from page 25 of the file '2023-05-01 - Design Brief - D07-12-23-0044'
  • Construction site plan for project from page 10 of the file '2023-05-01 - Design Brief - D07-12-23-0044'
  • Construction site plan for project from page 12 of the file '2023-05-01 - Design Brief - D07-12-23-0044'
  • Construction site plan for project from page 26 of the file '2023-05-01 - Design Brief - D07-12-23-0044'
  • Construction site plan for project from page 23 of the file '2023-05-01 - Design Brief - D07-12-23-0044'
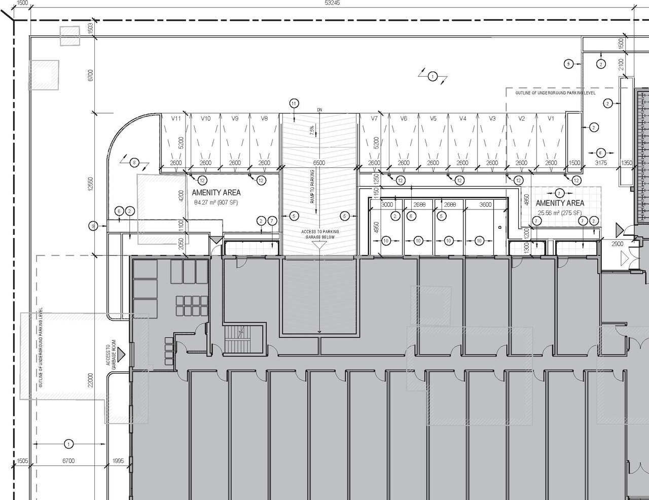
  • Construction site plan for project from page 3 of the file '2023-05-01 - FLOOR PLANS - D07-12-23-0044'
  • Construction site plan for project from page 27 of the file '2023-05-01 - Design Brief - D07-12-23-0044'
  • Construction site plan for project from page 28 of the file '2023-05-01 - Design Brief - D07-12-23-0044'
  • Construction site plan for project from page 27 of the file '2023-05-01 - Design Brief - D07-12-23-0044'
  • Construction site plan for project from page 2 of the file '2023-05-01 - FLOOR PLANS - D07-12-23-0044'
  • Construction site plan for project from page 26 of the file '2023-05-01 - Design Brief - D07-12-23-0044'
  • Construction site plan for project from page 27 of the file '2023-05-01 - Design Brief - D07-12-23-0044'
  • Construction site plan for project from page 25 of the file '2023-05-01 - Design Brief - D07-12-23-0044'
  • Construction site plan for project from page 27 of the file '2023-05-01 - Design Brief - D07-12-23-0044'
  • Construction site plan for project from page 26 of the file '2023-05-01 - Design Brief - D07-12-23-0044'
  • Construction site plan for project from page 27 of the file '2023-05-01 - Design Brief - D07-12-23-0044'
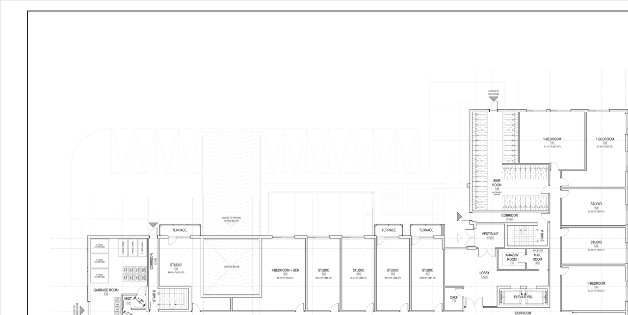
  • Floor plan for project from page 7 of the file '2023-05-01 - FLOOR PLANS - D07-12-23-0044'
  • Floor plan for project from page 14 of the file '2023-05-01 - Design Brief - D07-12-23-0044'
  • Floor plan for project from page 1 of the file '2023-05-01 - FLOOR PLANS - D07-12-23-0044'
  • Floor plan for project from page 15 of the file '2023-05-01 - Design Brief - D07-12-23-0044'
  • Image from page 19 of the file '2023-05-01 - Design Brief - D07-12-23-0044'
  • Image from page 18 of the file '2023-05-01 - Design Brief - D07-12-23-0044'
  • Image from page 4 of the file '2023-05-01 - Design Brief - D07-12-23-0044'
  • Image from page 9 of the file '2023-05-01 - Design Brief - D07-12-23-0044'
  • Construction site plan for project from page 25 of the file '2023-05-01 - Design Brief - D07-12-23-0044'
  • Construction site plan for project from page 10 of the file '2023-05-01 - Design Brief - D07-12-23-0044'
  • Construction site plan for project from page 12 of the file '2023-05-01 - Design Brief - D07-12-23-0044'
  • Construction site plan for project from page 26 of the file '2023-05-01 - Design Brief - D07-12-23-0044'
  • Construction site plan for project from page 23 of the file '2023-05-01 - Design Brief - D07-12-23-0044'
  • Construction site plan for project from page 3 of the file '2023-05-01 - FLOOR PLANS - D07-12-23-0044'
  • Construction site plan for project from page 27 of the file '2023-05-01 - Design Brief - D07-12-23-0044'
  • Construction site plan for project from page 28 of the file '2023-05-01 - Design Brief - D07-12-23-0044'
  • Construction site plan for project from page 27 of the file '2023-05-01 - Design Brief - D07-12-23-0044'
  • Construction site plan for project from page 2 of the file '2023-05-01 - FLOOR PLANS - D07-12-23-0044'
  • Construction site plan for project from page 26 of the file '2023-05-01 - Design Brief - D07-12-23-0044'
  • Construction site plan for project from page 27 of the file '2023-05-01 - Design Brief - D07-12-23-0044'
  • Construction site plan for project from page 25 of the file '2023-05-01 - Design Brief - D07-12-23-0044'
  • Construction site plan for project from page 27 of the file '2023-05-01 - Design Brief - D07-12-23-0044'
  • Construction site plan for project from page 26 of the file '2023-05-01 - Design Brief - D07-12-23-0044'
  • Construction site plan for project from page 27 of the file '2023-05-01 - Design Brief - D07-12-23-0044'
  • Floor plan for project from page 7 of the file '2023-05-01 - FLOOR PLANS - D07-12-23-0044'
  • Floor plan for project from page 14 of the file '2023-05-01 - Design Brief - D07-12-23-0044'
  • Floor plan for project from page 1 of the file '2023-05-01 - FLOOR PLANS - D07-12-23-0044'
  • Floor plan for project from page 15 of the file '2023-05-01 - Design Brief - D07-12-23-0044'

Additional Information#

Date Initiated2023-04-18
WardWard 11 - Tim Tierney
All Addresses1184 Cummings Ave.
1188 Cummings Ave.
1196 Cummings Ave.

Documents#

TypeDocument
Application Summary2023-05-17 - Application Summary - D07-12-23-0044
Architectural Plans2024-04-10 - South and East Elevations - D07-12-23-0044
Architectural Plans2024-04-10 - Site Plan - D07-12-23-0044
Architectural Plans2024-04-10 - Sanitary Drainage Plan -D07-12-23-0044
Architectural Plans2024-04-10 - Roof Plan - D07-12-23-0044
Architectural Plans2024-04-10 - Plan North and West Elevations - D07-12-23-0044
Architectural Plans2024-04-10 - Architecture Plans - D07-12-23-0044
Architectural Plans2024-03-11 - Site Grading Plan - D07-12-23-0044
Architectural Plans2024-03-11 - Sanitary Drainage Plan - D07-12-23-0044
Architectural Plans2024-03-11 - Architecture Plans - D07-12-23-0044
Architectural Plans2024-01-17 - Sanitary Drainage Plan - D07-12-23-0044
Architectural Plans2024-01-17 - Architecture Plans - D07-12-23-0044
Architectural Plans2023-09-20 - Memo - Grading and Site Servicing Plan Review - D07-12-23-0044
Architectural Plans2023-09-20 - Architecture drawings - D07-12-23-0044
Architectural Plans2023-05-01 - Site Serviing Plan - D07-12-23-0044
Architectural Plans2023-05-01 - SITE PLAN - D07-12-23-0044
Architectural Plans2023-05-01 - Site Grading Plan - D02-02-23-0031
Architectural Plans2023-05-01 - Sanitary Drainage Plan - D07-12-23-0044
Architectural Plans2023-05-01 - Plan 4R-26865 - D07-12-23-0044
Architectural Plans2023-05-01 - ELEVATIONS - D07-12-23-0044
Design Brief2023-05-01 - Design Brief - D07-12-23-0044
Environmental2023-05-01 - Phase I Environmental Site Assessment - D07-12-23-0044
Erosion And Sediment Control Plan2024-04-10 - Erosion Control Plan - D07-12-23-0044
Erosion And Sediment Control Plan2024-03-11 - Erosion Control - D07-12-23-0044
Erosion And Sediment Control Plan2024-01-17 - Erosion Control Plan - D07-12-23-0044
Erosion And Sediment Control Plan2023-05-01 - Erosion Control Plan - D07-12-23-0044
Existing Conditions2024-04-10 - Existing Storm Drainage Plan - D07-12-23-0044
Existing Conditions2024-04-10 - Existing Conditions and Removals - D07-12-23-0044
Existing Conditions2024-03-11 - Existing Storm Drainage Plan - D07-12-23-0044
Existing Conditions2024-03-11 - Existing Conditions & Removals - D07-12-23-0044
Existing Conditions2024-01-17 - Existing Storm Drainage Plan - D07-12-23-0044
Existing Conditions2024-01-17 - Existing Conditions and Removals Plan - D07-12-23-0044
Existing Conditions2023-09-20 - Existing Conditions and Removals Plan - D07-12-23-0044
Existing Conditions2023-05-01 - EXISTING CONDITIONS AND REMOVALS PLAN - D07-12-23-0044
Floor Plan2023-05-01 - FLOOR PLANS - D07-12-23-0044
Geotechnical Report2024-04-10 - Grading Plan - D07-12-23-0044
Geotechnical Report2024-01-17 - Grading Plan - D07-12-23-0044
Geotechnical Report2023-05-01 - Geotechnical Investigation - D07-12-23-0044
Landscape Plan2024-03-11 - Landscape Plans - D07-12-23-0044
Landscape Plan2024-01-17 - Landscape Plan -D07-12-23-0044
Landscape Plan2023-09-20 - Landscape Plan - D07-12-23-0044
Noise Study2023-05-01 - Roadway Traffic Noise Assessment - D07-12-23-0044
Notification2024-05-30 - Commence Work Notification - D07-12-23-0044
Site Servicing2024-04-10 - Site Servicing Plan - D07-12-23-0044
Site Servicing2024-04-10 - Servicing and Stormwater Managment Report - D07-12-23-0044
Site Servicing2024-03-11 - Site Servicing Plan - D07-12-23-0044
Site Servicing2024-03-11 - Servicing & Stormwater Management Report - D07-12-23-0044
Site Servicing2024-01-17 - Site Servicing Plan - D07-12-23-0044
Site Servicing2024-01-17 - Servicing and Stormwater Management Report - D07-12-23-0044
Site Servicing2023-09-20 - Servicing and Stormwater Management Report - D07-12-23-0044
Site Servicing2023-05-01 - Servicing & Stormwater Managment Report - D07-12-23-0044
Stormwater Management2024-04-10 - Storm Drainage Plan - D07-12-23-0044
Stormwater Management2024-03-11 - Storm Drainage Plan - D07-12-23-0044
Stormwater Management2024-01-17 - Storm Drainage Plan - D07-12-23-0044
Stormwater Management2023-05-01 - Storm Drainage Plan - D07-12-23-0044
Surveying2023-09-20 - Survey Plan - D07-12-23-0044
Transportation Analysis2023-09-20 - Transportation Impact Assessment - D07-12-23-0044
Transportation Analysis2023-05-01 - Transportation Impact Assessment - D07-12-23-0044
Tree Information and Conservation2024-04-10 - Tree Conservation Report - D07-12-23-0044