Ottawa Development Projects

266 Park Rd.#

Last updated: 2025-07-09 · ID: D07-12-23-0038

Summary#

The City of Ottawa has received a Zoning By-law Amendment and Site Plan Control application to permit the construction of a low-rise apartment building consisting of 18 dwelling units. No vehicle parking is proposed; however, 10 bicycle parking spaces will be provided in a dedicated parking room at grade.

Status
Post Approval (Receipt of Agreement from Owner Pending)

Building Scale (Max.) Based on elevation drawings. Values may be approximate. See sources for exact figures.
Low-rise · 3 storeys · 10.9 m

Renders#

Location#

Select a marker to view the address.

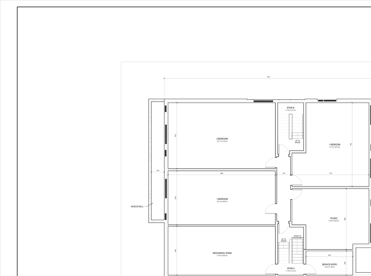
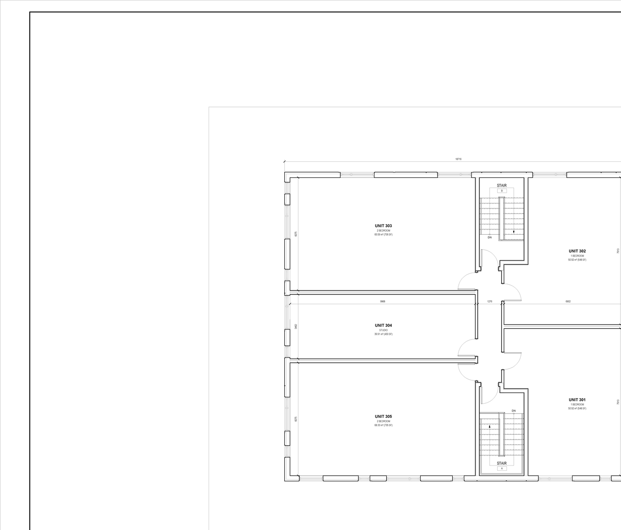
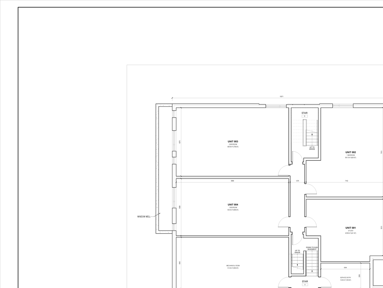
Site Plans, Elevations and Floor Plans#

Additional Information#

Date Initiated2023-03-31
WardWard 12 - Stéphanie Plante

Documents#

TypeDocument
Application Summary2023-04-27 - Application Summary - D07-12-23-0038
Architectural Plans2024-07-29 - Site Plan - D07-12-23-0038
Architectural Plans2024-07-29 - Elevations - D07-12-23-0038
Architectural Plans2024-07-26 - Site Plan - D07-12-23-0038
Architectural Plans2023-04-03 - Site Plan - D07-12-23-0038
Architectural Plans2023-04-03 - Pre & Post Development Plan - D07-12-23-0038
Architectural Plans2023-04-03 - Elevations - D07-12-23-0038
Architectural Plans2024-09-06 - Site Plan - D07-12-23-0038
Architectural Plans2024-09-06 - Park Elevations - D07-12-23-0038
Architectural Plans2024-10-22 - Site Plan - D07-12-23-0038
Architectural Plans2024-10-22 - Pre & Post Development Drainage Plans - D07-12-23-0038
Architectural Plans2024-10-31 - Site Plan - D07-12-23-0038
Architectural Plans2024-11-22 - Approved Site Plan - D07-12-23-0038
Architectural Plans2024-11-22 - Approved Pre & Post Development Drainage Plans - D07-12-23-0038
Architectural Plans2024-11-22 - Approved Elevations - D07-12-23-0038
Drainage Plan2024-07-26 - Drainage Plan - D07-12-23-0038
Environmental2024-07-26 - Environmental Noise Control Study - D07-12-23-0038
Environmental2023-07-17 - Phase 1 Environmental Site Assessment - D07-12-23-0038
Environmental2023-04-03 - Environmental Noise Control Study - D07-12-23-0038
Environmental2024-11-22 - Phase II ESA - D07-12-23-0038
Environmental2024-11-22 - Phase I ESA - D07-12-23-0038
Erosion And Sediment Control Plan2024-07-26 - Erosion & Sediment Control Plan - D07-12-23-0038
Erosion And Sediment Control Plan2023-04-03 - Erosion & Sediment Control Plan - D07-12-23-0038
Erosion And Sediment Control Plan2024-10-22 - Erosion and Sediment Control Plan - D07-12-23-0038
Erosion And Sediment Control Plan2024-11-22 - Approved Erosion and Sediment Control Plan - D07-12-23-0038
Floor Plan2024-07-29 - Floor Plans - D07-12-23-0038
Floor Plan2023-04-03 - Floor Plans - D07-12-23-0038
Floor Plan2024-09-06 - Floor Plans - D07-12-23-0038
Geotechnical Report2024-07-26 - Grading Plan - D07-12-23-0038
Geotechnical Report2023-04-03 - Grading Plan & Details - D07-12-23-0038
Geotechnical Report2023-04-03 - Geotechnical Investigation - D07-12-23-0038
Geotechnical Report2024-10-22 - Grading Plan & Details - D07-12-23-0038
Geotechnical Report2024-11-22 - Soil & Groundwater Quality Memo - D07-12-23-0038
Geotechnical Report2024-11-22 - Geotechnical Investigation - D07-12-23-0038
Geotechnical Report2024-11-22 - Approved Grading Plan & Details - D07-12-23-0038
Landscape Plan2024-07-26 - Landscape Plan - D07-12-23-0038
Landscape Plan2023-04-03 - Landscape Plan - D07-12-23-0038
Landscape Plan2024-10-01 - Landscape Plans - D07-12-23-0038
Landscape Plan2024-10-22 - Landscape Plan & Details - D07-12-23-0038
Landscape Plan2024-11-22 - Approved Landscape Plan & Details - D07-12-23-0038
Planning2023-04-03 - Planning Rationale - D07-12-23-0038
Rendering2023-04-03 - Renderings - D07-12-23-0038
Site Servicing2024-07-26 - Site Servicing Plan - D07-12-23-0038
Site Servicing2023-04-03 - Site Servicing Plan - D07-12-23-0038
Site Servicing2023-04-03 - SITE SERVICING & STORMWATER MANAGEMENT REPORT - D07-12-23-0038
Site Servicing2024-10-22 - Site Servicing Plan - D07-12-23-0038
Site Servicing2024-11-22 - Approved Site Servicing Plan - D07-12-23-0038
Stormwater Management2024-09-06 - SWM Report - D07-12-23-0038
Surveying2023-04-03 - topographical survey - D07-12-23-0038
Tree Information and Conservation2024-07-26 - Tree Conservation Report V2 - D07-12-23-0038
Tree Information and Conservation2023-04-03 - Tree Conservation Report - D07-12-23-0038
2024-07-26 - Notes, Schedules & Details - D07-12-23-0038
2023-04-03 - Record of Site Condition Request Letter - D07-12-23-0038
2023-04-03 - Notes Schedules & Details - D07-12-23-0038
2024-09-06 - SPC Park Street - D07-12-23-0038
2024-10-31 - SPC Park Street - D07-12-23-0038
2024-11-22 - Signed Delegated Authority Report - D07-12-23-0038
2024-11-22 - Approved Notes, Schedules & Details - D07-12-23-0038