Ottawa Development Projects

370 Cambridge St.#

Last updated: 2025-02-02 · ID: D07-12-23-0036

Summary#

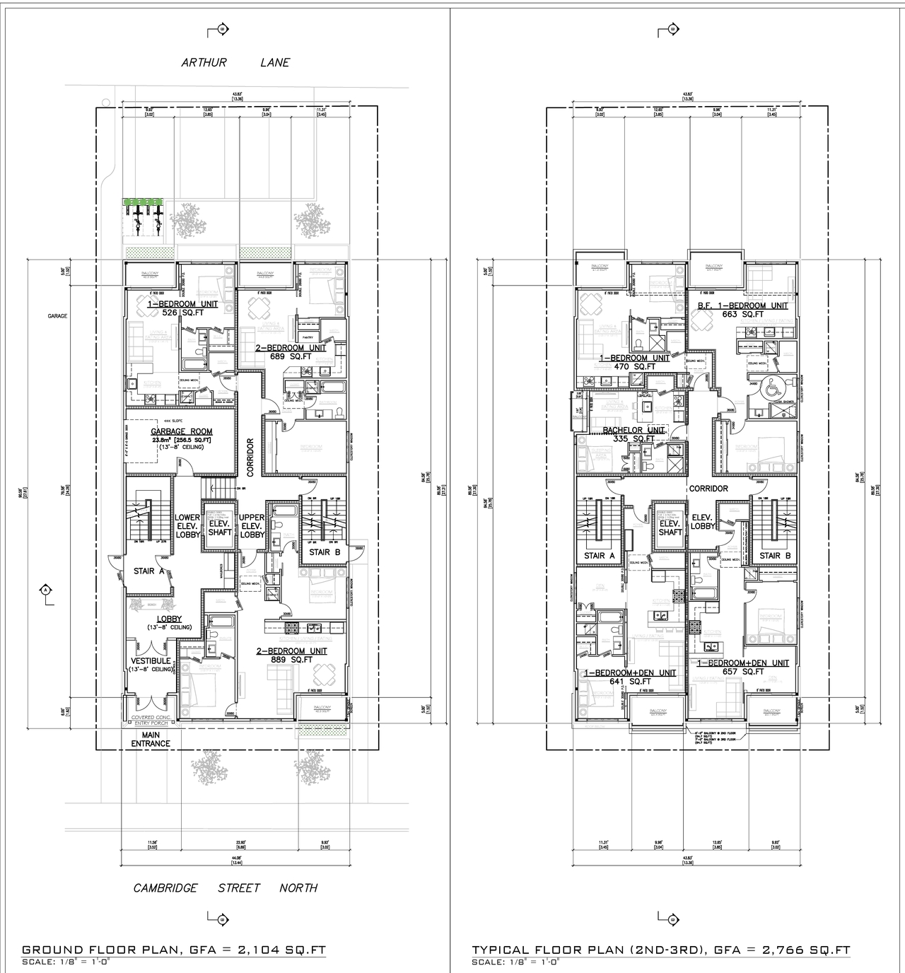
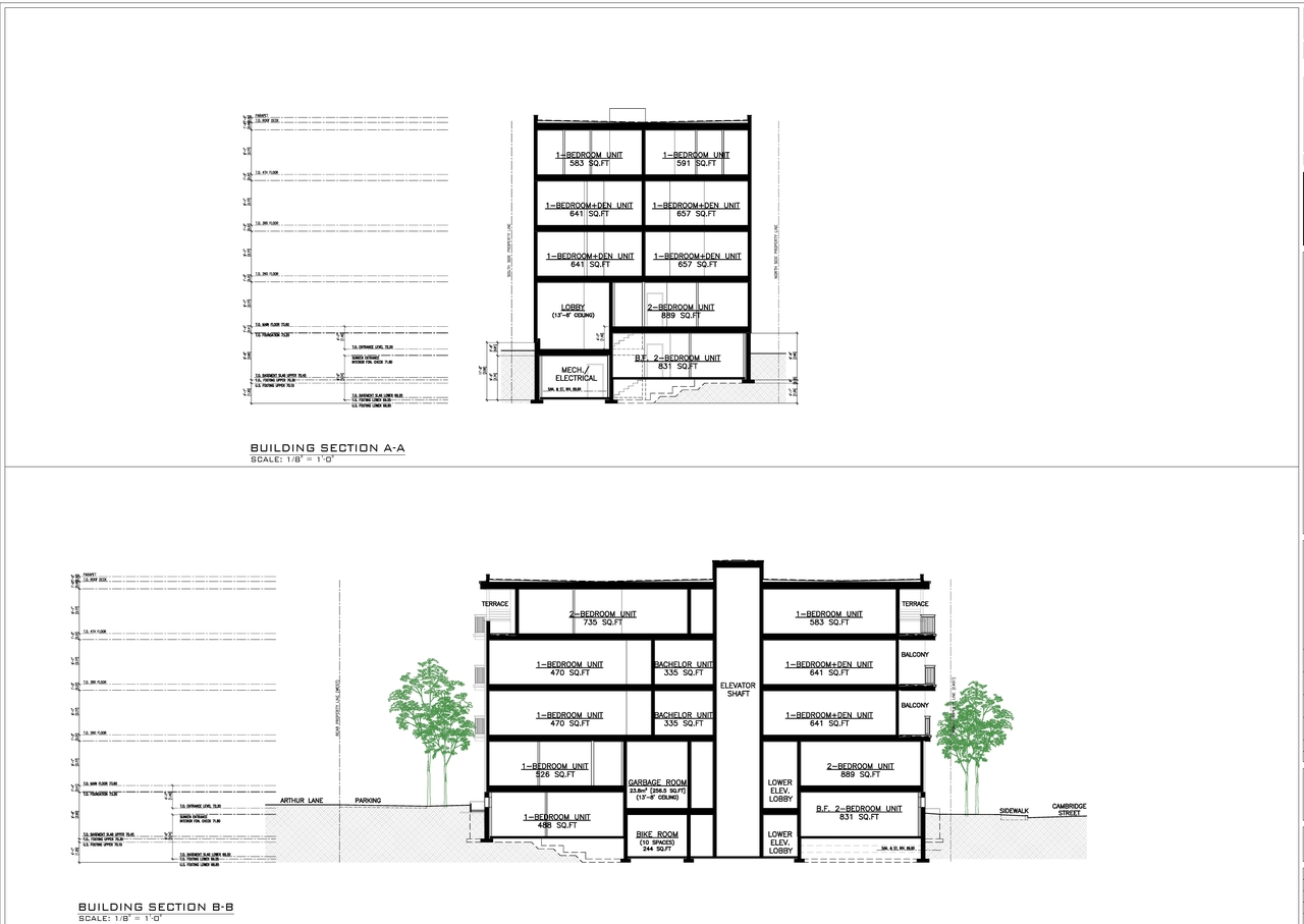
A Site Plan Control application to construct four-storey low-rise residential apartment building with 20 residential units, indoor garbage storage room, bicycle parking (10 indoors and four outdoors), and four surface parking spaces in the rear. Existing three two-storey townhouses are to be demolished.

Status
Inactive (Agreement Registered - Securities Held)

Building Scale (Max.) Based on elevation drawings. Values may be approximate. See sources for exact figures.
Mid-rise · 4 storeys Data Quality Note Text was extracted using optical character recognition. This may introduce artifacts or misreads.

Renders#

Location#

Select a marker to view the address.

Site Plans, Elevations and Floor Plans#

Additional Information#

Date Initiated2023-03-29
WardWard 14 - Ariel Troster

Documents#

TypeDocument
Adequacy Of Public Services2023-12-14 - Serviceability Report - D07-12-23-0036
Adequacy Of Public Services2023-10-18 - Serviceability Report R-821-155A - Rev1 - D07-12-23-0036
Adequacy Of Public Services2023-03-28 - Serviceability Report - D07-12-23-0036
Application Summary2023-05-01 - Application Summary - D07-12-23-0036
Architectural Plans2024-06-11 - Approved Site Plan - D07-12-23-0036
Architectural Plans2024-06-11 - Approved Elevations - D07-12-23-0036
Architectural Plans2023-12-14 - Architectural Package - D07-12-23-0036
Architectural Plans2023-10-20 - Architectural Package - Rev Oct 11 2023 - D07-12-23-0036
Architectural Plans2023-10-18 - Sloped Excavation Plan - D07-12-23-0036
Architectural Plans2023-03-28 - Site Plan - D07-12-23-0036
Electrical Plan2023-12-14 - Site Lighting Certification Letter - D07-12-23-0036
Environmental2023-03-28 - Phase I Environmental Site Assessment report - D07-12-23-0036
Erosion And Sediment Control Plan2024-06-11 - Approved Erosion & Sediment Control Plan - D07-12-23-0036
Erosion And Sediment Control Plan2023-12-14 - Erosion & Sediment Cntrol Plan - D07-12-23-0036
Erosion And Sediment Control Plan2023-10-18 - Erosion & Sediment Control Plan - 821-155-ESC-1 - Rev2 - D07-12-23-0036
Erosion And Sediment Control Plan2023-03-28 - Erosion & Sediment Control Plan - D07-12-23-0036
Floor Plan2023-03-28 - Building Elevations-Floor Plans-Building Sections - D07-12-23-0036
Geotechnical Report2024-06-11 - Approved Grading & Servicing Plan - D07-12-23-0036
Geotechnical Report2023-12-14 - Grading & Servicing Plan - D07-12-23-0036
Geotechnical Report2023-10-18 - Grading & Servicing Plan - 821-155-G-1 - Rev4 - D07-12-23-0036
Geotechnical Report2023-03-28 - Grading Plan - D07-12-23-0036
Geotechnical Report2023-03-28 - Geotechnical Report -D07-12-23-0036
Landscape Plan2024-01-19 - Landscape Plan - D07-12-23-0036
Landscape Plan2023-12-14 - Landscape Plan - D07-12-23-0036
Noise Study2023-12-14 - On-Site Stationary Source Noise - IDX Reporting Letter - D07-12-23-0036
Noise Study2023-12-14 - Noise Impact Assessment Study - D07-12-23-0036
Noise Study2023-10-18 - Noise Study - Scaled Drawings - D07-12-23-0036
Noise Study2023-03-28 - Noise Impact Assessment Study - D07-12-23-0036
Noise Study2024-11-08_Noise Certification Letter - Clearing Condition
Planning2023-10-18 - Planning Statement - D07-12-23-0036
Planning2023-03-28 - Planning Statement - D07-12-23-0036
Rendering2023-03-28 - Elevations-3D Rendering and Perspective Views - D07-12-23-0036
Stormwater Management2024-06-11 - Approved Storm Drainage Area Plan - D07-12-23-0036
Stormwater Management2024-06-11 - Approved Rooftop SWM Plan - D07-12-23-0036
Stormwater Management2023-12-14 - Storm Drainage Area Plan - D07-12-23-0036
Stormwater Management2023-12-14 - Rooftop SWM Plan - D07-12-23-0036
Stormwater Management2023-10-18 - Storm Water Management Plan 821-155-SWM-1 - Rev2 - D07-12-23-0036
Stormwater Management2023-10-18 - Storm Drainage Report R-821-155 - Rev1 - D07-12-23-0036
Stormwater Management2023-10-18 - Storm Drainage Area Plan - 821-155-D-1 - Rev2 - D07-12-23-0036
Stormwater Management2023-03-28 - Stormwater Management Report - D07-12-23-0036
Stormwater Management2023-03-28 - Storm Drainage Report - D07-12-23-0036
Stormwater Management2023-03-28 - Post Development Storm Drainage Area Plan - D07-12-23-0036
Surveying2023-03-28 - Surveyor’s Real Property Report Part 2 - D07-12-23-0036
Surveying2023-03-28 - Surveyor’s Real Property Report - D07-12-23-0036
Transportation Analysis2023-12-14 - TDM Checklist - D07-12-23-0036
Transportation Analysis2023-03-28 - Traffic Impact Assesment Screening - D07-12-23-0036
Tree Information and Conservation2024-06-11 - Approved TCR & Landscape Plan - D07-12-23-0036
Tree Information and Conservation2023-10-18 - TCR & Landscape Plan - D07-12-23-0036
Tree Information and Conservation2023-03-28 - Tree Conservation Report & Landscape Plan - D07-12-23-0036
2024-06-11 - Signed Delegated Authority Report - D07-12-23-0036
2024-01-19 - Roof Flow Control Declaration - D07-12-23-0036
2023-12-14 - Roof Flow Control Declaration Form - D07-12-23-0036
2023-10-20 - Memorandum - Response to Geotech & ESAPhaseI comments - D07-12-23-0036
2023-10-18 - Water Data Card - D07-12-23-0036
2023-10-18 - PhaseIESA - Rev June 27, 2023 - D07-12-23-0036
2023-03-28- COVER SHEET - D07-12-23-0036