Ottawa Development Projects

1650 Shea Rd.#

Last updated: 2026-01-10 · ID: D07-12-23-0032

Summary#

A Site Plan Control application to construct a planned unit development on private roads consisting of 116 back-to-back townhouse units configured into 13 buildings. Each unit is to include its own garage.

Status
Inactive (Notice of Decision Sent)

Building Scale (Max.) Based on elevation drawings. Values may be approximate. See sources for exact figures.
Low-rise · 3 storeys · 7.7 m Data Quality Note Height was partially estimated using visual scale. This may be approximate.

Renders#

Location#

Select a marker to view the address.

Site Plans, Elevations and Floor Plans#

Additional Information#

Date Initiated2023-03-23
WardWard 6 - Glen Gower

Documents#

TypeDocument
Application Summary2023-06-29 - Application Summary - D07-12-23-0032
Architectural Plans2024-08-07 - Site Plan - D07-12-23-0032
Architectural Plans2024-08-07 - Draft Plan of Condominium - D07-12-23-0032
Architectural Plans2023-03-23 - Type C - Plan - D07-12-23-0032
Architectural Plans2023-03-23 - Type B Plan - D07-12-23-0032
Architectural Plans2023-03-23 - Type B End Plan - D07-12-23-0032
Architectural Plans2023-03-23 - Type A End Plan - D07-12-23-0032
Architectural Plans2023-03-23 - Type A - Plan - D07-12-23-0032
Architectural Plans2023-03-23 - Site Plan - D07-12-23-0032
Architectural Plans2023-03-23 - SEDIMENT AND EROSION CONTROL PLAN - D07-12-23-0032
Architectural Plans2023-03-23 - SANITARY DRAINAGE AREA PLAN - D07-12-23-0032
Architectural Plans2023-03-23 - PONDING PLAN - D07-12-23-0032
Architectural Plans2023-03-23 - Plan 4M-1689 - D07-12-23-0032
Architectural Plans2023-03-23 - GENERAL PLAN - D07-12-23-0032
Architectural Plans2023-03-23 - Elevations - D07-12-23-0032 (4)
Architectural Plans2023-03-23 - Elevations - D07-12-23-0032 (3)
Architectural Plans2023-03-23 - Elevations - D07-12-23-0032 (2)
Architectural Plans2023-03-23 - Elevations - D07-12-23-0032
Architectural Plans2023-03-23 - Draft Plan of Condominium - D07-12-23-0032
Architectural Plans2023-03-23 - Back to Back town - 8 Unit Building Elevation - D07-12-23-0032
Architectural Plans2025-06-06 - Site Plan - D07-12-23-0032
Architectural Plans2025-08-06 - Typical Block Elevations - D07-12-23-0032
Architectural Plans2025-08-06 - Site Plan - D07-12-23-0032
Architectural Plans2025-08-06 - Sediment & Erosion Control Plan - D07-12-23-0032
Architectural Plans2025-08-06 - Sanitary Drainage Area Plan - D07-12-23-0032
Architectural Plans2025-08-06 - Ponding Plan - D07-12-23-0032
Architectural Plans2025-08-06 - General Plan - D07-12-23-0032
Architectural Plans2025-08-06 - Gallery Towns North & South Elevations - D07-12-23-0032
Architectural Plans2025-10-27 - APPROVED Site Plan Approval Report - D07-12-23-0032
Architectural Plans2025-10-27 - APPROVED Site Plan - D07-12-23-0032
Civil Engineering Report2024-08-07 - Civil Plans - D07-12-23-0032
Civil Engineering Report2025-08-06 - Civil Plans - D07-12-23-0032
Civil Engineering Report2025-10-27 - APPROVED Civil Plans - D07-12-23-0032
Civil Engineering Report2025-12-05 - Approved Civil Set - D07-12-23-0032
Design Brief2024-08-07 - Design Brief Update - D07-12-23-0032
Design Brief2023-03-23 - Design Brief & Planning Rationale - D07-12-23-0032
Design Brief2025-06-06 - Design Brief Phase 2 - D07-12-23-0032
Design Brief2025-06-06 - Design Brief - D07-12-23-0032
Drainage Plan2025-08-06 - Drainage Area Plan Schematic - D07-12-23-0032
Environmental2023-03-23 - Phase Two Environmental Site Assessment - D07-12-23-0032
Environmental2025-10-27 - APPROVED Phase One Environmental Site Assessment Update - D07-12-23-0032
Environmental2025-10-27 - APPROVED Environmental Noise Impact Assessment - D07-12-23-0032
Geotechnical Report2023-03-23 - GRADING PLAN - D07-12-23-0032
Geotechnical Report2023-03-23 - Geotechnical Investigation - D07-12-23-0032
Geotechnical Report2025-08-06 - Grading Plan - D07-12-23-0032
Geotechnical Report2025-10-27 - APPROVED Geotechnical Investigation - D07-12-23-0032
Landscape Plan2024-08-07 - Landscape Plans - D07-12-23-0032
Landscape Plan2023-03-23 - Landscape Plan - D07-12-23-0032
Landscape Plan2025-08-06 - Landscape Plan - D07-12-23-0032
Landscape Plan2025-10-27 - APPROVED Landscape Plans - D07-12-23-0032
Noise Study2023-03-23 - noise study - D07-12-23-0032
Site Servicing2024-08-07 - Servicing Brief - D07-12-23-0032
Site Servicing2023-03-23 - Servicing Brief - D07-12-23-0032
Site Servicing2025-06-06 - Servicing Brief - D07-12-23-0032
Site Servicing2025-08-06 - Servicing Brief - D07-12-23-0032
Site Servicing2025-10-27 - APPROVED Servicing Brief - D07-12-23-0032
Stormwater Management2023-03-23 - STORM DRAINAGE AREA PLAN - D07-12-23-0032
Stormwater Management2025-08-06 - Storm Drainage Area Plan - D07-12-23-0032
Transportation Analysis2023-03-23 - Transportation Impact Assessment Screening Form - D07-12-23-0032
Tree Information and Conservation2023-03-23 - ENVIRONMENTAL IMPACT STATEMENT & Tree Conservation Report - D07-12-23-0032
2024-08-07 - Guide Rail Assessment - D07-12-23-0032
2024-08-07 - ESA Phase 1 Update - D07-12-23-0032
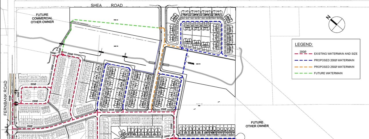
2023-03-23 - WATERMAIN-HYDRO CORRIDOR BLOCK 176 - D07-12-23-0032
2023-03-23 - STREET SECTIONS AND DETAILS - D07-12-23-0032
2023-03-23 - Road Cross Sections - D07-12-23-0032
2023-03-23 - PRIVATE LANE 4 & 5 - D07-12-23-0032
2023-03-23 - PRIVATE LANE 2 - D07-12-23-0032
2023-03-23 - PRIVATE LANE 1 & 3 - D07-12-23-0032
2023-03-23 - Natural Environmental Update Letter - D07-12-23-0032
2023-03-23 - DRY POND COMPENSATION - D07-12-23-0032
2023-03-23 - Cover - D07-12-23-0032
2023-03-23 - PRIVATE LANE 6 WATERMAIN CONNECTION - D07-12-23-0032
2025-06-06 - Water Boundary Conditions - D07-12-23-0032
2025-06-06 - Sheet List Table - D07-12-23-0032
2025-06-06 - Redi Rock Retaining Wall Design (RR3) - D07-12-23-0032
2025-06-06 - Redi Rock Retaining Wall Design (RR2) - D07-12-23-0032
2025-06-06 - Redi Rock Retaining Wall Design (RR1) - D07-12-23-0032
2025-06-06 - Guide Rail Assessment - D07-12-23-0032
2025-06-06 - Davidson Lands Water Model - D07-12-23-0032
2025-08-06 - Watermain Hydro Corridor Block 176 - D07-12-23-0032
2025-08-06 - VIZCAYA Private - D07-12-23-0032
2025-08-06 - VISTANCIA Private - D07-12-23-0032
2025-08-06 - Street Sections & Details - D07-12-23-0032
2025-08-06 - RHIZOME Private - D07-12-23-0032
2025-08-06 - Retaining Wall Sections - D07-12-23-0032
2025-08-06 - Notes, Legend, CB Data Table - D07-12-23-0032
2025-08-06 - Cover Page - D07-12-23-0032
2025-08-06 - CANTEMOS Private - D07-12-23-0032
2025-10-27 - APPROVED Redi Rock Retaining Wall Global Stability Analysis - D07-12-23-0032
2025-10-27 - APPROVED Redi Rock Retaining Wall Design RR3 - D07-12-23-0032
2025-10-27 - APPROVED Redi Rock Retaining Wall Design RR2 - D07-12-23-0032
2025-10-27 - APPROVED Redi Rock Retaining Wall Design RR1 - D07-12-23-0032
2025-10-27 - APPROVED Natural Environmental Update - D07-12-23-0032
2025-10-27 - APPROVED Guide Rail Assessment - D07-12-23-0032