381 Kent St.#
Last updated: 2025-03-22 · ID: D07-12-23-0031
Summary#
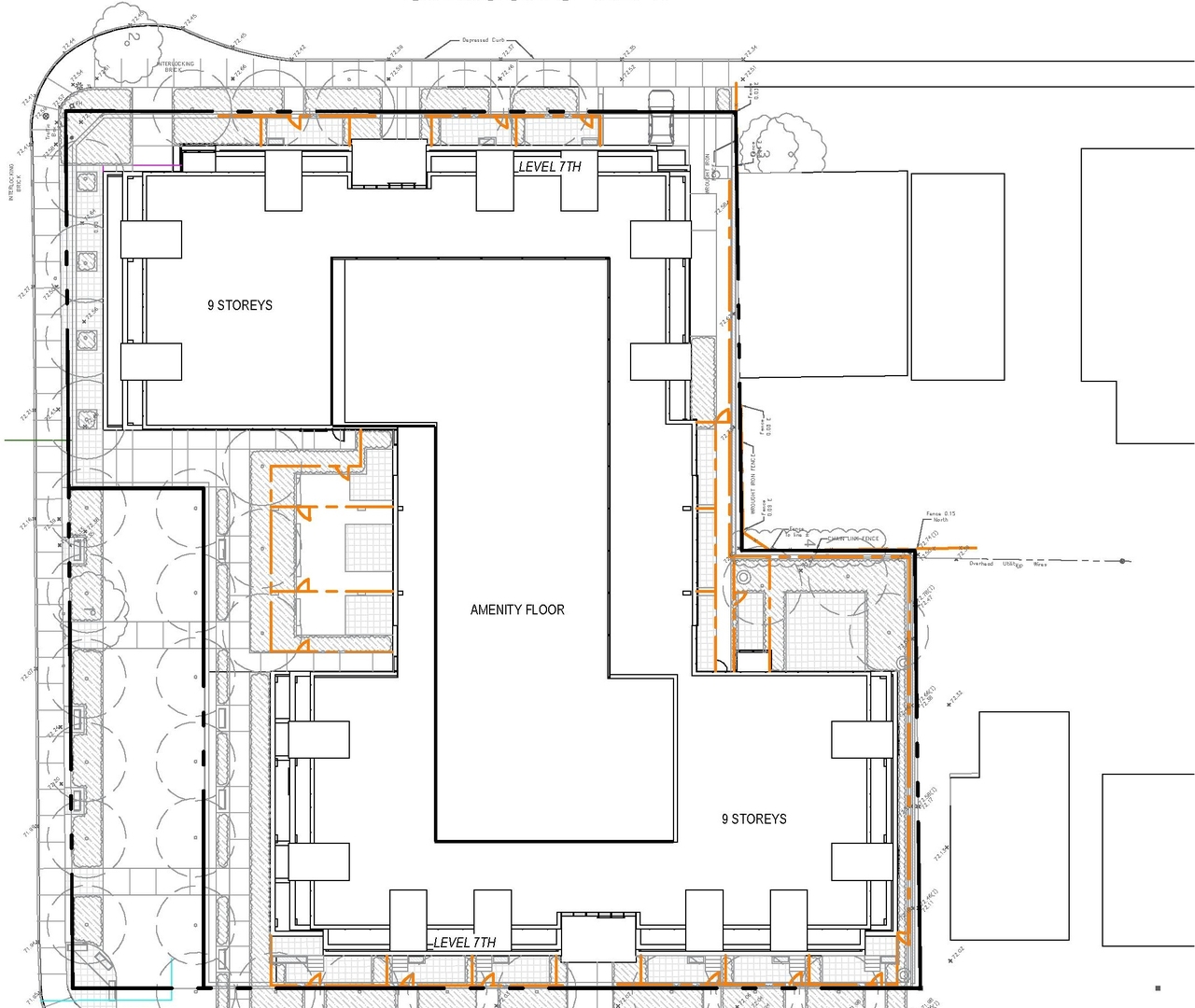
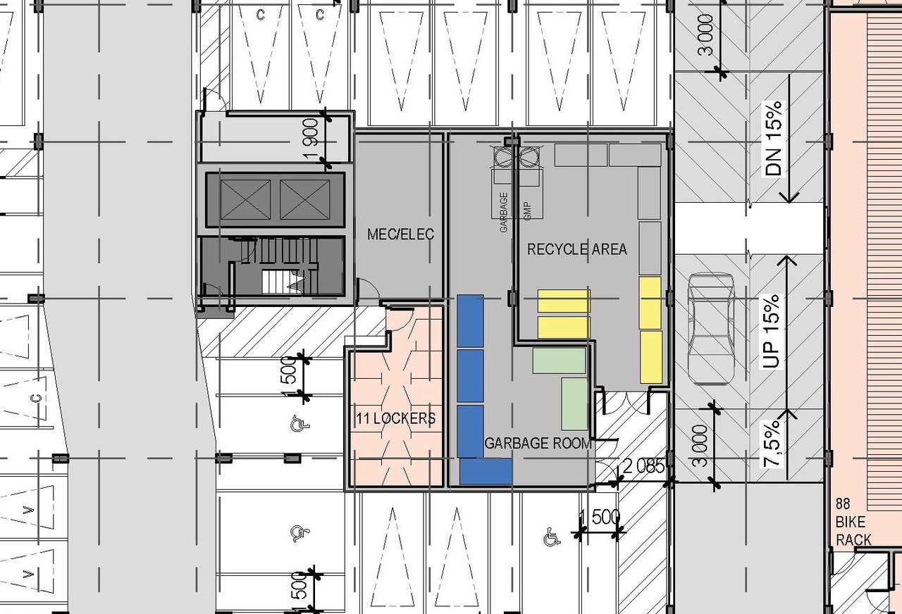
9-storey mixed use residential building. Commercial uses are proposed at the ground floor in the northwest corner of the site. A total commercial gross floor area of 171m2 is proposed. The remainder of the ground floor envisions walk-out residential apartment units. The upper floors consist of apartment uses. A total of 218 units are proposed.
Status
File Pending (Application File Pending)
Building Scale (Max.)
Based on elevation drawings. Values may be approximate. See sources for exact figures.
Mid-rise · 9 storeys
· 32.1 m
Renders#
Location#
Select a marker to view the address.
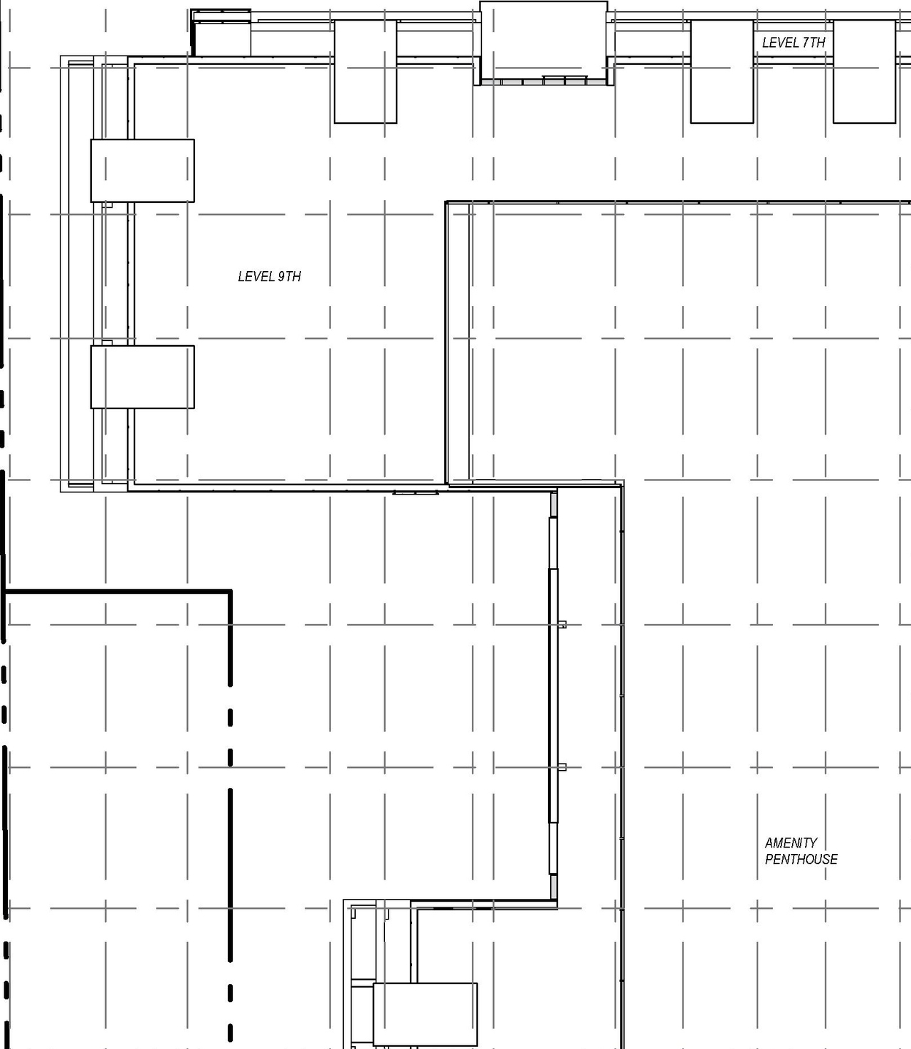
Site Plans, Elevations and Floor Plans#
Additional Information#
| Date Initiated | 2023-03-22 |
| Ward | Ward 14 - Ariel Troster |


































































