5254 Bank St.#
Last updated: 2025-07-10 · ID: D07-12-23-0029
Summary#
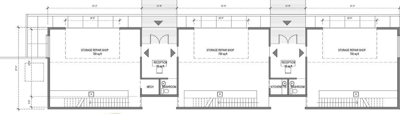
A Site Plan Control application to construct a 3 bay service and repair facility, with a mezzanine, with 7 exterior parking spaces.
Status
Active (Initial Review Comments Sent)
Building Scale (Max.)
Based on elevation drawings. Values may be approximate. See sources for exact figures.
Low-rise · 1 storey
Data Quality Note
Text was extracted using optical character recognition. This may introduce artifacts or misreads.
· 4.3 m
Data Quality Note
Height was partially estimated using visual scale. This may be approximate.
Data Quality Note
Text was extracted using optical character recognition. This may introduce artifacts or misreads.
Location#
Select a marker to view the address.
Site Plans, Elevations and Floor Plans#
Additional Information#
| Date Initiated | 2023-03-17 |
| Ward | Ward 20 - Isabelle Skalski |

